Property
Account |
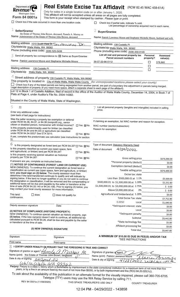
| Property ID: | 27113 | Abbreviated Legal Description: | COSTELLO ADDITION LOT 12 BLOCK 1 |
| Parcel Number: | 360733960112 | Agent Code: | |
| Type: | Real | | |
| Tax Area: | 1 - OL-140-F | Land Use Code | 11 |
| Open Space: | N | DFL | N |
| Historic Property: | N | Remodel Property: | N |
| Multi-Family Redevelopment: | N | | |
| Township: | 7 | Section: | 33 |
| Range: | 36 |
Location |
| Address: | 139 COSTELLO PL WA 99362 | Mapsco: | |
| Neighborhood: | VG Res Rural/City Inf | Map ID: | |
| Neighborhood CD: | 615012 |
Owner |
| Name: | MOORE PATRICK LAWRENCE & STEPHANIE MICHELLE | Owner ID: | 71551 |
| Mailing Address: | 139 COSTELLO PL WALLA WALLA, WA 99362 | % Ownership: | 100.0000000000% |
| | | Exemptions: | |
Taxes and Assessment Details
Values
| (+) Improvement Homesite Value: | + | $0 | |
| (+) Improvement Non-Homesite Value: | + | $533,460 | |
| (+) Land Homesite Value: | + | $0 | |
| (+) Land Non-Homesite Value: | + | $120,000 | |
| (+) Curr Use (HS): | + | $0 | $0 |
| (+) Curr Use (NHS): | + | $0 | $0 |
| | | -------------------------- | |
| (=) Market Value: | = | $653,460 | |
| (–) Productivity Loss: | – | $0 | |
| | | -------------------------- | |
| (=) Subtotal: | = | $653,460 | |
| (+) Senior Appraised Value: | + | $0 | |
| (+) Non-Senior Appraised Value: | + | $653,460 | |
| | | -------------------------- | |
| (=) Total Appraised Value: | = | $653,460 | |
| (–) Senior Exemption Loss: | – | $0 | |
| (–) Exemption Loss: | – | $0 | |
| | | -------------------------- | |
| (=) Taxable Value: | = | $653,460 | |
Taxing Jurisdiction
| Owner: | MOORE PATRICK LAWRENCE & STEPHANIE MICHELLE | | |
| % Ownership: | 100.0000000000% | | |
| Total Value: | $653,460 | | |
| Tax Area: | 1 - OL-140-F |
| CERFD | CURRENT EXPENSE REFUND 010 | 0.0000000000 | $653,460 | $653,460 | $0.00 | | |
| CURREXP | CURRENT EXPENSE 010 | 1.0175366760 | $653,460 | $653,460 | $664.92 | | |
| HUMNSERV | HUMAN SERVICES 119 | 0.0250000000 | $653,460 | $653,460 | $16.34 | | |
| SLDREL | SOLDIERS RELIEF 121 | 0.0155990005 | $653,460 | $653,460 | $10.19 | | |
| EMERGSER | EMS 147 | 0.3792580840 | $653,460 | $653,460 | $247.83 | | |
| EMSRFD | EMS REFUND 147 | 0.0000000000 | $653,460 | $653,460 | $0.00 | | |
| PORTRFD | PORT REFUND 640 | 0.0000000000 | $653,460 | $653,460 | $0.00 | | |
| PORTWWGEN | PORT OF WW 640 | 0.2460186015 | $653,460 | $653,460 | $160.76 | | |
| SD140BOND | SD #140 BOND 764 | 0.8342371393 | $653,460 | $653,460 | $545.14 | | |
| SD140GEN | SD #140 GENERAL 760 | 2.0646500647 | $653,460 | $653,460 | $1,349.17 | | |
| ST2 | STATE SCHOOL PART 2 600 | 0.8131451643 | $653,460 | $653,460 | $531.36 | | |
| STATESCHL | STATE SCHOOL 600 | 1.5158548041 | $653,460 | $653,460 | $990.55 | | |
| STREFUND | STATE REFUND LEVY 603 | 0.0000000000 | $653,460 | $653,460 | $0.00 | | |
| CWWBOND | C OF WW BOND 643 | 0.2760494372 | $653,460 | $653,460 | $180.39 | | |
| CWWGEN | CITY OF WW 631 | 1.6100204973 | $653,460 | $653,460 | $1,052.08 | | |
| CWWRFD | CITY OF WALLA WALLA REFUND 631 | 0.0000000000 | $653,460 | $653,460 | $0.00 | | |
| | Total Tax Rate: | 8.7973694689 | | | | | |
| | | | | Taxes w/Current Exemptions: | $5,748.73 | | |
| | | | | Taxes w/o Exemptions: | $5,748.73 | | |
Improvement / Building
| Improvement #1: | RESIDENTIAL | State Code: | 11 | 2481.0 sqft | Value: | $533,460 |
| Exterior Wall: | STUCCO | Heating/Cooling: | WARM & COOLED AIR | | Number of Bathrooms: | 3 | Number of Bedrooms: | 4 | | Plumbing: | 14 | Roof Covering: | COMP SHINGLE |
|
| | Type | Description | Class CD | Sub Class CD | Year Built | Area |
| | MA | Main Area | 1 | 50 | 2008 | 2481.0 |
| | SI1 | SITE IMPROVEMENT | 1 | 50 | 2008 | 5.5 |
| | ATG | Attached Garage | 1 | 50 | 2008 | 871.0 |
| | RPC | OPEN PORCH W/ROOF , CEILED | 1 | 50 | 2008 | 189.0 |
| | GFP | GAS FIREPLACE | 1 | 50 | 2008 | 1.0 |
| | RPC | OPEN PORCH W/ROOF , CEILED | 1 | 50 | 2008 | 88.0 |
Sketch
Property Image
Land
| 1 | RES 1 | Converted: Residential | 0.2459 | 10710.00 | 0.00 | 0.00 | 1.00 | $120,000 | $0 |
Roll Value History
| 2026 | N/A | N/A | N/A | N/A | N/A |
| 2025 | $564,180 | $160,000 | $0 | $724,180 | $724,180 |
| 2024 | $533,460 | $120,000 | $0 | $653,460 | $653,460 |
| 2023 | $533,460 | $120,000 | $0 | $653,460 | $653,460 |
| 2022 | $508,050 | $95,000 | $0 | $603,050 | $603,050 |
| 2021 | $483,860 | $95,000 | $0 | $578,860 | $578,860 |
| 2020 | $372,200 | $95,000 | $0 | $467,200 | $467,200 |
| 2019 | $372,200 | $95,000 | $0 | $467,200 | $467,200 |
| 2018 | $387,560 | $65,000 | $0 | $452,560 | $452,560 |
| 2017 | $387,560 | $65,000 | $0 | $452,560 | $452,560 |
| 2016 | $387,560 | $65,000 | $0 | $452,560 | $452,560 |
| 2015 | $387,560 | $65,000 | $0 | $452,560 | $452,560 |
| 2014 | $369,100 | $65,000 | $0 | $434,100 | $434,100 |
| 2013 | $369,100 | $65,000 | $0 | $434,100 | $434,100 |
| 2012 | $369,100 | $65,000 | $0 | $0 | $0 |
| 2011 | $348,400 | $65,000 | $0 | $0 | $0 |
| 2010 | $328,700 | $65,000 | $0 | $0 | $0 |
| 2009 | $144,900 | $65,000 | $0 | $0 | $0 |
| 2008 | $0 | $65,000 | $0 | $0 | $0 |
| 2007 | $0 | $3,900 | $0 | $0 | $0 |
Deed and Sales History
| 1 | 04/29/2022 | SWD | STATUTORY WARRANTY DEED | BROWN THOMAS JOHN ESTATE OF | MOORE PATRICK LAWRENCE & STEPHANIE MICHELLE | | | $676,000.00 | 143858 | 2022-03661 |
| 2 | 06/26/2009 | WARRANTY D | WARRANTY DEED | STOP BUY HERE LLC | BROWN, THOMAS JOHN | | | $438,000.00 | 116927 | 2009-06469 |
| 3 | 06/23/2008 | QCD | QUIT CLAIM DEED | JACKSON, ZEDELL JR | STOP BUY HERE LLC | | | | 115225 | 2008-06454 |
| 4 | 08/10/2005 | WARRANTY D | WARRANTY DEED | ASHMORE, ALAN H & SHERI R | JACKSON, ZEDELL JR | | | $66,500.00 | 108198 | 2005-09868 |
Payout Agreement
| No payout information available.. |