Property
Account |
| Property ID: | 27088 | Abbreviated Legal Description: | 34 06 05 GOVT LTS 3 & 4 & S2NW4 LY NLY OF RD |
| Parcel Number: | 340605210008 | Agent Code: | |
| Type: | Real | | |
| Tax Area: | 318 - 300-6-TM | Land Use Code | 83 |
| Open Space: | Y | DFL | N |
| Historic Property: | N | Remodel Property: | N |
| Multi-Family Redevelopment: | N | | |
| Township: | 6 | Section: | 5 |
| Range: | 34 |
Location |
| Address: | 1612 LOWDEN GARDENA RD WA 99360 | Mapsco: | |
| Neighborhood: | 0 Farm | Map ID: | |
| Neighborhood CD: | 2220 |
Owner |
| Name: | WE 4 PLUS MORE LLC | Owner ID: | 65087 |
| Mailing Address: | PO BOX 1877 GIG HARBOR, WA 98335 | % Ownership: | 100.0000000000% |
| | | Exemptions: | |
Taxes and Assessment Details
Property Tax Information as of
02/21/2026
Click on "Statement Details" to expand or collapse a tax statement.
* Please enter a valid date ** Please enter a valid date *
Statement Details |
| | TOTAL: | $0.00 | $0.00 | $0.00 | $0.00 | $0.00 | $0.00 |
|
| | $0.00 | $0.00 | $0.00 | $0.00 | $0.00 | $0.00 |
Values
| (+) Improvement Homesite Value: | + | $0 | |
| (+) Improvement Non-Homesite Value: | + | $137,400 | |
| (+) Land Homesite Value: | + | $0 | |
| (+) Land Non-Homesite Value: | + | $0 | |
| (+) Curr Use (HS): | + | $90,000 | $370 |
| (+) Curr Use (NHS): | + | $758,320 | $159,250 |
| | | -------------------------- | |
| (=) Market Value: | = | $985,720 | |
| (–) Productivity Loss: | – | $688,700 | |
| | | -------------------------- | |
| (=) Subtotal: | = | $297,020 | |
| (+) Senior Appraised Value: | + | $0 | |
| (+) Non-Senior Appraised Value: | + | $297,020 | |
| | | -------------------------- | |
| (=) Total Appraised Value: | = | $297,020 | |
| (–) Senior Exemption Loss: | – | $0 | |
| (–) Exemption Loss: | – | $0 | |
| | | -------------------------- | |
| (=) Taxable Value: | = | $297,020 | |
Taxing Jurisdiction
| Owner: | WE 4 PLUS MORE LLC | | |
| % Ownership: | 100.0000000000% | | |
| Total Value: | $985,720 | | |
| Tax Area: | 318 - 300-6-TM |
| CERFD | CURRENT EXPENSE REFUND 010 | 0.0000000000 | $297,020 | $297,020 | $0.00 | | |
| CURREXP | CURRENT EXPENSE 010 | 1.0175366760 | $297,020 | $297,020 | $302.23 | | |
| HUMNSERV | HUMAN SERVICES 119 | 0.0250000000 | $297,020 | $297,020 | $7.43 | | |
| SLDREL | SOLDIERS RELIEF 121 | 0.0155990005 | $297,020 | $297,020 | $4.63 | | |
| EMERGSER | EMS 147 | 0.3792580840 | $297,020 | $297,020 | $112.65 | | |
| EMSRFD | EMS REFUND 147 | 0.0000000000 | $297,020 | $297,020 | $0.00 | | |
| FD6EXP | FD #6 EXPENSE 693 | 0.6692985746 | $297,020 | $297,020 | $198.80 | | |
| RLBRFD | RURAL LIBRARY REFUND 623 | 0.0000000000 | $297,020 | $297,020 | $0.00 | | |
| RURALLIB | RURAL LIBRARY 623 | 0.3710609029 | $297,020 | $297,020 | $110.21 | | |
| PORTRFD | PORT REFUND 640 | 0.0000000000 | $297,020 | $297,020 | $0.00 | | |
| PORTWWGEN | PORT OF WW 640 | 0.2460186015 | $297,020 | $297,020 | $73.07 | | |
| SD300BOND | SD #300 BOND 783 | 1.8964951620 | $297,020 | $297,020 | $563.30 | | |
| SD300GEN | SD #300 GENERAL 780 | 2.1198322866 | $297,020 | $297,020 | $629.63 | | |
| ST2 | STATE SCHOOL PART 2 600 | 0.8131451643 | $297,020 | $297,020 | $241.52 | | |
| STATESCHL | STATE SCHOOL 600 | 1.5158548041 | $297,020 | $297,020 | $450.24 | | |
| STREFUND | STATE REFUND LEVY 603 | 0.0000000000 | $297,020 | $297,020 | $0.00 | | |
| COROAD | COUNTY ROAD 115 | 1.6549953990 | $297,020 | $297,020 | $491.57 | | |
| CRPRD | COUNTY ROAD REFUND 115 | 0.0000000000 | $297,020 | $297,020 | $0.00 | | |
| | Total Tax Rate: | 10.7240946555 | | | | | |
| | | | | Taxes w/Current Exemptions: | $3,185.28 | | |
| | | | | Taxes w/o Exemptions: | $3,185.28 | | |
Improvement / Building
| Improvement #1: | MANUFACTURED HOME | State Code: | 83 | 1612.0 sqft | Value: | $66,100 |
| Exterior Wall: | HARDBOARD | Heating/Cooling: | HEAT PUMP | | Number of Bathrooms: | 2 | Number of Bedrooms: | 3 | | Plumbing: | 10 | Roof Covering: | COMP SHINGLE |
|
| | Type | Description | Class CD | Sub Class CD | Year Built | Area |
| | MOBHOME | MANUFACTURD HOMES | 1 | 30 | 1992 | 1612.0 |
| | MI1 | MH SET-UP COSTS | 1 | 30 | 1992 | 1.0 |
| | TIP | MH ADDITION | 1 | 30 | 1992 | 132.0 |
| Improvement #2: | RESIDENTIAL | State Code: | 83 | 858.0 sqft | Value: | $71,300 |
| Exterior Wall: | SIDING | Heating/Cooling: | FORCED AIR | | Number of Bathrooms: | 2 | Number of Bedrooms: | 3 | | Plumbing: | 9 | Roof Covering: | COMP SHINGLE |
|
| | Type | Description | Class CD | Sub Class CD | Year Built | Area |
| | MA | Main Area | 1 | 20 | 1940 | 858.0 |
| | SI1 | SITE IMPROVEMENT | 1 | 20 | 1940 | 2.0 |
| | BASE | BASEMENT | 1 | 20 | 1940 | 858.0 |
| | DTG | Detached Garage | 1 | 20 | 1940 | 560.0 |
| | BARN | BARN-AVE | 1 | 30 | 1940 | 2000.0 |
| | UTST | Utility Storage Shed | 1 | 20 | 1940 | 288.0 |
Sketch
Property Image
Land
| 1 | 90,000-HS2 | Homesite Use Value | 1.0000 | 0.00 | 0.00 | 0.00 | 1.00 | $90,000 | $370 |
| 2 | C2-I | Class 2 Irrigated | 140.4300 | 0.00 | 0.00 | 0.00 | 1.00 | $758,320 | $159,250 |
| 3 | WASTE | Waste | 5.1900 | 0.00 | 0.00 | 0.00 | 1.00 | $0 | $0 |
Roll Value History
| 2026 | N/A | N/A | N/A | N/A | N/A |
| 2025 | $137,400 | $904,490 | $157,580 | $294,980 | $294,980 |
| 2024 | $137,400 | $876,410 | $160,540 | $297,940 | $297,940 |
| 2023 | $137,400 | $848,320 | $159,620 | $297,020 | $297,020 |
| 2022 | $137,400 | $792,150 | $154,000 | $291,400 | $291,400 |
| 2021 | $137,400 | $721,940 | $156,950 | $294,350 | $294,350 |
| 2020 | $134,100 | $550,550 | $160,190 | $294,290 | $294,290 |
| 2019 | $134,100 | $494,380 | $165,270 | $299,370 | $299,370 |
| 2018 | $134,100 | $480,330 | $168,360 | $302,460 | $302,460 |
| 2017 | $134,100 | $480,330 | $173,700 | $307,800 | $307,800 |
| 2016 | $134,100 | $480,330 | $174,380 | $308,480 | $308,480 |
| 2015 | $134,100 | $424,160 | $158,800 | $292,900 | $292,900 |
| 2014 | $134,100 | $424,160 | $158,860 | $292,960 | $292,960 |
| 2013 | $134,100 | $410,100 | $136,300 | $270,400 | $270,400 |
| 2012 | $134,200 | $108,600 | $0 | $0 | $0 |
| 2011 | $134,700 | $104,300 | $0 | $0 | $0 |
| 2010 | $133,400 | $107,500 | $0 | $0 | $0 |
| 2009 | $146,500 | $105,700 | $0 | $0 | $0 |
| 2008 | $128,600 | $134,100 | $0 | $0 | $0 |
| 2007 | $128,600 | $134,100 | $0 | $0 | $0 |
Deed and Sales History
| 1 | 05/13/2019 | WARRANTY D | WARRANTY DEED | WEAVER THOMAS & PATSY IRREVOCABLE TRUST | WE 4 PLUS MORE LLC | 2 PARCELS | | $0.00 | 136867 | 2019-03183 |
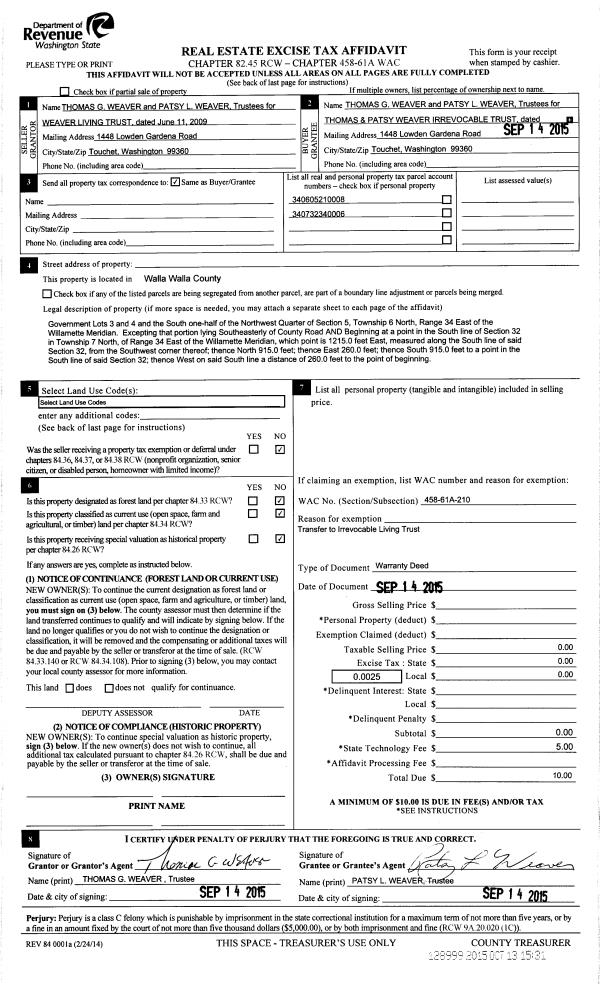
| 2 | 09/14/2015 | WARRANTY D | WARRANTY DEED | WEAVER THOMAS G & PATSY L TRUSTEES | WEAVER THOMAS & PATSY IRREVOCABLE TRUST | 2 PARCELS | | | 128999 | 2015-09495 |
| 3 | 06/16/2009 | WARRANTY D | WARRANTY DEED | WEAVER THOMAS G & PATSY L | WEAVER THOMAS G & PATSY L TRUSTEES | | | | 116883 | 2009-06067 |
| 4 | 10/07/1985 | WARRANTY D | WARRANTY DEED | | | | | $168,190.00 | 0 | 2790-392011 |
Payout Agreement
| No payout information available.. |