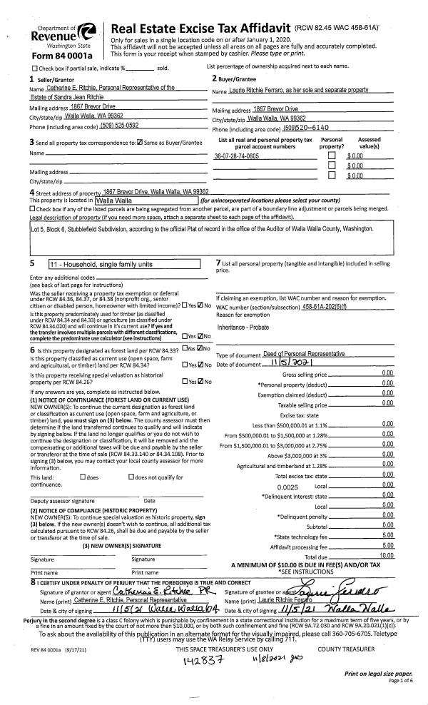
Property
Account |
| Property ID: | 2707 | Abbreviated Legal Description: | LT 5 BLK 6 STUBBLEFIELD SUBD |
| Parcel Number: | 360728740605 | Agent Code: | |
| Type: | Real | | |
| Tax Area: | 1 - OL-140-F | Land Use Code | 11 |
| Open Space: | N | DFL | N |
| Historic Property: | N | Remodel Property: | N |
| Multi-Family Redevelopment: | N | | |
| Township: | 7 | Section: | 28 |
| Range: | 36 |
Location |
| Address: | 1867 BREVOR DR WA 99362 | Mapsco: | |
| Neighborhood: | G Res | Map ID: | |
| Neighborhood CD: | 614011 |
Owner |
| Name: | FERRARO LAURIE RITCHIE | Owner ID: | 70592 |
| Mailing Address: | 1867 BREVOR DR WALLA WALLA, WA 99362 | % Ownership: | 100.0000000000% |
| | | Exemptions: | |
Taxes and Assessment Details
Property Tax Information as of
02/21/2026
Click on "Statement Details" to expand or collapse a tax statement.
* Please enter a valid date ** Please enter a valid date *
Statement Details |
| | TOTAL: | $0.00 | $0.00 | $0.00 | $0.00 | $0.00 | $0.00 |
|
| | $0.00 | $0.00 | $0.00 | $0.00 | $0.00 | $0.00 |
Values
| (+) Improvement Homesite Value: | + | $0 | |
| (+) Improvement Non-Homesite Value: | + | $524,110 | |
| (+) Land Homesite Value: | + | $0 | |
| (+) Land Non-Homesite Value: | + | $120,000 | |
| (+) Curr Use (HS): | + | $0 | $0 |
| (+) Curr Use (NHS): | + | $0 | $0 |
| | | -------------------------- | |
| (=) Market Value: | = | $644,110 | |
| (–) Productivity Loss: | – | $0 | |
| | | -------------------------- | |
| (=) Subtotal: | = | $644,110 | |
| (+) Senior Appraised Value: | + | $0 | |
| (+) Non-Senior Appraised Value: | + | $644,110 | |
| | | -------------------------- | |
| (=) Total Appraised Value: | = | $644,110 | |
| (–) Senior Exemption Loss: | – | $0 | |
| (–) Exemption Loss: | – | $0 | |
| | | -------------------------- | |
| (=) Taxable Value: | = | $644,110 | |
Taxing Jurisdiction
| Owner: | FERRARO LAURIE RITCHIE | | |
| % Ownership: | 100.0000000000% | | |
| Total Value: | $644,110 | | |
| Tax Area: | 1 - OL-140-F |
| CERFD | CURRENT EXPENSE REFUND 010 | 0.0000000000 | $644,110 | $644,110 | $0.00 | | |
| CURREXP | CURRENT EXPENSE 010 | 1.0175366760 | $644,110 | $644,110 | $655.41 | | |
| HUMNSERV | HUMAN SERVICES 119 | 0.0250000000 | $644,110 | $644,110 | $16.10 | | |
| SLDREL | SOLDIERS RELIEF 121 | 0.0155990005 | $644,110 | $644,110 | $10.05 | | |
| EMERGSER | EMS 147 | 0.3792580840 | $644,110 | $644,110 | $244.28 | | |
| EMSRFD | EMS REFUND 147 | 0.0000000000 | $644,110 | $644,110 | $0.00 | | |
| PORTRFD | PORT REFUND 640 | 0.0000000000 | $644,110 | $644,110 | $0.00 | | |
| PORTWWGEN | PORT OF WW 640 | 0.2460186015 | $644,110 | $644,110 | $158.46 | | |
| SD140BOND | SD #140 BOND 764 | 0.8342371393 | $644,110 | $644,110 | $537.34 | | |
| SD140GEN | SD #140 GENERAL 760 | 2.0646500647 | $644,110 | $644,110 | $1,329.86 | | |
| ST2 | STATE SCHOOL PART 2 600 | 0.8131451643 | $644,110 | $644,110 | $523.75 | | |
| STATESCHL | STATE SCHOOL 600 | 1.5158548041 | $644,110 | $644,110 | $976.38 | | |
| STREFUND | STATE REFUND LEVY 603 | 0.0000000000 | $644,110 | $644,110 | $0.00 | | |
| CWWBOND | C OF WW BOND 643 | 0.2760494372 | $644,110 | $644,110 | $177.81 | | |
| CWWGEN | CITY OF WW 631 | 1.6100204973 | $644,110 | $644,110 | $1,037.03 | | |
| CWWRFD | CITY OF WALLA WALLA REFUND 631 | 0.0000000000 | $644,110 | $644,110 | $0.00 | | |
| | Total Tax Rate: | 8.7973694689 | | | | | |
| | | | | Taxes w/Current Exemptions: | $5,666.47 | | |
| | | | | Taxes w/o Exemptions: | $5,666.47 | | |
Improvement / Building
| Improvement #1: | RESIDENTIAL | State Code: | 11 | 1870.0 sqft | Value: | $524,110 |
| Exterior Wall: | SIDING | Heating/Cooling: | WARM & COOLED AIR | | Number of Bathrooms: | 3 | Number of Bedrooms: | 3 | | Plumbing: | 13 | Roof Covering: | COMP SHINGLE |
|
| | Type | Description | Class CD | Sub Class CD | Year Built | Area |
| | MA | Main Area | 1 | 40 | 1967 | 1870.0 |
| | SI1 | SITE IMPROVEMENT | 1 | 35 | 1967 | 4.5 |
| | BASE | BASEMENT | 1 | 35 | 1967 | 1870.0 |
| | BPF | BASEMENT -PARTITIONED FINISH | 1 | 35 | 1967 | 935.0 |
| | ATG | Attached Garage | 1 | 35 | 1967 | 528.0 |
| | D2F | Double 2 Story Fireplace | 1 | 35 | 1967 | 1.0 |
| | RPC | OPEN PORCH W/ROOF , CEILED | 1 | 35 | 1967 | 166.0 |
| | WDR | WOOD DECK W/ROOF | 1 | 35 | 1967 | 315.0 |
Sketch
Property Image
Land
| 1 | RES 1 | Converted: Residential | 0.4360 | 18992.00 | 0.00 | 0.00 | 1.00 | $120,000 | $0 |
Roll Value History
| 2026 | N/A | N/A | N/A | N/A | N/A |
| 2025 | $558,110 | $150,000 | $0 | $708,110 | $708,110 |
| 2024 | $576,520 | $120,000 | $0 | $696,520 | $696,520 |
| 2023 | $524,110 | $120,000 | $0 | $644,110 | $644,110 |
| 2022 | $524,110 | $85,000 | $0 | $609,110 | $609,110 |
| 2021 | $327,570 | $85,000 | $0 | $412,570 | $412,570 |
| 2020 | $297,790 | $85,000 | $0 | $382,790 | $382,790 |
| 2019 | $297,790 | $85,000 | $0 | $382,790 | $382,790 |
| 2018 | $305,610 | $50,000 | $0 | $355,610 | $355,610 |
| 2017 | $277,830 | $50,000 | $0 | $327,830 | $327,830 |
| 2016 | $277,830 | $50,000 | $0 | $327,830 | $327,830 |
| 2015 | $264,600 | $50,000 | $0 | $314,600 | $314,600 |
| 2014 | $220,500 | $50,000 | $0 | $270,500 | $270,500 |
| 2013 | $220,500 | $50,000 | $0 | $270,500 | $270,500 |
| 2012 | $228,800 | $50,000 | $0 | $0 | $0 |
| 2011 | $228,800 | $50,000 | $0 | $0 | $0 |
| 2010 | $228,800 | $50,000 | $0 | $0 | $0 |
| 2009 | $259,800 | $50,000 | $0 | $0 | $0 |
| 2008 | $259,800 | $50,000 | $0 | $0 | $0 |
| 2007 | $186,600 | $30,000 | $0 | $0 | $0 |
Deed and Sales History
| 1 | 11/08/2021 | DPR | DEED OF PERSONAL REPRESENTATIVE | RITCHIE SANDRA JEAN ESTATE OF | FERRARO LAURIE RITCHIE | | | $0.00 | 142837 | 2021-13379 |
| 2 | 06/02/2003 | WARRANTY D | WARRANTY DEED | RITCHIE, KATHRYN A | RITCHIE, SANDRA JEAN | | | | 102227 | 2003-08092 |
| 3 | 02/01/1967 | WARRANTY D | WARRANTY DEED | | | | | $2,737.00 | 0 | 3210-483474 |
Payout Agreement
| No payout information available.. |