Property
Account |
| Property ID: | 27067 | Abbreviated Legal Description: | WALLA WALLA TAX 7 LOT 6 BLK 2 |
| Parcel Number: | 360720770207 | Agent Code: | |
| Type: | Real | | |
| Tax Area: | 1 - OL-140-F | Land Use Code | 52 |
| Open Space: | N | DFL | N |
| Historic Property: | N | Remodel Property: | N |
| Multi-Family Redevelopment: | N | | |
| Township: | 7 | Section: | 20 |
| Range: | 36 |
Location |
| Address: | 30 W MAIN ST WA 99362 | Mapsco: | |
| Neighborhood: | WW Downtown Core Area #1 | Map ID: | |
| Neighborhood CD: | 5341 |
Owner |
| Name: | ETTA30 LLC | Owner ID: | 62133 |
| Mailing Address: | 33 E MAIN ST WALLA WALLA, WA 99362 | % Ownership: | 100.0000000000% |
| | | Exemptions: | |
Taxes and Assessment Details
Values
| (+) Improvement Homesite Value: | + | $0 | |
| (+) Improvement Non-Homesite Value: | + | $1,841,100 | |
| (+) Land Homesite Value: | + | $0 | |
| (+) Land Non-Homesite Value: | + | $202,800 | |
| (+) Curr Use (HS): | + | $0 | $0 |
| (+) Curr Use (NHS): | + | $0 | $0 |
| | | -------------------------- | |
| (=) Market Value: | = | $2,043,900 | |
| (–) Productivity Loss: | – | $0 | |
| | | -------------------------- | |
| (=) Subtotal: | = | $2,043,900 | |
| (+) Senior Appraised Value: | + | $0 | |
| (+) Non-Senior Appraised Value: | + | $2,043,900 | |
| | | -------------------------- | |
| (=) Total Appraised Value: | = | $2,043,900 | |
| (–) Senior Exemption Loss: | – | $0 | |
| (–) Exemption Loss: | – | $0 | |
| | | -------------------------- | |
| (=) Taxable Value: | = | $2,043,900 | |
Taxing Jurisdiction
| Owner: | ETTA30 LLC | | |
| % Ownership: | 100.0000000000% | | |
| Total Value: | $2,043,900 | | |
| Tax Area: | 1 - OL-140-F |
| CERFD | CURRENT EXPENSE REFUND 010 | 0.0000000000 | $2,043,900 | $2,043,900 | $0.00 | | |
| CURREXP | CURRENT EXPENSE 010 | 0.9851088983 | $2,043,900 | $2,043,900 | $2,013.46 | | |
| HUMNSERV | HUMAN SERVICES 119 | 0.0250000000 | $2,043,900 | $2,043,900 | $51.10 | | |
| SLDREL | SOLDIERS RELIEF 121 | 0.0155990000 | $2,043,900 | $2,043,900 | $31.88 | | |
| EMERGSER | EMS 147 | 0.3676811629 | $2,043,900 | $2,043,900 | $751.50 | | |
| EMSRFD | EMS REFUND 147 | 0.0000000000 | $2,043,900 | $2,043,900 | $0.00 | | |
| PORTRFD | PORT REFUND 640 | 0.0000000000 | $2,043,900 | $2,043,900 | $0.00 | | |
| PORTWWGEN | PORT OF WW 640 | 0.2344301070 | $2,043,900 | $2,043,900 | $479.15 | | |
| SD140BOND | SD #140 BOND 764 | 0.8032434458 | $2,043,900 | $2,043,900 | $1,641.75 | | |
| SD140CAP | SD #140 CAP 762 | 0.3840034221 | $2,043,900 | $2,043,900 | $784.86 | | |
| SD140GEN | SD #140 GENERAL 760 | 2.4999999996 | $2,043,900 | $2,043,900 | $5,109.75 | | |
| ST2 | STATE SCHOOL PART 2 600 | 0.8853714103 | $2,043,900 | $2,043,900 | $1,809.61 | | |
| STATESCHL | STATE SCHOOL 600 | 1.6424571473 | $2,043,900 | $2,043,900 | $3,357.02 | | |
| STREFUND | STATE REFUND LEVY 603 | 0.0000000000 | $2,043,900 | $2,043,900 | $0.00 | | |
| CWWBOND | C OF WW BOND 643 | 0.2642134255 | $2,043,900 | $2,043,900 | $540.03 | | |
| CWWGEN | CITY OF WW 631 | 1.6110494978 | $2,043,900 | $2,043,900 | $3,292.82 | | |
| CWWRFD | CITY OF WALLA WALLA REFUND 631 | 0.0000000000 | $2,043,900 | $2,043,900 | $0.00 | | |
| | Total Tax Rate: | 9.7181575166 | | | | | |
| | | | | Taxes w/Current Exemptions: | $19,862.93 | | |
| | | | | Taxes w/o Exemptions: | $19,862.93 | | |
Improvement / Building
| Improvement #1: | COMMERCIAL | State Code: | 52 | 25696.0 sqft | Value: | $1,841,100 |
| | Type | Description | Class CD | Sub Class CD | Year Built | Area |
| | MA | Main Area | D | * | 1870 | 25696.0 |
| | UPFL | Upper Floor (included in main area) | D | * | 1870 | 9600.0 |
| | BASE | BASEMENT | D | * | 1870 | 9600.0 |
| | UPFL | Upper Floor (included in main area) | D | * | 1870 | 7200.0 |
| | SI1 | SITE IMPROVEMENT | D | * | 1870 | 20.0 |
Sketch
Property Image
Land
| 1 | COM 1 | Converted: Commercial | 0.2328 | 10140.00 | 0.00 | 0.00 | 1.00 | $202,800 | $0 |
Roll Value History
| 2026 | N/A | N/A | N/A | N/A | N/A |
| 2025 | $1,841,100 | $202,800 | $0 | $2,043,900 | $2,043,900 |
| 2024 | $1,841,100 | $202,800 | $0 | $2,043,900 | $2,043,900 |
| 2023 | $1,856,700 | $182,500 | $0 | $2,039,200 | $2,039,200 |
| 2022 | $1,856,700 | $182,500 | $0 | $2,039,200 | $2,039,200 |
| 2021 | $1,856,700 | $182,500 | $0 | $2,039,200 | $2,039,200 |
| 2020 | $1,856,700 | $182,500 | $0 | $2,039,200 | $2,039,200 |
| 2019 | $1,856,700 | $182,500 | $0 | $2,039,200 | $2,039,200 |
| 2018 | $1,856,700 | $182,500 | $0 | $2,039,200 | $2,039,200 |
| 2017 | $989,070 | $182,520 | $0 | $1,171,590 | $1,171,590 |
| 2016 | $989,070 | $182,520 | $0 | $1,171,590 | $1,171,590 |
| 2015 | $939,800 | $133,800 | $0 | $1,073,600 | $1,073,600 |
| 2014 | $939,800 | $133,800 | $0 | $1,073,600 | $1,073,600 |
| 2013 | $939,800 | $133,800 | $0 | $1,073,600 | $1,073,600 |
| 2012 | $1,085,000 | $156,200 | $0 | $0 | $0 |
| 2011 | $1,099,200 | $142,000 | $0 | $0 | $0 |
| 2010 | $1,099,200 | $142,000 | $0 | $0 | $0 |
| 2009 | $1,139,800 | $101,400 | $0 | $0 | $0 |
| 2008 | $986,100 | $101,400 | $0 | $0 | $0 |
| 2007 | $630,100 | $101,400 | $0 | $0 | $0 |
Deed and Sales History
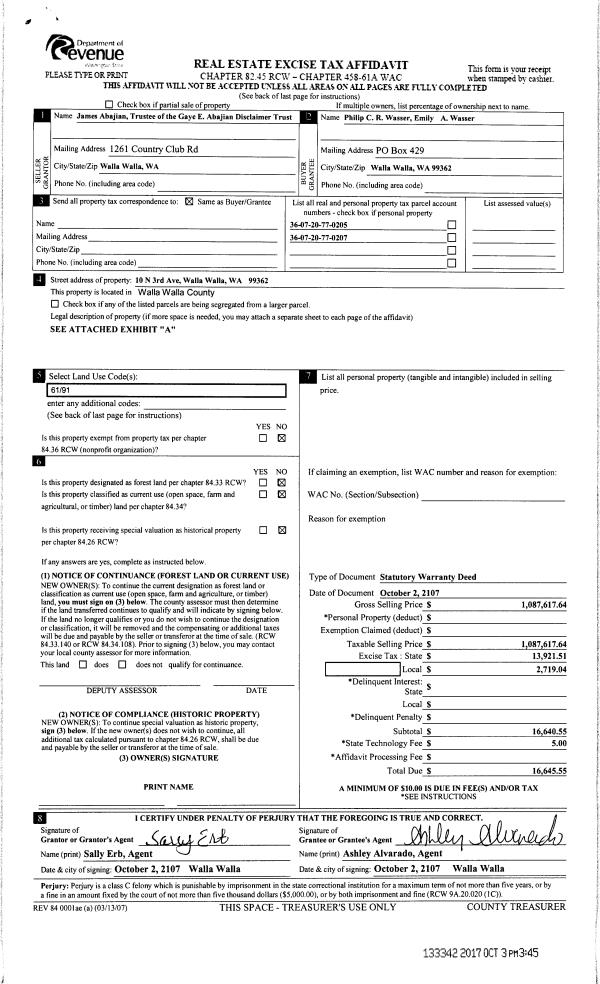
| 1 | 11/17/2017 | QCD | QUIT CLAIM DEED | WASSER PHILIP C & S REID | ETTA30 LLC | | | $0.00 | 133671 | 2017-09475 |
| 2 | 10/03/2017 | SWD | STATUTORY WARRANTY DEED | WASSER PHILIP C & S REID | WASSER PHILIP C & S REID | | 2-PARCELS | $1,087,618.00 | 133342 | 2017-07872 |
|   | |
| 3 | 10/04/2011 | WARRANTY D | WARRANTY DEED | ABAJIAN, JAMES A | ABAJIAN, JAMES A TRUSTEE OF TH | | | | 120780 | 2011-07769 |
| 4 | 07/08/2005 | WARRANTY D | WARRANTY DEED | AMERICAN WEST BANK | WASSER, PHILIP C & S REID | | | $1,000,000.00 | 107912 | 2005--08286 |
| 5 | 06/13/1980 | WARRANTY D | WARRANTY DEED | | | | | $396,000.00 | 0 | 1478-500243 |
Payout Agreement
| No payout information available.. |