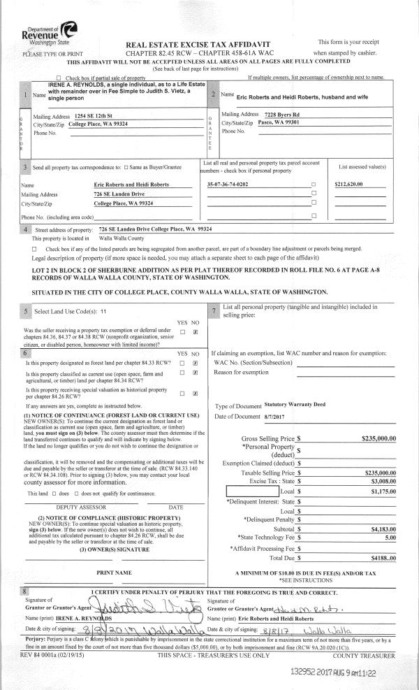
Property
Account |
| Property ID: | 27066 | Abbreviated Legal Description: | SHERBURNE ADDN LOT 2 BLK 2 |
| Parcel Number: | 350736740202 | Agent Code: | |
| Type: | Real | | |
| Tax Area: | 75 - CP 250 | Land Use Code | 11 |
| Open Space: | N | DFL | N |
| Historic Property: | N | Remodel Property: | N |
| Multi-Family Redevelopment: | N | | |
| Township: | 7 | Section: | 36 |
| Range: | 35 |
Location |
| Address: | 726 SE LANDEN DR WA 99324 | Mapsco: | |
| Neighborhood: | G SFR | Map ID: | |
| Neighborhood CD: | 114011 |
Owner |
| Name: | ROBERTS ERIC & HEIDI | Owner ID: | 61528 |
| Mailing Address: | 726 SE LANDEN DR COLLEGE PLACE, WA 99324 | % Ownership: | 100.0000000000% |
| | | Exemptions: | |
Taxes and Assessment Details
Property Tax Information as of
02/21/2026
Click on "Statement Details" to expand or collapse a tax statement.
* Please enter a valid date ** Please enter a valid date *
Statement Details |
| | TOTAL: | $0.00 | $0.00 | $0.00 | $0.00 | $0.00 | $0.00 |
|
| | $0.00 | $0.00 | $0.00 | $0.00 | $0.00 | $0.00 |
Values
| (+) Improvement Homesite Value: | + | $337,740 | |
| (+) Improvement Non-Homesite Value: | + | $0 | |
| (+) Land Homesite Value: | + | $75,000 | |
| (+) Land Non-Homesite Value: | + | $0 | |
| (+) Curr Use (HS): | + | $0 | $0 |
| (+) Curr Use (NHS): | + | $0 | $0 |
| | | -------------------------- | |
| (=) Market Value: | = | $412,740 | |
| (–) Productivity Loss: | – | $0 | |
| | | -------------------------- | |
| (=) Subtotal: | = | $412,740 | |
| (+) Senior Appraised Value: | + | $0 | |
| (+) Non-Senior Appraised Value: | + | $412,740 | |
| | | -------------------------- | |
| (=) Total Appraised Value: | = | $412,740 | |
| (–) Senior Exemption Loss: | – | $0 | |
| (–) Exemption Loss: | – | $0 | |
| | | -------------------------- | |
| (=) Taxable Value: | = | $412,740 | |
Taxing Jurisdiction
| Owner: | ROBERTS ERIC & HEIDI | | |
| % Ownership: | 100.0000000000% | | |
| Total Value: | $412,740 | | |
| Tax Area: | 75 - CP 250 |
| CERFD | CURRENT EXPENSE REFUND 010 | 0.0000000000 | $412,740 | $412,740 | $0.00 | | |
| CURREXP | CURRENT EXPENSE 010 | 1.0175366760 | $412,740 | $412,740 | $419.98 | | |
| HUMNSERV | HUMAN SERVICES 119 | 0.0250000000 | $412,740 | $412,740 | $10.32 | | |
| SLDREL | SOLDIERS RELIEF 121 | 0.0155990005 | $412,740 | $412,740 | $6.44 | | |
| COLLPLBOND | C OF CP BOND 644 | 0.4374241808 | $412,740 | $412,740 | $180.54 | | |
| COLLPLGEN | CITY OF CP 632 | 1.4453819216 | $412,740 | $412,740 | $596.57 | | |
| EMERGSER | EMS 147 | 0.3792580840 | $412,740 | $412,740 | $156.53 | | |
| EMSRFD | EMS REFUND 147 | 0.0000000000 | $412,740 | $412,740 | $0.00 | | |
| RURALLIB | RURAL LIBRARY 623 | 0.3710609029 | $412,740 | $412,740 | $153.15 | | |
| PORTRFD | PORT REFUND 640 | 0.0000000000 | $412,740 | $412,740 | $0.00 | | |
| PORTWWGEN | PORT OF WW 640 | 0.2460186015 | $412,740 | $412,740 | $101.54 | | |
| SD250BOND | SD #250 BOND 773 | 1.4560608159 | $412,740 | $412,740 | $600.97 | | |
| SD250GEN | SD #250 GENERAL 770 | 2.3880724087 | $412,740 | $412,740 | $985.65 | | |
| ST2 | STATE SCHOOL PART 2 600 | 0.8131451643 | $412,740 | $412,740 | $335.62 | | |
| STATESCHL | STATE SCHOOL 600 | 1.5158548041 | $412,740 | $412,740 | $625.65 | | |
| STREFUND | STATE REFUND LEVY 603 | 0.0000000000 | $412,740 | $412,740 | $0.00 | | |
| | Total Tax Rate: | 10.1104125603 | | | | | |
| | | | | Taxes w/Current Exemptions: | $4,172.96 | | |
| | | | | Taxes w/o Exemptions: | $4,172.96 | | |
Improvement / Building
| Improvement #1: | RESIDENTIAL | State Code: | 11 | 1562.0 sqft | Value: | $337,740 |
| Exterior Wall: | SIDING | Heating/Cooling: | WARM & COOLED AIR | | Number of Bathrooms: | 2 | Number of Bedrooms: | 3 | | Plumbing: | 11 | Roof Covering: | COMP SHINGLE |
|
| | Type | Description | Class CD | Sub Class CD | Year Built | Area |
| | MA | Main Area | 1 | 35 | 1998 | 1562.0 |
| | SI1 | SITE IMPROVEMENT | 1 | 35 | 1998 | 2.0 |
| | ATG | Attached Garage | 1 | 35 | 1998 | 695.0 |
| | RPS | PORCH W/STEPS,ROOF | 1 | 35 | 1998 | 84.0 |
| | OPS | OPEN PORCH W/STEPS | 1 | 35 | 1998 | 12.0 |
| | S1F | Single One Story Fireplace | 1 | 35 | 1998 | 1.0 |
Sketch
Property Image
Land
| 1 | RES 1 | Converted: Residential | 0.2009 | 8750.00 | 0.00 | 0.00 | 1.00 | $75,000 | $0 |
Roll Value History
| 2026 | N/A | N/A | N/A | N/A | N/A |
| 2025 | $270,190 | $130,000 | $0 | $400,190 | $400,190 |
| 2024 | $337,740 | $75,000 | $0 | $412,740 | $412,740 |
| 2023 | $337,740 | $75,000 | $0 | $412,740 | $412,740 |
| 2022 | $281,450 | $75,000 | $0 | $356,450 | $356,450 |
| 2021 | $268,050 | $75,000 | $0 | $343,050 | $343,050 |
| 2020 | $184,860 | $75,000 | $0 | $259,860 | $259,860 |
| 2019 | $194,860 | $65,000 | $0 | $259,860 | $259,860 |
| 2018 | $162,380 | $65,000 | $0 | $227,380 | $227,380 |
| 2017 | $162,380 | $65,000 | $0 | $227,380 | $227,380 |
| 2016 | $147,620 | $65,000 | $0 | $212,620 | $212,620 |
| 2015 | $134,200 | $65,000 | $0 | $199,200 | $199,200 |
| 2014 | $134,200 | $65,000 | $0 | $199,200 | $129,480 |
| 2013 | $134,200 | $65,000 | $0 | $199,200 | $129,480 |
| 2012 | $156,300 | $65,000 | $0 | $0 | $0 |
| 2011 | $156,300 | $65,000 | $0 | $0 | $0 |
| 2010 | $156,300 | $65,000 | $0 | $0 | $0 |
| 2009 | $167,900 | $65,000 | $0 | $0 | $0 |
| 2008 | $125,600 | $30,000 | $0 | $0 | $0 |
| 2007 | $125,600 | $30,000 | $0 | $0 | $0 |
Deed and Sales History
| 1 | 08/09/2017 | SWD | STATUTORY WARRANTY DEED | REYNOLDS IRENE A LIFE ESTATE | ROBERTS ERIC & HEIDI | | | $235,000.00 | 132952 | 2017-06107 |
| 2 | 06/12/2009 | QCD | QUIT CLAIM DEED | REYNOLDS, IRENE A | REYNOLDS, IRENE A LIFE ESTATE | | | | 116875 | 2009-05955 |
| 3 | 12/10/1998 | WARRANTY D | WARRANTY DEED | | | | | $148,500.00 | 91786 | 2779-814289 |
Payout Agreement
| No payout information available.. |