Property
Account |
| Property ID: | 27054 | Abbreviated Legal Description: | GARRISON CRK HGTS #2 PHASE 1 LOT 1 BLK 2 |
| Parcel Number: | 350736710201 | Agent Code: | |
| Type: | Real | | |
| Tax Area: | 77 - CP-250-F | Land Use Code | 11 |
| Open Space: | N | DFL | N |
| Historic Property: | N | Remodel Property: | N |
| Multi-Family Redevelopment: | N | | |
| Township: | 7 | Section: | 36 |
| Range: | 35 |
Location |
| Address: | 956 SE GARRISON DR WA 99324 | Mapsco: | |
| Neighborhood: | G SFR | Map ID: | |
| Neighborhood CD: | 114011 |
Owner |
| Name: | TAMPA BRIAN S & MARY C | Owner ID: | 71865 |
| Mailing Address: | 956 SE GARRISON DR COLLEGE PLACE, WA 99324 | % Ownership: | 100.0000000000% |
| | | Exemptions: | |
Taxes and Assessment Details
Property Tax Information as of
04/19/2026
Click on "Statement Details" to expand or collapse a tax statement.
* Please enter a valid date ** Please enter a valid date *
Statement Details |
| | TOTAL: | $0.00 | $0.00 | $0.00 | $0.00 | $0.00 | $0.00 |
|
| | $0.00 | $0.00 | $0.00 | $0.00 | $0.00 | $0.00 |
Values
| (+) Improvement Homesite Value: | + | $0 | |
| (+) Improvement Non-Homesite Value: | + | $536,730 | |
| (+) Land Homesite Value: | + | $0 | |
| (+) Land Non-Homesite Value: | + | $75,000 | |
| (+) Curr Use (HS): | + | $0 | $0 |
| (+) Curr Use (NHS): | + | $0 | $0 |
| | | -------------------------- | |
| (=) Market Value: | = | $611,730 | |
| (–) Productivity Loss: | – | $0 | |
| | | -------------------------- | |
| (=) Subtotal: | = | $611,730 | |
| (+) Senior Appraised Value: | + | $0 | |
| (+) Non-Senior Appraised Value: | + | $611,730 | |
| | | -------------------------- | |
| (=) Total Appraised Value: | = | $611,730 | |
| (–) Senior Exemption Loss: | – | $0 | |
| (–) Exemption Loss: | – | $0 | |
| | | -------------------------- | |
| (=) Taxable Value: | = | $611,730 | |
Taxing Jurisdiction
| Owner: | TAMPA BRIAN S & MARY C | | |
| % Ownership: | 100.0000000000% | | |
| Total Value: | $611,730 | | |
| Tax Area: | 77 - CP-250-F |
| CERFD | CURRENT EXPENSE REFUND 010 | 0.0000000000 | $611,730 | $611,730 | $0.00 | | |
| CURREXP | CURRENT EXPENSE 010 | 1.0175366760 | $611,730 | $611,730 | $622.46 | | |
| HUMNSERV | HUMAN SERVICES 119 | 0.0250000000 | $611,730 | $611,730 | $15.29 | | |
| SLDREL | SOLDIERS RELIEF 121 | 0.0155990005 | $611,730 | $611,730 | $9.54 | | |
| COLLPLBOND | C OF CP BOND 644 | 0.4374241808 | $611,730 | $611,730 | $267.59 | | |
| COLLPLGEN | CITY OF CP 632 | 1.4453819216 | $611,730 | $611,730 | $884.18 | | |
| EMERGSER | EMS 147 | 0.3792580840 | $611,730 | $611,730 | $232.00 | | |
| EMSRFD | EMS REFUND 147 | 0.0000000000 | $611,730 | $611,730 | $0.00 | | |
| RURALLIB | RURAL LIBRARY 623 | 0.3710609029 | $611,730 | $611,730 | $226.99 | | |
| PORTRFD | PORT REFUND 640 | 0.0000000000 | $611,730 | $611,730 | $0.00 | | |
| PORTWWGEN | PORT OF WW 640 | 0.2460186015 | $611,730 | $611,730 | $150.50 | | |
| SD250BOND | SD #250 BOND 773 | 1.4560608159 | $611,730 | $611,730 | $890.72 | | |
| SD250GEN | SD #250 GENERAL 770 | 2.3880724087 | $611,730 | $611,730 | $1,460.86 | | |
| ST2 | STATE SCHOOL PART 2 600 | 0.8131451643 | $611,730 | $611,730 | $497.43 | | |
| STATESCHL | STATE SCHOOL 600 | 1.5158548041 | $611,730 | $611,730 | $927.29 | | |
| STREFUND | STATE REFUND LEVY 603 | 0.0000000000 | $611,730 | $611,730 | $0.00 | | |
| | Total Tax Rate: | 10.1104125603 | | | | | |
| | | | | Taxes w/Current Exemptions: | $6,184.85 | | |
| | | | | Taxes w/o Exemptions: | $6,184.85 | | |
Improvement / Building
| Improvement #1: | RESIDENTIAL | State Code: | 11 | 3259.0 sqft | Value: | $536,730 |
| Exterior Wall: | PLYWOOD | Heating/Cooling: | WARM & COOLED AIR | | Number of Bathrooms: | 3.5 | Number of Bedrooms: | 4 | | Plumbing: | 15 | Roof Covering: | COMP SHINGLE |
|
| | Type | Description | Class CD | Sub Class CD | Year Built | Area |
| | MA | Main Area | 4 | 40 | 1995 | 3259.0 |
| | SI1 | SITE IMPROVEMENT | 4 | 40 | 1995 | 2.0 |
| | UPFL | Upper Floor (included in main area) | 4 | 40 | 1995 | 888.0 |
| | ATG | Attached Garage | 4 | 40 | 1995 | 743.0 |
| | S1F | Single One Story Fireplace | 4 | 40 | 1995 | 1.0 |
| | WOD | Wood Deck | 4 | 40 | 1995 | 300.0 |
| | PRC | PORCH W STEPS, ROOF,CEILED | 4 | 40 | 1995 | 68.0 |
Sketch
Property Image
Land
| 1 | RES 1 | Converted: Residential | 0.3578 | 15584.00 | 0.00 | 0.00 | 1.00 | $75,000 | $0 |
Roll Value History
| 2026 | N/A | N/A | N/A | N/A | N/A |
| 2025 | $456,220 | $140,000 | $0 | $596,220 | $596,220 |
| 2024 | $536,730 | $75,000 | $0 | $611,730 | $611,730 |
| 2023 | $536,730 | $75,000 | $0 | $611,730 | $611,730 |
| 2022 | $536,730 | $75,000 | $0 | $611,730 | $611,730 |
| 2021 | $447,280 | $75,000 | $0 | $522,280 | $522,280 |
| 2020 | $344,060 | $75,000 | $0 | $419,060 | $419,060 |
| 2019 | $354,060 | $65,000 | $0 | $419,060 | $419,060 |
| 2018 | $283,250 | $65,000 | $0 | $348,250 | $348,250 |
| 2017 | $226,600 | $65,000 | $0 | $291,600 | $291,600 |
| 2016 | $206,000 | $65,000 | $0 | $271,000 | $271,000 |
| 2015 | $206,000 | $65,000 | $0 | $271,000 | $271,000 |
| 2014 | $206,000 | $65,000 | $0 | $271,000 | $271,000 |
| 2013 | $206,000 | $65,000 | $0 | $271,000 | $271,000 |
| 2012 | $273,700 | $65,000 | $0 | $0 | $0 |
| 2011 | $204,100 | $65,000 | $0 | $0 | $0 |
| 2010 | $204,100 | $65,000 | $0 | $0 | $0 |
| 2009 | $218,300 | $65,000 | $0 | $0 | $0 |
| 2008 | $175,100 | $40,000 | $0 | $0 | $0 |
| 2007 | $175,100 | $40,000 | $0 | $0 | $0 |
Deed and Sales History
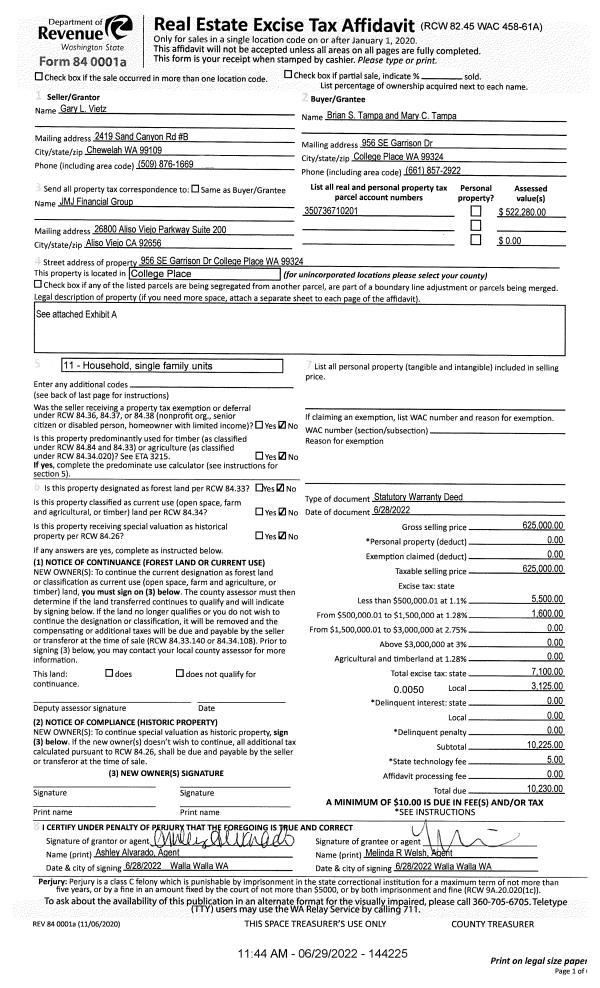
| 1 | 06/29/2022 | SWD | STATUTORY WARRANTY DEED | VIETZ GARY L | TAMPA BRIAN S & MARY C | | | $625,000.00 | 144225 | 2022-05483 |
| 2 | 08/03/2012 | WARRANTY D | WARRANTY DEED | LOMA LINDA UNIVERSITY | VIETZ, GARY L | | | $275,000.00 | 122449 | 2012-06642 |
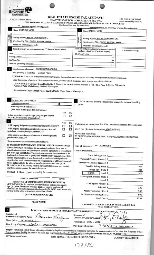
| 3 | 08/03/2012 | QCD | QUIT CLAIM DEED | VIETZ, PATRICIA | VIETZ, GARY L | | | $0.00 | 122450 | 2012-06643 |
| 4 | 06/23/2009 | WARRANTY D | WARRANTY DEED | KLEIN, JAMES D & MABEL K | LOMA LINDA UNIVERSITY | | | | 116907 | 2009-06314 |
| 5 | 02/12/2007 | QCD | QUIT CLAIM DEED | LOMA LINDA UNIVERSITY | KLEIN, JAMES D & MABEL K | | | | 112224 | 2007-01688 |
| 6 | 10/10/1995 | WARRANTY D | WARRANTY DEED | | | | | $200,000.00 | 84868 | 2349-509708 |
Payout Agreement
| No payout information available.. |