Property
Account |
| Property ID: | 27009 | Abbreviated Legal Description: | TRIPLE CREEK MEADOWS PHASE 2 LOT 18 BLOCK 3 |
| Parcel Number: | 360733980310 | Agent Code: | |
| Type: | Real | | |
| Tax Area: | 5 - OL-140 | Land Use Code | 11 |
| Open Space: | N | DFL | N |
| Historic Property: | N | Remodel Property: | N |
| Multi-Family Redevelopment: | N | | |
| Township: | 7 | Section: | 33 |
| Range: | 36 |
Location |
| Address: | 52 BUTTONQUAIL LN WA 99362 | Mapsco: | |
| Neighborhood: | G Res Rural/City Inf | Map ID: | |
| Neighborhood CD: | 614012 |
Owner |
| Name: | MAREAN JAMES C & SUSAN C | Owner ID: | 71607 |
| Mailing Address: | 52 BUTTONQUAIL LN WALLA WALLA, WA 99362 | % Ownership: | 100.0000000000% |
| | | Exemptions: | |
Taxes and Assessment Details
Property Tax Information as of
02/21/2026
Click on "Statement Details" to expand or collapse a tax statement.
* Please enter a valid date ** Please enter a valid date *
Statement Details |
| | TOTAL: | $0.00 | $0.00 | $0.00 | $0.00 | $0.00 | $0.00 |
|
| | $0.00 | $0.00 | $0.00 | $0.00 | $0.00 | $0.00 |
Values
| (+) Improvement Homesite Value: | + | $0 | |
| (+) Improvement Non-Homesite Value: | + | $443,990 | |
| (+) Land Homesite Value: | + | $0 | |
| (+) Land Non-Homesite Value: | + | $100,000 | |
| (+) Curr Use (HS): | + | $0 | $0 |
| (+) Curr Use (NHS): | + | $0 | $0 |
| | | -------------------------- | |
| (=) Market Value: | = | $543,990 | |
| (–) Productivity Loss: | – | $0 | |
| | | -------------------------- | |
| (=) Subtotal: | = | $543,990 | |
| (+) Senior Appraised Value: | + | $0 | |
| (+) Non-Senior Appraised Value: | + | $543,990 | |
| | | -------------------------- | |
| (=) Total Appraised Value: | = | $543,990 | |
| (–) Senior Exemption Loss: | – | $0 | |
| (–) Exemption Loss: | – | $0 | |
| | | -------------------------- | |
| (=) Taxable Value: | = | $543,990 | |
Taxing Jurisdiction
| Owner: | MAREAN JAMES C & SUSAN C | | |
| % Ownership: | 100.0000000000% | | |
| Total Value: | $543,990 | | |
| Tax Area: | 5 - OL-140 |
| CERFD | CURRENT EXPENSE REFUND 010 | 0.0000000000 | $543,990 | $543,990 | $0.00 | | |
| CURREXP | CURRENT EXPENSE 010 | 1.0175366760 | $543,990 | $543,990 | $553.53 | | |
| HUMNSERV | HUMAN SERVICES 119 | 0.0250000000 | $543,990 | $543,990 | $13.60 | | |
| SLDREL | SOLDIERS RELIEF 121 | 0.0155990005 | $543,990 | $543,990 | $8.49 | | |
| EMERGSER | EMS 147 | 0.3792580840 | $543,990 | $543,990 | $206.31 | | |
| EMSRFD | EMS REFUND 147 | 0.0000000000 | $543,990 | $543,990 | $0.00 | | |
| PORTRFD | PORT REFUND 640 | 0.0000000000 | $543,990 | $543,990 | $0.00 | | |
| PORTWWGEN | PORT OF WW 640 | 0.2460186015 | $543,990 | $543,990 | $133.83 | | |
| SD140BOND | SD #140 BOND 764 | 0.8342371393 | $543,990 | $543,990 | $453.82 | | |
| SD140GEN | SD #140 GENERAL 760 | 2.0646500647 | $543,990 | $543,990 | $1,123.15 | | |
| ST2 | STATE SCHOOL PART 2 600 | 0.8131451643 | $543,990 | $543,990 | $442.34 | | |
| STATESCHL | STATE SCHOOL 600 | 1.5158548041 | $543,990 | $543,990 | $824.61 | | |
| STREFUND | STATE REFUND LEVY 603 | 0.0000000000 | $543,990 | $543,990 | $0.00 | | |
| CWWBOND | C OF WW BOND 643 | 0.2760494372 | $543,990 | $543,990 | $150.17 | | |
| CWWGEN | CITY OF WW 631 | 1.6100204973 | $543,990 | $543,990 | $875.84 | | |
| CWWRFD | CITY OF WALLA WALLA REFUND 631 | 0.0000000000 | $543,990 | $543,990 | $0.00 | | |
| | Total Tax Rate: | 8.7973694689 | | | | | |
| | | | | Taxes w/Current Exemptions: | $4,785.69 | | |
| | | | | Taxes w/o Exemptions: | $4,785.69 | | |
Improvement / Building
| Improvement #1: | RESIDENTIAL | State Code: | 11 | 1819.0 sqft | Value: | $443,990 |
| Exterior Wall: | PLYWOOD | Heating/Cooling: | WARM & COOLED AIR | | Number of Bathrooms: | 2 | Number of Bedrooms: | 3 | | Plumbing: | 12 | Roof Covering: | COMP SHINGLE |
|
| | Type | Description | Class CD | Sub Class CD | Year Built | Area |
| | MA | Main Area | 1 | 35 | 2013 | 1819.0 |
| | ATG | Attached Garage | 1 | 35 | 2013 | 480.0 |
| | RPC | OPEN PORCH W/ROOF , CEILED | 1 | 35 | 2013 | 168.0 |
| | GFP | GAS FIREPLACE | 1 | 35 | 2013 | 1.0 |
| | SI1 | SITE IMPROVEMENT | 1 | 35 | 2013 | 3.5 |
Sketch
Property Image
Land
| 1 | RES 1 | Converted: Residential | 0.2215 | 9649.00 | 0.00 | 0.00 | 1.00 | $100,000 | $0 |
Roll Value History
| 2026 | N/A | N/A | N/A | N/A | N/A |
| 2025 | $375,030 | $125,000 | $0 | $500,030 | $500,030 |
| 2024 | $448,100 | $100,000 | $0 | $548,100 | $548,100 |
| 2023 | $443,990 | $100,000 | $0 | $543,990 | $543,990 |
| 2022 | $403,620 | $85,000 | $0 | $488,620 | $488,620 |
| 2021 | $310,480 | $85,000 | $0 | $395,480 | $395,480 |
| 2020 | $194,050 | $85,000 | $0 | $279,050 | $279,050 |
| 2019 | $194,050 | $85,000 | $0 | $279,050 | $279,050 |
| 2018 | $207,540 | $50,000 | $0 | $257,540 | $257,540 |
| 2017 | $207,540 | $50,000 | $0 | $257,540 | $257,540 |
| 2016 | $197,660 | $50,000 | $0 | $247,660 | $247,660 |
| 2015 | $197,660 | $50,000 | $0 | $247,660 | $247,660 |
| 2014 | $191,900 | $50,000 | $0 | $241,900 | $241,900 |
| 2013 | $0 | $50,000 | $0 | $50,000 | $50,000 |
| 2012 | $0 | $55,000 | $0 | $0 | $0 |
| 2011 | $0 | $55,000 | $0 | $0 | $0 |
| 2010 | $0 | $55,000 | $0 | $0 | $0 |
| 2009 | $0 | $65,000 | $0 | $0 | $0 |
| 2008 | $0 | $65,000 | $0 | $0 | $0 |
| 2007 | $0 | $50,000 | $0 | $0 | $0 |
Deed and Sales History
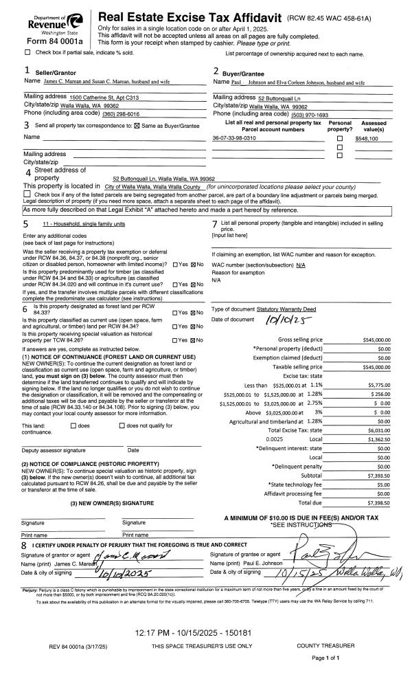
| 1 | 10/15/2025 | SWD | STATUTORY WARRANTY DEED | MAREAN JAMES C & SUSAN C | JOHNSON PAUL & ELVA CORLEEN | | | $545,000.00 | 150181 | 2025-06325 |
| 2 | 05/11/2022 | SWD | STATUTORY WARRANTY DEED | WILSON-SHORT PATRICIA LYNN REVOCABLE LIVING TRUST | MAREAN JAMES C & SUSAN C | | | $623,000.00 | 143918 | 2022-03993 |
| 3 | 11/09/2020 | QCD | QUIT CLAIM DEED | WILSON-SHORT PATRICIA L | WILSON-SHORT PATRICIA LYNN REVOCABLE LIVING TRUST | | | | 140294 | 2020-11787 |
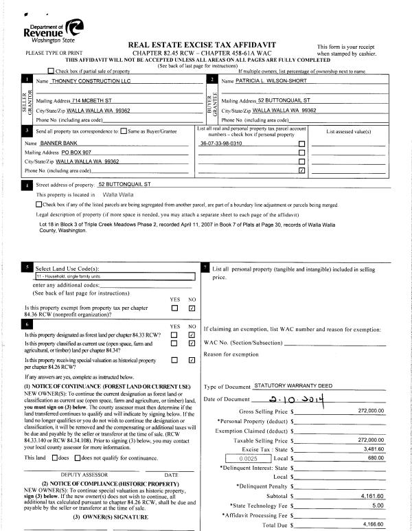
| 4 | 02/11/2014 | SWD | STATUTORY WARRANTY DEED | THONNEY CONSTRUCTION LLC | WILSON-SHORT PATRICIA L | | | $272,000.00 | 125418 | 2014-01036 |
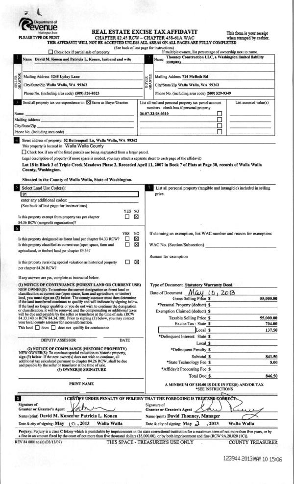
| 5 | 05/10/2013 | WARRANTY D | WARRANTY DEED | KONEN, DAVID M & PATRICIA L | THONNEY CONSTRUCTION LLC | | | $55,000.00 | 123944 | 2013-04712 |
| 6 | 05/26/2009 | WARRANTY D | WARRANTY DEED | "MAJERUS, DOUGLAS" | KONEN DAVID M & PATRICIA L | | | | 116788 | 2009-05256 |
Payout Agreement
| No payout information available.. |