Property
Account |
| Property ID: | 27008 | Abbreviated Legal Description: | TRIPLE CREEK MEADOWS PHASE 2 LOT 14 BLOCK 3 |
| Parcel Number: | 360733980306 | Agent Code: | |
| Type: | Real | | |
| Tax Area: | 5 - OL-140 | Land Use Code | 11 |
| Open Space: | N | DFL | N |
| Historic Property: | N | Remodel Property: | N |
| Multi-Family Redevelopment: | N | | |
| Township: | 7 | Section: | 33 |
| Range: | 36 |
Location |
| Address: | 360 AUSTIN ST WA 99362 | Mapsco: | |
| Neighborhood: | G Res Rural/City Inf | Map ID: | |
| Neighborhood CD: | 614012 |
Owner |
| Name: | EDWARDS ELTON L & FRITZI M | Owner ID: | 44689 |
| Mailing Address: | 360 AUSTIN ST WALLA WALLA, WA 99362 | % Ownership: | 100.0000000000% |
| | | Exemptions: | |
Taxes and Assessment Details
Values
| (+) Improvement Homesite Value: | + | $0 | |
| (+) Improvement Non-Homesite Value: | + | $291,620 | |
| (+) Land Homesite Value: | + | $0 | |
| (+) Land Non-Homesite Value: | + | $100,000 | |
| (+) Curr Use (HS): | + | $0 | $0 |
| (+) Curr Use (NHS): | + | $0 | $0 |
| | | -------------------------- | |
| (=) Market Value: | = | $391,620 | |
| (–) Productivity Loss: | – | $0 | |
| | | -------------------------- | |
| (=) Subtotal: | = | $391,620 | |
| (+) Senior Appraised Value: | + | $0 | |
| (+) Non-Senior Appraised Value: | + | $391,620 | |
| | | -------------------------- | |
| (=) Total Appraised Value: | = | $391,620 | |
| (–) Senior Exemption Loss: | – | $0 | |
| (–) Exemption Loss: | – | $0 | |
| | | -------------------------- | |
| (=) Taxable Value: | = | $391,620 | |
Taxing Jurisdiction
| Owner: | EDWARDS ELTON L & FRITZI M | | |
| % Ownership: | 100.0000000000% | | |
| Total Value: | $391,620 | | |
| Tax Area: | 5 - OL-140 |
| CERFD | CURRENT EXPENSE REFUND 010 | 0.0000000000 | $391,620 | $391,620 | $0.00 | | |
| CURREXP | CURRENT EXPENSE 010 | 1.0175366760 | $391,620 | $391,620 | $398.49 | | |
| HUMNSERV | HUMAN SERVICES 119 | 0.0250000000 | $391,620 | $391,620 | $9.79 | | |
| SLDREL | SOLDIERS RELIEF 121 | 0.0155990005 | $391,620 | $391,620 | $6.11 | | |
| EMERGSER | EMS 147 | 0.3792580840 | $391,620 | $391,620 | $148.53 | | |
| EMSRFD | EMS REFUND 147 | 0.0000000000 | $391,620 | $391,620 | $0.00 | | |
| PORTRFD | PORT REFUND 640 | 0.0000000000 | $391,620 | $391,620 | $0.00 | | |
| PORTWWGEN | PORT OF WW 640 | 0.2460186015 | $391,620 | $391,620 | $96.35 | | |
| SD140BOND | SD #140 BOND 764 | 0.8342371393 | $391,620 | $391,620 | $326.70 | | |
| SD140GEN | SD #140 GENERAL 760 | 2.0646500647 | $391,620 | $391,620 | $808.56 | | |
| ST2 | STATE SCHOOL PART 2 600 | 0.8131451643 | $391,620 | $391,620 | $318.44 | | |
| STATESCHL | STATE SCHOOL 600 | 1.5158548041 | $391,620 | $391,620 | $593.64 | | |
| STREFUND | STATE REFUND LEVY 603 | 0.0000000000 | $391,620 | $391,620 | $0.00 | | |
| CWWBOND | C OF WW BOND 643 | 0.2760494372 | $391,620 | $391,620 | $108.11 | | |
| CWWGEN | CITY OF WW 631 | 1.6100204973 | $391,620 | $391,620 | $630.52 | | |
| CWWRFD | CITY OF WALLA WALLA REFUND 631 | 0.0000000000 | $391,620 | $391,620 | $0.00 | | |
| | Total Tax Rate: | 8.7973694689 | | | | | |
| | | | | Taxes w/Current Exemptions: | $3,445.24 | | |
| | | | | Taxes w/o Exemptions: | $3,445.24 | | |
Improvement / Building
| Improvement #1: | RESIDENTIAL | State Code: | 11 | 1692.0 sqft | Value: | $291,620 |
| Exterior Wall: | HARDBOARD | Heating/Cooling: | WARM & COOLED AIR | | Number of Bathrooms: | 2 | Number of Bedrooms: | 3 | | Plumbing: | 10 | Roof Covering: | COMP SHINGLE |
|
| | Type | Description | Class CD | Sub Class CD | Year Built | Area |
| | MA | Main Area | 1 | 30 | 2015 | 1692.0 |
| | ATG | Attached Garage | 1 | 30 | 2015 | 594.0 |
| | SI1 | SITE IMPROVEMENT | 1 | 30 | 2015 | 3.0 |
| | RPC | OPEN PORCH W/ROOF , CEILED | 1 | 30 | 2015 | 44.0 |
| | RPC | OPEN PORCH W/ROOF , CEILED | 1 | 30 | 2015 | 144.0 |
| | GFP | GAS FIREPLACE | 1 | 30 | 2015 | 1.0 |
| | UTST | Utility Storage Shed | 1 | 30 | 2015 | 80.0 |
Sketch
Property Image
Land
| 1 | RES 1 | Converted: Residential | 0.2647 | 11531.00 | 0.00 | 0.00 | 1.00 | $100,000 | $0 |
Roll Value History
| 2026 | N/A | N/A | N/A | N/A | N/A |
| 2025 | $331,300 | $125,000 | $0 | $456,300 | $456,300 |
| 2024 | $306,200 | $100,000 | $0 | $406,200 | $406,200 |
| 2023 | $291,620 | $100,000 | $0 | $391,620 | $391,620 |
| 2022 | $277,740 | $85,000 | $0 | $362,740 | $362,740 |
| 2021 | $227,650 | $85,000 | $0 | $312,650 | $312,650 |
| 2020 | $189,710 | $85,000 | $0 | $274,710 | $274,710 |
| 2019 | $189,710 | $85,000 | $0 | $274,710 | $274,710 |
| 2018 | $187,980 | $50,000 | $0 | $237,980 | $237,980 |
| 2017 | $187,980 | $50,000 | $0 | $237,980 | $237,980 |
| 2016 | $179,030 | $50,000 | $0 | $229,030 | $229,030 |
| 2015 | $170,500 | $50,000 | $0 | $220,500 | $220,500 |
| 2014 | $0 | $50,000 | $0 | $50,000 | $50,000 |
| 2013 | $0 | $50,000 | $0 | $50,000 | $50,000 |
| 2012 | $0 | $55,000 | $0 | $0 | $0 |
| 2011 | $0 | $55,000 | $0 | $0 | $0 |
| 2010 | $0 | $55,000 | $0 | $0 | $0 |
| 2009 | $0 | $65,000 | $0 | $0 | $0 |
| 2008 | $0 | $65,000 | $0 | $0 | $0 |
| 2007 | $0 | $50,000 | $0 | $0 | $0 |
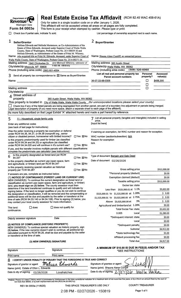
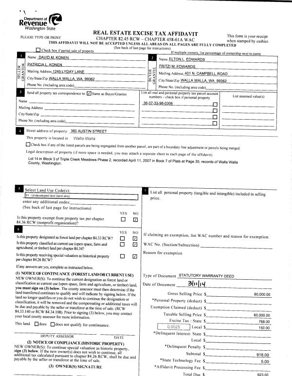
Deed and Sales History
| 1 | 10/24/2014 | QCD | QUIT CLAIM DEED | EDWARDS ELTON L & FRITZI M | EDWARDS ELTON L & FRITZI M | | | $0.00 | 126838 | 2014-07817 |
| 2 | 07/18/2014 | QCD | QUIT CLAIM DEED | EDWARDS ELTON L & FRITZI M | EDWARDS ELTON L & FRITZI M | | | | 126269 | 2014-05020 |
| 3 | 03/12/2014 | SWD | STATUTORY WARRANTY DEED | KONEN DAVID M & PATRICIA L | EDWARDS ELTON L & FRITZI M | | | $60,000.00 | 125546 | 2014-01653 |
| 4 | 05/26/2009 | WARRANTY D | WARRANTY DEED | "MAJERUS, DOUGLAS" | KONEN DAVID M & PATRICIA L | | | | 116788 | 2009-05256 |
Payout Agreement
| No payout information available.. |