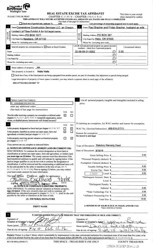
Property
Account |
| Property ID: | 26961 | Abbreviated Legal Description: | SEC 9 TWP 6 RNG 32 NE1/4SW1/4; S1/2SW1/4; NW1/4SE1/4 |
| Parcel Number: | 320609310002 | Agent Code: | |
| Type: | Real | | |
| Tax Area: | 316 - 300-6 | Land Use Code | 83 |
| Open Space: | Y | DFL | N |
| Historic Property: | N | Remodel Property: | N |
| Multi-Family Redevelopment: | N | | |
| Township: | 6 | Section: | 9 |
| Range: | 32 |
Location |
| Address: | POWELL POINT PL AND SQUIRREL DR WA 99360 | Mapsco: | |
| Neighborhood: | 0 Farm | Map ID: | |
| Neighborhood CD: | 2220 |
Owner |
| Name: | BRACHER PAUL & FRIDAY | Owner ID: | 59744 |
| Mailing Address: | PO BOX 387 HELIX, OR 97835 | % Ownership: | 100.0000000000% |
| | | Exemptions: | |
Taxes and Assessment Details
Property Tax Information as of
02/21/2026
Click on "Statement Details" to expand or collapse a tax statement.
* Please enter a valid date ** Please enter a valid date *
Statement Details |
| | TOTAL: | $0.00 | $0.00 | $0.00 | $0.00 | $0.00 | $0.00 |
|
| | $0.00 | $0.00 | $0.00 | $0.00 | $0.00 | $0.00 |
Values
| (+) Improvement Homesite Value: | + | $0 | |
| (+) Improvement Non-Homesite Value: | + | $0 | |
| (+) Land Homesite Value: | + | $0 | |
| (+) Land Non-Homesite Value: | + | $0 | |
| (+) Curr Use (HS): | + | $0 | $0 |
| (+) Curr Use (NHS): | + | $63,200 | $3,840 |
| | | -------------------------- | |
| (=) Market Value: | = | $63,200 | |
| (–) Productivity Loss: | – | $59,360 | |
| | | -------------------------- | |
| (=) Subtotal: | = | $3,840 | |
| (+) Senior Appraised Value: | + | $0 | |
| (+) Non-Senior Appraised Value: | + | $3,840 | |
| | | -------------------------- | |
| (=) Total Appraised Value: | = | $3,840 | |
| (–) Senior Exemption Loss: | – | $0 | |
| (–) Exemption Loss: | – | $0 | |
| | | -------------------------- | |
| (=) Taxable Value: | = | $3,840 | |
Taxing Jurisdiction
| Owner: | BRACHER PAUL & FRIDAY | | |
| % Ownership: | 100.0000000000% | | |
| Total Value: | $63,200 | | |
| Tax Area: | 316 - 300-6 |
| CERFD | CURRENT EXPENSE REFUND 010 | 0.0000000000 | $3,840 | $3,840 | $0.00 | | |
| CURREXP | CURRENT EXPENSE 010 | 1.0175366760 | $3,840 | $3,840 | $3.91 | | |
| HUMNSERV | HUMAN SERVICES 119 | 0.0250000000 | $3,840 | $3,840 | $0.10 | | |
| SLDREL | SOLDIERS RELIEF 121 | 0.0155990005 | $3,840 | $3,840 | $0.06 | | |
| EMERGSER | EMS 147 | 0.3792580840 | $3,840 | $3,840 | $1.46 | | |
| EMSRFD | EMS REFUND 147 | 0.0000000000 | $3,840 | $3,840 | $0.00 | | |
| FD6EXP | FD #6 EXPENSE 693 | 0.6692985746 | $3,840 | $3,840 | $2.57 | | |
| RLBRFD | RURAL LIBRARY REFUND 623 | 0.0000000000 | $3,840 | $3,840 | $0.00 | | |
| RURALLIB | RURAL LIBRARY 623 | 0.3710609029 | $3,840 | $3,840 | $1.42 | | |
| PORTRFD | PORT REFUND 640 | 0.0000000000 | $3,840 | $3,840 | $0.00 | | |
| PORTWWGEN | PORT OF WW 640 | 0.2460186015 | $3,840 | $3,840 | $0.94 | | |
| SD300BOND | SD #300 BOND 783 | 1.8964951620 | $3,840 | $3,840 | $7.28 | | |
| SD300GEN | SD #300 GENERAL 780 | 2.1198322866 | $3,840 | $3,840 | $8.14 | | |
| ST2 | STATE SCHOOL PART 2 600 | 0.8131451643 | $3,840 | $3,840 | $3.12 | | |
| STATESCHL | STATE SCHOOL 600 | 1.5158548041 | $3,840 | $3,840 | $5.82 | | |
| STREFUND | STATE REFUND LEVY 603 | 0.0000000000 | $3,840 | $3,840 | $0.00 | | |
| COROAD | COUNTY ROAD 115 | 1.6549953990 | $3,840 | $3,840 | $6.36 | | |
| CRPRD | COUNTY ROAD REFUND 115 | 0.0000000000 | $3,840 | $3,840 | $0.00 | | |
| | Total Tax Rate: | 10.7240946555 | | | | | |
| | | | | Taxes w/Current Exemptions: | $41.18 | | |
| | | | | Taxes w/o Exemptions: | $41.18 | | |
Improvement / Building
Sketch
| No sketches available for this property. |
Property Image
Land
| 1 | DLP | Dry Land Pasture | 160.0000 | 0.00 | 0.00 | 0.00 | 1.00 | $63,200 | $3,840 |
Roll Value History
| 2026 | N/A | N/A | N/A | N/A | N/A |
| 2025 | $0 | $63,200 | $3,360 | $3,360 | $3,360 |
| 2024 | $0 | $63,200 | $3,520 | $3,520 | $3,520 |
| 2023 | $0 | $63,200 | $3,840 | $3,840 | $3,840 |
| 2022 | $0 | $56,000 | $3,680 | $3,680 | $3,680 |
| 2021 | $0 | $56,000 | $3,520 | $3,520 | $3,520 |
| 2020 | $0 | $48,000 | $3,680 | $3,680 | $3,680 |
| 2019 | $0 | $48,000 | $3,680 | $3,680 | $3,680 |
| 2018 | $0 | $48,000 | $3,680 | $3,680 | $3,680 |
| 2017 | $0 | $48,000 | $3,840 | $3,840 | $3,840 |
| 2016 | $0 | $16,000 | $3,680 | $3,680 | $3,680 |
| 2015 | $0 | $16,000 | $3,200 | $3,200 | $3,200 |
| 2014 | $0 | $16,000 | $3,360 | $3,360 | $3,360 |
| 2013 | $0 | $16,000 | $3,000 | $3,000 | $3,000 |
| 2012 | $0 | $2,100 | $0 | $0 | $0 |
| 2011 | $0 | $1,900 | $0 | $0 | $0 |
| 2010 | $0 | $1,900 | $0 | $0 | $0 |
| 2009 | $0 | $1,600 | $0 | $0 | $0 |
| 2008 | $0 | $1,600 | $0 | $0 | $0 |
| 2007 | $0 | $1,600 | $0 | $0 | $0 |
Deed and Sales History
| 1 | 09/28/2018 | SWD | STATUTORY WARRANTY DEED | CORNERSTONE CONSTRUCTION SERVICES LLC | BRACHER PAUL & FRIDAY | | | | 135634 | 2018-08127 |
| 2 | 09/21/2018 | SWD | STATUTORY WARRANTY DEED | CORNERSTONE CONSTRUCTION SERVICES LLC | BRACHER PAUL & FRIDAY | | | $154,337.00 | 135588 | 2018-07875 |
| 3 | 11/10/2016 | SWD | STATUTORY WARRANTY DEED | BRACHER PAUL & FRIDAY | CORNERSTONE CONSTRUCTION SERVICES LLC | | | $147,000.00 | 131417 | 2016-09356 |
| 4 | 09/30/2016 | SWD | STATUTORY WARRANTY DEED | LIVINGSTON SHARON | BRACHER PAUL & FRIDAY | | | $145,000.00 | 131182 | 2016-08102 |
| 5 | 02/06/2009 | WARRANTY D | WARRANTY DEED | WOOD, MATTHEW & CINDY | LIVINGSTON, SHARON | | | $115,000.00 | 116301 | 2009-01098 |
| 6 | 01/01/1953 | WARRANTY D | WARRANTY DEED | | | | | $0.00 | 0 | 2670-367828 |
Payout Agreement
| No payout information available.. |