Property
Account |
| Property ID: | 26959 | Abbreviated Legal Description: | COLLEGE PLACE #2 LOT 2 SHORT PLAT 4/204 2005-16313 (PTN IN LOT 1 BLOCK 24) |
| Parcel Number: | 350735602427 | Agent Code: | |
| Type: | Real | | |
| Tax Area: | 75 - CP 250 | Land Use Code | 91 |
| Open Space: | N | DFL | N |
| Historic Property: | N | Remodel Property: | N |
| Multi-Family Redevelopment: | N | | |
| Township: | 7 | Section: | 35 |
| Range: | 35 |
Location |
| Address: | SW 6TH ST AND S COLLEGE AVE WA 99324 | Mapsco: | |
| Neighborhood: | A SFR Land Only | Map ID: | |
| Neighborhood CD: | 113091 |
Owner |
| Name: | MCEWEN JAMES ET AL | Owner ID: | 70067 |
| Mailing Address: | 129 CROSSCREEK RD WALLA WALLA, WA 99362 | % Ownership: | 100.0000000000% |
| | | Exemptions: | EX |
Taxes and Assessment Details
Property Tax Information as of
02/21/2026
Click on "Statement Details" to expand or collapse a tax statement.
* Please enter a valid date ** Please enter a valid date *
Statement Details |
| | TOTAL: | $0.00 | $0.00 | $0.00 | $0.00 | $0.00 | $0.00 |
|
| | $0.00 | $0.00 | $0.00 | $0.00 | $0.00 | $0.00 |
Values
| (+) Improvement Homesite Value: | + | $0 | |
| (+) Improvement Non-Homesite Value: | + | $0 | |
| (+) Land Homesite Value: | + | $0 | |
| (+) Land Non-Homesite Value: | + | $72,890 | |
| (+) Curr Use (HS): | + | $0 | $0 |
| (+) Curr Use (NHS): | + | $0 | $0 |
| | | -------------------------- | |
| (=) Market Value: | = | $72,890 | |
| (–) Productivity Loss: | – | $0 | |
| | | -------------------------- | |
| (=) Subtotal: | = | $72,890 | |
| (+) Senior Appraised Value: | + | $0 | |
| (+) Non-Senior Appraised Value: | + | $72,890 | |
| | | -------------------------- | |
| (=) Total Appraised Value: | = | $72,890 | |
| (–) Senior Exemption Loss: | – | $0 | |
| (–) Exemption Loss: | – | $72,890 | |
| | | -------------------------- | |
| (=) Taxable Value: | = | $0 | |
Taxing Jurisdiction
| Owner: | MCEWEN JAMES ET AL | | |
| % Ownership: | 100.0000000000% | | |
| Total Value: | $72,890 | | |
| Tax Area: | 75 - CP 250 |
| CERFD | CURRENT EXPENSE REFUND 010 | 0.0000000000 | $72,890 | $0 | $0.00 | | |
| CURREXP | CURRENT EXPENSE 010 | 1.0175366760 | $72,890 | $0 | $57.35 | | |
| HUMNSERV | HUMAN SERVICES 119 | 0.0250000000 | $72,890 | $0 | $1.41 | | |
| SLDREL | SOLDIERS RELIEF 121 | 0.0155990005 | $72,890 | $0 | $0.88 | | |
| COLLPLBOND | C OF CP BOND 644 | 0.4374241808 | $72,890 | $0 | $24.65 | | |
| COLLPLGEN | CITY OF CP 632 | 1.4453819216 | $72,890 | $0 | $81.46 | | |
| EMERGSER | EMS 147 | 0.3792580840 | $72,890 | $0 | $21.38 | | |
| EMSRFD | EMS REFUND 147 | 0.0000000000 | $72,890 | $0 | $0.00 | | |
| RURALLIB | RURAL LIBRARY 623 | 0.3710609029 | $72,890 | $0 | $20.91 | | |
| PORTRFD | PORT REFUND 640 | 0.0000000000 | $72,890 | $0 | $0.00 | | |
| PORTWWGEN | PORT OF WW 640 | 0.2460186015 | $72,890 | $0 | $13.87 | | |
| SD250BOND | SD #250 BOND 773 | 1.4560608159 | $72,890 | $0 | $82.06 | | |
| SD250GEN | SD #250 GENERAL 770 | 2.3880724087 | $72,890 | $0 | $134.59 | | |
| ST2 | STATE SCHOOL PART 2 600 | 0.8131451643 | $72,890 | $0 | $45.83 | | |
| STATESCHL | STATE SCHOOL 600 | 1.5158548041 | $72,890 | $0 | $85.43 | | |
| STREFUND | STATE REFUND LEVY 603 | 0.0000000000 | $72,890 | $0 | $0.00 | | |
| | Total Tax Rate: | 10.1104125603 | | | | | |
| | | | | Taxes w/Current Exemptions: | $569.82 | | |
| | | | | Taxes w/o Exemptions: | $736.94 | | |
Improvement / Building
Sketch
| No sketches available for this property. |
Property Image
Land
| 1 | RES 1 | Converted: Residential | 0.7121 | 31017.00 | 0.00 | 0.00 | 1.00 | $72,890 | $0 |
Roll Value History
| 2026 | N/A | N/A | N/A | N/A | N/A |
| 2025 | $0 | $115,380 | $0 | $115,380 | $0 |
| 2024 | $0 | $72,890 | $0 | $72,890 | $0 |
| 2023 | $0 | $72,890 | $0 | $72,890 | $0 |
| 2022 | $0 | $72,890 | $0 | $72,890 | $72,890 |
| 2021 | $0 | $72,890 | $0 | $72,890 | $72,890 |
| 2020 | $0 | $72,890 | $0 | $72,890 | $72,890 |
| 2019 | $0 | $65,000 | $0 | $65,000 | $65,000 |
| 2018 | $0 | $65,000 | $0 | $65,000 | $65,000 |
| 2017 | $0 | $65,000 | $0 | $65,000 | $65,000 |
| 2016 | $0 | $65,000 | $0 | $65,000 | $65,000 |
| 2015 | $0 | $65,000 | $0 | $65,000 | $65,000 |
| 2014 | $0 | $65,000 | $0 | $65,000 | $65,000 |
| 2013 | $0 | $65,000 | $0 | $65,000 | $65,000 |
| 2012 | $0 | $65,000 | $0 | $0 | $0 |
| 2011 | $0 | $65,000 | $0 | $0 | $0 |
| 2010 | $0 | $65,000 | $0 | $0 | $0 |
| 2009 | $0 | $65,000 | $0 | $0 | $0 |
| 2008 | $0 | $25,100 | $0 | $0 | $0 |
| 2007 | $0 | $25,100 | $0 | $0 | $0 |
Deed and Sales History
| 1 | 10/10/2024 | WARRANTY D | WARRANTY DEED | MCEWEN JAMES ET AL | COLLEGE PLACE CITY OF | | | | 148356 | 2024-05911 |
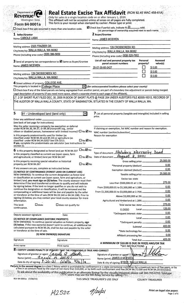
| 2 | 09/20/2021 | SWD | STATUTORY WARRANTY DEED | LASKI ROBERT L | MCEWEN JAMES ET AL | | | $25,000.00 | 142522 | 2021-11549 |
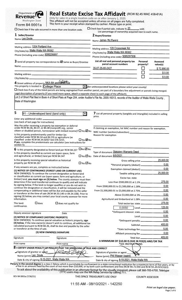
| 3 | 08/10/2021 | SWD | STATUTORY WARRANTY DEED | CARVER KRIS ET AL | MCEWEN JAMES ET AL | | | $25,000.00 | 142250 | 2021-09711 |
| 4 | 09/10/2020 | SWD | STATUTORY WARRANTY DEED | CARVER KRIS ET AL | | | | $12,500.00 | 139874 | 2020-09175 |
| 5 | 05/21/2007 | WARRANTY D | WARRANTY DEED | BROOKINS, WINFIELD R III | CARVER, KRIS ET AL | | | $205,000.00 | 112869 | 2007-05727 |
| 6 | 04/14/2006 | WARRANTY D | WARRANTY DEED | POIROT, JEHAN L & JUDITH D | BROOKINS, WINFIELD R III | | | $130,000.00 | 110040 | 2006-04259 |
Payout Agreement
| No payout information available.. |