Property
Account |
| Property ID: | 26917 | Abbreviated Legal Description: | 25-7-35 LOT 7 OF SHORT PLAT (NWLY PTN TAX 22 LY WITHIN NE1/4NE1/4) |
| Parcel Number: | 350725140036 | Agent Code: | |
| Type: | Real | | |
| Tax Area: | 1 - OL-140-F | Land Use Code | 11 |
| Open Space: | N | DFL | N |
| Historic Property: | N | Remodel Property: | N |
| Multi-Family Redevelopment: | N | | |
| Township: | 7 | Section: | 25 |
| Range: | 35 |
Location |
| Address: | 114 ARTESIA AVE WA 99362 | Mapsco: | |
| Neighborhood: | A SFR Rural/City Infl | Map ID: | |
| Neighborhood CD: | 313012 |
Owner |
| Name: | BISHOP BRIAN T & JESSICA E | Owner ID: | 64879 |
| Mailing Address: | 114 ARTESIA AVE WALLA WALLA, WA 99362 | % Ownership: | 100.0000000000% |
| | | Exemptions: | |
Taxes and Assessment Details
Values
| (+) Improvement Homesite Value: | + | $0 | |
| (+) Improvement Non-Homesite Value: | + | $165,290 | |
| (+) Land Homesite Value: | + | $0 | |
| (+) Land Non-Homesite Value: | + | $129,060 | |
| (+) Curr Use (HS): | + | $0 | $0 |
| (+) Curr Use (NHS): | + | $0 | $0 |
| | | -------------------------- | |
| (=) Market Value: | = | $294,350 | |
| (–) Productivity Loss: | – | $0 | |
| | | -------------------------- | |
| (=) Subtotal: | = | $294,350 | |
| (+) Senior Appraised Value: | + | $0 | |
| (+) Non-Senior Appraised Value: | + | $294,350 | |
| | | -------------------------- | |
| (=) Total Appraised Value: | = | $294,350 | |
| (–) Senior Exemption Loss: | – | $0 | |
| (–) Exemption Loss: | – | $0 | |
| | | -------------------------- | |
| (=) Taxable Value: | = | $294,350 | |
Taxing Jurisdiction
| Owner: | BISHOP BRIAN T & JESSICA E | | |
| % Ownership: | 100.0000000000% | | |
| Total Value: | $294,350 | | |
| Tax Area: | 1 - OL-140-F |
| CERFD | CURRENT EXPENSE REFUND 010 | 0.0000000000 | $294,350 | $294,350 | $0.00 | | |
| CURREXP | CURRENT EXPENSE 010 | 1.0175366760 | $294,350 | $294,350 | $299.51 | | |
| HUMNSERV | HUMAN SERVICES 119 | 0.0250000000 | $294,350 | $294,350 | $7.36 | | |
| SLDREL | SOLDIERS RELIEF 121 | 0.0155990005 | $294,350 | $294,350 | $4.59 | | |
| EMERGSER | EMS 147 | 0.3792580840 | $294,350 | $294,350 | $111.63 | | |
| EMSRFD | EMS REFUND 147 | 0.0000000000 | $294,350 | $294,350 | $0.00 | | |
| PORTRFD | PORT REFUND 640 | 0.0000000000 | $294,350 | $294,350 | $0.00 | | |
| PORTWWGEN | PORT OF WW 640 | 0.2460186015 | $294,350 | $294,350 | $72.42 | | |
| SD140BOND | SD #140 BOND 764 | 0.8342371393 | $294,350 | $294,350 | $245.56 | | |
| SD140GEN | SD #140 GENERAL 760 | 2.0646500647 | $294,350 | $294,350 | $607.73 | | |
| ST2 | STATE SCHOOL PART 2 600 | 0.8131451643 | $294,350 | $294,350 | $239.35 | | |
| STATESCHL | STATE SCHOOL 600 | 1.5158548041 | $294,350 | $294,350 | $446.19 | | |
| STREFUND | STATE REFUND LEVY 603 | 0.0000000000 | $294,350 | $294,350 | $0.00 | | |
| CWWBOND | C OF WW BOND 643 | 0.2760494372 | $294,350 | $294,350 | $81.26 | | |
| CWWGEN | CITY OF WW 631 | 1.6100204973 | $294,350 | $294,350 | $473.91 | | |
| CWWRFD | CITY OF WALLA WALLA REFUND 631 | 0.0000000000 | $294,350 | $294,350 | $0.00 | | |
| | Total Tax Rate: | 8.7973694689 | | | | | |
| | | | | Taxes w/Current Exemptions: | $2,589.51 | | |
| | | | | Taxes w/o Exemptions: | $2,589.51 | | |
Improvement / Building
| Improvement #1: | RESIDENTIAL | State Code: | 11 | 1346.0 sqft | Value: | $165,290 |
| Exterior Wall: | METAL/STEEL | Heating/Cooling: | WARM & COOLED AIR | | Number of Bathrooms: | 1 | Number of Bedrooms: | 3 | | Plumbing: | 6 | Roof Covering: | COMP SHINGLE |
|
| | Type | Description | Class CD | Sub Class CD | Year Built | Area |
| | MA | Main Area | 1 | 30 | 1880 | 1346.0 |
| | SI1 | SITE IMPROVEMENT | 1 | 30 | 0 | 1.5 |
| | DTG | Detached Garage | 1 | 30 | 1880 | 484.0 |
| | RPS | PORCH W/STEPS,ROOF | 1 | 30 | 1880 | 102.0 |
| | BARN | BARN-AVE | 1 | 30 | 1880 | 360.0 |
Sketch
Property Image
Land
| 1 | RES 1 | Converted: Residential | 0.9876 | 43020.00 | 0.00 | 0.00 | 1.00 | $129,060 | $0 |
Roll Value History
| 2026 | N/A | N/A | N/A | N/A | N/A |
| 2025 | $223,140 | $129,060 | $0 | $352,200 | $352,200 |
| 2024 | $165,290 | $129,060 | $0 | $294,350 | $294,350 |
| 2023 | $165,290 | $129,060 | $0 | $294,350 | $294,350 |
| 2022 | $165,290 | $129,060 | $0 | $294,350 | $294,350 |
| 2021 | $201,500 | $49,500 | $0 | $251,000 | $251,000 |
| 2020 | $143,930 | $49,500 | $0 | $193,430 | $193,430 |
| 2019 | $143,930 | $49,500 | $0 | $193,430 | $193,430 |
| 2018 | $143,930 | $49,500 | $0 | $193,430 | $193,430 |
| 2017 | $137,070 | $49,500 | $0 | $186,570 | $186,570 |
| 2016 | $124,610 | $49,500 | $0 | $174,110 | $174,110 |
| 2015 | $130,600 | $49,500 | $0 | $180,100 | $180,100 |
| 2014 | $130,600 | $49,500 | $0 | $180,100 | $180,100 |
| 2013 | $130,600 | $49,500 | $0 | $180,100 | $180,100 |
| 2012 | $130,600 | $49,500 | $0 | $0 | $0 |
| 2011 | $130,600 | $49,500 | $0 | $0 | $0 |
| 2010 | $95,100 | $49,500 | $0 | $0 | $0 |
| 2009 | $130,600 | $49,500 | $0 | $0 | $0 |
Deed and Sales History
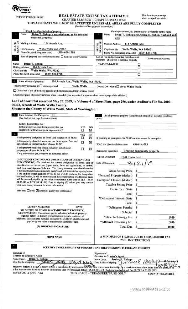
| 1 | 03/21/2019 | QCD | QUIT CLAIM DEED | BISHOP BRIAN T | BISHOP BRIAN T & JESSICA E | | | $0.00 | 136564 | 2019-01891 |
| 2 | 06/08/2009 | WARRANTY D | WARRANTY DEED | SIRMON, THAD REAL ESTATE LLC | BISHOP, BRIAN T | | | $185,500.00 | 116851 | 2009-05757 |
| 3 | 06/08/2009 | QCD | QUIT CLAIM DEED | BISHOP, JESSICA | BISHOP, BRIAN T | | | $0.00 | 116850 | 2009-05756 |
Payout Agreement
| No payout information available.. |