Property
Account |
| Property ID: | 26916 | Abbreviated Legal Description: | 25-7-35 LOT 4 OF SHORT PLAT (SELY PTN TAX 22 LY WITHIN NE1/4NE1/4) |
| Parcel Number: | 350725140033 | Agent Code: | |
| Type: | Real | | |
| Tax Area: | 1 - OL-140-F | Land Use Code | 11 |
| Open Space: | N | DFL | N |
| Historic Property: | N | Remodel Property: | N |
| Multi-Family Redevelopment: | N | | |
| Township: | 7 | Section: | 25 |
| Range: | 35 |
Location |
| Address: | 405 OFFNER RD WA 99362 | Mapsco: | |
| Neighborhood: | A-SFR | Map ID: | |
| Neighborhood CD: | 313011 |
Owner |
| Name: | FENTON MOLLIE S | Owner ID: | 12679 |
| Mailing Address: | 405 OFFNER RD WALLA WALLA, WA 99362 | % Ownership: | 100.0000000000% |
| | | Exemptions: | SNR/DSBL |
Taxes and Assessment Details
Property Tax Information as of
02/21/2026
Click on "Statement Details" to expand or collapse a tax statement.
* Please enter a valid date ** Please enter a valid date *
Statement Details |
| | TOTAL: | $0.00 | $0.00 | $0.00 | $0.00 | $0.00 | $0.00 |
|
| | $0.00 | $0.00 | $0.00 | $0.00 | $0.00 | $0.00 |
Values
| (+) Improvement Homesite Value: | + | $261,100 | |
| (+) Improvement Non-Homesite Value: | + | $0 | |
| (+) Land Homesite Value: | + | $65,750 | |
| (+) Land Non-Homesite Value: | + | $0 | |
| (+) Curr Use (HS): | + | $0 | $0 |
| (+) Curr Use (NHS): | + | $0 | $0 |
| | | -------------------------- | |
| (=) Market Value: | = | $326,850 | |
| (–) Productivity Loss: | – | $0 | |
| | | -------------------------- | |
| (=) Subtotal: | = | $326,850 | |
| (+) Senior Appraised Value: | + | $179,600 | |
| (+) Non-Senior Appraised Value: | + | $0 | |
| | | -------------------------- | |
| (=) Total Appraised Value: | = | $179,600 | |
| (–) Senior Exemption Loss: | – | $107,760 | |
| (–) Exemption Loss: | – | $0 | |
| | | -------------------------- | |
| (=) Taxable Value: | = | $71,840 | |
Taxing Jurisdiction
| Owner: | FENTON MOLLIE S | | |
| % Ownership: | 100.0000000000% | | |
| Total Value: | $326,850 | | |
| Tax Area: | 1 - OL-140-F |
| CERFD | CURRENT EXPENSE REFUND 010 | 0.0000000000 | $326,850 | $71,840 | $0.00 | | |
| CURREXP | CURRENT EXPENSE 010 | 1.0175366760 | $326,850 | $71,840 | $73.10 | | |
| HUMNSERV | HUMAN SERVICES 119 | 0.0250000000 | $326,850 | $71,840 | $1.80 | | |
| SLDREL | SOLDIERS RELIEF 121 | 0.0155990005 | $326,850 | $71,840 | $1.12 | | |
| EMERGSER | EMS 147 | 0.3792580840 | $326,850 | $71,840 | $27.25 | | |
| EMSRFD | EMS REFUND 147 | 0.0000000000 | $326,850 | $71,840 | $0.00 | | |
| PORTRFD | PORT REFUND 640 | 0.0000000000 | $326,850 | $71,840 | $0.00 | | |
| PORTWWGEN | PORT OF WW 640 | 0.2460186015 | $326,850 | $71,840 | $17.67 | | |
| SD140BOND | SD #140 BOND 764 | 0.0000000000 | $326,850 | $0 | $0.00 | | |
| SD140GEN | SD #140 GENERAL 760 | 0.0000000000 | $326,850 | $0 | $0.00 | | |
| ST2 | STATE SCHOOL PART 2 600 | 0.0000000000 | $326,850 | $0 | $0.00 | | |
| STATESCHL | STATE SCHOOL 600 | 1.5158548041 | $326,850 | $71,840 | $108.90 | | |
| STREFUND | STATE REFUND LEVY 603 | 0.0000000000 | $326,850 | $71,840 | $0.00 | | |
| CWWBOND | C OF WW BOND 643 | 0.0000000000 | $326,850 | $0 | $0.00 | | |
| CWWGEN | CITY OF WW 631 | 1.6100204973 | $326,850 | $71,840 | $115.66 | | |
| CWWRFD | CITY OF WALLA WALLA REFUND 631 | 0.0000000000 | $326,850 | $71,840 | $0.00 | | |
| | Total Tax Rate: | 4.8092876634 | | | | | |
| | | | | Taxes w/Current Exemptions: | $345.50 | | |
| | | | | Taxes w/o Exemptions: | $2,875.43 | | |
Improvement / Building
| Improvement #1: | RESIDENTIAL | State Code: | 11 | 1377.0 sqft | Value: | $261,100 |
| Exterior Wall: | PLYWOOD | Heating/Cooling: | WARM & COOLED AIR | | Number of Bathrooms: | 2 | Number of Bedrooms: | 3 | | Plumbing: | 10 | Roof Covering: | COMP SHINGLE |
|
| | Type | Description | Class CD | Sub Class CD | Year Built | Area |
| | MA | Main Area | 1 | 30 | 2011 | 1377.0 |
| | SI1 | SITE IMPROVEMENT | 1 | 30 | 2011 | 1.5 |
| | DTG | Detached Garage | 1 | 30 | 2011 | 484.0 |
| | RPC | OPEN PORCH W/ROOF , CEILED | 1 | 30 | 2011 | 95.0 |
| | OSP | Open | 1 | 30 | 2011 | 245.0 |
| | BRW | BREEZEWAY | 1 | 30 | 2011 | 286.0 |
Sketch
Property Image
Land
| 1 | RES 1 | Converted: Residential | 0.2188 | 9529.00 | 0.00 | 0.00 | 1.00 | $65,750 | $0 |
Roll Value History
| 2026 | N/A | N/A | N/A | N/A | N/A |
| 2025 | $287,210 | $65,750 | $0 | $352,960 | $71,840 |
| 2024 | $287,210 | $65,750 | $0 | $352,960 | $71,840 |
| 2023 | $261,100 | $65,750 | $0 | $326,850 | $71,840 |
| 2022 | $208,880 | $65,750 | $0 | $274,630 | $71,840 |
| 2021 | $204,750 | $60,000 | $0 | $264,750 | $71,840 |
| 2020 | $152,800 | $60,000 | $0 | $212,800 | $71,840 |
| 2019 | $152,800 | $60,000 | $0 | $212,800 | $71,840 |
| 2018 | $132,870 | $60,000 | $0 | $192,870 | $71,840 |
| 2017 | $126,550 | $60,000 | $0 | $186,550 | $71,840 |
| 2016 | $110,040 | $60,000 | $0 | $170,040 | $68,016 |
| 2015 | $105,200 | $60,000 | $0 | $165,200 | $66,080 |
| 2014 | $105,200 | $60,000 | $0 | $165,200 | $66,080 |
| 2013 | $105,200 | $60,000 | $0 | $165,200 | $66,080 |
| 2012 | $0 | $46,700 | $0 | $0 | $0 |
| 2011 | $0 | $24,300 | $0 | $0 | $0 |
| 2010 | $0 | $24,000 | $0 | $0 | $0 |
| 2009 | $105,200 | $60,000 | $0 | $0 | $0 |
Deed and Sales History
| 1 | 12/11/2020 | QCD | QUIT CLAIM DEED | FENTON MOLLIE S LIFE ESTATE | FENTON MOLLIE S | | | $0.00 | 141282 | 2021-04084 |
| 2 | 03/27/2019 | QCD | QUIT CLAIM DEED | FENTON MOLLIE | FENTON MOLLIE S LIFE ESTATE | | | $0.00 | 136572 | 2019-01930 |
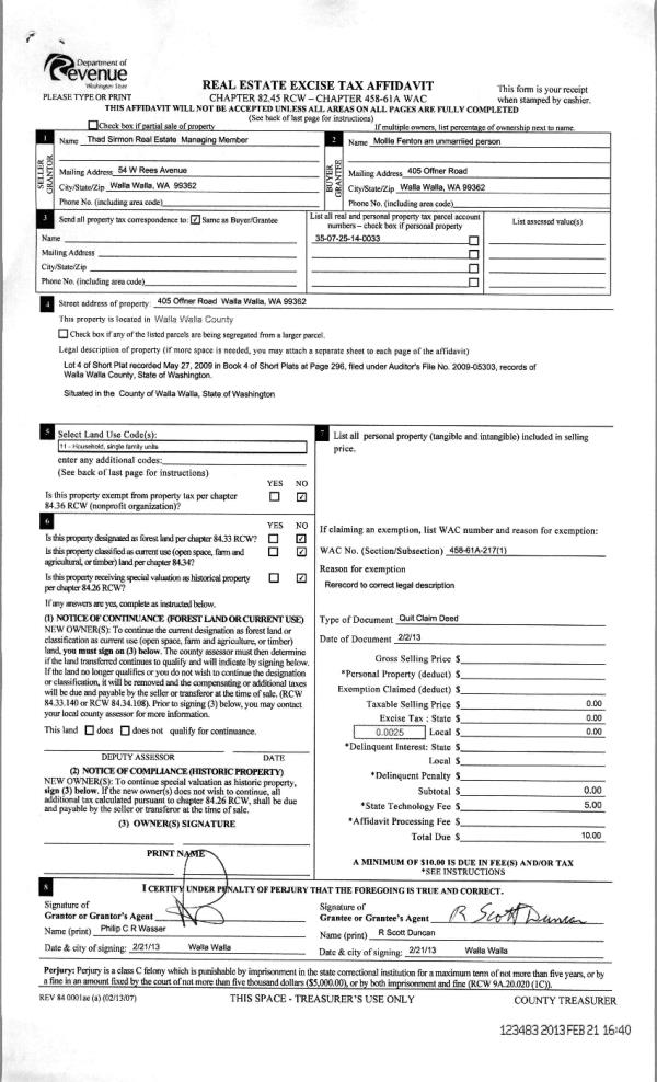
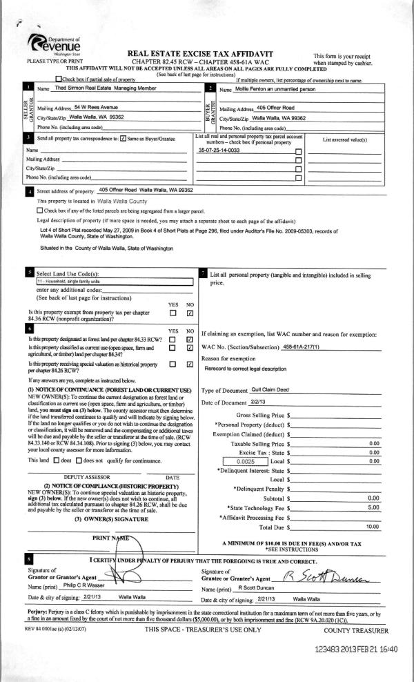
| 3 | 02/21/2013 | WARRANTY D | WARRANTY DEED | SIRMON, THAD REAL ESTATE LLC | FENTON, MOLLIE | | | $0.00 | 123283 | 2013-01572 |
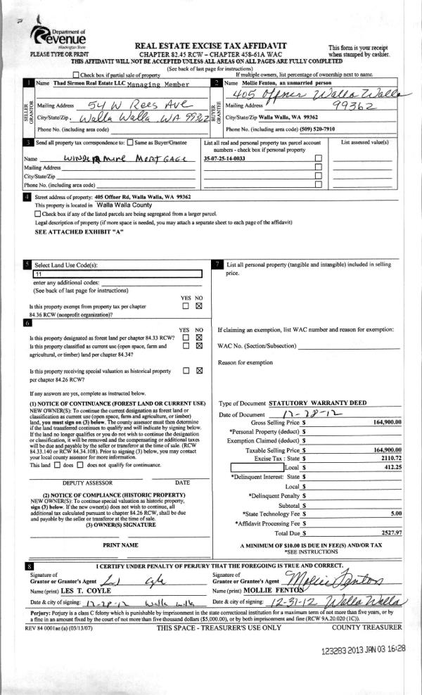
| 4 | 01/03/2013 | WARRANTY D | WARRANTY DEED | SIRMON, THAD REAL ESTATE LLC | FENTON, MOLLIE | | | $164,900.00 | 123283 | 2013-00080 |
Payout Agreement
| No payout information available.. |