Property
Account |
| Property ID: | 26876 | Abbreviated Legal Description: | WALNUT GROVE LOTS 2 & 3 & 4 BLK 10; TAX 1 LOT 4 BLK 10 |
| Parcel Number: | 360720781002 | Agent Code: | |
| Type: | Real | | |
| Tax Area: | 1 - OL-140-F | Land Use Code | 11 |
| Open Space: | N | DFL | N |
| Historic Property: | N | Remodel Property: | N |
| Multi-Family Redevelopment: | N | | |
| Township: | 7 | Section: | 20 |
| Range: | 36 |
Location |
| Address: | 603 E CHERRY ST WA 99362 | Mapsco: | |
| Neighborhood: | A-Inferior SFR | Map ID: | |
| Neighborhood CD: | 513111 |
Owner |
| Name: | WOOD KYLE I & STEPHANIE R | Owner ID: | 71871 |
| Mailing Address: | 5307 BONITA AVE DALLAS, TX 75206 | % Ownership: | 100.0000000000% |
| | | Exemptions: | |
Taxes and Assessment Details
Property Tax Information as of
02/21/2026
Click on "Statement Details" to expand or collapse a tax statement.
* Please enter a valid date ** Please enter a valid date *
Statement Details |
| | TOTAL: | $0.00 | $0.00 | $0.00 | $0.00 | $0.00 | $0.00 |
|
| | $0.00 | $0.00 | $0.00 | $0.00 | $0.00 | $0.00 |
Values
| (+) Improvement Homesite Value: | + | $0 | |
| (+) Improvement Non-Homesite Value: | + | $406,280 | |
| (+) Land Homesite Value: | + | $0 | |
| (+) Land Non-Homesite Value: | + | $66,470 | |
| (+) Curr Use (HS): | + | $0 | $0 |
| (+) Curr Use (NHS): | + | $0 | $0 |
| | | -------------------------- | |
| (=) Market Value: | = | $472,750 | |
| (–) Productivity Loss: | – | $0 | |
| | | -------------------------- | |
| (=) Subtotal: | = | $472,750 | |
| (+) Senior Appraised Value: | + | $0 | |
| (+) Non-Senior Appraised Value: | + | $472,750 | |
| | | -------------------------- | |
| (=) Total Appraised Value: | = | $472,750 | |
| (–) Senior Exemption Loss: | – | $0 | |
| (–) Exemption Loss: | – | $0 | |
| | | -------------------------- | |
| (=) Taxable Value: | = | $472,750 | |
Taxing Jurisdiction
| Owner: | WOOD KYLE I & STEPHANIE R | | |
| % Ownership: | 100.0000000000% | | |
| Total Value: | $472,750 | | |
| Tax Area: | 1 - OL-140-F |
| CERFD | CURRENT EXPENSE REFUND 010 | 0.0000000000 | $472,750 | $472,750 | $0.00 | | |
| CURREXP | CURRENT EXPENSE 010 | 1.0175366760 | $472,750 | $472,750 | $481.04 | | |
| HUMNSERV | HUMAN SERVICES 119 | 0.0250000000 | $472,750 | $472,750 | $11.82 | | |
| SLDREL | SOLDIERS RELIEF 121 | 0.0155990005 | $472,750 | $472,750 | $7.37 | | |
| EMERGSER | EMS 147 | 0.3792580840 | $472,750 | $472,750 | $179.29 | | |
| EMSRFD | EMS REFUND 147 | 0.0000000000 | $472,750 | $472,750 | $0.00 | | |
| PORTRFD | PORT REFUND 640 | 0.0000000000 | $472,750 | $472,750 | $0.00 | | |
| PORTWWGEN | PORT OF WW 640 | 0.2460186015 | $472,750 | $472,750 | $116.31 | | |
| SD140BOND | SD #140 BOND 764 | 0.8342371393 | $472,750 | $472,750 | $394.39 | | |
| SD140GEN | SD #140 GENERAL 760 | 2.0646500647 | $472,750 | $472,750 | $976.06 | | |
| ST2 | STATE SCHOOL PART 2 600 | 0.8131451643 | $472,750 | $472,750 | $384.41 | | |
| STATESCHL | STATE SCHOOL 600 | 1.5158548041 | $472,750 | $472,750 | $716.62 | | |
| STREFUND | STATE REFUND LEVY 603 | 0.0000000000 | $472,750 | $472,750 | $0.00 | | |
| CWWBOND | C OF WW BOND 643 | 0.2760494372 | $472,750 | $472,750 | $130.50 | | |
| CWWGEN | CITY OF WW 631 | 1.6100204973 | $472,750 | $472,750 | $761.14 | | |
| CWWRFD | CITY OF WALLA WALLA REFUND 631 | 0.0000000000 | $472,750 | $472,750 | $0.00 | | |
| | Total Tax Rate: | 8.7973694689 | | | | | |
| | | | | Taxes w/Current Exemptions: | $4,158.95 | | |
| | | | | Taxes w/o Exemptions: | $4,158.95 | | |
Improvement / Building
| Improvement #1: | RESIDENTIAL | State Code: | 11 | 1186.0 sqft | Value: | $406,280 |
| Exterior Wall: | SIDING | Heating/Cooling: | WARM & COOLED AIR | | Number of Bathrooms: | 4 | Number of Bedrooms: | 2 | | Plumbing: | 11 | Roof Covering: | COMP SHINGLE |
|
| | Type | Description | Class CD | Sub Class CD | Year Built | Area |
| | MA | Main Area | 1 | 35 | 1898 | 1186.0 |
| | RPC | OPEN PORCH W/ROOF , CEILED | 1 | 35 | 1898 | 202.0 |
| | SI1 | SITE IMPROVEMENT | 1 | 35 | 1898 | 1.0 |
| | WDR | WOOD DECK W/ROOF | 1 | 35 | 1898 | 252.0 |
| | BASE | BASEMENT | 1 | 35 | 1898 | 1350.0 |
| | BPF | BASEMENT -PARTITIONED FINISH | 1 | 35 | 1898 | 1350.0 |
| | CPC | COVERED CARPORT/PATIO | 1 | 35 | 1898 | 252.0 |
| | EWS | EXT WOOD STAIRS | 1 | 35 | 1898 | 1.0 |
Sketch
Property Image
Land
| 1 | RES 1 | Converted: Residential | 0.4059 | 17679.00 | 0.00 | 0.00 | 1.00 | $66,470 | $0 |
Roll Value History
| 2026 | N/A | N/A | N/A | N/A | N/A |
| 2025 | $371,870 | $105,880 | $0 | $477,750 | $477,750 |
| 2024 | $354,160 | $105,880 | $0 | $460,040 | $460,040 |
| 2023 | $406,280 | $66,470 | $0 | $472,750 | $472,750 |
| 2022 | $406,280 | $66,800 | $0 | $473,080 | $473,080 |
| 2021 | $145,100 | $66,800 | $0 | $211,900 | $211,900 |
| 2020 | $111,620 | $66,800 | $0 | $178,420 | $178,420 |
| 2019 | $111,620 | $66,800 | $0 | $178,420 | $178,420 |
| 2018 | $106,300 | $66,800 | $0 | $173,100 | $173,100 |
| 2017 | $42,130 | $46,200 | $0 | $88,330 | $88,330 |
| 2016 | $42,130 | $46,200 | $0 | $88,330 | $88,330 |
| 2015 | $42,130 | $46,200 | $0 | $88,330 | $88,330 |
| 2014 | $41,300 | $46,200 | $0 | $87,500 | $87,500 |
| 2013 | $41,300 | $46,200 | $0 | $87,500 | $87,500 |
| 2012 | $41,300 | $46,200 | $0 | $0 | $0 |
| 2011 | $41,300 | $46,200 | $0 | $0 | $0 |
| 2010 | $41,300 | $46,200 | $0 | $0 | $0 |
| 2009 | $51,000 | $46,200 | $0 | $0 | $0 |
| 2008 | $70,000 | $27,200 | $0 | $0 | $0 |
| 2007 | $70,000 | $27,200 | $0 | $0 | $0 |
Deed and Sales History
| 1 | 09/05/2025 | QCD | QUIT CLAIM DEED | WOOD KYLE I & STEPHANIE R | CHERRY PARK MANOR LLC | | | | 149971 | 2025-05376 |
| 2 | 09/13/2022 | QCD | QUIT CLAIM DEED | THRONSON VIRGINIA K LIFE ESTATE | WOOD KYLE I & STEPHANIE R | | | $0.00 | 144678 | 2022-07645 |
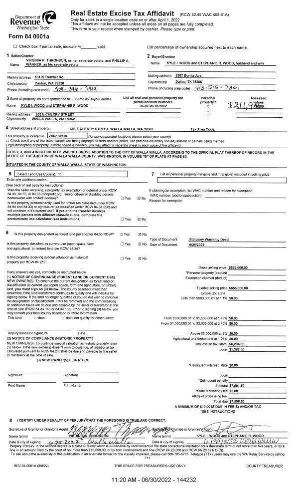
| 3 | 06/30/2022 | SWD | STATUTORY WARRANTY DEED | THRONSON VIRGINIA K LIFE ESTATE | WOOD KYLE I & STEPHANIE R | | | $555,000.00 | 144232 | 2022-05539 |
| 4 | 04/29/2009 | QCD | QUIT CLAIM DEED | WAHNER, GINGER K | THRONSON, VIRGINIA K LIFE ESTA | | | | 116676 | 2009-04269 |
| 5 | 06/13/2005 | QCD | QUIT CLAIM DEED | WAHNER, DOUGLAS J | WAHNER, GINGER K | | | | 107701 | 2005-07088 |
| 6 | 06/11/1980 | WARRANTY D | WARRANTY DEED | | | | | $0.00 | 0 | 1228-004569 |
Payout Agreement
| No payout information available.. |