Property
Account |
| Property ID: | 26851 | Abbreviated Legal Description: | MCRAE LOT 1 BLK 1 |
| Parcel Number: | 350736570101 | Agent Code: | |
| Type: | Real | | |
| Tax Area: | 75 - CP 250 | Land Use Code | 11 |
| Open Space: | N | DFL | N |
| Historic Property: | N | Remodel Property: | N |
| Multi-Family Redevelopment: | N | | |
| Township: | 7 | Section: | 36 |
| Range: | 35 |
Location |
| Address: | 1024 SE DATE AVE WA 99324 | Mapsco: | |
| Neighborhood: | A SFR | Map ID: | |
| Neighborhood CD: | 113011 |
Owner |
| Name: | VAUGHAN ANTHONY JOEL & RODAWNA LYN | Owner ID: | 70614 |
| Mailing Address: | 1024 SE DATE AVE COLLEGE PLACE, WA 99324 | % Ownership: | 100.0000000000% |
| | | Exemptions: | |
Taxes and Assessment Details
Property Tax Information as of
02/21/2026
Click on "Statement Details" to expand or collapse a tax statement.
* Please enter a valid date ** Please enter a valid date *
Statement Details |
| | TOTAL: | $0.00 | $0.00 | $0.00 | $0.00 | $0.00 | $0.00 |
|
| | $0.00 | $0.00 | $0.00 | $0.00 | $0.00 | $0.00 |
Values
| (+) Improvement Homesite Value: | + | $0 | |
| (+) Improvement Non-Homesite Value: | + | $285,840 | |
| (+) Land Homesite Value: | + | $0 | |
| (+) Land Non-Homesite Value: | + | $57,380 | |
| (+) Curr Use (HS): | + | $0 | $0 |
| (+) Curr Use (NHS): | + | $0 | $0 |
| | | -------------------------- | |
| (=) Market Value: | = | $343,220 | |
| (–) Productivity Loss: | – | $0 | |
| | | -------------------------- | |
| (=) Subtotal: | = | $343,220 | |
| (+) Senior Appraised Value: | + | $0 | |
| (+) Non-Senior Appraised Value: | + | $343,220 | |
| | | -------------------------- | |
| (=) Total Appraised Value: | = | $343,220 | |
| (–) Senior Exemption Loss: | – | $0 | |
| (–) Exemption Loss: | – | $0 | |
| | | -------------------------- | |
| (=) Taxable Value: | = | $343,220 | |
Taxing Jurisdiction
| Owner: | VAUGHAN ANTHONY JOEL & RODAWNA LYN | | |
| % Ownership: | 100.0000000000% | | |
| Total Value: | $343,220 | | |
| Tax Area: | 75 - CP 250 |
| CERFD | CURRENT EXPENSE REFUND 010 | 0.0000000000 | $343,220 | $343,220 | $0.00 | | |
| CURREXP | CURRENT EXPENSE 010 | 1.0175366760 | $343,220 | $343,220 | $349.24 | | |
| HUMNSERV | HUMAN SERVICES 119 | 0.0250000000 | $343,220 | $343,220 | $8.58 | | |
| SLDREL | SOLDIERS RELIEF 121 | 0.0155990005 | $343,220 | $343,220 | $5.35 | | |
| COLLPLBOND | C OF CP BOND 644 | 0.4374241808 | $343,220 | $343,220 | $150.13 | | |
| COLLPLGEN | CITY OF CP 632 | 1.4453819216 | $343,220 | $343,220 | $496.08 | | |
| EMERGSER | EMS 147 | 0.3792580840 | $343,220 | $343,220 | $130.17 | | |
| EMSRFD | EMS REFUND 147 | 0.0000000000 | $343,220 | $343,220 | $0.00 | | |
| RURALLIB | RURAL LIBRARY 623 | 0.3710609029 | $343,220 | $343,220 | $127.36 | | |
| PORTRFD | PORT REFUND 640 | 0.0000000000 | $343,220 | $343,220 | $0.00 | | |
| PORTWWGEN | PORT OF WW 640 | 0.2460186015 | $343,220 | $343,220 | $84.44 | | |
| SD250BOND | SD #250 BOND 773 | 1.4560608159 | $343,220 | $343,220 | $499.75 | | |
| SD250GEN | SD #250 GENERAL 770 | 2.3880724087 | $343,220 | $343,220 | $819.63 | | |
| ST2 | STATE SCHOOL PART 2 600 | 0.8131451643 | $343,220 | $343,220 | $279.09 | | |
| STATESCHL | STATE SCHOOL 600 | 1.5158548041 | $343,220 | $343,220 | $520.27 | | |
| STREFUND | STATE REFUND LEVY 603 | 0.0000000000 | $343,220 | $343,220 | $0.00 | | |
| | Total Tax Rate: | 10.1104125603 | | | | | |
| | | | | Taxes w/Current Exemptions: | $3,470.09 | | |
| | | | | Taxes w/o Exemptions: | $3,470.09 | | |
Improvement / Building
| Improvement #1: | RESIDENTIAL | State Code: | 11 | 1380.0 sqft | Value: | $285,840 |
| Exterior Wall: | PLYWOOD | Heating/Cooling: | WARM & COOLED AIR | | Number of Bathrooms: | 2 | Number of Bedrooms: | 3 | | Plumbing: | 9 | Roof Covering: | COMP SHINGLE |
|
| | Type | Description | Class CD | Sub Class CD | Year Built | Area |
| | MA | Main Area | 1 | 30 | 1970 | 1380.0 |
| | SI1 | SITE IMPROVEMENT | 1 | 30 | 1970 | 2.5 |
| | ATG | Attached Garage | 1 | 30 | 1970 | 400.0 |
| | WOD | Wood Deck | 1 | 30 | 1970 | 425.0 |
| | RPO | OPEN PORCH W/ROOF | 1 | 30 | 1970 | 40.0 |
| | S1F | Single One Story Fireplace | 1 | 30 | 1970 | 1.0 |
| | WOD | Wood Deck | 1 | 30 | 2007 | 96.0 |
| | RPO | OPEN PORCH W/ROOF | 1 | 30 | 2007 | 60.0 |
| | RPS | PORCH W/STEPS,ROOF | 1 | 30 | 2007 | 100.0 |
| | UTST | Utility Storage Shed | 1 | 30 | 2007 | 126.0 |
Sketch
Property Image
Land
| 1 | RES 1 | Converted: Residential | 0.1951 | 8500.00 | 0.00 | 0.00 | 1.00 | $57,380 | $0 |
Roll Value History
| 2026 | N/A | N/A | N/A | N/A | N/A |
| 2025 | $285,840 | $85,000 | $0 | $370,840 | $370,840 |
| 2024 | $285,840 | $57,380 | $0 | $343,220 | $343,220 |
| 2023 | $285,840 | $57,380 | $0 | $343,220 | $343,220 |
| 2022 | $269,280 | $57,380 | $0 | $326,660 | $326,660 |
| 2021 | $189,700 | $57,380 | $0 | $247,080 | $247,080 |
| 2020 | $140,520 | $57,380 | $0 | $197,900 | $197,900 |
| 2019 | $152,000 | $45,900 | $0 | $197,900 | $197,900 |
| 2018 | $144,760 | $45,900 | $0 | $190,660 | $190,660 |
| 2017 | $120,640 | $45,900 | $0 | $166,540 | $166,540 |
| 2016 | $109,670 | $45,900 | $0 | $155,570 | $155,570 |
| 2015 | $99,700 | $45,900 | $0 | $145,600 | $145,600 |
| 2014 | $99,700 | $45,900 | $0 | $145,600 | $145,600 |
| 2013 | $99,700 | $45,900 | $0 | $145,600 | $145,600 |
| 2012 | $99,700 | $45,900 | $0 | $0 | $0 |
| 2011 | $99,700 | $45,900 | $0 | $0 | $0 |
| 2010 | $107,400 | $45,900 | $0 | $0 | $0 |
| 2009 | $125,700 | $45,900 | $0 | $0 | $0 |
| 2008 | $124,900 | $23,400 | $0 | $0 | $0 |
| 2007 | $124,900 | $23,400 | $0 | $0 | $0 |
Deed and Sales History
| 1 | 11/15/2021 | SWD | STATUTORY WARRANTY DEED | ROSE KENNETH D & LANA D | VAUGHAN ANTHONY JOEL & RODAWNA LYN | | | $330,000.00 | 142873 | 2021-13600 |
| 2 | 01/02/2020 | QCD | QUIT CLAIM DEED | ROSE KENNETH D | ROSE KENNETH D & LANA D | | | | 138350 | 2020-00036 |
| 3 | 01/02/2020 | QCD | QUIT CLAIM DEED | WOODLAND BARBARA J 1/4 (ET AL) | ROSE KENNETH D & LANA D | | | $165,000.00 | 138349 | 2020-00035 |
| 4 | 10/11/2019 | DPR | DEED OF PERSONAL REPRESENTATIVE | ROSE GROVER A | WOODLAND BARBARA J 1/4 (ET AL) | | | $0.00 | 137865 | 2019-08145 |
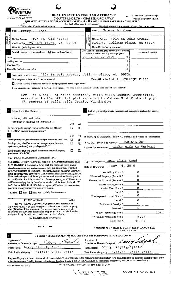
| 5 | 05/14/2010 | QCD | QUIT CLAIM DEED | ROSE, BETTY J | ROSE, GROVER A | | | | 118473 | 2010-03740 |
| 6 | 05/14/2009 | WARRANTY D | WARRANTY DEED | CHRISTENSEN, STANLEY D | ROSE, GROVER A & BETTY J | | | $155,000.00 | 116737 | 2009-04803 |
| 7 | 02/10/2009 | WARRANTY D | WARRANTY DEED | RUSSO, DONALD SUCCESSOR TRUSTE | CHRISTENSEN, STANLEY D | | | $110,000.00 | 116310 | 2009-01209 |
| 8 | 03/25/2004 | WARRANTY D | WARRANTY DEED | GREENLEY, WILLIAM M & ALLINE J | 1024 LLC | | | $155,500.00 | 104356 | 2004-03135 |
| 9 | 07/06/1979 | QCD | QUIT CLAIM DEED | | | | | $23,500.00 | 0 | 1077-906313 |
Payout Agreement
| No payout information available.. |