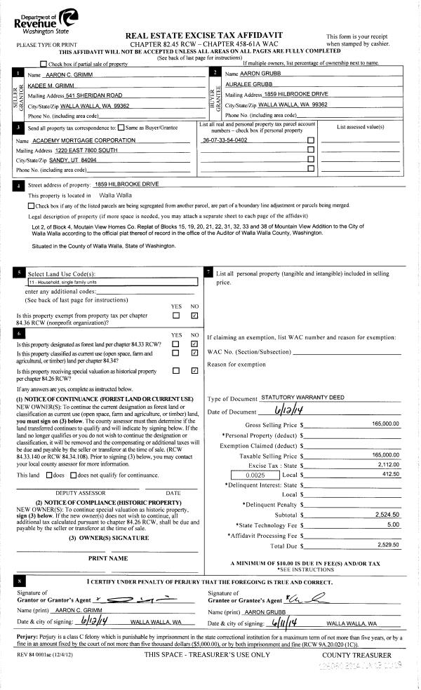
Property
Account |
| Property ID: | 26844 | Abbreviated Legal Description: | MT VIEW REPLAT LOT 2 BLK 4 |
| Parcel Number: | 360733540402 | Agent Code: | |
| Type: | Real | | |
| Tax Area: | 1 - OL-140-F | Land Use Code | 11 |
| Open Space: | N | DFL | N |
| Historic Property: | N | Remodel Property: | N |
| Multi-Family Redevelopment: | N | | |
| Township: | 7 | Section: | 33 |
| Range: | 36 |
Location |
| Address: | 1859 HILBROOKE DR WA 99362 | Mapsco: | |
| Neighborhood: | G Res | Map ID: | |
| Neighborhood CD: | 614011 |
Owner |
| Name: | GRUBB AARON & AURALEE | Owner ID: | 54854 |
| Mailing Address: | 1859 HILBROOKE DR WALLA WALLA, WA 99362 | % Ownership: | 100.0000000000% |
| | | Exemptions: | |
Taxes and Assessment Details
Values
| (+) Improvement Homesite Value: | + | $0 | |
| (+) Improvement Non-Homesite Value: | + | $249,570 | |
| (+) Land Homesite Value: | + | $0 | |
| (+) Land Non-Homesite Value: | + | $108,000 | |
| (+) Curr Use (HS): | + | $0 | $0 |
| (+) Curr Use (NHS): | + | $0 | $0 |
| | | -------------------------- | |
| (=) Market Value: | = | $357,570 | |
| (–) Productivity Loss: | – | $0 | |
| | | -------------------------- | |
| (=) Subtotal: | = | $357,570 | |
| (+) Senior Appraised Value: | + | $0 | |
| (+) Non-Senior Appraised Value: | + | $357,570 | |
| | | -------------------------- | |
| (=) Total Appraised Value: | = | $357,570 | |
| (–) Senior Exemption Loss: | – | $0 | |
| (–) Exemption Loss: | – | $0 | |
| | | -------------------------- | |
| (=) Taxable Value: | = | $357,570 | |
Taxing Jurisdiction
| Owner: | GRUBB AARON & AURALEE | | |
| % Ownership: | 100.0000000000% | | |
| Total Value: | $357,570 | | |
| Tax Area: | 1 - OL-140-F |
| CERFD | CURRENT EXPENSE REFUND 010 | 0.0000000000 | $357,570 | $357,570 | $0.00 | | |
| CURREXP | CURRENT EXPENSE 010 | 1.0175366760 | $357,570 | $357,570 | $363.84 | | |
| HUMNSERV | HUMAN SERVICES 119 | 0.0250000000 | $357,570 | $357,570 | $8.94 | | |
| SLDREL | SOLDIERS RELIEF 121 | 0.0155990005 | $357,570 | $357,570 | $5.58 | | |
| EMERGSER | EMS 147 | 0.3792580840 | $357,570 | $357,570 | $135.61 | | |
| EMSRFD | EMS REFUND 147 | 0.0000000000 | $357,570 | $357,570 | $0.00 | | |
| PORTRFD | PORT REFUND 640 | 0.0000000000 | $357,570 | $357,570 | $0.00 | | |
| PORTWWGEN | PORT OF WW 640 | 0.2460186015 | $357,570 | $357,570 | $87.97 | | |
| SD140BOND | SD #140 BOND 764 | 0.8342371393 | $357,570 | $357,570 | $298.30 | | |
| SD140GEN | SD #140 GENERAL 760 | 2.0646500647 | $357,570 | $357,570 | $738.26 | | |
| ST2 | STATE SCHOOL PART 2 600 | 0.8131451643 | $357,570 | $357,570 | $290.76 | | |
| STATESCHL | STATE SCHOOL 600 | 1.5158548041 | $357,570 | $357,570 | $542.02 | | |
| STREFUND | STATE REFUND LEVY 603 | 0.0000000000 | $357,570 | $357,570 | $0.00 | | |
| CWWBOND | C OF WW BOND 643 | 0.2760494372 | $357,570 | $357,570 | $98.71 | | |
| CWWGEN | CITY OF WW 631 | 1.6100204973 | $357,570 | $357,570 | $575.70 | | |
| CWWRFD | CITY OF WALLA WALLA REFUND 631 | 0.0000000000 | $357,570 | $357,570 | $0.00 | | |
| | Total Tax Rate: | 8.7973694689 | | | | | |
| | | | | Taxes w/Current Exemptions: | $3,145.69 | | |
| | | | | Taxes w/o Exemptions: | $3,145.69 | | |
Improvement / Building
| Improvement #1: | RESIDENTIAL | State Code: | 11 | 1140.0 sqft | Value: | $249,570 |
| Exterior Wall: | SIDING | Heating/Cooling: | WARM & COOLED AIR | | Number of Bathrooms: | 1 | Number of Bedrooms: | 3 | | Plumbing: | 7 | Roof Covering: | COMP SHINGLE |
|
| | Type | Description | Class CD | Sub Class CD | Year Built | Area |
| | MA | Main Area | 1 | 30 | 1949 | 1140.0 |
| | SI1 | SITE IMPROVEMENT | 1 | 30 | 1949 | 2.5 |
| | CPCS | CARPORT/SHED OR FLAT ROOF | 1 | 30 | 1949 | 440.0 |
| | RPO | OPEN PORCH W/ROOF | 1 | 30 | 1949 | 48.0 |
| | CPC | COVERED CARPORT/PATIO | 1 | 30 | 1949 | 312.0 |
Sketch
Property Image
Land
| 1 | RES 1 | Converted: Residential | 0.2479 | 10800.00 | 0.00 | 0.00 | 1.00 | $108,000 | $0 |
Roll Value History
| 2026 | N/A | N/A | N/A | N/A | N/A |
| 2025 | $250,760 | $129,600 | $0 | $380,360 | $380,360 |
| 2024 | $249,570 | $108,000 | $0 | $357,570 | $357,570 |
| 2023 | $249,570 | $108,000 | $0 | $357,570 | $357,570 |
| 2022 | $226,880 | $89,100 | $0 | $315,980 | $315,980 |
| 2021 | $168,060 | $89,100 | $0 | $257,160 | $257,160 |
| 2020 | $124,490 | $89,100 | $0 | $213,590 | $213,590 |
| 2019 | $124,490 | $89,100 | $0 | $213,590 | $213,590 |
| 2018 | $122,380 | $47,800 | $0 | $170,180 | $170,180 |
| 2017 | $116,550 | $47,800 | $0 | $164,350 | $164,350 |
| 2016 | $111,000 | $47,800 | $0 | $158,800 | $158,800 |
| 2015 | $111,000 | $47,800 | $0 | $158,800 | $158,800 |
| 2014 | $92,500 | $47,800 | $0 | $140,300 | $140,300 |
| 2013 | $92,500 | $47,800 | $0 | $140,300 | $140,300 |
| 2012 | $92,500 | $47,800 | $0 | $0 | $0 |
| 2011 | $92,500 | $47,800 | $0 | $0 | $0 |
| 2010 | $92,500 | $47,800 | $0 | $0 | $0 |
| 2009 | $108,100 | $47,800 | $0 | $0 | $0 |
| 2008 | $108,100 | $47,800 | $0 | $0 | $0 |
| 2007 | $69,800 | $25,300 | $0 | $0 | $0 |
Deed and Sales History
| 1 | 06/13/2014 | SWD | STATUTORY WARRANTY DEED | GRIMM AARON C & KADEE M | GRUBB AARON & AURALEE | | | $165,000.00 | 126060 | 2014-04071 |
| 2 | 04/29/2009 | WARRANTY D | WARRANTY DEED | GIBSON, TIM & ANGIE | GRIMM, AARON C & KADEE M | | | $143,000.00 | 116681 | 2009-04310 |
| 3 | 08/31/2001 | WARRANTY D | WARRANTY DEED | | | | | $95,300.00 | 97943 | 3190-109531 |
Payout Agreement
| No payout information available.. |