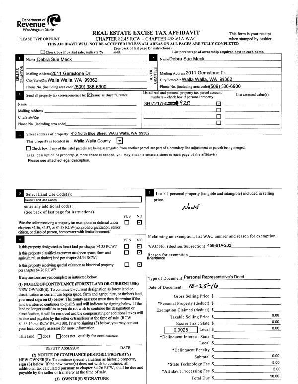
Property
Account |
| Property ID: | 26825 | Abbreviated Legal Description: | GREENS ANNEX TAX 10 BLK 9 |
| Parcel Number: | 360721750920 | Agent Code: | |
| Type: | Real | | |
| Tax Area: | 1 - OL-140-F | Land Use Code | 11 |
| Open Space: | N | DFL | N |
| Historic Property: | N | Remodel Property: | N |
| Multi-Family Redevelopment: | N | | |
| Township: | 7 | Section: | 21 |
| Range: | 36 |
Location |
| Address: | 410 N BLUE ST WA 99362 | Mapsco: | |
| Neighborhood: | A-SFR | Map ID: | |
| Neighborhood CD: | 513011 |
Owner |
| Name: | MECK DEBRA SUE | Owner ID: | 59875 |
| Mailing Address: | 2011 GEMSTONE ST WALLA WALLA, WA 99362 | % Ownership: | 100.0000000000% |
| | | Exemptions: | |
Taxes and Assessment Details
Property Tax Information as of
04/19/2026
Click on "Statement Details" to expand or collapse a tax statement.
* Please enter a valid date ** Please enter a valid date *
Statement Details |
| | TOTAL: | $0.00 | $0.00 | $0.00 | $0.00 | $0.00 | $0.00 |
|
| | $0.00 | $0.00 | $0.00 | $0.00 | $0.00 | $0.00 |
Values
| (+) Improvement Homesite Value: | + | $0 | |
| (+) Improvement Non-Homesite Value: | + | $213,490 | |
| (+) Land Homesite Value: | + | $0 | |
| (+) Land Non-Homesite Value: | + | $66,520 | |
| (+) Curr Use (HS): | + | $0 | $0 |
| (+) Curr Use (NHS): | + | $0 | $0 |
| | | -------------------------- | |
| (=) Market Value: | = | $280,010 | |
| (–) Productivity Loss: | – | $0 | |
| | | -------------------------- | |
| (=) Subtotal: | = | $280,010 | |
| (+) Senior Appraised Value: | + | $0 | |
| (+) Non-Senior Appraised Value: | + | $280,010 | |
| | | -------------------------- | |
| (=) Total Appraised Value: | = | $280,010 | |
| (–) Senior Exemption Loss: | – | $0 | |
| (–) Exemption Loss: | – | $0 | |
| | | -------------------------- | |
| (=) Taxable Value: | = | $280,010 | |
Taxing Jurisdiction
| Owner: | MECK DEBRA SUE | | |
| % Ownership: | 100.0000000000% | | |
| Total Value: | $280,010 | | |
| Tax Area: | 1 - OL-140-F |
| CERFD | CURRENT EXPENSE REFUND 010 | 0.0000000000 | $280,010 | $280,010 | $0.00 | | |
| CURREXP | CURRENT EXPENSE 010 | 1.0175366760 | $280,010 | $280,010 | $284.92 | | |
| HUMNSERV | HUMAN SERVICES 119 | 0.0250000000 | $280,010 | $280,010 | $7.00 | | |
| SLDREL | SOLDIERS RELIEF 121 | 0.0155990005 | $280,010 | $280,010 | $4.37 | | |
| EMERGSER | EMS 147 | 0.3792580840 | $280,010 | $280,010 | $106.20 | | |
| EMSRFD | EMS REFUND 147 | 0.0000000000 | $280,010 | $280,010 | $0.00 | | |
| PORTRFD | PORT REFUND 640 | 0.0000000000 | $280,010 | $280,010 | $0.00 | | |
| PORTWWGEN | PORT OF WW 640 | 0.2460186015 | $280,010 | $280,010 | $68.89 | | |
| SD140BOND | SD #140 BOND 764 | 0.8342371393 | $280,010 | $280,010 | $233.59 | | |
| SD140GEN | SD #140 GENERAL 760 | 2.0646500647 | $280,010 | $280,010 | $578.12 | | |
| ST2 | STATE SCHOOL PART 2 600 | 0.8131451643 | $280,010 | $280,010 | $227.69 | | |
| STATESCHL | STATE SCHOOL 600 | 1.5158548041 | $280,010 | $280,010 | $424.45 | | |
| STREFUND | STATE REFUND LEVY 603 | 0.0000000000 | $280,010 | $280,010 | $0.00 | | |
| CWWBOND | C OF WW BOND 643 | 0.2760494372 | $280,010 | $280,010 | $77.30 | | |
| CWWGEN | CITY OF WW 631 | 1.6100204973 | $280,010 | $280,010 | $450.82 | | |
| CWWRFD | CITY OF WALLA WALLA REFUND 631 | 0.0000000000 | $280,010 | $280,010 | $0.00 | | |
| | Total Tax Rate: | 8.7973694689 | | | | | |
| | | | | Taxes w/Current Exemptions: | $2,463.35 | | |
| | | | | Taxes w/o Exemptions: | $2,463.35 | | |
Improvement / Building
| Improvement #1: | RESIDENTIAL | State Code: | 11 | 1204.0 sqft | Value: | $213,490 |
| Exterior Wall: | STUCCO | Heating/Cooling: | HEAT PUMP | | Number of Bathrooms: | 1 | Number of Bedrooms: | 3 | | Plumbing: | 6 | Roof Covering: | COMP SHINGLE |
|
| | Type | Description | Class CD | Sub Class CD | Year Built | Area |
| | MA | Main Area | 1 | 30 | 1947 | 1204.0 |
| | SI1 | SITE IMPROVEMENT | 1 | 30 | 1947 | 1.5 |
| | BASE | BASEMENT | 1 | 30 | 1947 | 900.0 |
| | DTG | Detached Garage | 1 | 30 | 1947 | 484.0 |
| | RPS | PORCH W/STEPS,ROOF | 1 | 30 | 1947 | 40.0 |
| | CPC | COVERED CARPORT/PATIO | 1 | 30 | 1947 | 192.0 |
| | CPC | COVERED CARPORT/PATIO | 1 | 30 | 1947 | 528.0 |
Sketch
Property Image
Land
| 1 | RES 1 | Converted: Residential | 0.4062 | 17692.00 | 0.00 | 0.00 | 1.00 | $66,520 | $0 |
Roll Value History
| 2026 | N/A | N/A | N/A | N/A | N/A |
| 2025 | $207,610 | $105,800 | $0 | $313,410 | $313,410 |
| 2024 | $188,740 | $105,800 | $0 | $294,540 | $294,540 |
| 2023 | $213,490 | $66,520 | $0 | $280,010 | $280,010 |
| 2022 | $213,490 | $66,520 | $0 | $280,010 | $280,010 |
| 2021 | $177,910 | $66,520 | $0 | $244,430 | $244,430 |
| 2020 | $127,080 | $66,520 | $0 | $193,600 | $193,600 |
| 2019 | $127,080 | $66,520 | $0 | $193,600 | $193,600 |
| 2018 | $105,900 | $66,520 | $0 | $172,420 | $172,420 |
| 2017 | $123,590 | $45,800 | $0 | $169,390 | $169,390 |
| 2016 | $117,710 | $45,800 | $0 | $163,510 | $163,510 |
| 2015 | $117,710 | $45,800 | $0 | $163,510 | $163,510 |
| 2014 | $112,100 | $45,800 | $0 | $157,900 | $157,900 |
| 2013 | $112,100 | $45,800 | $0 | $157,900 | $157,900 |
| 2012 | $119,600 | $45,800 | $0 | $0 | $0 |
| 2011 | $119,600 | $45,800 | $0 | $0 | $0 |
| 2010 | $111,700 | $45,800 | $0 | $0 | $0 |
| 2009 | $129,200 | $45,800 | $0 | $0 | $0 |
| 2008 | $94,200 | $45,800 | $0 | $0 | $0 |
| 2007 | $94,200 | $45,800 | $0 | $0 | $0 |
Deed and Sales History
| 1 | 10/25/2016 | DPR | DEED OF PERSONAL REPRESENTATIVE | HEADDING ORVILLE J & LAURETTA | MECK DEBRA SUE | | | $0.00 | 131313 | 2016-08883 |
| 2 | 01/01/1966 | WARRANTY D | WARRANTY DEED | | | | | $13,500.00 | 0 | 3190-478252 |
Payout Agreement
| No payout information available.. |