Property
Account |
| Property ID: | 26814 | Abbreviated Legal Description: | GRAND RIDGE SUBDIVISION LOT 3 LESS RIGHT OF WAY EASEMENT TAKE |
| Parcel Number: | 340603510003 | Agent Code: | |
| Type: | Real | | |
| Tax Area: | 113 - 140-6 | Land Use Code | 11 |
| Open Space: | N | DFL | N |
| Historic Property: | N | Remodel Property: | N |
| Multi-Family Redevelopment: | N | | |
| Township: | 6 | Section: | 3 |
| Range: | 34 |
Location |
| Address: | 39 NIGHTSTAR PL WA 99362 | Mapsco: | |
| Neighborhood: | G TOUCHET/LOWDEN SFR RURAL | Map ID: | |
| Neighborhood CD: | 214613 |
Owner |
| Name: | MALLORY MARLIN W & KAREN D | Owner ID: | 75246 |
| Mailing Address: | 39 NIGHTSTAR PL TOUCHET, WA 99360 | % Ownership: | 100.0000000000% |
| | | Exemptions: | |
Taxes and Assessment Details
Property Tax Information as of
02/21/2026
Click on "Statement Details" to expand or collapse a tax statement.
* Please enter a valid date ** Please enter a valid date *
Statement Details |
| | TOTAL: | $0.00 | $0.00 | $0.00 | $0.00 | $0.00 | $0.00 |
|
| | $0.00 | $0.00 | $0.00 | $0.00 | $0.00 | $0.00 |
Values
| (+) Improvement Homesite Value: | + | $0 | |
| (+) Improvement Non-Homesite Value: | + | $715,400 | |
| (+) Land Homesite Value: | + | $0 | |
| (+) Land Non-Homesite Value: | + | $91,780 | |
| (+) Curr Use (HS): | + | $0 | $0 |
| (+) Curr Use (NHS): | + | $0 | $0 |
| | | -------------------------- | |
| (=) Market Value: | = | $807,180 | |
| (–) Productivity Loss: | – | $0 | |
| | | -------------------------- | |
| (=) Subtotal: | = | $807,180 | |
| (+) Senior Appraised Value: | + | $0 | |
| (+) Non-Senior Appraised Value: | + | $807,180 | |
| | | -------------------------- | |
| (=) Total Appraised Value: | = | $807,180 | |
| (–) Senior Exemption Loss: | – | $0 | |
| (–) Exemption Loss: | – | $0 | |
| | | -------------------------- | |
| (=) Taxable Value: | = | $807,180 | |
Taxing Jurisdiction
| Owner: | MALLORY MARLIN W & KAREN D | | |
| % Ownership: | 100.0000000000% | | |
| Total Value: | $807,180 | | |
| Tax Area: | 113 - 140-6 |
| CERFD | CURRENT EXPENSE REFUND 010 | 0.0000000000 | $807,180 | $807,180 | $0.00 | | |
| CURREXP | CURRENT EXPENSE 010 | 0.9851088983 | $807,180 | $807,180 | $795.16 | | |
| HUMNSERV | HUMAN SERVICES 119 | 0.0250000000 | $807,180 | $807,180 | $20.18 | | |
| SLDREL | SOLDIERS RELIEF 121 | 0.0155990000 | $807,180 | $807,180 | $12.59 | | |
| EMERGSER | EMS 147 | 0.3676811629 | $807,180 | $807,180 | $296.78 | | |
| EMSRFD | EMS REFUND 147 | 0.0000000000 | $807,180 | $807,180 | $0.00 | | |
| FD6EXP | FD #6 EXPENSE 693 | 0.6637564225 | $807,180 | $807,180 | $535.77 | | |
| RLBRFD | RURAL LIBRARY REFUND 623 | 0.0000000000 | $807,180 | $807,180 | $0.00 | | |
| RURALLIB | RURAL LIBRARY 623 | 0.3601547782 | $807,180 | $807,180 | $290.71 | | |
| PORTRFD | PORT REFUND 640 | 0.0000000000 | $807,180 | $807,180 | $0.00 | | |
| PORTWWGEN | PORT OF WW 640 | 0.2344301070 | $807,180 | $807,180 | $189.23 | | |
| SD140BOND | SD #140 BOND 764 | 0.8032434458 | $807,180 | $807,180 | $648.36 | | |
| SD140CAP | SD #140 CAP 762 | 0.3840034221 | $807,180 | $807,180 | $309.96 | | |
| SD140GEN | SD #140 GENERAL 760 | 2.4999999996 | $807,180 | $807,180 | $2,017.95 | | |
| ST2 | STATE SCHOOL PART 2 600 | 0.8853714103 | $807,180 | $807,180 | $714.65 | | |
| STATESCHL | STATE SCHOOL 600 | 1.6424571473 | $807,180 | $807,180 | $1,325.76 | | |
| STREFUND | STATE REFUND LEVY 603 | 0.0000000000 | $807,180 | $807,180 | $0.00 | | |
| COROAD | COUNTY ROAD 115 | 1.6137667997 | $807,180 | $807,180 | $1,302.60 | | |
| CRPRD | COUNTY ROAD REFUND 115 | 0.0000000000 | $807,180 | $807,180 | $0.00 | | |
| | Total Tax Rate: | 10.4805725937 | | | | | |
| | | | | Taxes w/Current Exemptions: | $8,459.70 | | |
| | | | | Taxes w/o Exemptions: | $8,459.70 | | |
Improvement / Building
| Improvement #1: | RESIDENTIAL | State Code: | 11 | 2228.0 sqft | Value: | $715,400 |
| Exterior Wall: | STUCCO | Heating/Cooling: | HEAT PUMP | | Number of Bathrooms: | 2 | Number of Bedrooms: | 4 | | Plumbing: | 14 | Roof Covering: | COMP SHINGLE |
|
| | Type | Description | Class CD | Sub Class CD | Year Built | Area |
| | MA | Main Area | 1 | 45 | 2019 | 2228.0 |
| | SI1 | SITE IMPROVEMENT | 1 | 45 | 2019 | 4.5 |
| | ATG | Attached Garage | 1 | 45 | 2019 | 1269.0 |
| | RPC | OPEN PORCH W/ROOF , CEILED | 1 | 45 | 2019 | 272.0 |
| | RPC | OPEN PORCH W/ROOF , CEILED | 1 | 45 | 2019 | 72.0 |
Sketch
Property Image
Land
| 1 | RES 1 | Converted: Residential | 1.1700 | 50965.20 | 0.00 | 0.00 | 1.00 | $91,780 | $0 |
Roll Value History
| 2026 | N/A | N/A | N/A | N/A | N/A |
| 2025 | $715,400 | $91,780 | $0 | $807,180 | $807,180 |
| 2024 | $572,320 | $91,780 | $0 | $664,100 | $664,100 |
| 2023 | $572,320 | $91,780 | $0 | $664,100 | $664,100 |
| 2022 | $545,060 | $91,780 | $0 | $636,840 | $636,840 |
| 2021 | $454,220 | $91,780 | $0 | $546,000 | $546,000 |
| 2020 | $393,600 | $55,000 | $0 | $448,600 | $448,600 |
| 2019 | $393,600 | $55,000 | $0 | $448,600 | $448,600 |
| 2018 | $0 | $55,000 | $0 | $55,000 | $55,000 |
| 2017 | $0 | $55,000 | $0 | $55,000 | $55,000 |
| 2016 | $0 | $55,000 | $0 | $55,000 | $55,000 |
| 2015 | $0 | $55,000 | $0 | $55,000 | $55,000 |
| 2014 | $0 | $55,000 | $0 | $55,000 | $55,000 |
| 2013 | $0 | $55,000 | $0 | $55,000 | $55,000 |
| 2012 | $0 | $95,000 | $0 | $0 | $0 |
| 2011 | $0 | $95,000 | $0 | $0 | $0 |
| 2010 | $0 | $150,000 | $0 | $0 | $0 |
| 2009 | $0 | $150,000 | $0 | $0 | $0 |
| 2008 | $0 | $1,600 | $0 | $0 | $0 |
| 2007 | $0 | $55,000 | $0 | $0 | $0 |
Deed and Sales History
| 1 | 04/29/2024 | SWD | STATUTORY WARRANTY DEED | MUSKTHEL ROBERT & SIERRA | MALLORY MARLIN W & KAREN D | | | $855,000.00 | 147468 | 2024-02184 |
| 2 | 04/30/2018 | SWD | STATUTORY WARRANTY DEED | LONG SHAWN & JESSICA | MUSKTHEL ROBERT & SIERRA | | | $60,000.00 | 134595 | 2018-03374 |
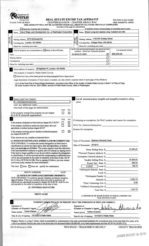
| 3 | 10/16/2013 | WARRANTY D | WARRANTY DEED | GRAND RIDGE LAND DEVELOPMENT I | LONG, SHAWN & JESSICA | | | $67,500.00 | 124828 | 2013-10415 |
| 4 | 04/15/2009 | WARRANTY D | WARRANTY DEED | GRAND RIDGE LAND DEVELOPMENT I | WALLA WALLA COUNTY | | | | 116617 | 2009-03745 |
| 5 | 10/09/2007 | WARRANTY D | WARRANTY DEED | CLEARVIEW FARM INC | GRAND RIDGE LAND DEVELOPMENT INC | | | $750,000.00 | 113855 | 2007-11768 |
|   | |
Payout Agreement
| No payout information available.. |