Property
Account |
| Property ID: | 26748 | Abbreviated Legal Description: | MILBROOKE PARK LOT 7 BLK 4 |
| Parcel Number: | 360721650407 | Agent Code: | |
| Type: | Real | | |
| Tax Area: | 1 - OL-140-F | Land Use Code | 11 |
| Open Space: | N | DFL | N |
| Historic Property: | N | Remodel Property: | N |
| Multi-Family Redevelopment: | N | | |
| Township: | 7 | Section: | 21 |
| Range: | 36 |
Location |
| Address: | 166 BOYER DR WA 99362 | Mapsco: | |
| Neighborhood: | A-Superior SFR | Map ID: | |
| Neighborhood CD: | 513211 |
Owner |
| Name: | KROSCHEL LEANNA M LIFE ESTATE | Owner ID: | 60381 |
| Mailing Address: | SHAWN GREGORY KROSCHEL 166 BOYER DR WALLA WALLA, WA 99362 | % Ownership: | 100.0000000000% |
| | | Exemptions: | SNR/DSBL |
Taxes and Assessment Details
Values
| (+) Improvement Homesite Value: | + | $258,770 | |
| (+) Improvement Non-Homesite Value: | + | $0 | |
| (+) Land Homesite Value: | + | $62,000 | |
| (+) Land Non-Homesite Value: | + | $0 | |
| (+) Curr Use (HS): | + | $0 | $0 |
| (+) Curr Use (NHS): | + | $0 | $0 |
| | | -------------------------- | |
| (=) Market Value: | = | $320,770 | |
| (–) Productivity Loss: | – | $0 | |
| | | -------------------------- | |
| (=) Subtotal: | = | $320,770 | |
| (+) Senior Appraised Value: | + | $147,600 | |
| (+) Non-Senior Appraised Value: | + | $0 | |
| | | -------------------------- | |
| (=) Total Appraised Value: | = | $147,600 | |
| (–) Senior Exemption Loss: | – | $88,560 | |
| (–) Exemption Loss: | – | $0 | |
| | | -------------------------- | |
| (=) Taxable Value: | = | $59,040 | |
Taxing Jurisdiction
| Owner: | KROSCHEL LEANNA M LIFE ESTATE | | |
| % Ownership: | 100.0000000000% | | |
| Total Value: | $320,770 | | |
| Tax Area: | 1 - OL-140-F |
| CERFD | CURRENT EXPENSE REFUND 010 | 0.0000000000 | $320,770 | $59,040 | $0.00 | | |
| CURREXP | CURRENT EXPENSE 010 | 1.0175366760 | $320,770 | $59,040 | $60.08 | | |
| HUMNSERV | HUMAN SERVICES 119 | 0.0250000000 | $320,770 | $59,040 | $1.48 | | |
| SLDREL | SOLDIERS RELIEF 121 | 0.0155990005 | $320,770 | $59,040 | $0.92 | | |
| EMERGSER | EMS 147 | 0.3792580840 | $320,770 | $59,040 | $22.39 | | |
| EMSRFD | EMS REFUND 147 | 0.0000000000 | $320,770 | $59,040 | $0.00 | | |
| PORTRFD | PORT REFUND 640 | 0.0000000000 | $320,770 | $59,040 | $0.00 | | |
| PORTWWGEN | PORT OF WW 640 | 0.2460186015 | $320,770 | $59,040 | $14.52 | | |
| SD140BOND | SD #140 BOND 764 | 0.0000000000 | $320,770 | $0 | $0.00 | | |
| SD140GEN | SD #140 GENERAL 760 | 0.0000000000 | $320,770 | $0 | $0.00 | | |
| ST2 | STATE SCHOOL PART 2 600 | 0.0000000000 | $320,770 | $0 | $0.00 | | |
| STATESCHL | STATE SCHOOL 600 | 1.5158548041 | $320,770 | $59,040 | $89.50 | | |
| STREFUND | STATE REFUND LEVY 603 | 0.0000000000 | $320,770 | $59,040 | $0.00 | | |
| CWWBOND | C OF WW BOND 643 | 0.0000000000 | $320,770 | $0 | $0.00 | | |
| CWWGEN | CITY OF WW 631 | 1.6100204973 | $320,770 | $59,040 | $95.06 | | |
| CWWRFD | CITY OF WALLA WALLA REFUND 631 | 0.0000000000 | $320,770 | $59,040 | $0.00 | | |
| | Total Tax Rate: | 4.8092876634 | | | | | |
| | | | | Taxes w/Current Exemptions: | $283.95 | | |
| | | | | Taxes w/o Exemptions: | $2,821.94 | | |
Improvement / Building
| Improvement #1: | RESIDENTIAL | State Code: | 11 | 1025.0 sqft | Value: | $258,770 |
| Exterior Wall: | SIDING | Heating/Cooling: | REV-HEAT-PUMP-W/DUCT | | Number of Bathrooms: | 2 | Number of Bedrooms: | 3 | | Plumbing: | 9 | Roof Covering: | GALVANIZED METAL |
|
| | Type | Description | Class CD | Sub Class CD | Year Built | Area |
| | MA | Main Area | 1 | 30 | 1950 | 1025.0 |
| | SI1 | SITE IMPROVEMENT | 1 | 30 | 1950 | 1.5 |
| | BASE | BASEMENT | 1 | 30 | 1950 | 1025.0 |
| | BPF | BASEMENT -PARTITIONED FINISH | 1 | 30 | 1950 | 550.0 |
| | RPS | PORCH W/STEPS,ROOF | 1 | 30 | 1950 | 40.0 |
| | S1F | Single One Story Fireplace | 1 | 30 | 1950 | 1.0 |
| | CPC | COVERED CARPORT/PATIO | 1 | 30 | 1950 | 144.0 |
Sketch
Property Image
Land
| 1 | RES 1 | Converted: Residential | 0.2277 | 9920.00 | 0.00 | 0.00 | 1.00 | $62,000 | $0 |
Roll Value History
| 2026 | N/A | N/A | N/A | N/A | N/A |
| 2025 | $253,330 | $99,200 | $0 | $352,530 | $59,040 |
| 2024 | $230,300 | $99,200 | $0 | $329,500 | $59,040 |
| 2023 | $258,770 | $62,000 | $0 | $320,770 | $59,040 |
| 2022 | $246,440 | $62,000 | $0 | $308,440 | $59,040 |
| 2021 | $182,550 | $62,000 | $0 | $244,550 | $59,040 |
| 2020 | $121,700 | $62,000 | $0 | $183,700 | $59,040 |
| 2019 | $121,700 | $62,000 | $0 | $183,700 | $59,040 |
| 2018 | $121,700 | $62,000 | $0 | $183,700 | $59,040 |
| 2017 | $129,480 | $39,700 | $0 | $169,180 | $59,040 |
| 2016 | $107,900 | $39,700 | $0 | $147,600 | $59,040 |
| 2015 | $107,900 | $39,700 | $0 | $147,600 | $59,040 |
| 2014 | $107,900 | $39,700 | $0 | $147,600 | $147,600 |
| 2013 | $107,900 | $39,700 | $0 | $147,600 | $147,600 |
| 2012 | $113,000 | $39,700 | $0 | $0 | $0 |
| 2011 | $113,000 | $39,700 | $0 | $0 | $0 |
| 2010 | $93,100 | $39,700 | $0 | $0 | $0 |
| 2009 | $107,800 | $39,700 | $0 | $0 | $0 |
| 2008 | $100,800 | $39,700 | $0 | $0 | $0 |
| 2007 | $100,800 | $39,700 | $0 | $0 | $0 |
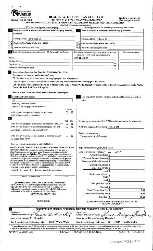
Deed and Sales History
| 1 | 02/02/2017 | QCD | QUIT CLAIM DEED | KROSCHEL LEANNA M | KROSCHEL LEANNA M LIFE ESTATE | | | $0.00 | 131860 | 2017-00896 |
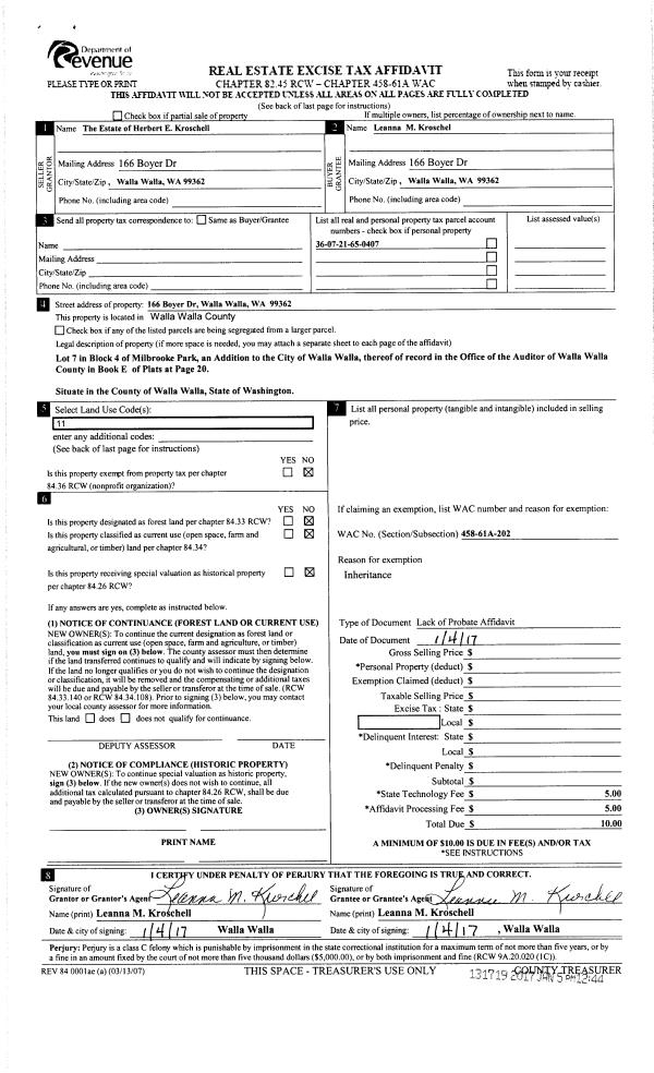
| 2 | 01/04/2017 | QCD | QUIT CLAIM DEED | KROSCHEL LEANNA M | KROSCHEL LEANNA M | | | $0.00 | 131720 | 2017-00124 |
| 3 | 01/04/2017 | LOPA | LACK OF PROBATE AFFIDAVIT | KROSCHEL HERBERT E JR & LEANNA M | KROSCHEL LEANNA M | | | $0.00 | 131719 | 2017-00123 |
| 4 | 04/15/2009 | WARRANTY D | WARRANTY DEED | THOMSON, MARK A & LISA K | KROSCHEL, HERBERT E JR & LEANN | | | $157,500.00 | 116619 | 2009-03750 |
| 5 | 04/25/2008 | WARRANTY D | WARRANTY DEED | CYR, JACK S & ARVILLA KATSEL | THOMSON, MARK A & LISA K | | | $155,000.00 | 114907 | 2008-04117 |
| 6 | 10/01/1967 | WARRANTY D | WARRANTY DEED | | | | | $16,000.00 | 0 | 3240-489283 |
Payout Agreement
| No payout information available.. |