Property
Account |
| Property ID: | 26746 | Abbreviated Legal Description: | VALLEY ACRES LOT 52 |
| Parcel Number: | 350601560052 | Agent Code: | |
| Type: | Real | | |
| Tax Area: | 5 - OL-140 | Land Use Code | 11 |
| Open Space: | N | DFL | N |
| Historic Property: | N | Remodel Property: | N |
| Multi-Family Redevelopment: | N | | |
| Township: | 6 | Section: | 1 |
| Range: | 35 |
Location |
| Address: | 93 CHAPELWOOD AVE WA 99362 | Mapsco: | |
| Neighborhood: | G SFR | Map ID: | |
| Neighborhood CD: | 114011 |
Owner |
| Name: | ROQUET DOUGLAS R & BRENDA | Owner ID: | 55708 |
| Mailing Address: | 93 CHAPELWOOD AVE WALLA WALLA, WA 99362 | % Ownership: | 100.0000000000% |
| | | Exemptions: | |
Taxes and Assessment Details
Property Tax Information as of
02/21/2026
Click on "Statement Details" to expand or collapse a tax statement.
* Please enter a valid date ** Please enter a valid date *
Statement Details |
| | TOTAL: | $0.00 | $0.00 | $0.00 | $0.00 | $0.00 | $0.00 |
|
| | $0.00 | $0.00 | $0.00 | $0.00 | $0.00 | $0.00 |
Values
| (+) Improvement Homesite Value: | + | $0 | |
| (+) Improvement Non-Homesite Value: | + | $409,750 | |
| (+) Land Homesite Value: | + | $0 | |
| (+) Land Non-Homesite Value: | + | $86,250 | |
| (+) Curr Use (HS): | + | $0 | $0 |
| (+) Curr Use (NHS): | + | $0 | $0 |
| | | -------------------------- | |
| (=) Market Value: | = | $496,000 | |
| (–) Productivity Loss: | – | $0 | |
| | | -------------------------- | |
| (=) Subtotal: | = | $496,000 | |
| (+) Senior Appraised Value: | + | $0 | |
| (+) Non-Senior Appraised Value: | + | $496,000 | |
| | | -------------------------- | |
| (=) Total Appraised Value: | = | $496,000 | |
| (–) Senior Exemption Loss: | – | $0 | |
| (–) Exemption Loss: | – | $0 | |
| | | -------------------------- | |
| (=) Taxable Value: | = | $496,000 | |
Taxing Jurisdiction
| Owner: | ROQUET DOUGLAS R & BRENDA | | |
| % Ownership: | 100.0000000000% | | |
| Total Value: | $496,000 | | |
| Tax Area: | 5 - OL-140 |
| CERFD | CURRENT EXPENSE REFUND 010 | 0.0000000000 | $496,000 | $496,000 | $0.00 | | |
| CURREXP | CURRENT EXPENSE 010 | 1.0175366760 | $496,000 | $496,000 | $504.70 | | |
| HUMNSERV | HUMAN SERVICES 119 | 0.0250000000 | $496,000 | $496,000 | $12.40 | | |
| SLDREL | SOLDIERS RELIEF 121 | 0.0155990005 | $496,000 | $496,000 | $7.74 | | |
| EMERGSER | EMS 147 | 0.3792580840 | $496,000 | $496,000 | $188.11 | | |
| EMSRFD | EMS REFUND 147 | 0.0000000000 | $496,000 | $496,000 | $0.00 | | |
| PORTRFD | PORT REFUND 640 | 0.0000000000 | $496,000 | $496,000 | $0.00 | | |
| PORTWWGEN | PORT OF WW 640 | 0.2460186015 | $496,000 | $496,000 | $122.03 | | |
| SD140BOND | SD #140 BOND 764 | 0.8342371393 | $496,000 | $496,000 | $413.78 | | |
| SD140GEN | SD #140 GENERAL 760 | 2.0646500647 | $496,000 | $496,000 | $1,024.07 | | |
| ST2 | STATE SCHOOL PART 2 600 | 0.8131451643 | $496,000 | $496,000 | $403.32 | | |
| STATESCHL | STATE SCHOOL 600 | 1.5158548041 | $496,000 | $496,000 | $751.86 | | |
| STREFUND | STATE REFUND LEVY 603 | 0.0000000000 | $496,000 | $496,000 | $0.00 | | |
| CWWBOND | C OF WW BOND 643 | 0.2760494372 | $496,000 | $496,000 | $136.92 | | |
| CWWGEN | CITY OF WW 631 | 1.6100204973 | $496,000 | $496,000 | $798.57 | | |
| CWWRFD | CITY OF WALLA WALLA REFUND 631 | 0.0000000000 | $496,000 | $496,000 | $0.00 | | |
| | Total Tax Rate: | 8.7973694689 | | | | | |
| | | | | Taxes w/Current Exemptions: | $4,363.50 | | |
| | | | | Taxes w/o Exemptions: | $4,363.50 | | |
Improvement / Building
| Improvement #1: | RESIDENTIAL | State Code: | 11 | 2174.0 sqft | Value: | $409,750 |
| Exterior Wall: | HARDBOARD | Heating/Cooling: | WARM & COOLED AIR | | Number of Bathrooms: | 2.5 | Number of Bedrooms: | 4 | | Plumbing: | 12 | Roof Covering: | COMP SHINGLE |
|
| | Type | Description | Class CD | Sub Class CD | Year Built | Area |
| | MA | Main Area | 2 | 35 | 2008 | 2174.0 |
| | SI1 | SITE IMPROVEMENT | 2 | 35 | 2008 | 2.5 |
| | UPFL | Upper Floor (included in main area) | 2 | 35 | 2008 | 1050.0 |
| | ATG | Attached Garage | 2 | 35 | 2008 | 650.0 |
| | RPC | OPEN PORCH W/ROOF , CEILED | 2 | 35 | 2008 | 105.0 |
| | GFP | GAS FIREPLACE | 2 | 35 | 2008 | 1.0 |
Sketch
Property Image
Land
| 1 | RES 1 | Converted: Residential | 0.3415 | 14876.00 | 0.00 | 0.00 | 1.00 | $86,250 | $0 |
Roll Value History
| 2026 | N/A | N/A | N/A | N/A | N/A |
| 2025 | $368,780 | $155,250 | $0 | $524,030 | $524,030 |
| 2024 | $409,750 | $86,250 | $0 | $496,000 | $496,000 |
| 2023 | $409,750 | $86,250 | $0 | $496,000 | $496,000 |
| 2022 | $341,460 | $86,250 | $0 | $427,710 | $427,710 |
| 2021 | $282,200 | $86,250 | $0 | $368,450 | $368,450 |
| 2020 | $245,390 | $86,250 | $0 | $331,640 | $331,640 |
| 2019 | $266,640 | $65,000 | $0 | $331,640 | $331,640 |
| 2018 | $222,200 | $65,000 | $0 | $287,200 | $287,200 |
| 2017 | $202,000 | $65,000 | $0 | $267,000 | $267,000 |
| 2016 | $202,000 | $65,000 | $0 | $267,000 | $267,000 |
| 2015 | $202,000 | $65,000 | $0 | $267,000 | $267,000 |
| 2014 | $202,000 | $65,000 | $0 | $267,000 | $267,000 |
| 2013 | $202,000 | $65,000 | $0 | $267,000 | $267,000 |
| 2012 | $202,000 | $65,000 | $0 | $0 | $0 |
| 2011 | $202,000 | $65,000 | $0 | $0 | $0 |
| 2010 | $202,000 | $65,000 | $0 | $0 | $0 |
| 2009 | $202,000 | $65,000 | $0 | $0 | $0 |
| 2008 | $0 | $1,900 | $0 | $0 | $0 |
| 2007 | $202,000 | $65,000 | $0 | $0 | $0 |
Deed and Sales History
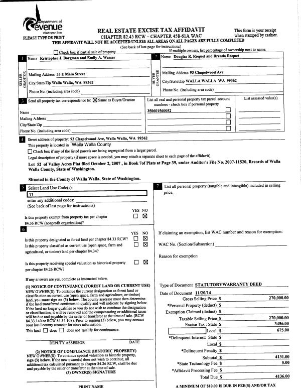
| 1 | 11/21/2014 | SWD | STATUTORY WARRANTY DEED | BORGMAN KRISTOPHER J | ROQUET DOUGLAS R & BRENDA | | | $270,000.00 | 126986 | 2014-08464 |
| 2 | 04/09/2009 | WARRANTY D | WARRANTY DEED | S R HOMES LLC | BORGMAN, KRISTOPHER J | | | $282,000.00 | 116589 | 2009-03532 |
Payout Agreement
| No payout information available.. |