Property
Account |
| Property ID: | 26729 | Abbreviated Legal Description: | HENDERSON TAX 3 BLK 41 PLUS VAC 10' STRIP TO E. |
| Parcel Number: | 360729684103 | Agent Code: | |
| Type: | Real | | |
| Tax Area: | 1 - OL-140-F | Land Use Code | 11 |
| Open Space: | N | DFL | N |
| Historic Property: | N | Remodel Property: | N |
| Multi-Family Redevelopment: | N | | |
| Township: | 7 | Section: | 29 |
| Range: | 36 |
Location |
| Address: | 1118 S 3RD AVE WA 99362 | Mapsco: | |
| Neighborhood: | Fair Res | Map ID: | |
| Neighborhood CD: | 612011 |
Owner |
| Name: | LEMONS MICHAEL W | Owner ID: | 72112 |
| Mailing Address: | 1118 S 3RD AVE WALLA WALLA, WA 99362 | % Ownership: | 100.0000000000% |
| | | Exemptions: | |
Taxes and Assessment Details
Values
| (+) Improvement Homesite Value: | + | $0 | |
| (+) Improvement Non-Homesite Value: | + | $176,310 | |
| (+) Land Homesite Value: | + | $0 | |
| (+) Land Non-Homesite Value: | + | $47,520 | |
| (+) Curr Use (HS): | + | $0 | $0 |
| (+) Curr Use (NHS): | + | $0 | $0 |
| | | -------------------------- | |
| (=) Market Value: | = | $223,830 | |
| (–) Productivity Loss: | – | $0 | |
| | | -------------------------- | |
| (=) Subtotal: | = | $223,830 | |
| (+) Senior Appraised Value: | + | $0 | |
| (+) Non-Senior Appraised Value: | + | $223,830 | |
| | | -------------------------- | |
| (=) Total Appraised Value: | = | $223,830 | |
| (–) Senior Exemption Loss: | – | $0 | |
| (–) Exemption Loss: | – | $0 | |
| | | -------------------------- | |
| (=) Taxable Value: | = | $223,830 | |
Taxing Jurisdiction
| Owner: | LEMONS MICHAEL W | | |
| % Ownership: | 100.0000000000% | | |
| Total Value: | $223,830 | | |
| Tax Area: | 1 - OL-140-F |
| CERFD | CURRENT EXPENSE REFUND 010 | 0.0000000000 | $223,830 | $223,830 | $0.00 | | |
| CURREXP | CURRENT EXPENSE 010 | 1.0175366760 | $223,830 | $223,830 | $227.76 | | |
| HUMNSERV | HUMAN SERVICES 119 | 0.0250000000 | $223,830 | $223,830 | $5.60 | | |
| SLDREL | SOLDIERS RELIEF 121 | 0.0155990005 | $223,830 | $223,830 | $3.49 | | |
| EMERGSER | EMS 147 | 0.3792580840 | $223,830 | $223,830 | $84.89 | | |
| EMSRFD | EMS REFUND 147 | 0.0000000000 | $223,830 | $223,830 | $0.00 | | |
| PORTRFD | PORT REFUND 640 | 0.0000000000 | $223,830 | $223,830 | $0.00 | | |
| PORTWWGEN | PORT OF WW 640 | 0.2460186015 | $223,830 | $223,830 | $55.07 | | |
| SD140BOND | SD #140 BOND 764 | 0.8342371393 | $223,830 | $223,830 | $186.73 | | |
| SD140GEN | SD #140 GENERAL 760 | 2.0646500647 | $223,830 | $223,830 | $462.13 | | |
| ST2 | STATE SCHOOL PART 2 600 | 0.8131451643 | $223,830 | $223,830 | $182.01 | | |
| STATESCHL | STATE SCHOOL 600 | 1.5158548041 | $223,830 | $223,830 | $339.29 | | |
| STREFUND | STATE REFUND LEVY 603 | 0.0000000000 | $223,830 | $223,830 | $0.00 | | |
| CWWBOND | C OF WW BOND 643 | 0.2760494372 | $223,830 | $223,830 | $61.79 | | |
| CWWGEN | CITY OF WW 631 | 1.6100204973 | $223,830 | $223,830 | $360.37 | | |
| CWWRFD | CITY OF WALLA WALLA REFUND 631 | 0.0000000000 | $223,830 | $223,830 | $0.00 | | |
| | Total Tax Rate: | 8.7973694689 | | | | | |
| | | | | Taxes w/Current Exemptions: | $1,969.13 | | |
| | | | | Taxes w/o Exemptions: | $1,969.13 | | |
Improvement / Building
| Improvement #1: | RESIDENTIAL | State Code: | 11 | 878.0 sqft | Value: | $176,310 |
| Exterior Wall: | SIDING | Heating/Cooling: | FORCED AIR | | Number of Bathrooms: | 1 | Number of Bedrooms: | 2 | | Plumbing: | 7 | Roof Covering: | COMP SHINGLE |
|
| | Type | Description | Class CD | Sub Class CD | Year Built | Area |
| | MA | Main Area | 1 | 30 | 1951 | 878.0 |
| | SI1 | SITE IMPROVEMENT | 1 | 30 | 1951 | 1.5 |
| | OPS | OPEN PORCH W/STEPS | 1 | 30 | 1951 | 40.0 |
| | OPS | OPEN PORCH W/STEPS | 1 | 30 | 1951 | 96.0 |
Sketch
Property Image
Land
| 1 | RES 1 | Converted: Residential | 0.1364 | 5940.00 | 0.00 | 0.00 | 1.00 | $47,520 | $0 |
Roll Value History
| 2026 | N/A | N/A | N/A | N/A | N/A |
| 2025 | $164,970 | $59,400 | $0 | $224,370 | $224,370 |
| 2024 | $176,310 | $47,520 | $0 | $223,830 | $223,830 |
| 2023 | $176,310 | $47,520 | $0 | $223,830 | $223,830 |
| 2022 | $207,430 | $37,130 | $0 | $244,560 | $244,560 |
| 2021 | $148,160 | $37,130 | $0 | $185,290 | $185,290 |
| 2020 | $113,970 | $37,130 | $0 | $151,100 | $151,100 |
| 2019 | $113,970 | $37,130 | $0 | $151,100 | $151,100 |
| 2018 | $115,500 | $35,600 | $0 | $151,100 | $151,100 |
| 2017 | $82,500 | $35,600 | $0 | $118,100 | $118,100 |
| 2016 | $75,000 | $35,600 | $0 | $110,600 | $110,600 |
| 2015 | $75,000 | $35,600 | $0 | $110,600 | $110,600 |
| 2014 | $75,000 | $35,600 | $0 | $110,600 | $110,600 |
| 2013 | $75,000 | $35,600 | $0 | $110,600 | $110,600 |
| 2012 | $75,000 | $35,600 | $0 | $0 | $0 |
| 2011 | $75,000 | $35,600 | $0 | $0 | $0 |
| 2010 | $69,700 | $35,600 | $0 | $0 | $0 |
| 2009 | $81,400 | $35,600 | $0 | $0 | $0 |
| 2008 | $81,400 | $35,600 | $0 | $0 | $0 |
| 2007 | $47,900 | $11,900 | $0 | $0 | $0 |
Deed and Sales History
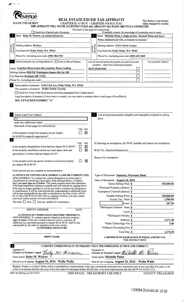
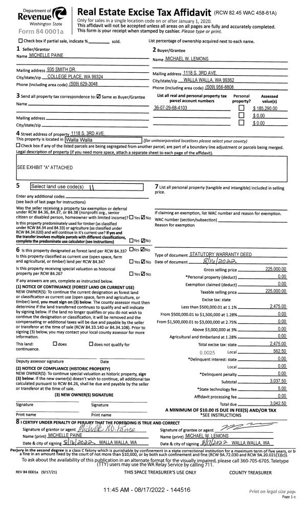
| 1 | 08/17/2022 | SWD | STATUTORY WARRANTY DEED | PAINE MICHELLE | LEMONS MICHAEL W | | | $225,000.00 | 144516 | 2022-06891 |
| 2 | 03/31/2022 | QCD | QUIT CLAIM DEED | PAINE MICHELLE | PAINE MICHELLE | | | $0.00 | 143740 | 2022-02986 |
| 3 | 03/29/2022 | DPR | DEED OF PERSONAL REPRESENTATIVE | PAINE MICHELLE & | PAINE MICHELLE | | | $0.00 | 143644 | 2022-02608 |
| 4 | 08/26/2016 | SWD | STATUTORY WARRANTY DEED | WEAVER RUBY M | PAINE MICHELLE & | | | $155,000.00 | 130894 | 2016-06852 |
| 5 | 08/10/2015 | DFL | DEED IN LIEU OF FORECLOSURE | NEVIN JORDAN | WEAVER RUBY M | | | $0.00 | 128582 | 2015-06992 |
| 6 | 03/17/2009 | WARRANTY D | WARRANTY DEED | WEAVER, RUBY | NEVIN, JORDAN | | | $115,000.00 | 116469 | 2009-02569 |
| 7 | 01/12/1977 | WARRANTY D | WARRANTY DEED | | | | | $0.00 | 66557 | 2820-397281 |
Payout Agreement
| No payout information available.. |