Property
Account |
| Property ID: | 26725 | Abbreviated Legal Description: | 29-7-36 TAX 60H |
| Parcel Number: | 360729430009 | Agent Code: | |
| Type: | Real | | |
| Tax Area: | 1 - OL-140-F | Land Use Code | 11 |
| Open Space: | N | DFL | N |
| Historic Property: | N | Remodel Property: | N |
| Multi-Family Redevelopment: | N | | |
| Township: | 7 | Section: | 29 |
| Range: | 36 |
Location |
| Address: | 1312 S 2ND AVE WA 99362 | Mapsco: | |
| Neighborhood: | A Res | Map ID: | |
| Neighborhood CD: | 613011 |
Owner |
| Name: | HEISMAN EVAN A & REBECCA ANNE | Owner ID: | 67343 |
| Mailing Address: | 1312 S 2ND AVE WALLA WALLA, WA 99362 | % Ownership: | 100.0000000000% |
| | | Exemptions: | |
Taxes and Assessment Details
Values
| (+) Improvement Homesite Value: | + | N/A | |
| (+) Improvement Non-Homesite Value: | + | N/A | |
| (+) Land Homesite Value: | + | N/A | |
| (+) Land Non-Homesite Value: | + | N/A | Ag / Timber Use Value |
| (+) Curr Use (HS): | + | N/A | N/A |
| (+) Curr Use (NHS): | + | N/A | N/A |
| | | -------------------------- | |
| (=) Market Value: | = | N/A | |
| (–) Productivity Loss: | – | N/A | |
| | | -------------------------- | |
| (=) Subtotal: | = | N/A | |
| (+) Senior Appraised Value: | + | N/A | |
| (+) Non-Senior Appraised Value: | + | N/A | |
| | | -------------------------- | |
| (=) Total Appraised Value: | = | N/A | |
| (–) Senior Exemption Loss: | – | N/A | |
| (–) Exemption Loss: | – | N/A | |
| | | -------------------------- | |
| (=) Taxable Value: | = | N/A | |
Taxing Jurisdiction
| Owner: | HEISMAN EVAN A & REBECCA ANNE | | |
| % Ownership: | 100.0000000000% | | |
| Total Value: | N/A | | |
| Tax Area: | 1 - OL-140-F |
| CERFD | CURRENT EXPENSE REFUND 010 | N/A | N/A | N/A | N/A | | |
| CURREXP | CURRENT EXPENSE 010 | N/A | N/A | N/A | N/A | | |
| HUMNSERV | HUMAN SERVICES 119 | N/A | N/A | N/A | N/A | | |
| SLDREL | SOLDIERS RELIEF 121 | N/A | N/A | N/A | N/A | | |
| EMERGSER | EMS 147 | N/A | N/A | N/A | N/A | | |
| EMSRFD | EMS REFUND 147 | N/A | N/A | N/A | N/A | | |
| PORTRFD | PORT REFUND 640 | N/A | N/A | N/A | N/A | | |
| PORTWWGEN | PORT OF WW 640 | N/A | N/A | N/A | N/A | | |
| SD140BOND | SD #140 BOND 764 | N/A | N/A | N/A | N/A | | |
| SD140GEN | SD #140 GENERAL 760 | N/A | N/A | N/A | N/A | | |
| ST2 | STATE SCHOOL PART 2 600 | N/A | N/A | N/A | N/A | | |
| STATESCHL | STATE SCHOOL 600 | N/A | N/A | N/A | N/A | | |
| STREFUND | STATE REFUND LEVY 603 | N/A | N/A | N/A | N/A | | |
| CWWBOND | C OF WW BOND 643 | N/A | N/A | N/A | N/A | | |
| CWWGEN | CITY OF WW 631 | N/A | N/A | N/A | N/A | | |
| CWWRFD | CITY OF WALLA WALLA REFUND 631 | N/A | N/A | N/A | N/A | | |
| | Total Tax Rate: | N/A | | | | | |
| | | | | Taxes w/Current Exemptions: | N/A | | |
| | | | | Taxes w/o Exemptions: | N/A | | |
Improvement / Building
| Improvement #1: | RESIDENTIAL | State Code: | 11 | 1411.0 sqft | Value: | N/A |
| Exterior Wall: | SIDING | Heating/Cooling: | WARM & COOLED AIR | | Number of Bathrooms: | 2 | Number of Bedrooms: | 4 | | Plumbing: | 11 | Roof Covering: | COMP SHINGLE |
|
| | Type | Description | Class CD | Sub Class CD | Year Built | Area |
| | MA | Main Area | 1 | 35 | 1950 | 1411.0 |
| | SI1 | SITE IMPROVEMENT | 1 | 35 | 1950 | 4.5 |
| | BASE | BASEMENT | 1 | 35 | 1950 | 1411.0 |
| | BPF | BASEMENT -PARTITIONED FINISH | 1 | 35 | 1950 | 1411.0 |
| | DTG | Detached Garage | 1 | 35 | 1950 | 702.0 |
| | RPS | PORCH W/STEPS,ROOF | 1 | 35 | 1950 | 22.0 |
| | S1F | Single One Story Fireplace | 1 | 35 | 1950 | 1.0 |
| | CPC | COVERED CARPORT/PATIO | 1 | 35 | 1950 | 450.0 |
Sketch
Property Image
Land
| 1 | RES 1 | Converted: Residential | 0.2837 | 12356.00 | 0.00 | 0.00 | 1.00 | N/A | N/A |
Roll Value History
| 2026 | N/A | N/A | N/A | N/A | N/A |
| 2025 | $341,930 | $112,190 | $0 | $454,120 | $454,120 |
| 2024 | $356,220 | $91,810 | $0 | $448,030 | $448,030 |
| 2023 | $356,220 | $91,810 | $0 | $448,030 | $448,030 |
| 2022 | $356,220 | $73,770 | $0 | $429,990 | $429,990 |
| 2021 | $296,850 | $73,770 | $0 | $370,620 | $370,620 |
| 2020 | $258,130 | $73,770 | $0 | $331,900 | $331,900 |
| 2019 | $258,130 | $73,770 | $0 | $331,900 | $331,900 |
| 2018 | $167,100 | $49,100 | $0 | $216,200 | $216,200 |
| 2017 | $151,910 | $49,100 | $0 | $201,010 | $201,010 |
| 2016 | $138,100 | $49,100 | $0 | $187,200 | $187,200 |
| 2015 | $138,100 | $49,100 | $0 | $187,200 | $187,200 |
| 2014 | $138,100 | $49,100 | $0 | $187,200 | $187,200 |
| 2013 | $138,100 | $49,100 | $0 | $187,200 | $187,200 |
| 2012 | $138,100 | $49,100 | $0 | $0 | $0 |
| 2011 | $138,100 | $49,100 | $0 | $0 | $0 |
| 2010 | $113,700 | $49,100 | $0 | $0 | $0 |
| 2009 | $131,800 | $49,100 | $0 | $0 | $0 |
| 2008 | $131,800 | $49,100 | $0 | $0 | $0 |
| 2007 | $96,200 | $20,700 | $0 | $0 | $0 |
Deed and Sales History
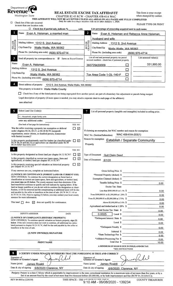
| 1 | 06/01/2020 | QCD | QUIT CLAIM DEED | HEISMAN EVAN A | HEISMAN EVAN A & REBECCA ANNE | | | $0.00 | 139234 | 2020-05060 |
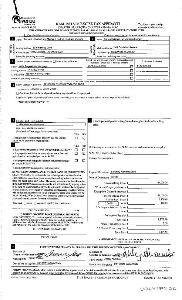
| 2 | 09/24/2013 | WARRANTY D | WARRANTY DEED | HARTNELL, BERNARD L & MARTHA E | HEISMAN, EVAN A | | | $188,000.00 | 124706 | 2013-09740 |
| 3 | 03/18/2009 | QCD | QUIT CLAIM DEED | HARTNELL, BERNARD L | HARTNELL, BERNARD L & MARTHA E | | | | 116479 | 2009-02629 |
| 4 | 12/02/2003 | WARRANTY D | WARRANTY DEED | HART WALTER C & LORETTA G | HARTNELL BERNARD L | | | $144,900.00 | 103640 | 2003-18386 |
|   | |
| 5 | 12/09/1999 | WARRANTY D | WARRANTY DEED | | | | | $115,000.00 | 94149 | 2929-913775 |
|   | |
Payout Agreement
| No payout information available.. |