Property
Account |
| Property ID: | 26719 | Abbreviated Legal Description: | 23-7-38 (PTNS TRACTS 18 & 20 OF ELK RIDGE SURVEY) (PARCEL 2 OF '07SURVEY) CENTER PTN OF NW1/4NE1/4; CENTER PTN OF NE1/4NW1/4;CENTER PTN OF NW1/4NW1/4 LESS WLY PTNS |
| Parcel Number: | 380723120005 | Agent Code: | |
| Type: | Real | | |
| Tax Area: | 309 - 101 | Land Use Code | 88 |
| Open Space: | N | DFL | Y |
| Historic Property: | N | Remodel Property: | N |
| Multi-Family Redevelopment: | N | | |
| Township: | 7 | Section: | 23 |
| Range: | 38 |
Location |
| Address: | WA 99329 | Mapsco: | |
| Neighborhood: | 0 Farm | Map ID: | |
| Neighborhood CD: | 5250 |
Owner |
| Name: | MOORE THOMAS WALTER | Owner ID: | 70842 |
| Mailing Address: | 8116 MASSEY DR PASCO, WA 99301 | % Ownership: | 100.0000000000% |
| | | Exemptions: | |
Taxes and Assessment Details
Property Tax Information as of
02/21/2026
Click on "Statement Details" to expand or collapse a tax statement.
* Please enter a valid date ** Please enter a valid date *
Statement Details |
| | TOTAL: | $0.00 | $0.00 | $0.00 | $0.00 | $0.00 | $0.00 |
|
| | $0.00 | $0.00 | $0.00 | $0.00 | $0.00 | $0.00 |
Values
| (+) Improvement Homesite Value: | + | $0 | |
| (+) Improvement Non-Homesite Value: | + | $0 | |
| (+) Land Homesite Value: | + | $0 | |
| (+) Land Non-Homesite Value: | + | $15,000 | |
| (+) Curr Use (HS): | + | $0 | $0 |
| (+) Curr Use (NHS): | + | $20,180 | $4,220 |
| | | -------------------------- | |
| (=) Market Value: | = | $35,180 | |
| (–) Productivity Loss: | – | $15,960 | |
| | | -------------------------- | |
| (=) Subtotal: | = | $19,220 | |
| (+) Senior Appraised Value: | + | $0 | |
| (+) Non-Senior Appraised Value: | + | $19,220 | |
| | | -------------------------- | |
| (=) Total Appraised Value: | = | $19,220 | |
| (–) Senior Exemption Loss: | – | $0 | |
| (–) Exemption Loss: | – | $0 | |
| | | -------------------------- | |
| (=) Taxable Value: | = | $19,220 | |
Taxing Jurisdiction
| Owner: | MOORE THOMAS WALTER | | |
| % Ownership: | 100.0000000000% | | |
| Total Value: | $35,180 | | |
| Tax Area: | 309 - 101 |
| CERFD | CURRENT EXPENSE REFUND 010 | 0.0000000000 | $19,220 | $19,220 | $0.00 | | |
| CURREXP | CURRENT EXPENSE 010 | 1.0175366760 | $19,220 | $19,220 | $19.56 | | |
| HUMNSERV | HUMAN SERVICES 119 | 0.0250000000 | $19,220 | $19,220 | $0.48 | | |
| SLDREL | SOLDIERS RELIEF 121 | 0.0155990005 | $19,220 | $19,220 | $0.30 | | |
| EMERGSER | EMS 147 | 0.3792580840 | $19,220 | $19,220 | $7.29 | | |
| EMSRFD | EMS REFUND 147 | 0.0000000000 | $19,220 | $19,220 | $0.00 | | |
| RLBRFD | RURAL LIBRARY REFUND 623 | 0.0000000000 | $19,220 | $19,220 | $0.00 | | |
| RURALLIB | RURAL LIBRARY 623 | 0.3710609029 | $19,220 | $19,220 | $7.13 | | |
| PORTRFD | PORT REFUND 640 | 0.0000000000 | $19,220 | $19,220 | $0.00 | | |
| PORTWWGEN | PORT OF WW 640 | 0.2460186015 | $19,220 | $19,220 | $4.73 | | |
| SD101CAP | SD #101 CAP 752 | 0.5894423472 | $19,220 | $19,220 | $11.33 | | |
| SD101GEN | SD #101 GENERAL 750 | 0.7455117868 | $19,220 | $19,220 | $14.33 | | |
| ST2 | STATE SCHOOL PART 2 600 | 0.8131451643 | $19,220 | $19,220 | $15.63 | | |
| STATESCHL | STATE SCHOOL 600 | 1.5158548041 | $19,220 | $19,220 | $29.13 | | |
| STREFUND | STATE REFUND LEVY 603 | 0.0000000000 | $19,220 | $19,220 | $0.00 | | |
| COROAD | COUNTY ROAD 115 | 1.6549953990 | $19,220 | $19,220 | $31.81 | | |
| CRPRD | COUNTY ROAD REFUND 115 | 0.0000000000 | $19,220 | $19,220 | $0.00 | | |
| | Total Tax Rate: | 7.3734227663 | | | | | |
| | | | | Taxes w/Current Exemptions: | $141.72 | | |
| | | | | Taxes w/o Exemptions: | $141.72 | | |
Improvement / Building
Sketch
| No sketches available for this property. |
Property Image
Land
| 1 | 15000-HS2 | Homesite 15000 No Open Space | 1.0000 | 43560.00 | 0.00 | 0.00 | 1.00 | $15,000 | $0 |
| 2 | 11-TBR | Timber | 35.0000 | 0.00 | 0.00 | 0.00 | 1.00 | $17,500 | $2,350 |
| 3 | 3-MTN | Mountain | 5.3500 | 233046.00 | 0.00 | 0.00 | 1.00 | $2,680 | $1,870 |
Roll Value History
| 2026 | N/A | N/A | N/A | N/A | N/A |
| 2025 | $0 | $60,810 | $4,490 | $19,490 | $19,490 |
| 2024 | $0 | $60,810 | $4,490 | $19,490 | $19,490 |
| 2023 | $0 | $35,180 | $4,220 | $19,220 | $19,220 |
| 2022 | $0 | $35,180 | $4,180 | $19,180 | $19,180 |
| 2021 | $0 | $35,180 | $4,180 | $19,180 | $19,180 |
| 2020 | $0 | $35,180 | $3,920 | $18,920 | $18,920 |
| 2019 | $0 | $35,180 | $3,820 | $18,820 | $18,820 |
| 2018 | $0 | $35,180 | $3,780 | $18,780 | $18,780 |
| 2017 | $0 | $20,680 | $2,170 | $5,350 | $5,350 |
| 2016 | $0 | $20,680 | $2,140 | $5,320 | $5,320 |
| 2015 | $0 | $20,680 | $2,030 | $5,210 | $5,210 |
| 2014 | $0 | $20,680 | $1,960 | $5,140 | $5,140 |
| 2013 | $0 | $20,700 | $5,200 | $5,200 | $5,200 |
| 2012 | $0 | $5,300 | $0 | $0 | $0 |
| 2011 | $0 | $5,300 | $0 | $0 | $0 |
| 2010 | $0 | $5,300 | $0 | $0 | $0 |
| 2009 | $0 | $5,300 | $0 | $0 | $0 |
| 2008 | $0 | $8,000 | $0 | $0 | $0 |
| 2007 | $0 | $20,700 | $0 | $0 | $0 |
Deed and Sales History
| 1 | 12/13/2021 | QCD | QUIT CLAIM DEED | MOORE THOMAS & KATHY | MOORE THOMAS WALTER | | | $0.00 | 143165 | 2021-15195 |
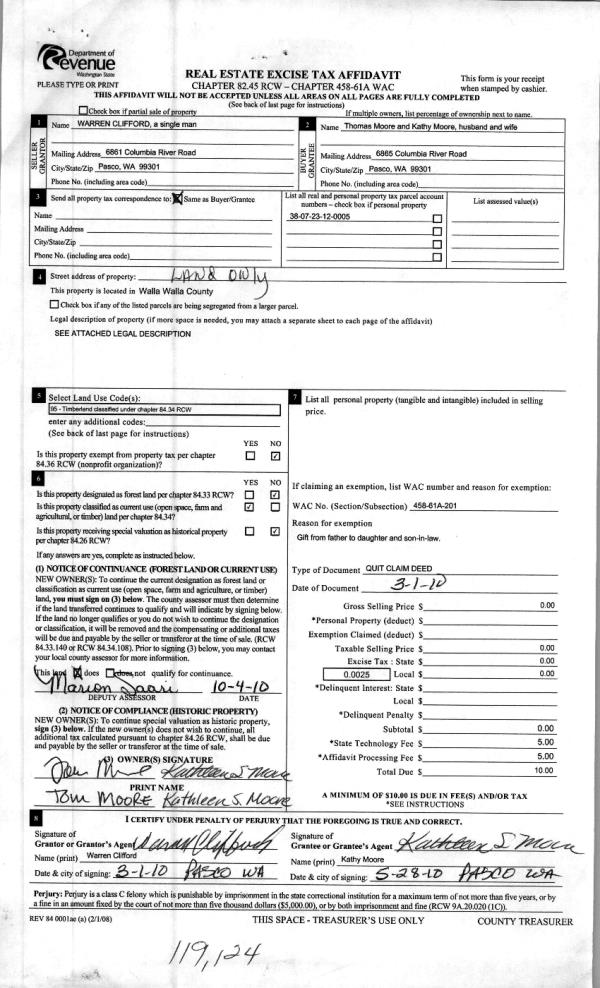
| 2 | 10/04/2010 | QCD | QUIT CLAIM DEED | CLIFFORD, WARREN | MOORE, THOMAS & KATHY | | | | 119124 | 2010-07954 |
| 3 | 03/26/2009 | QCD | QUIT CLAIM DEED | CLIFFORD, WARREN | MOORE, THOMAS & KATHY | | | | 116526 | 2009-02952 |
| 4 | 03/14/2008 | QCD | QUIT CLAIM DEED | CLIFFORD, WARREN | MOORE, THOMAS & KATHY | | | | 114678 | 2008-02407 |
Payout Agreement
| No payout information available.. |