Property
Account |
| Property ID: | 26711 | Abbreviated Legal Description: | TULL PARK LOT 2 BLK 2 |
| Parcel Number: | 360727580202 | Agent Code: | |
| Type: | Real | | |
| Tax Area: | 105 - 140-F-4 | Land Use Code | 11 |
| Open Space: | N | DFL | N |
| Historic Property: | N | Remodel Property: | N |
| Multi-Family Redevelopment: | N | | |
| Township: | 7 | Section: | 27 |
| Range: | 36 |
Location |
| Address: | 1417 TULL DR WA 99362 | Mapsco: | |
| Neighborhood: | A Res | Map ID: | |
| Neighborhood CD: | 613011 |
Owner |
| Name: | JENSEN JOSEPH R & COURTNEY R JENSEN-KREBS | Owner ID: | 66803 |
| Mailing Address: | 1417 TULL DRIVE WALLA WALLA, WA 99362 | % Ownership: | 100.0000000000% |
| | | Exemptions: | |
Taxes and Assessment Details
Property Tax Information as of
02/21/2026
Click on "Statement Details" to expand or collapse a tax statement.
* Please enter a valid date ** Please enter a valid date *
Statement Details |
| | TOTAL: | $0.00 | $0.00 | $0.00 | $0.00 | $0.00 | $0.00 |
|
| | $0.00 | $0.00 | $0.00 | $0.00 | $0.00 | $0.00 |
Values
| (+) Improvement Homesite Value: | + | $0 | |
| (+) Improvement Non-Homesite Value: | + | $281,710 | |
| (+) Land Homesite Value: | + | $0 | |
| (+) Land Non-Homesite Value: | + | $89,640 | |
| (+) Curr Use (HS): | + | $0 | $0 |
| (+) Curr Use (NHS): | + | $0 | $0 |
| | | -------------------------- | |
| (=) Market Value: | = | $371,350 | |
| (–) Productivity Loss: | – | $0 | |
| | | -------------------------- | |
| (=) Subtotal: | = | $371,350 | |
| (+) Senior Appraised Value: | + | $0 | |
| (+) Non-Senior Appraised Value: | + | $371,350 | |
| | | -------------------------- | |
| (=) Total Appraised Value: | = | $371,350 | |
| (–) Senior Exemption Loss: | – | $0 | |
| (–) Exemption Loss: | – | $0 | |
| | | -------------------------- | |
| (=) Taxable Value: | = | $371,350 | |
Taxing Jurisdiction
| Owner: | JENSEN JOSEPH R & COURTNEY R JENSEN-KREBS | | |
| % Ownership: | 100.0000000000% | | |
| Total Value: | $371,350 | | |
| Tax Area: | 105 - 140-F-4 |
| CERFD | CURRENT EXPENSE REFUND 010 | 0.0000000000 | $371,350 | $371,350 | $0.00 | | |
| CURREXP | CURRENT EXPENSE 010 | 1.0175366760 | $371,350 | $371,350 | $377.86 | | |
| HUMNSERV | HUMAN SERVICES 119 | 0.0250000000 | $371,350 | $371,350 | $9.28 | | |
| SLDREL | SOLDIERS RELIEF 121 | 0.0155990005 | $371,350 | $371,350 | $5.79 | | |
| EMERGSER | EMS 147 | 0.3792580840 | $371,350 | $371,350 | $140.84 | | |
| EMSRFD | EMS REFUND 147 | 0.0000000000 | $371,350 | $371,350 | $0.00 | | |
| FD4EXP | FD #4 EXPENSE 686 | 0.8836993059 | $371,350 | $371,350 | $328.16 | | |
| RLBRFD | RURAL LIBRARY REFUND 623 | 0.0000000000 | $371,350 | $371,350 | $0.00 | | |
| RURALLIB | RURAL LIBRARY 623 | 0.3710609029 | $371,350 | $371,350 | $137.79 | | |
| PORTRFD | PORT REFUND 640 | 0.0000000000 | $371,350 | $371,350 | $0.00 | | |
| PORTWWGEN | PORT OF WW 640 | 0.2460186015 | $371,350 | $371,350 | $91.36 | | |
| SD140BOND | SD #140 BOND 764 | 0.8342371393 | $371,350 | $371,350 | $309.79 | | |
| SD140GEN | SD #140 GENERAL 760 | 2.0646500647 | $371,350 | $371,350 | $766.71 | | |
| ST2 | STATE SCHOOL PART 2 600 | 0.8131451643 | $371,350 | $371,350 | $301.96 | | |
| STATESCHL | STATE SCHOOL 600 | 1.5158548041 | $371,350 | $371,350 | $562.91 | | |
| STREFUND | STATE REFUND LEVY 603 | 0.0000000000 | $371,350 | $371,350 | $0.00 | | |
| COROAD | COUNTY ROAD 115 | 1.6549953990 | $371,350 | $371,350 | $614.58 | | |
| CRPRD | COUNTY ROAD REFUND 115 | 0.0000000000 | $371,350 | $371,350 | $0.00 | | |
| | Total Tax Rate: | 9.8210551422 | | | | | |
| | | | | Taxes w/Current Exemptions: | $3,647.03 | | |
| | | | | Taxes w/o Exemptions: | $3,647.03 | | |
Improvement / Building
| Improvement #1: | RESIDENTIAL | State Code: | 11 | 1104.0 sqft | Value: | $281,710 |
| Exterior Wall: | SIDING | Heating/Cooling: | WARM & COOLED AIR | | Number of Bathrooms: | 2.5 | Number of Bedrooms: | 3 | | Plumbing: | 11 | Roof Covering: | COMP SHINGLE |
|
| | Type | Description | Class CD | Sub Class CD | Year Built | Area |
| | MA | Main Area | 1 | 30 | 1963 | 1104.0 |
| | SI1 | SITE IMPROVEMENT | 1 | 30 | 1963 | 1.5 |
| | BASE | BASEMENT | 1 | 30 | 1963 | 1080.0 |
| | BPF | BASEMENT -PARTITIONED FINISH | 1 | 30 | 1963 | 1080.0 |
| | RPO | OPEN PORCH W/ROOF | 1 | 30 | 1963 | 10.0 |
| | CPC | COVERED CARPORT/PATIO | 1 | 30 | 1963 | 324.0 |
Sketch
Property Image
Land
| 1 | RES 1 | Converted: Residential | 0.2287 | 9960.00 | 0.00 | 0.00 | 1.00 | $89,640 | $0 |
Roll Value History
| 2026 | N/A | N/A | N/A | N/A | N/A |
| 2025 | $264,240 | $109,560 | $0 | $373,800 | $373,800 |
| 2024 | $281,710 | $89,640 | $0 | $371,350 | $371,350 |
| 2023 | $281,710 | $89,640 | $0 | $371,350 | $371,350 |
| 2022 | $234,760 | $72,210 | $0 | $306,970 | $306,970 |
| 2021 | $204,140 | $72,210 | $0 | $276,350 | $276,350 |
| 2020 | $157,030 | $72,210 | $0 | $229,240 | $229,240 |
| 2019 | $157,030 | $72,210 | $0 | $229,240 | $229,240 |
| 2018 | $133,030 | $47,100 | $0 | $180,130 | $180,130 |
| 2017 | $115,680 | $47,100 | $0 | $162,780 | $162,780 |
| 2016 | $96,400 | $47,100 | $0 | $143,500 | $143,500 |
| 2015 | $85,900 | $47,100 | $0 | $133,000 | $133,000 |
| 2014 | $85,900 | $47,100 | $0 | $133,000 | $133,000 |
| 2013 | $85,900 | $47,100 | $0 | $133,000 | $133,000 |
| 2012 | $132,800 | $47,100 | $0 | $0 | $0 |
| 2011 | $132,800 | $47,100 | $0 | $0 | $0 |
| 2010 | $132,800 | $47,100 | $0 | $0 | $0 |
| 2009 | $152,800 | $47,100 | $0 | $0 | $0 |
| 2008 | $152,800 | $47,100 | $0 | $0 | $0 |
| 2007 | $90,800 | $24,600 | $0 | $0 | $0 |
Deed and Sales History
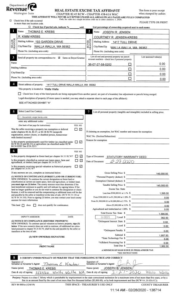
| 1 | 02/28/2020 | SWD | STATUTORY WARRANTY DEED | KREBS THOMAS E & R KIMM | JENSEN JOSEPH R & COURTNEY R JENSEN-KREBS | | | $145,000.00 | 138714 | 2020-01886 |
| 2 | 02/22/2012 | WARRANTY D | WARRANTY DEED | TINNIE, LORENCE T & PEGGIE C | KREBS, THOMAS E & R KIMM | | | $140,000.00 | 121425 | 2012-01501 |
| 3 | 02/26/1982 | WARRANTY D | WARRANTY DEED | | | | | $57,500.00 | 0 | 1318-201571 |
Payout Agreement
| No payout information available.. |