Property
Account |
| Property ID: | 26701 | Abbreviated Legal Description: | DAVISONS HOME LOT 3 OF S/P (SLY 84' OF W1/2 OF BLK 7 LESS STRIP TOW.) |
| Parcel Number: | 360728560704 | Agent Code: | |
| Type: | Real | | |
| Tax Area: | 15 - WW City Annex | Land Use Code | 11 |
| Open Space: | N | DFL | N |
| Historic Property: | N | Remodel Property: | N |
| Multi-Family Redevelopment: | N | | |
| Township: | 7 | Section: | 28 |
| Range: | 36 |
Location |
| Address: | 1270 WHITTINGTON LN WALLA WALLA, WA 99362 | Mapsco: | |
| Neighborhood: | G Res | Map ID: | |
| Neighborhood CD: | 614011 |
Owner |
| Name: | ORTIZ JORGE L & DEBORAH A | Owner ID: | 1471 |
| Mailing Address: | 2308 GARDENA RD TOUCHET, WA 99360 | % Ownership: | 100.0000000000% |
| | | Exemptions: | |
Taxes and Assessment Details
Property Tax Information as of
02/21/2026
Click on "Statement Details" to expand or collapse a tax statement.
* Please enter a valid date ** Please enter a valid date *
Statement Details |
| | TOTAL: | $0.00 | $0.00 | $0.00 | $0.00 | $0.00 | $0.00 |
|
| | $0.00 | $0.00 | $0.00 | $0.00 | $0.00 | $0.00 |
Values
| (+) Improvement Homesite Value: | + | $0 | |
| (+) Improvement Non-Homesite Value: | + | $355,830 | |
| (+) Land Homesite Value: | + | $0 | |
| (+) Land Non-Homesite Value: | + | $96,130 | |
| (+) Curr Use (HS): | + | $0 | $0 |
| (+) Curr Use (NHS): | + | $0 | $0 |
| | | -------------------------- | |
| (=) Market Value: | = | $451,960 | |
| (–) Productivity Loss: | – | $0 | |
| | | -------------------------- | |
| (=) Subtotal: | = | $451,960 | |
| (+) Senior Appraised Value: | + | $0 | |
| (+) Non-Senior Appraised Value: | + | $451,960 | |
| | | -------------------------- | |
| (=) Total Appraised Value: | = | $451,960 | |
| (–) Senior Exemption Loss: | – | $0 | |
| (–) Exemption Loss: | – | $0 | |
| | | -------------------------- | |
| (=) Taxable Value: | = | $451,960 | |
Taxing Jurisdiction
| Owner: | ORTIZ JORGE L & DEBORAH A | | |
| % Ownership: | 100.0000000000% | | |
| Total Value: | $451,960 | | |
| Tax Area: | 15 - WW City Annex |
| CERFD | CURRENT EXPENSE REFUND 010 | 0.0000000000 | $451,960 | $451,960 | $0.00 | | |
| CURREXP | CURRENT EXPENSE 010 | 1.0175366760 | $451,960 | $451,960 | $459.89 | | |
| HUMNSERV | HUMAN SERVICES 119 | 0.0250000000 | $451,960 | $451,960 | $11.30 | | |
| SLDREL | SOLDIERS RELIEF 121 | 0.0155990005 | $451,960 | $451,960 | $7.05 | | |
| EMERGSER | EMS 147 | 0.3792580840 | $451,960 | $451,960 | $171.41 | | |
| EMSRFD | EMS REFUND 147 | 0.0000000000 | $451,960 | $451,960 | $0.00 | | |
| PORTRFD | PORT REFUND 640 | 0.0000000000 | $451,960 | $451,960 | $0.00 | | |
| PORTWWGEN | PORT OF WW 640 | 0.2460186015 | $451,960 | $451,960 | $111.19 | | |
| SD140BOND | SD #140 BOND 764 | 0.8342371393 | $451,960 | $451,960 | $377.04 | | |
| SD140GEN | SD #140 GENERAL 760 | 2.0646500647 | $451,960 | $451,960 | $933.14 | | |
| ST2 | STATE SCHOOL PART 2 600 | 0.8131451643 | $451,960 | $451,960 | $367.51 | | |
| STATESCHL | STATE SCHOOL 600 | 1.5158548041 | $451,960 | $451,960 | $685.11 | | |
| STREFUND | STATE REFUND LEVY 603 | 0.0000000000 | $451,960 | $451,960 | $0.00 | | |
| CWWBOND | C OF WW BOND 643 | 0.2760494372 | $451,960 | $451,960 | $124.76 | | |
| CWWGEN | CITY OF WW 631 | 1.6100204973 | $451,960 | $451,960 | $727.66 | | |
| CWWRFD | CITY OF WALLA WALLA REFUND 631 | 0.0000000000 | $451,960 | $451,960 | $0.00 | | |
| | Total Tax Rate: | 8.7973694689 | | | | | |
| | | | | Taxes w/Current Exemptions: | $3,976.06 | | |
| | | | | Taxes w/o Exemptions: | $3,976.06 | | |
Improvement / Building
| Improvement #1: | RESIDENTIAL | State Code: | 11 | 1836.0 sqft | Value: | $355,830 |
| Exterior Wall: | SIDING | Heating/Cooling: | HEAT PUMP | | Number of Bathrooms: | 2 | Number of Bedrooms: | 4 | | Plumbing: | 10 | Roof Covering: | COMP SHINGLE |
|
| | Type | Description | Class CD | Sub Class CD | Year Built | Area |
| | MA | Main Area | 1 | 35 | 2016 | 1836.0 |
| | SI1 | SITE IMPROVEMENT | 1 | 35 | 2016 | 2.0 |
| | RPC | OPEN PORCH W/ROOF , CEILED | 1 | 35 | 2016 | 40.0 |
| | RPC | OPEN PORCH W/ROOF , CEILED | 1 | 35 | 2016 | 102.0 |
| | ATG | Attached Garage | 1 | 35 | 2016 | 506.0 |
Sketch
Property Image
Land
| 1 | RES 1 | Converted: Residential | 0.2207 | 9613.00 | 0.00 | 0.00 | 1.00 | $96,130 | $0 |
Roll Value History
| 2026 | N/A | N/A | N/A | N/A | N/A |
| 2025 | $353,650 | $115,360 | $0 | $469,010 | $469,010 |
| 2024 | $355,830 | $96,130 | $0 | $451,960 | $451,960 |
| 2023 | $355,830 | $96,130 | $0 | $451,960 | $451,960 |
| 2022 | $355,830 | $79,310 | $0 | $435,140 | $435,140 |
| 2021 | $263,580 | $79,310 | $0 | $342,890 | $342,890 |
| 2020 | $210,860 | $79,310 | $0 | $290,170 | $290,170 |
| 2019 | $210,860 | $79,310 | $0 | $290,170 | $290,170 |
| 2018 | $216,930 | $46,800 | $0 | $263,730 | $263,730 |
| 2017 | $210,610 | $46,800 | $0 | $257,410 | $257,410 |
| 2016 | $56,340 | $46,800 | $0 | $103,140 | $103,140 |
| 2015 | $0 | $46,800 | $0 | $46,800 | $46,800 |
| 2014 | $0 | $46,800 | $0 | $46,800 | $46,800 |
| 2013 | $0 | $46,800 | $0 | $46,800 | $46,800 |
| 2012 | $0 | $46,800 | $0 | $0 | $0 |
| 2011 | $0 | $46,800 | $0 | $0 | $0 |
| 2010 | $0 | $46,800 | $0 | $0 | $0 |
| 2009 | $0 | $46,800 | $0 | $0 | $0 |
| 2008 | $0 | $46,800 | $0 | $0 | $0 |
| 2007 | $0 | $24,300 | $0 | $0 | $0 |
Deed and Sales History
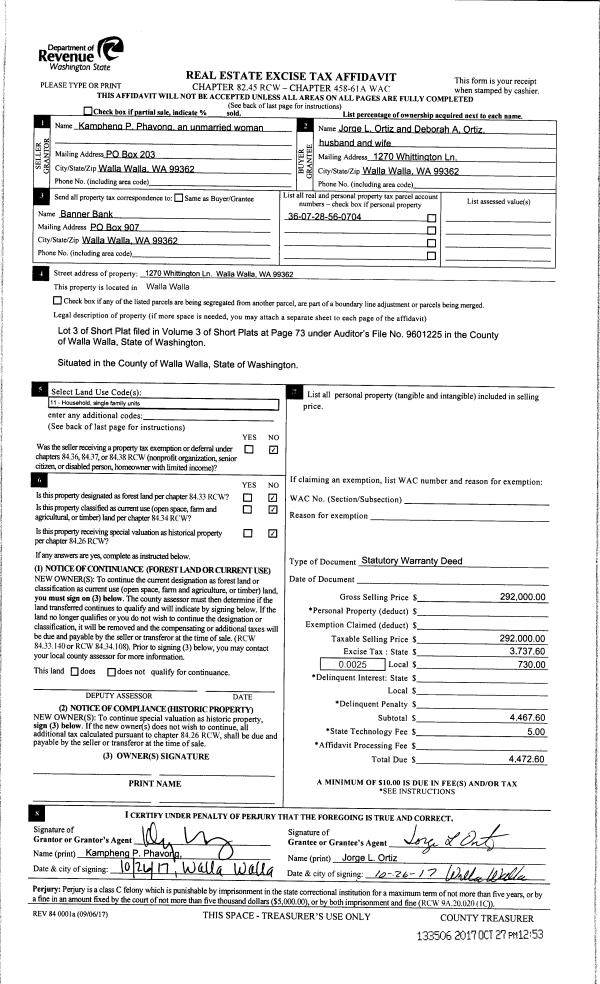
| 1 | 10/27/2017 | SWD | STATUTORY WARRANTY DEED | PHAVONG KHAMPHENG | ORTIZ JORGE L & DEBORAH A | | | $292,000.00 | 133506 | 2017-08620 |
| 2 | 05/16/2016 | QCD | QUIT CLAIM DEED | ELEPHANT CONSTRUCTION LLC | PHAVONG KHAMPHENG | | | $0.00 | 130218 | 2016-03619 |
| 3 | 03/25/2009 | QCD | QUIT CLAIM DEED | PHAVONG, KHAMPHENG | ELEPHANT CONSTRUCTION LLC | | | | 116519 | 2009-02882 |
| 4 | 11/03/2006 | WARRANTY D | WARRANTY DEED | STEPHENS, HOWARD A | PHAVONG KHAMPHENG | | | $131,500.00 | 111597 | 2006-13299 |
|   | |
| 5 | 04/28/2006 | WARRANTY D | WARRANTY DEED | BORUP, BRYAN H & JILL K | STEPHENS HOWARD A | | | $100,000.00 | 110143 | 2006-04810 |
|   | |
Payout Agreement
| No payout information available.. |