Property
Account |
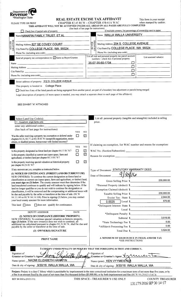
| Property ID: | 26692 | Abbreviated Legal Description: | CP #2 TAX 6 LESS WLY STRIP LOT 4 BLK 17 |
| Parcel Number: | 350735601704 | Agent Code: | |
| Type: | Real | | |
| Tax Area: | 75 - CP 250 | Land Use Code | 11 |
| Open Space: | N | DFL | N |
| Historic Property: | N | Remodel Property: | N |
| Multi-Family Redevelopment: | N | | |
| Township: | 7 | Section: | 35 |
| Range: | 35 |
Location |
| Address: | 512 S COLLEGE AVE #1 WA 99324 | Mapsco: | |
| Neighborhood: | A SFR | Map ID: | |
| Neighborhood CD: | 113011 |
Owner |
| Name: | WALLA WALLA UNIVERSITY | Owner ID: | 45263 |
| Mailing Address: | 204 S COLLEGE AVE COLLEGE PLACE, WA 99324 | % Ownership: | 100.0000000000% |
| | | Exemptions: | |
Taxes and Assessment Details
Values
| (+) Improvement Homesite Value: | + | $0 | |
| (+) Improvement Non-Homesite Value: | + | $269,000 | |
| (+) Land Homesite Value: | + | $0 | |
| (+) Land Non-Homesite Value: | + | $62,020 | |
| (+) Curr Use (HS): | + | $0 | $0 |
| (+) Curr Use (NHS): | + | $0 | $0 |
| | | -------------------------- | |
| (=) Market Value: | = | $331,020 | |
| (–) Productivity Loss: | – | $0 | |
| | | -------------------------- | |
| (=) Subtotal: | = | $331,020 | |
| (+) Senior Appraised Value: | + | $0 | |
| (+) Non-Senior Appraised Value: | + | $331,020 | |
| | | -------------------------- | |
| (=) Total Appraised Value: | = | $331,020 | |
| (–) Senior Exemption Loss: | – | $0 | |
| (–) Exemption Loss: | – | $0 | |
| | | -------------------------- | |
| (=) Taxable Value: | = | $331,020 | |
Taxing Jurisdiction
| Owner: | WALLA WALLA UNIVERSITY | | |
| % Ownership: | 100.0000000000% | | |
| Total Value: | $331,020 | | |
| Tax Area: | 75 - CP 250 |
| CERFD | CURRENT EXPENSE REFUND 010 | 0.0000000000 | $331,020 | $331,020 | $0.00 | | |
| CURREXP | CURRENT EXPENSE 010 | 1.0175366760 | $331,020 | $331,020 | $336.82 | | |
| HUMNSERV | HUMAN SERVICES 119 | 0.0250000000 | $331,020 | $331,020 | $8.28 | | |
| SLDREL | SOLDIERS RELIEF 121 | 0.0155990005 | $331,020 | $331,020 | $5.16 | | |
| COLLPLBOND | C OF CP BOND 644 | 0.4374241808 | $331,020 | $331,020 | $144.80 | | |
| COLLPLGEN | CITY OF CP 632 | 1.4453819216 | $331,020 | $331,020 | $478.45 | | |
| EMERGSER | EMS 147 | 0.3792580840 | $331,020 | $331,020 | $125.54 | | |
| EMSRFD | EMS REFUND 147 | 0.0000000000 | $331,020 | $331,020 | $0.00 | | |
| RURALLIB | RURAL LIBRARY 623 | 0.3710609029 | $331,020 | $331,020 | $122.83 | | |
| PORTRFD | PORT REFUND 640 | 0.0000000000 | $331,020 | $331,020 | $0.00 | | |
| PORTWWGEN | PORT OF WW 640 | 0.2460186015 | $331,020 | $331,020 | $81.44 | | |
| SD250BOND | SD #250 BOND 773 | 1.4560608159 | $331,020 | $331,020 | $481.99 | | |
| SD250GEN | SD #250 GENERAL 770 | 2.3880724087 | $331,020 | $331,020 | $790.50 | | |
| ST2 | STATE SCHOOL PART 2 600 | 0.8131451643 | $331,020 | $331,020 | $269.17 | | |
| STATESCHL | STATE SCHOOL 600 | 1.5158548041 | $331,020 | $331,020 | $501.78 | | |
| STREFUND | STATE REFUND LEVY 603 | 0.0000000000 | $331,020 | $331,020 | $0.00 | | |
| | Total Tax Rate: | 10.1104125603 | | | | | |
| | | | | Taxes w/Current Exemptions: | $3,346.76 | | |
| | | | | Taxes w/o Exemptions: | $3,346.76 | | |
Improvement / Building
| Improvement #1: | RESIDENTIAL | State Code: | 11 | 1302.0 sqft | Value: | $269,000 |
| Exterior Wall: | SIDING | Heating/Cooling: | WARM & COOLED AIR | | Number of Bathrooms: | 3 | Number of Bedrooms: | 3 | | Plumbing: | 14 | Roof Covering: | COMP SHINGLE |
|
| | Type | Description | Class CD | Sub Class CD | Year Built | Area |
| | MA | Main Area | 1 | 30 | 1910 | 1302.0 |
| | SI1 | SITE IMPROVEMENT | 1 | 30 | 1910 | 1.5 |
| | BASE | BASEMENT | 1 | 30 | 1910 | 1288.0 |
| | BPF | BASEMENT -PARTITIONED FINISH | 1 | 30 | 1910 | 1288.0 |
| | SWP | Solid Wall Porch | 1 | 30 | 1910 | 96.0 |
| | SWP | Solid Wall Porch | 1 | 30 | 1910 | 84.0 |
Sketch
Property Image
Land
| 1 | RES 1 | Converted: Residential | 0.2617 | 11400.00 | 0.00 | 0.00 | 1.00 | $62,020 | $0 |
Roll Value History
| 2026 | N/A | N/A | N/A | N/A | N/A |
| 2025 | $269,000 | $92,800 | $0 | $361,800 | $361,800 |
| 2024 | $269,000 | $62,020 | $0 | $331,020 | $331,020 |
| 2023 | $269,000 | $62,020 | $0 | $331,020 | $331,020 |
| 2022 | $269,000 | $62,020 | $0 | $331,020 | $331,020 |
| 2021 | $215,200 | $62,020 | $0 | $277,220 | $277,220 |
| 2020 | $172,160 | $62,020 | $0 | $234,180 | $234,180 |
| 2019 | $185,880 | $48,300 | $0 | $234,180 | $234,180 |
| 2018 | $168,980 | $48,300 | $0 | $217,280 | $217,280 |
| 2017 | $140,820 | $48,300 | $0 | $189,120 | $189,120 |
| 2016 | $88,010 | $48,300 | $0 | $136,310 | $136,310 |
| 2015 | $83,820 | $48,300 | $0 | $132,120 | $132,120 |
| 2014 | $76,200 | $48,300 | $0 | $124,500 | $124,500 |
| 2013 | $76,200 | $48,300 | $0 | $124,500 | $124,500 |
| 2012 | $76,200 | $48,300 | $0 | $0 | $0 |
| 2011 | $76,200 | $48,300 | $0 | $0 | $0 |
| 2010 | $70,300 | $48,300 | $0 | $0 | $0 |
| 2009 | $83,500 | $48,300 | $0 | $0 | $0 |
| 2008 | $98,500 | $26,000 | $0 | $0 | $0 |
| 2007 | $98,500 | $26,000 | $0 | $0 | $0 |
Deed and Sales History
| 1 | 09/30/2016 | SWD | STATUTORY WARRANTY DEED | HANAFIN HOWARD & ANNABELLE | WALLA WALLA UNIVERSITY | | | $230,000.00 | 131179 | 2016-08095 |
| 2 | 04/10/2009 | QCD | QUIT CLAIM DEED | HANAFIN, HOWARD & ANNABELLE | HANAFIN, GARRY D | | | | 116602 | 2009-03598 |
| 3 | 12/11/2008 | QCD | QUIT CLAIM DEED | HANAFIN, HOWARD & ANNABELLE | HANAFIN, GARRY; KENNETH HANAFI | | | | 116074 | 2008-12226 |
| 4 | 06/12/1986 | WARRANTY D | WARRANTY DEED | | | | | $49,500.00 | 0 | 1458-405706 |
Payout Agreement
| No payout information available.. |