Property
Account |
| Property ID: | 26688 | Abbreviated Legal Description: | TABLEROCK SUBD LOT 3 |
| Parcel Number: | 360604580003 | Agent Code: | |
| Type: | Real | | |
| Tax Area: | 5 - OL-140 | Land Use Code | 11 |
| Open Space: | N | DFL | N |
| Historic Property: | N | Remodel Property: | N |
| Multi-Family Redevelopment: | N | | |
| Township: | 6 | Section: | 4 |
| Range: | 36 |
Location |
| Address: | 45 WOLF FORK PL WA 99362 | Mapsco: | |
| Neighborhood: | VG Res Rural/City Inf | Map ID: | |
| Neighborhood CD: | 615012 |
Owner |
| Name: | ROMANICK TYSON R & ANNE A | Owner ID: | 65631 |
| Mailing Address: | 45 WOLF FORK PL WALLA WALLA, WA 99362 | % Ownership: | 100.0000000000% |
| | | Exemptions: | |
Taxes and Assessment Details
Property Tax Information as of
02/21/2026
Click on "Statement Details" to expand or collapse a tax statement.
* Please enter a valid date ** Please enter a valid date *
Statement Details |
| | TOTAL: | $0.00 | $0.00 | $0.00 | $0.00 | $0.00 | $0.00 |
|
| | $0.00 | $0.00 | $0.00 | $0.00 | $0.00 | $0.00 |
Values
| (+) Improvement Homesite Value: | + | $0 | |
| (+) Improvement Non-Homesite Value: | + | $482,490 | |
| (+) Land Homesite Value: | + | $0 | |
| (+) Land Non-Homesite Value: | + | $120,000 | |
| (+) Curr Use (HS): | + | $0 | $0 |
| (+) Curr Use (NHS): | + | $0 | $0 |
| | | -------------------------- | |
| (=) Market Value: | = | $602,490 | |
| (–) Productivity Loss: | – | $0 | |
| | | -------------------------- | |
| (=) Subtotal: | = | $602,490 | |
| (+) Senior Appraised Value: | + | $0 | |
| (+) Non-Senior Appraised Value: | + | $602,490 | |
| | | -------------------------- | |
| (=) Total Appraised Value: | = | $602,490 | |
| (–) Senior Exemption Loss: | – | $0 | |
| (–) Exemption Loss: | – | $0 | |
| | | -------------------------- | |
| (=) Taxable Value: | = | $602,490 | |
Taxing Jurisdiction
| Owner: | ROMANICK TYSON R & ANNE A | | |
| % Ownership: | 100.0000000000% | | |
| Total Value: | $602,490 | | |
| Tax Area: | 5 - OL-140 |
| CERFD | CURRENT EXPENSE REFUND 010 | 0.0000000000 | $602,490 | $602,490 | $0.00 | | |
| CURREXP | CURRENT EXPENSE 010 | 1.0175366760 | $602,490 | $602,490 | $613.06 | | |
| HUMNSERV | HUMAN SERVICES 119 | 0.0250000000 | $602,490 | $602,490 | $15.06 | | |
| SLDREL | SOLDIERS RELIEF 121 | 0.0155990005 | $602,490 | $602,490 | $9.40 | | |
| EMERGSER | EMS 147 | 0.3792580840 | $602,490 | $602,490 | $228.50 | | |
| EMSRFD | EMS REFUND 147 | 0.0000000000 | $602,490 | $602,490 | $0.00 | | |
| PORTRFD | PORT REFUND 640 | 0.0000000000 | $602,490 | $602,490 | $0.00 | | |
| PORTWWGEN | PORT OF WW 640 | 0.2460186015 | $602,490 | $602,490 | $148.22 | | |
| SD140BOND | SD #140 BOND 764 | 0.8342371393 | $602,490 | $602,490 | $502.62 | | |
| SD140GEN | SD #140 GENERAL 760 | 2.0646500647 | $602,490 | $602,490 | $1,243.93 | | |
| ST2 | STATE SCHOOL PART 2 600 | 0.8131451643 | $602,490 | $602,490 | $489.91 | | |
| STATESCHL | STATE SCHOOL 600 | 1.5158548041 | $602,490 | $602,490 | $913.29 | | |
| STREFUND | STATE REFUND LEVY 603 | 0.0000000000 | $602,490 | $602,490 | $0.00 | | |
| CWWBOND | C OF WW BOND 643 | 0.2760494372 | $602,490 | $602,490 | $166.32 | | |
| CWWGEN | CITY OF WW 631 | 1.6100204973 | $602,490 | $602,490 | $970.02 | | |
| CWWRFD | CITY OF WALLA WALLA REFUND 631 | 0.0000000000 | $602,490 | $602,490 | $0.00 | | |
| | Total Tax Rate: | 8.7973694689 | | | | | |
| | | | | Taxes w/Current Exemptions: | $5,300.33 | | |
| | | | | Taxes w/o Exemptions: | $5,300.33 | | |
Improvement / Building
| Improvement #1: | RESIDENTIAL | State Code: | 11 | 1688.0 sqft | Value: | $482,490 |
| Exterior Wall: | HARDBOARD | Heating/Cooling: | WARM & COOLED AIR | | Number of Bathrooms: | 3 | Number of Bedrooms: | 4 | | Plumbing: | 13 | Roof Covering: | COMP SHINGLE |
|
| | Type | Description | Class CD | Sub Class CD | Year Built | Area |
| | MA | Main Area | 11 | 45 | 2005 | 1688.0 |
| | SI1 | SITE IMPROVEMENT | 11 | 45 | 2005 | 3.5 |
| | BASE | BASEMENT | 11 | 45 | 2005 | 696.0 |
| | BPF | BASEMENT -PARTITIONED FINISH | 11 | 45 | 2005 | 696.0 |
| | BIG | Built In Garage | 11 | 45 | 2005 | 942.0 |
| | GFP | GAS FIREPLACE | 11 | 45 | 2005 | 1.0 |
| | RCD | WOOD DECK W/ROOF, CEILED | 11 | 45 | 2005 | 160.0 |
| | PRC | PORCH W STEPS, ROOF,CEILED | 11 | 45 | 2005 | 91.0 |
Sketch
Property Image
Land
| 1 | RES 1 | Converted: Residential | 0.2467 | 10747.00 | 0.00 | 0.00 | 1.00 | $120,000 | $0 |
Roll Value History
| 2026 | N/A | N/A | N/A | N/A | N/A |
| 2025 | $505,710 | $180,000 | $0 | $685,710 | $685,710 |
| 2024 | $482,490 | $120,000 | $0 | $602,490 | $602,490 |
| 2023 | $482,490 | $120,000 | $0 | $602,490 | $602,490 |
| 2022 | $459,510 | $95,000 | $0 | $554,510 | $554,510 |
| 2021 | $382,930 | $95,000 | $0 | $477,930 | $477,930 |
| 2020 | $332,980 | $95,000 | $0 | $427,980 | $427,980 |
| 2019 | $332,980 | $95,000 | $0 | $427,980 | $427,980 |
| 2018 | $287,700 | $50,000 | $0 | $337,700 | $337,700 |
| 2017 | $274,000 | $50,000 | $0 | $324,000 | $324,000 |
| 2016 | $274,000 | $50,000 | $0 | $324,000 | $324,000 |
| 2015 | $274,000 | $50,000 | $0 | $324,000 | $324,000 |
| 2014 | $274,000 | $50,000 | $0 | $324,000 | $324,000 |
| 2013 | $274,000 | $50,000 | $0 | $324,000 | $324,000 |
| 2012 | $269,000 | $55,000 | $0 | $0 | $0 |
| 2011 | $290,000 | $70,000 | $0 | $0 | $0 |
| 2010 | $297,100 | $70,000 | $0 | $0 | $0 |
| 2009 | $279,600 | $70,000 | $0 | $0 | $0 |
| 2008 | $279,600 | $70,000 | $0 | $0 | $0 |
| 2007 | $289,200 | $50,000 | $0 | $0 | $0 |
Deed and Sales History
| 1 | 07/24/2019 | SWD | STATUTORY WARRANTY DEED | OLSEN JOEL I & JULIE C | ROMANICK TYSON R & ANNE A | | | $429,000.00 | 137348 | 2019-05409 |
| 2 | 05/29/2015 | SWD | STATUTORY WARRANTY DEED | PHILLIPS STANLEY & LISA | OLSEN JOEL I & JULIE C | | | $340,000.00 | 128057 | 2015-04522 |
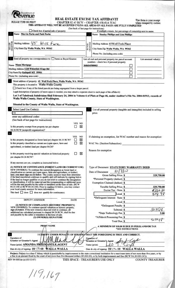
| 3 | 10/12/2010 | WARRANTY D | WARRANTY DEED | PARKS, MARVIN L & PATRICIA A | PHILLIPS, STANLEY & LISA | | | $329,750.00 | 119169 | 2010-08204 |
| 4 | 03/23/2009 | WARRANTY D | WARRANTY DEED | PEARSON, SEAN & RUBY | PARKS, MARVIN L & PATRICIA A | | | $365,000.00 | 116504 | 2009-02811 |
| 5 | 04/17/2006 | WARRANTY D | WARRANTY DEED | FROESE, STANLEY A | PEARSON, SEAN & RUBY | | | $350,000.00 | 110048 | 2006-04330 |
| 6 | 01/04/2005 | WARRANTY D | WARRANTY DEED | GATEWOOD, W PAUL | FROESE, STANLEY A | | | $43,500.00 | 106541 | 2005-00139 |
Payout Agreement
| No payout information available.. |