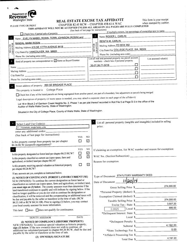
Property
Account |
| Property ID: | 26648 | Abbreviated Legal Description: | WATERTOWN S 60' OF LOT 1 BLK 17 (B) S 60' OF E 11.58' OF LOT 2 BLK17 (B) |
| Parcel Number: | 360721731721 | Agent Code: | |
| Type: | Real | | |
| Tax Area: | 1 - OL-140-F | Land Use Code | 11 |
| Open Space: | N | DFL | N |
| Historic Property: | N | Remodel Property: | N |
| Multi-Family Redevelopment: | N | | |
| Township: | 7 | Section: | 21 |
| Range: | 36 |
Location |
| Address: | 308 S ROOSEVELT ST WA 99362 | Mapsco: | |
| Neighborhood: | A-SFR | Map ID: | |
| Neighborhood CD: | 513011 |
Owner |
| Name: | PEREZ ESTELLA R | Owner ID: | 55727 |
| Mailing Address: | 308 S ROOSEVELT ST WALLA WALLA, WA 99362 | % Ownership: | 100.0000000000% |
| | | Exemptions: | |
Taxes and Assessment Details
Values
| (+) Improvement Homesite Value: | + | $0 | |
| (+) Improvement Non-Homesite Value: | + | $262,590 | |
| (+) Land Homesite Value: | + | $0 | |
| (+) Land Non-Homesite Value: | + | $27,380 | |
| (+) Curr Use (HS): | + | $0 | $0 |
| (+) Curr Use (NHS): | + | $0 | $0 |
| | | -------------------------- | |
| (=) Market Value: | = | $289,970 | |
| (–) Productivity Loss: | – | $0 | |
| | | -------------------------- | |
| (=) Subtotal: | = | $289,970 | |
| (+) Senior Appraised Value: | + | $0 | |
| (+) Non-Senior Appraised Value: | + | $289,970 | |
| | | -------------------------- | |
| (=) Total Appraised Value: | = | $289,970 | |
| (–) Senior Exemption Loss: | – | $0 | |
| (–) Exemption Loss: | – | $0 | |
| | | -------------------------- | |
| (=) Taxable Value: | = | $289,970 | |
Taxing Jurisdiction
| Owner: | PEREZ ESTELLA R | | |
| % Ownership: | 100.0000000000% | | |
| Total Value: | $289,970 | | |
| Tax Area: | 1 - OL-140-F |
| CERFD | CURRENT EXPENSE REFUND 010 | 0.0000000000 | $289,970 | $289,970 | $0.00 | | |
| CURREXP | CURRENT EXPENSE 010 | 1.0175366760 | $289,970 | $289,970 | $295.06 | | |
| HUMNSERV | HUMAN SERVICES 119 | 0.0250000000 | $289,970 | $289,970 | $7.25 | | |
| SLDREL | SOLDIERS RELIEF 121 | 0.0155990005 | $289,970 | $289,970 | $4.52 | | |
| EMERGSER | EMS 147 | 0.3792580840 | $289,970 | $289,970 | $109.97 | | |
| EMSRFD | EMS REFUND 147 | 0.0000000000 | $289,970 | $289,970 | $0.00 | | |
| PORTRFD | PORT REFUND 640 | 0.0000000000 | $289,970 | $289,970 | $0.00 | | |
| PORTWWGEN | PORT OF WW 640 | 0.2460186015 | $289,970 | $289,970 | $71.34 | | |
| SD140BOND | SD #140 BOND 764 | 0.8342371393 | $289,970 | $289,970 | $241.90 | | |
| SD140GEN | SD #140 GENERAL 760 | 2.0646500647 | $289,970 | $289,970 | $598.69 | | |
| ST2 | STATE SCHOOL PART 2 600 | 0.8131451643 | $289,970 | $289,970 | $235.79 | | |
| STATESCHL | STATE SCHOOL 600 | 1.5158548041 | $289,970 | $289,970 | $439.55 | | |
| STREFUND | STATE REFUND LEVY 603 | 0.0000000000 | $289,970 | $289,970 | $0.00 | | |
| CWWBOND | C OF WW BOND 643 | 0.2760494372 | $289,970 | $289,970 | $80.05 | | |
| CWWGEN | CITY OF WW 631 | 1.6100204973 | $289,970 | $289,970 | $466.86 | | |
| CWWRFD | CITY OF WALLA WALLA REFUND 631 | 0.0000000000 | $289,970 | $289,970 | $0.00 | | |
| | Total Tax Rate: | 8.7973694689 | | | | | |
| | | | | Taxes w/Current Exemptions: | $2,550.98 | | |
| | | | | Taxes w/o Exemptions: | $2,550.98 | | |
Improvement / Building
| Improvement #1: | RESIDENTIAL | State Code: | 11 | 756.0 sqft | Value: | $262,590 |
| Exterior Wall: | SIDING | Heating/Cooling: | FORCED AIR | | Number of Bathrooms: | 2 | Number of Bedrooms: | 2 | | Plumbing: | 10 | Roof Covering: | COMP SHINGLE |
|
| | Type | Description | Class CD | Sub Class CD | Year Built | Area |
| | MA | Main Area | 1 | 30 | 1938 | 756.0 |
| | SI1 | SITE IMPROVEMENT | 1 | 30 | 1938 | 1.0 |
| | BASE | BASEMENT | 1 | 30 | 1938 | 756.0 |
| | BPF | BASEMENT -PARTITIONED FINISH | 1 | 30 | 1938 | 756.0 |
| | S1F | Single One Story Fireplace | 1 | 30 | 1938 | 1.0 |
| | RPS | PORCH W/STEPS,ROOF | 1 | 30 | 1938 | 45.0 |
| | DTG | Detached Garage | 1 | 30 | 1938 | 216.0 |
Sketch
Property Image
Land
| 1 | RES 1 | Converted: Residential | 0.1006 | 4380.00 | 0.00 | 0.00 | 1.00 | $27,380 | $0 |
Roll Value History
| 2026 | N/A | N/A | N/A | N/A | N/A |
| 2025 | $253,290 | $43,800 | $0 | $297,090 | $297,090 |
| 2024 | $241,230 | $43,800 | $0 | $285,030 | $285,030 |
| 2023 | $262,590 | $27,380 | $0 | $289,970 | $289,970 |
| 2022 | $250,090 | $27,380 | $0 | $277,470 | $277,470 |
| 2021 | $217,470 | $27,380 | $0 | $244,850 | $244,850 |
| 2020 | $149,980 | $27,380 | $0 | $177,360 | $177,360 |
| 2019 | $149,980 | $27,380 | $0 | $177,360 | $177,360 |
| 2018 | $124,980 | $27,380 | $0 | $152,360 | $152,360 |
| 2017 | $131,150 | $17,500 | $0 | $148,650 | $148,650 |
| 2016 | $124,900 | $17,500 | $0 | $142,400 | $142,400 |
| 2015 | $124,900 | $17,500 | $0 | $142,400 | $142,400 |
| 2014 | $124,900 | $17,500 | $0 | $142,400 | $142,400 |
| 2013 | $124,900 | $17,500 | $0 | $142,400 | $142,400 |
| 2012 | $124,900 | $17,500 | $0 | $0 | $0 |
| 2011 | $124,900 | $17,500 | $0 | $0 | $0 |
| 2010 | $92,000 | $17,500 | $0 | $0 | $0 |
| 2009 | $104,200 | $17,500 | $0 | $0 | $0 |
| 2008 | $98,400 | $17,500 | $0 | $0 | $0 |
| 2007 | $98,400 | $17,500 | $0 | $0 | $0 |
Deed and Sales History
| 1 | 11/19/2014 | SWD | STATUTORY WARRANTY DEED | GIAMMALVA SAM J REV LVG TRUST | PEREZ ESTELLA R | | | $144,900.00 | 126964 | 2014-08398 |
| 2 | 02/25/2009 | QCD | QUIT CLAIM DEED | GIAMMALVA, SAM & BARBARA | GIAMMALVA, SAM J REV LVG TRUST | | | | 116379 | 2009-01839 |
| 3 | 11/04/2008 | WARRANTY D | WARRANTY DEED | BAYLER, MATTHEW C SR | GIAMMALVA, SAM & BARBARA | | | $169,000.00 | 115924 | 2008-11128 |
| 4 | 08/23/2004 | QCD | QUIT CLAIM DEED | BAYLER, CHERRY D | BAYLER, MATTHEW C SR | | | | 105552 | 2004-09663 |
| 5 | 08/23/2004 | QCD | QUIT CLAIM DEED | MADSEN, BRANDON D & JENNIFER W | BAYLER, MATTHEW C SR | | | $115,000.00 | 105553 | 2004 09664 |
| 6 | 08/28/2000 | WARRANTY D | WARRANTY DEED | | | | | $59,500.00 | 95704 | 3020-008188 |
Payout Agreement
| No payout information available.. |