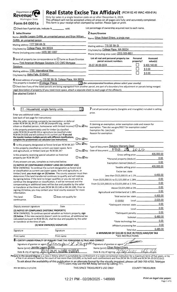
| 1 | 02/28/2025 | SWD | STATUTORY WARRANTY DEED | GRIFFITH JENNIFER LEEANN & BRIAN WILLIAM | EHLERS ETHAN ROBERT | | | $405,000.00 | 148999 | 2025-01040 |
| 2 | 07/29/2022 | SWD | STATUTORY WARRANTY DEED | STOBER RICHARD A & KATHERINE M LE VASSEUR | GRIFFITH JENNIFER LEEANN & BRIAN WILLIAM | | | $415,000.00 | 144392 | 2022-06344 |
| 3 | 08/06/2021 | SWD | STATUTORY WARRANTY DEED | SMITH CHARLIE E & JOAN L | STOBER RICHARD A & KATHERINE M LE VASSEUR | | | $375,000.00 | 142229 | 2021-09600 |
| 4 | 02/04/2009 | WARRANTY D | WARRANTY DEED | UPPER COLUMBIA CORP OF SEVENTH | SMITH, CHARLIE E & JOAN L | | | $0.00 | 116290 | 2009-01002 |
| 5 | 01/30/2009 | WARRANTY D | WARRANTY DEED | PAGE, THELMA I LIFE EST | SMITH, CHARLIE E & JOAN L | | | $187,500.00 | 116274 | 2009-00890 |
| 6 | 09/05/1995 | WARRANTY D | WARRANTY DEED | | | | | $155,000.00 | 84673 | 2339-508467 |