Property
Account |
| Property ID: | 26612 | Abbreviated Legal Description: | 28-7-36 PTN (PARCEL 3 SURVEY 2023-03049) PTN ADJ TRACT A; PLUS PTN ADJ TRACT B SURVEY 2007-05903 (PTN TAX 154A; PLUS PTN TAX 115; PLUS PTN 64A) |
| Parcel Number: | 360728310018 | Agent Code: | |
| Type: | Real | | |
| Tax Area: | 6 - OL-140-F-FB | Land Use Code | 91 |
| Open Space: | N | DFL | N |
| Historic Property: | N | Remodel Property: | N |
| Multi-Family Redevelopment: | N | | |
| Township: | 7 | Section: | 28 |
| Range: | 36 |
Location |
| Address: | 1350 SAGAMORE PL WA 99362 | Mapsco: | |
| Neighborhood: | G Res Land Contig | Map ID: | |
| Neighborhood CD: | 614097 |
Owner |
| Name: | THOMAS DANIEL C THOMAS & BECKY J REVOCABLE TRUST | Owner ID: | 62409 |
| Mailing Address: | 756 BRYANT AVE WALLA WALLA, WA 99362 | % Ownership: | 100.0000000000% |
| | | Exemptions: | |
Taxes and Assessment Details
Values
| (+) Improvement Homesite Value: | + | $0 | |
| (+) Improvement Non-Homesite Value: | + | $0 | |
| (+) Land Homesite Value: | + | $0 | |
| (+) Land Non-Homesite Value: | + | $10,760 | |
| (+) Curr Use (HS): | + | $0 | $0 |
| (+) Curr Use (NHS): | + | $0 | $0 |
| | | -------------------------- | |
| (=) Market Value: | = | $10,760 | |
| (–) Productivity Loss: | – | $0 | |
| | | -------------------------- | |
| (=) Subtotal: | = | $10,760 | |
| (+) Senior Appraised Value: | + | $0 | |
| (+) Non-Senior Appraised Value: | + | $10,760 | |
| | | -------------------------- | |
| (=) Total Appraised Value: | = | $10,760 | |
| (–) Senior Exemption Loss: | – | $0 | |
| (–) Exemption Loss: | – | $0 | |
| | | -------------------------- | |
| (=) Taxable Value: | = | $10,760 | |
Taxing Jurisdiction
| Owner: | THOMAS DANIEL C THOMAS & BECKY J REVOCABLE TRUST | | |
| % Ownership: | 100.0000000000% | | |
| Total Value: | $10,760 | | |
| Tax Area: | 6 - OL-140-F-FB |
| CERFD | CURRENT EXPENSE REFUND 010 | 0.0000000000 | $10,760 | $10,760 | $0.00 | | |
| CURREXP | CURRENT EXPENSE 010 | 0.9851088983 | $10,760 | $10,760 | $10.60 | | |
| HUMNSERV | HUMAN SERVICES 119 | 0.0250000000 | $10,760 | $10,760 | $0.27 | | |
| SLDREL | SOLDIERS RELIEF 121 | 0.0155990000 | $10,760 | $10,760 | $0.17 | | |
| EMERGSER | EMS 147 | 0.3676811629 | $10,760 | $10,760 | $3.96 | | |
| EMSRFD | EMS REFUND 147 | 0.0000000000 | $10,760 | $10,760 | $0.00 | | |
| PORTRFD | PORT REFUND 640 | 0.0000000000 | $10,760 | $10,760 | $0.00 | | |
| PORTWWGEN | PORT OF WW 640 | 0.2344301070 | $10,760 | $10,760 | $2.52 | | |
| SD140BOND | SD #140 BOND 764 | 0.8032434458 | $10,760 | $10,760 | $8.64 | | |
| SD140CAP | SD #140 CAP 762 | 0.3840034221 | $10,760 | $10,760 | $4.13 | | |
| SD140GEN | SD #140 GENERAL 760 | 2.4999999996 | $10,760 | $10,760 | $26.90 | | |
| ST2 | STATE SCHOOL PART 2 600 | 0.8853714103 | $10,760 | $10,760 | $9.53 | | |
| STATESCHL | STATE SCHOOL 600 | 1.6424571473 | $10,760 | $10,760 | $17.67 | | |
| STREFUND | STATE REFUND LEVY 603 | 0.0000000000 | $10,760 | $10,760 | $0.00 | | |
| CWWBOND | C OF WW BOND 643 | 0.2642134255 | $10,760 | $10,760 | $2.84 | | |
| CWWGEN | CITY OF WW 631 | 1.6110494978 | $10,760 | $10,760 | $17.33 | | |
| CWWRFD | CITY OF WALLA WALLA REFUND 631 | 0.0000000000 | $10,760 | $10,760 | $0.00 | | |
| | Total Tax Rate: | 9.7181575166 | | | | | |
| | | | | Taxes w/Current Exemptions: | $104.56 | | |
| | | | | Taxes w/o Exemptions: | $104.56 | | |
Improvement / Building
Sketch
| No sketches available for this property. |
Property Image
Land
| 1 | RES 1 | Converted: Residential | 0.2972 | 12944.00 | 0.00 | 0.00 | 1.00 | $10,760 | $0 |
Roll Value History
| 2026 | N/A | N/A | N/A | N/A | N/A |
| 2025 | $0 | $10,760 | $0 | $10,760 | $10,760 |
| 2024 | $0 | $5,370 | $0 | $5,370 | $5,370 |
| 2023 | $0 | $5,370 | $0 | $5,370 | $5,370 |
| 2022 | $0 | $3,680 | $0 | $3,680 | $3,680 |
| 2021 | $0 | $3,680 | $0 | $3,680 | $3,680 |
| 2020 | $0 | $3,680 | $0 | $3,680 | $3,680 |
| 2019 | $0 | $3,680 | $0 | $3,680 | $3,680 |
| 2018 | $0 | $4,800 | $0 | $4,800 | $4,800 |
| 2017 | $0 | $4,800 | $0 | $4,800 | $4,800 |
| 2016 | $0 | $4,800 | $0 | $4,800 | $4,800 |
| 2015 | $0 | $4,800 | $0 | $4,800 | $4,800 |
| 2014 | $0 | $4,800 | $0 | $4,800 | $4,800 |
| 2013 | $0 | $4,800 | $0 | $4,800 | $4,800 |
| 2012 | $0 | $4,800 | $0 | $0 | $0 |
| 2011 | $0 | $4,800 | $0 | $0 | $0 |
| 2010 | $0 | $4,800 | $0 | $0 | $0 |
| 2009 | $0 | $4,800 | $0 | $0 | $0 |
| 2008 | $0 | $4,800 | $0 | $0 | $0 |
| 2007 | $0 | $2,000 | $0 | $0 | $0 |
Deed and Sales History
| 1 | 12/05/2023 | QCD | QUIT CLAIM DEED | THOMAS DANIEL C THOMAS & BECKY J REVOCABLE TRUST | THOMAS DANIEL C THOMAS & BECKY J REVOCABLE TRUST | | | | 146889 | 2023-07026 |
| 2 | 12/05/2023 | QCD | QUIT CLAIM DEED | THOMAS DANIEL C THOMAS & BECKY J REVOCABLE TRUST | THOMAS DANIEL C THOMAS & BECKY J REVOCABLE TRUST | | | | 146887 | 2023-07024 |
| 3 | 12/11/2023 | SURVEY | SURVEY | | | | | | 0 | 2023-03049 |
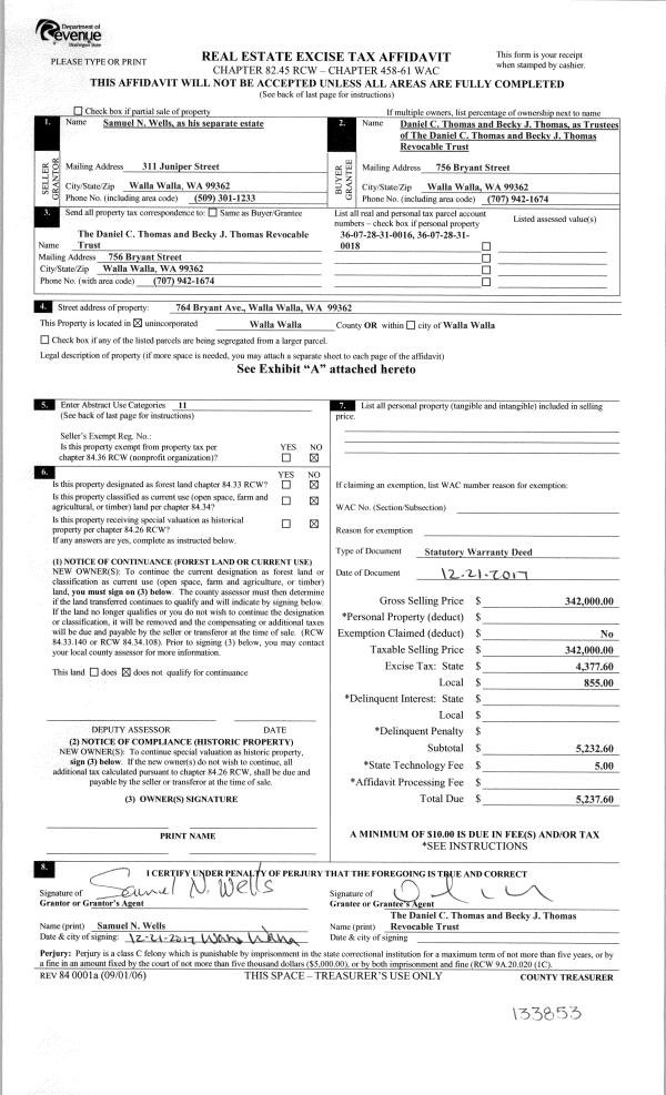
| 4 | 12/21/2017 | SWD | STATUTORY WARRANTY DEED | WELLS SAMUEL N | THOMAS DANIEL C THOMAS & BECKY J REVOCABLE TRUST | | 2-PARCELS | $342,000.00 | 133853 | 2017-10298 |
|   | |
| 5 | 02/02/2009 | WARRANTY D | WARRANTY DEED | ROBERGE, EARL ESTATE OF | WELLS, SAMUEL N | | | $355,000.00 | 116280 | 2009-00943 |
|   | |
| 6 | 07/01/1963 | WARRANTY D | WARRANTY DEED | | | | | $400.00 | 0 | 3060-449332 |
Payout Agreement
| No payout information available.. |