Property
Account |
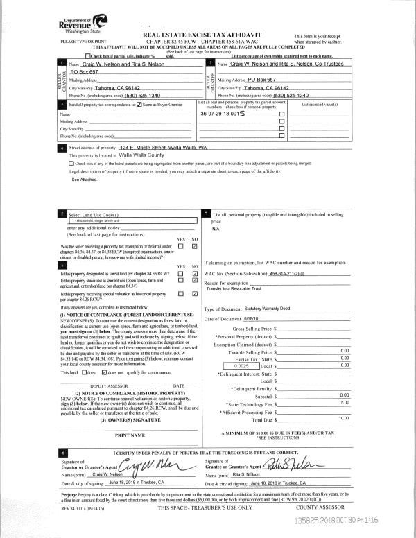
| Property ID: | 26606 | Abbreviated Legal Description: | 29-7-36 TAX 124 |
| Parcel Number: | 360729130015 | Agent Code: | |
| Type: | Real | | |
| Tax Area: | 1 - OL-140-F | Land Use Code | 11 |
| Open Space: | N | DFL | N |
| Historic Property: | N | Remodel Property: | N |
| Multi-Family Redevelopment: | N | | |
| Township: | 7 | Section: | 29 |
| Range: | 36 |
Location |
| Address: | 124 E MAPLE ST WA 99362 | Mapsco: | |
| Neighborhood: | A Res | Map ID: | |
| Neighborhood CD: | 613011 |
Owner |
| Name: | NELSON FAMILY TRUST | Owner ID: | 64214 |
| Mailing Address: | 11612 ROCKY LN TRUCKEE, CA 96161 | % Ownership: | 100.0000000000% |
| | | Exemptions: | |
Taxes and Assessment Details
Values
| (+) Improvement Homesite Value: | + | $0 | |
| (+) Improvement Non-Homesite Value: | + | $252,890 | |
| (+) Land Homesite Value: | + | $0 | |
| (+) Land Non-Homesite Value: | + | $58,500 | |
| (+) Curr Use (HS): | + | $0 | $0 |
| (+) Curr Use (NHS): | + | $0 | $0 |
| | | -------------------------- | |
| (=) Market Value: | = | $311,390 | |
| (–) Productivity Loss: | – | $0 | |
| | | -------------------------- | |
| (=) Subtotal: | = | $311,390 | |
| (+) Senior Appraised Value: | + | $0 | |
| (+) Non-Senior Appraised Value: | + | $311,390 | |
| | | -------------------------- | |
| (=) Total Appraised Value: | = | $311,390 | |
| (–) Senior Exemption Loss: | – | $0 | |
| (–) Exemption Loss: | – | $0 | |
| | | -------------------------- | |
| (=) Taxable Value: | = | $311,390 | |
Taxing Jurisdiction
| Owner: | NELSON FAMILY TRUST | | |
| % Ownership: | 100.0000000000% | | |
| Total Value: | $311,390 | | |
| Tax Area: | 1 - OL-140-F |
| CERFD | CURRENT EXPENSE REFUND 010 | 0.0000000000 | $311,390 | $311,390 | $0.00 | | |
| CURREXP | CURRENT EXPENSE 010 | 1.0175366760 | $311,390 | $311,390 | $316.85 | | |
| HUMNSERV | HUMAN SERVICES 119 | 0.0250000000 | $311,390 | $311,390 | $7.78 | | |
| SLDREL | SOLDIERS RELIEF 121 | 0.0155990005 | $311,390 | $311,390 | $4.86 | | |
| EMERGSER | EMS 147 | 0.3792580840 | $311,390 | $311,390 | $118.10 | | |
| EMSRFD | EMS REFUND 147 | 0.0000000000 | $311,390 | $311,390 | $0.00 | | |
| PORTRFD | PORT REFUND 640 | 0.0000000000 | $311,390 | $311,390 | $0.00 | | |
| PORTWWGEN | PORT OF WW 640 | 0.2460186015 | $311,390 | $311,390 | $76.61 | | |
| SD140BOND | SD #140 BOND 764 | 0.8342371393 | $311,390 | $311,390 | $259.77 | | |
| SD140GEN | SD #140 GENERAL 760 | 2.0646500647 | $311,390 | $311,390 | $642.91 | | |
| ST2 | STATE SCHOOL PART 2 600 | 0.8131451643 | $311,390 | $311,390 | $253.21 | | |
| STATESCHL | STATE SCHOOL 600 | 1.5158548041 | $311,390 | $311,390 | $472.02 | | |
| STREFUND | STATE REFUND LEVY 603 | 0.0000000000 | $311,390 | $311,390 | $0.00 | | |
| CWWBOND | C OF WW BOND 643 | 0.2760494372 | $311,390 | $311,390 | $85.96 | | |
| CWWGEN | CITY OF WW 631 | 1.6100204973 | $311,390 | $311,390 | $501.34 | | |
| CWWRFD | CITY OF WALLA WALLA REFUND 631 | 0.0000000000 | $311,390 | $311,390 | $0.00 | | |
| | Total Tax Rate: | 8.7973694689 | | | | | |
| | | | | Taxes w/Current Exemptions: | $2,739.41 | | |
| | | | | Taxes w/o Exemptions: | $2,739.41 | | |
Improvement / Building
| Improvement #1: | RESIDENTIAL | State Code: | 11 | 900.0 sqft | Value: | $252,890 |
| Exterior Wall: | HARDBOARD | Heating/Cooling: | WARM & COOLED AIR | | Number of Bathrooms: | 2 | Number of Bedrooms: | 2 | | Plumbing: | 9 | Roof Covering: | COMP SHINGLE |
|
| | Type | Description | Class CD | Sub Class CD | Year Built | Area |
| | MA | Main Area | 1 | 30 | 1922 | 900.0 |
| | SI1 | SITE IMPROVEMENT | 1 | 30 | 1922 | 1.5 |
| | BASE | BASEMENT | 1 | 30 | 1922 | 672.0 |
| | BPF | BASEMENT -PARTITIONED FINISH | 1 | 30 | 1922 | 672.0 |
| | DTG | Detached Garage | 1 | 30 | 1922 | 720.0 |
| | RPO | OPEN PORCH W/ROOF | 1 | 30 | 1922 | 210.0 |
Sketch
Property Image
Land
| 1 | RES 1 | Converted: Residential | 0.1492 | 6500.00 | 0.00 | 0.00 | 1.00 | $58,500 | $0 |
Roll Value History
| 2026 | N/A | N/A | N/A | N/A | N/A |
| 2025 | $244,240 | $71,500 | $0 | $315,740 | $315,740 |
| 2024 | $252,890 | $58,500 | $0 | $311,390 | $311,390 |
| 2023 | $252,890 | $58,500 | $0 | $311,390 | $311,390 |
| 2022 | $240,850 | $47,130 | $0 | $287,980 | $287,980 |
| 2021 | $200,710 | $47,130 | $0 | $247,840 | $247,840 |
| 2020 | $148,670 | $47,130 | $0 | $195,800 | $195,800 |
| 2019 | $148,670 | $47,130 | $0 | $195,800 | $195,800 |
| 2018 | $141,450 | $39,000 | $0 | $180,450 | $180,450 |
| 2017 | $141,450 | $39,000 | $0 | $180,450 | $180,450 |
| 2016 | $123,000 | $39,000 | $0 | $162,000 | $162,000 |
| 2015 | $123,000 | $39,000 | $0 | $162,000 | $162,000 |
| 2014 | $123,000 | $39,000 | $0 | $162,000 | $162,000 |
| 2013 | $123,000 | $39,000 | $0 | $162,000 | $162,000 |
| 2012 | $123,000 | $39,000 | $0 | $0 | $0 |
| 2011 | $123,000 | $39,000 | $0 | $0 | $0 |
| 2010 | $122,000 | $39,000 | $0 | $0 | $0 |
| 2009 | $100,000 | $39,000 | $0 | $0 | $0 |
| 2008 | $100,000 | $39,000 | $0 | $0 | $0 |
| 2007 | $80,700 | $19,500 | $0 | $0 | $0 |
Deed and Sales History
| 1 | 06/18/2018 | SWD | STATUTORY WARRANTY DEED | NELSON CRAIG W & RITA S | NELSON FAMILY TRUST | | | $0.00 | 135825 | 2018-08978 |
| 2 | 05/25/2016 | SWD | STATUTORY WARRANTY DEED | SEMERDJIAN NERSES Y & SANDRA N | NELSON CRAIG W & RITA S | | | $188,500.00 | 130280 | 2016-03919 |
| 3 | 01/30/2009 | WARRANTY D | WARRANTY DEED | CARPENTER, MELVENA | SEMERDJIAN, NERSES Y & SANDRA | | | $162,000.00 | 116269 | 2009-00866 |
| 4 | 03/09/2001 | WARRANTY D | WARRANTY DEED | | | | | $108,000.00 | 96731 | 3090-102247 |
Payout Agreement
| No payout information available.. |