Property
Account |
| Property ID: | 26598 | Abbreviated Legal Description: | PROSPECT TERRACE LOT 27 |
| Parcel Number: | 360732810027 | Agent Code: | |
| Type: | Real | | |
| Tax Area: | 6 - OL-140-F-FB | Land Use Code | 11 |
| Open Space: | N | DFL | N |
| Historic Property: | N | Remodel Property: | N |
| Multi-Family Redevelopment: | N | | |
| Township: | 7 | Section: | 32 |
| Range: | 36 |
Location |
| Address: | 935 HIGHLAND RD WA 99362 | Mapsco: | |
| Neighborhood: | G Res Rural/City Inf | Map ID: | |
| Neighborhood CD: | 614012 |
Owner |
| Name: | DAY SHEILA | Owner ID: | 74020 |
| Mailing Address: | 935 HIGHLAND RD WALLA WALLA, WA 99362 | % Ownership: | 100.0000000000% |
| | | Exemptions: | |
Taxes and Assessment Details
Property Tax Information as of
02/21/2026
Click on "Statement Details" to expand or collapse a tax statement.
* Please enter a valid date ** Please enter a valid date *
Statement Details |
| | TOTAL: | $0.00 | $0.00 | $0.00 | $0.00 | $0.00 | $0.00 |
|
| | $0.00 | $0.00 | $0.00 | $0.00 | $0.00 | $0.00 |
Values
| (+) Improvement Homesite Value: | + | $0 | |
| (+) Improvement Non-Homesite Value: | + | $315,590 | |
| (+) Land Homesite Value: | + | $0 | |
| (+) Land Non-Homesite Value: | + | $85,000 | |
| (+) Curr Use (HS): | + | $0 | $0 |
| (+) Curr Use (NHS): | + | $0 | $0 |
| | | -------------------------- | |
| (=) Market Value: | = | $400,590 | |
| (–) Productivity Loss: | – | $0 | |
| | | -------------------------- | |
| (=) Subtotal: | = | $400,590 | |
| (+) Senior Appraised Value: | + | $0 | |
| (+) Non-Senior Appraised Value: | + | $400,590 | |
| | | -------------------------- | |
| (=) Total Appraised Value: | = | $400,590 | |
| (–) Senior Exemption Loss: | – | $0 | |
| (–) Exemption Loss: | – | $0 | |
| | | -------------------------- | |
| (=) Taxable Value: | = | $400,590 | |
Taxing Jurisdiction
| Owner: | DAY SHEILA | | |
| % Ownership: | 100.0000000000% | | |
| Total Value: | $400,590 | | |
| Tax Area: | 6 - OL-140-F-FB |
| CERFD | CURRENT EXPENSE REFUND 010 | 0.0000000000 | $400,590 | $400,590 | $0.00 | | |
| CURREXP | CURRENT EXPENSE 010 | 1.0175366760 | $400,590 | $400,590 | $407.62 | | |
| HUMNSERV | HUMAN SERVICES 119 | 0.0250000000 | $400,590 | $400,590 | $10.01 | | |
| SLDREL | SOLDIERS RELIEF 121 | 0.0155990005 | $400,590 | $400,590 | $6.25 | | |
| EMERGSER | EMS 147 | 0.3792580840 | $400,590 | $400,590 | $151.93 | | |
| EMSRFD | EMS REFUND 147 | 0.0000000000 | $400,590 | $400,590 | $0.00 | | |
| PORTRFD | PORT REFUND 640 | 0.0000000000 | $400,590 | $400,590 | $0.00 | | |
| PORTWWGEN | PORT OF WW 640 | 0.2460186015 | $400,590 | $400,590 | $98.55 | | |
| SD140BOND | SD #140 BOND 764 | 0.8342371393 | $400,590 | $400,590 | $334.19 | | |
| SD140GEN | SD #140 GENERAL 760 | 2.0646500647 | $400,590 | $400,590 | $827.08 | | |
| ST2 | STATE SCHOOL PART 2 600 | 0.8131451643 | $400,590 | $400,590 | $325.74 | | |
| STATESCHL | STATE SCHOOL 600 | 1.5158548041 | $400,590 | $400,590 | $607.24 | | |
| STREFUND | STATE REFUND LEVY 603 | 0.0000000000 | $400,590 | $400,590 | $0.00 | | |
| CWWBOND | C OF WW BOND 643 | 0.2760494372 | $400,590 | $400,590 | $110.58 | | |
| CWWGEN | CITY OF WW 631 | 1.6100204973 | $400,590 | $400,590 | $644.96 | | |
| CWWRFD | CITY OF WALLA WALLA REFUND 631 | 0.0000000000 | $400,590 | $400,590 | $0.00 | | |
| | Total Tax Rate: | 8.7973694689 | | | | | |
| | | | | Taxes w/Current Exemptions: | $3,524.15 | | |
| | | | | Taxes w/o Exemptions: | $3,524.15 | | |
Improvement / Building
| Improvement #1: | RESIDENTIAL | State Code: | 11 | 1652.0 sqft | Value: | $315,590 |
| Exterior Wall: | PLYWOOD | Heating/Cooling: | WARM & COOLED AIR | | Number of Bathrooms: | 2 | Number of Bedrooms: | 4 | | Plumbing: | 10 | Roof Covering: | COMP SHINGLE |
|
| | Type | Description | Class CD | Sub Class CD | Year Built | Area |
| | MA | Main Area | 1 | 30 | 2008 | 1652.0 |
| | SI1 | SITE IMPROVEMENT | 1 | 30 | 2008 | 2.2 |
| | ATG | Attached Garage | 1 | 30 | 2008 | 400.0 |
| | RPO | OPEN PORCH W/ROOF | 1 | 30 | 2008 | 78.0 |
| | GFP | GAS FIREPLACE | 1 | 30 | 2008 | 1.0 |
Sketch
Property Image
Land
| 1 | RES 1 | Converted: Residential | 0.1714 | 7467.00 | 0.00 | 0.00 | 1.00 | $85,000 | $0 |
Roll Value History
| 2026 | N/A | N/A | N/A | N/A | N/A |
| 2025 | $354,930 | $125,000 | $0 | $479,930 | $479,930 |
| 2024 | $331,370 | $85,000 | $0 | $416,370 | $416,370 |
| 2023 | $315,590 | $85,000 | $0 | $400,590 | $400,590 |
| 2022 | $300,560 | $70,000 | $0 | $370,560 | $370,560 |
| 2021 | $246,360 | $70,000 | $0 | $316,360 | $316,360 |
| 2020 | $172,280 | $70,000 | $0 | $242,280 | $242,280 |
| 2019 | $172,280 | $70,000 | $0 | $242,280 | $242,280 |
| 2018 | $157,890 | $60,000 | $0 | $217,890 | $217,890 |
| 2017 | $150,370 | $60,000 | $0 | $210,370 | $210,370 |
| 2016 | $147,420 | $60,000 | $0 | $207,420 | $207,420 |
| 2015 | $140,400 | $60,000 | $0 | $200,400 | $200,400 |
| 2014 | $140,400 | $60,000 | $0 | $200,400 | $200,400 |
| 2013 | $140,400 | $60,000 | $0 | $200,400 | $200,400 |
| 2012 | $135,400 | $60,000 | $0 | $0 | $0 |
| 2011 | $143,500 | $60,000 | $0 | $0 | $0 |
| 2010 | $135,500 | $60,000 | $0 | $0 | $0 |
| 2009 | $0 | $60,000 | $0 | $0 | $0 |
| 2008 | $0 | $3,700 | $0 | $0 | $0 |
| 2007 | $140,400 | $60,000 | $0 | $0 | $0 |
Deed and Sales History
| 1 | 08/30/2024 | SWD | STATUTORY WARRANTY DEED | DAY SHEILA | EDWARD ROY | | | $515,000.00 | 148121 | 2024-04894 |
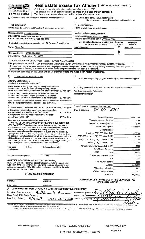
| 2 | 08/07/2023 | SWD | STATUTORY WARRANTY DEED | BROWN KRISTOFFER M & DEANDREA D | DAY SHEILA | | | $490,000.00 | 146278 | 2023-04518 |
| 3 | 09/12/2014 | SWD | STATUTORY WARRANTY DEED | BERGHAN PETER M & MELISSA GAIL | BROWN KRISTOFFER M & DEANDREA D | | | $202,500.00 | 126630 | 2014-06683 |
| 4 | 02/23/2009 | WARRANTY D | WARRANTY DEED | HAYDEN HOMES LLC | BERGHAN, PETER M & MELISSA GAI | | | $200,225.00 | 116367 | 2009-01730 |
| 5 | 12/05/2007 | WARRANTY D | WARRANTY DEED | HAYDEN ENTERPRISES INC | | | | | 114183 | 2007-13846 |
Payout Agreement
| No payout information available.. |