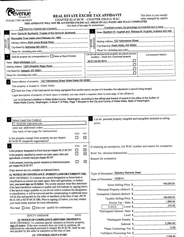
Property
Account |
| Property ID: | 26591 | Abbreviated Legal Description: | DONNIES LOT 14 |
| Parcel Number: | 360732520014 | Agent Code: | |
| Type: | Real | | |
| Tax Area: | 1 - OL-140-F | Land Use Code | 11 |
| Open Space: | N | DFL | N |
| Historic Property: | N | Remodel Property: | N |
| Multi-Family Redevelopment: | N | | |
| Township: | 7 | Section: | 32 |
| Range: | 36 |
Location |
| Address: | 122 YELLOWSTONE ST WA 99362 | Mapsco: | |
| Neighborhood: | A Res | Map ID: | |
| Neighborhood CD: | 613011 |
Owner |
| Name: | HUGHETT BRADFORD W & MARISSA M | Owner ID: | 56016 |
| Mailing Address: | 122 YELLOWSTONE ST WALLA WALLA, WA 99362 | % Ownership: | 100.0000000000% |
| | | Exemptions: | |
Taxes and Assessment Details
Values
| (+) Improvement Homesite Value: | + | $0 | |
| (+) Improvement Non-Homesite Value: | + | $265,340 | |
| (+) Land Homesite Value: | + | $0 | |
| (+) Land Non-Homesite Value: | + | $57,420 | |
| (+) Curr Use (HS): | + | $0 | $0 |
| (+) Curr Use (NHS): | + | $0 | $0 |
| | | -------------------------- | |
| (=) Market Value: | = | $322,760 | |
| (–) Productivity Loss: | – | $0 | |
| | | -------------------------- | |
| (=) Subtotal: | = | $322,760 | |
| (+) Senior Appraised Value: | + | $0 | |
| (+) Non-Senior Appraised Value: | + | $322,760 | |
| | | -------------------------- | |
| (=) Total Appraised Value: | = | $322,760 | |
| (–) Senior Exemption Loss: | – | $0 | |
| (–) Exemption Loss: | – | $0 | |
| | | -------------------------- | |
| (=) Taxable Value: | = | $322,760 | |
Taxing Jurisdiction
| Owner: | HUGHETT BRADFORD W & MARISSA M | | |
| % Ownership: | 100.0000000000% | | |
| Total Value: | $322,760 | | |
| Tax Area: | 1 - OL-140-F |
| CERFD | CURRENT EXPENSE REFUND 010 | 0.0000000000 | $322,760 | $322,760 | $0.00 | | |
| CURREXP | CURRENT EXPENSE 010 | 1.0175366760 | $322,760 | $322,760 | $328.42 | | |
| HUMNSERV | HUMAN SERVICES 119 | 0.0250000000 | $322,760 | $322,760 | $8.07 | | |
| SLDREL | SOLDIERS RELIEF 121 | 0.0155990005 | $322,760 | $322,760 | $5.03 | | |
| EMERGSER | EMS 147 | 0.3792580840 | $322,760 | $322,760 | $122.41 | | |
| EMSRFD | EMS REFUND 147 | 0.0000000000 | $322,760 | $322,760 | $0.00 | | |
| PORTRFD | PORT REFUND 640 | 0.0000000000 | $322,760 | $322,760 | $0.00 | | |
| PORTWWGEN | PORT OF WW 640 | 0.2460186015 | $322,760 | $322,760 | $79.40 | | |
| SD140BOND | SD #140 BOND 764 | 0.8342371393 | $322,760 | $322,760 | $269.26 | | |
| SD140GEN | SD #140 GENERAL 760 | 2.0646500647 | $322,760 | $322,760 | $666.39 | | |
| ST2 | STATE SCHOOL PART 2 600 | 0.8131451643 | $322,760 | $322,760 | $262.45 | | |
| STATESCHL | STATE SCHOOL 600 | 1.5158548041 | $322,760 | $322,760 | $489.26 | | |
| STREFUND | STATE REFUND LEVY 603 | 0.0000000000 | $322,760 | $322,760 | $0.00 | | |
| CWWBOND | C OF WW BOND 643 | 0.2760494372 | $322,760 | $322,760 | $89.10 | | |
| CWWGEN | CITY OF WW 631 | 1.6100204973 | $322,760 | $322,760 | $519.65 | | |
| CWWRFD | CITY OF WALLA WALLA REFUND 631 | 0.0000000000 | $322,760 | $322,760 | $0.00 | | |
| | Total Tax Rate: | 8.7973694689 | | | | | |
| | | | | Taxes w/Current Exemptions: | $2,839.44 | | |
| | | | | Taxes w/o Exemptions: | $2,839.44 | | |
Improvement / Building
| Improvement #1: | RESIDENTIAL | State Code: | 11 | 896.0 sqft | Value: | $265,340 |
| Exterior Wall: | CONCRETE BLOCK | Heating/Cooling: | HEAT PUMP | | Number of Bathrooms: | 1.5 | Number of Bedrooms: | 3 | | Plumbing: | 9 | Roof Covering: | COMP SHINGLE |
|
| | Type | Description | Class CD | Sub Class CD | Year Built | Area |
| | MA | Main Area | 1 | 30 | 1951 | 896.0 |
| | SI1 | SITE IMPROVEMENT | 1 | 30 | 1951 | 1.5 |
| | BASE | BASEMENT | 1 | 30 | 1951 | 896.0 |
| | BPF | BASEMENT -PARTITIONED FINISH | 1 | 30 | 1951 | 450.0 |
| | DTG | Detached Garage | 1 | 30 | 1951 | 288.0 |
| | CPCS | CARPORT/SHED OR FLAT ROOF | 1 | 30 | 1951 | 428.0 |
Sketch
Property Image
Land
| 1 | RES 1 | Converted: Residential | 0.1465 | 6380.00 | 0.00 | 0.00 | 1.00 | $57,420 | $0 |
Roll Value History
| 2026 | N/A | N/A | N/A | N/A | N/A |
| 2025 | $217,820 | $70,180 | $0 | $288,000 | $288,000 |
| 2024 | $265,340 | $57,420 | $0 | $322,760 | $322,760 |
| 2023 | $265,340 | $57,420 | $0 | $322,760 | $322,760 |
| 2022 | $221,120 | $46,260 | $0 | $267,380 | $267,380 |
| 2021 | $170,090 | $46,260 | $0 | $216,350 | $216,350 |
| 2020 | $130,840 | $46,260 | $0 | $177,100 | $177,100 |
| 2019 | $130,840 | $46,260 | $0 | $177,100 | $177,100 |
| 2018 | $133,180 | $38,300 | $0 | $171,480 | $171,480 |
| 2017 | $126,840 | $38,300 | $0 | $165,140 | $165,140 |
| 2016 | $105,700 | $38,300 | $0 | $144,000 | $144,000 |
| 2015 | $105,700 | $38,300 | $0 | $144,000 | $144,000 |
| 2014 | $105,700 | $38,300 | $0 | $144,000 | $144,000 |
| 2013 | $105,700 | $38,300 | $0 | $144,000 | $144,000 |
| 2012 | $112,600 | $38,300 | $0 | $0 | $0 |
| 2011 | $112,600 | $38,300 | $0 | $0 | $0 |
| 2010 | $112,600 | $38,300 | $0 | $0 | $0 |
| 2009 | $112,600 | $38,300 | $0 | $0 | $0 |
| 2008 | $112,600 | $38,300 | $0 | $0 | $0 |
| 2007 | $72,700 | $19,100 | $0 | $0 | $0 |
Deed and Sales History
| 1 | 12/30/2014 | SWD | STATUTORY WARRANTY DEED | BURKHARDT GLORIA M | HUGHETT BRADFORD W & MARISSA M | | | $148,000.00 | 127197 | 2014-09488 |
| 2 | 03/06/2009 | WARRANTY D | WARRANTY DEED | BARRETT, CORLEEN M ESTATE OF | BURKHARDT, GLORIA M | | | $154,900.00 | 116430 | 2009-02219 |
| 3 | 01/01/1951 | WARRANTY D | WARRANTY DEED | | | | | $0.00 | 0 | 2580-351362 |
Payout Agreement
| No payout information available.. |