Property
Account |
| Property ID: | 26589 | Abbreviated Legal Description: | 20-7-32 PTN LOT 1 OF SURVEY (ALSO SEE 320720440005)(TAX DIST)SE1/4SW1/4; SW1/4SE1/4; NE1/4SE1/4 LY SWLY OF RIVER; PLUS STRIPFROM NW1/4SE1/4 LESS RR & HWY |
| Parcel Number: | 320720340005 | Agent Code: | |
| Type: | Real | | |
| Tax Area: | 332 - 400-6-TM | Land Use Code | 83 |
| Open Space: | Y | DFL | N |
| Historic Property: | N | Remodel Property: | N |
| Multi-Family Redevelopment: | N | | |
| Township: | 7 | Section: | 20 |
| Range: | 32 |
Location |
| Address: | WA 99323 | Mapsco: | |
| Neighborhood: | 0 Farm | Map ID: | |
| Neighborhood CD: | 2220 |
Owner |
| Name: | PIERCE FAMILY TRUST | Owner ID: | 61825 |
| Mailing Address: | PO BOX 15 TOUCHET, WA 99360 | % Ownership: | 100.0000000000% |
| | | Exemptions: | |
Taxes and Assessment Details
Values
| (+) Improvement Homesite Value: | + | $0 | |
| (+) Improvement Non-Homesite Value: | + | $0 | |
| (+) Land Homesite Value: | + | $0 | |
| (+) Land Non-Homesite Value: | + | $0 | |
| (+) Curr Use (HS): | + | $0 | $0 |
| (+) Curr Use (NHS): | + | $88,630 | $14,250 |
| | | -------------------------- | |
| (=) Market Value: | = | $88,630 | |
| (–) Productivity Loss: | – | $74,380 | |
| | | -------------------------- | |
| (=) Subtotal: | = | $14,250 | |
| (+) Senior Appraised Value: | + | $0 | |
| (+) Non-Senior Appraised Value: | + | $14,250 | |
| | | -------------------------- | |
| (=) Total Appraised Value: | = | $14,250 | |
| (–) Senior Exemption Loss: | – | $0 | |
| (–) Exemption Loss: | – | $0 | |
| | | -------------------------- | |
| (=) Taxable Value: | = | $14,250 | |
Taxing Jurisdiction
| Owner: | PIERCE FAMILY TRUST | | |
| % Ownership: | 100.0000000000% | | |
| Total Value: | $88,630 | | |
| Tax Area: | 332 - 400-6-TM |
| CERFD | CURRENT EXPENSE REFUND 010 | 0.0000000000 | $14,250 | $14,250 | $0.00 | | |
| CURREXP | CURRENT EXPENSE 010 | 1.0175366760 | $14,250 | $14,250 | $14.50 | | |
| HUMNSERV | HUMAN SERVICES 119 | 0.0250000000 | $14,250 | $14,250 | $0.36 | | |
| SLDREL | SOLDIERS RELIEF 121 | 0.0155990005 | $14,250 | $14,250 | $0.22 | | |
| EMERGSER | EMS 147 | 0.3792580840 | $14,250 | $14,250 | $5.40 | | |
| EMSRFD | EMS REFUND 147 | 0.0000000000 | $14,250 | $14,250 | $0.00 | | |
| FD6EXP | FD #6 EXPENSE 693 | 0.6692985746 | $14,250 | $14,250 | $9.54 | | |
| RLBRFD | RURAL LIBRARY REFUND 623 | 0.0000000000 | $14,250 | $14,250 | $0.00 | | |
| RURALLIB | RURAL LIBRARY 623 | 0.3710609029 | $14,250 | $14,250 | $5.29 | | |
| PORTRFD | PORT REFUND 640 | 0.0000000000 | $14,250 | $14,250 | $0.00 | | |
| PORTWWGEN | PORT OF WW 640 | 0.2460186015 | $14,250 | $14,250 | $3.51 | | |
| SD400BOND | SD #400 BOND 793 | 0.0000000000 | $14,250 | $14,250 | $0.00 | | |
| SD400CAP | SD #400 CP 792 | 0.3443722657 | $14,250 | $14,250 | $4.91 | | |
| SD400GEN | SD #400 GENERAL 790 | 1.9278469916 | $14,250 | $14,250 | $27.47 | | |
| ST2 | STATE SCHOOL PART 2 600 | 0.8131451643 | $14,250 | $14,250 | $11.59 | | |
| STATESCHL | STATE SCHOOL 600 | 1.5158548041 | $14,250 | $14,250 | $21.60 | | |
| STREFUND | STATE REFUND LEVY 603 | 0.0000000000 | $14,250 | $14,250 | $0.00 | | |
| COROAD | COUNTY ROAD 115 | 1.6549953990 | $14,250 | $14,250 | $23.58 | | |
| CRPRD | COUNTY ROAD REFUND 115 | 0.0000000000 | $14,250 | $14,250 | $0.00 | | |
| | Total Tax Rate: | 8.9799864642 | | | | | |
| | | | | Taxes w/Current Exemptions: | $127.97 | | |
| | | | | Taxes w/o Exemptions: | $127.97 | | |
Improvement / Building
Sketch
| No sketches available for this property. |
Property Image
Land
| 1 | DLP | Dry Land Pasture | 74.0000 | 3223440.00 | 0.00 | 0.00 | 1.00 | $29,230 | $1,780 |
| 2 | C2-I | Class 2 Irrigated | 11.0000 | 479160.00 | 0.00 | 0.00 | 1.00 | $59,400 | $12,470 |
| 3 | WASTE | Waste | 32.7100 | 0.00 | 0.00 | 0.00 | 1.00 | $0 | $0 |
Roll Value History
| 2026 | N/A | N/A | N/A | N/A | N/A |
| 2025 | $0 | $93,030 | $13,860 | $13,860 | $13,860 |
| 2024 | $0 | $90,830 | $14,170 | $14,170 | $14,170 |
| 2023 | $0 | $88,630 | $14,250 | $14,250 | $14,250 |
| 2022 | $0 | $80,900 | $13,730 | $13,730 | $13,730 |
| 2021 | $0 | $75,400 | $13,900 | $13,900 | $13,900 |
| 2020 | $0 | $61,800 | $14,220 | $14,220 | $14,220 |
| 2019 | $0 | $57,400 | $14,610 | $14,610 | $14,610 |
| 2018 | $0 | $56,300 | $14,860 | $14,860 | $14,860 |
| 2017 | $0 | $56,300 | $15,350 | $15,350 | $15,350 |
| 2016 | $0 | $263,500 | $105,320 | $105,320 | $105,320 |
| 2015 | $0 | $229,500 | $95,880 | $95,880 | $95,880 |
| 2014 | $0 | $229,500 | $95,880 | $95,880 | $95,880 |
| 2013 | $0 | $221,000 | $82,300 | $82,300 | $82,300 |
| 2012 | $0 | $65,500 | $0 | $0 | $0 |
| 2011 | $0 | $62,900 | $0 | $0 | $0 |
| 2010 | $0 | $64,900 | $0 | $0 | $0 |
| 2009 | $0 | $221,000 | $0 | $0 | $0 |
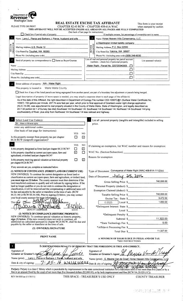
Deed and Sales History
| 1 | 09/26/2017 | QCD | QUIT CLAIM DEED | PIERCE LARRY L & BARBARA J | PIERCE FAMILY TRUST | | | $0.00 | 133298 | 2017-07639 |
| 2 | 03/17/1967 | QCD | QUIT CLAIM DEED | PIERCE LARRY L & BARBARA J | PIERCE LARRY L & BARBARA J | | | | 26354 | 484195 |
Payout Agreement
| No payout information available.. |