Property
Account |
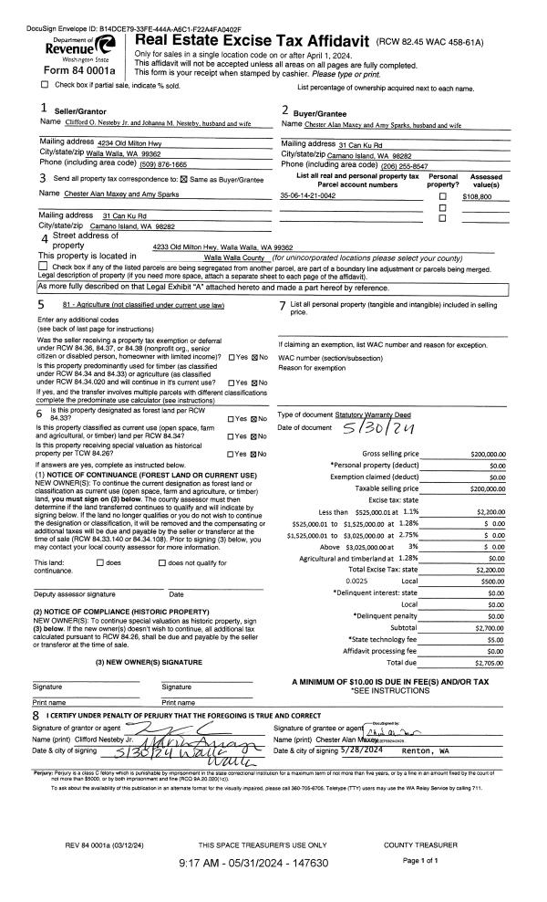
| Property ID: | 26578 | Abbreviated Legal Description: | 14-6-35 SWLY PTN TAX 5 IN GOV LOT 2; LESS PTN TO WW CO RD |
| Parcel Number: | 350614210042 | Agent Code: | |
| Type: | Real | | |
| Tax Area: | 311 - 250-4 | Land Use Code | 81 |
| Open Space: | N | DFL | N |
| Historic Property: | N | Remodel Property: | N |
| Multi-Family Redevelopment: | N | | |
| Township: | 6 | Section: | 14 |
| Range: | 35 |
Location |
| Address: | 4233 OLD MILTON HWY WA 99324 | Mapsco: | |
| Neighborhood: | A Comm | Map ID: | |
| Neighborhood CD: | 233000 |
Owner |
| Name: | MAXEY CHESTER ALAN & AMY SPARKS | Owner ID: | 75315 |
| Mailing Address: | 31 CAN KU RD CAMANO ISLAND, WA 98282 | % Ownership: | 100.0000000000% |
| | | Exemptions: | |
Taxes and Assessment Details
Property Tax Information as of
04/19/2026
Click on "Statement Details" to expand or collapse a tax statement.
* Please enter a valid date ** Please enter a valid date *
Statement Details |
| | TOTAL: | $0.00 | $0.00 | $0.00 | $0.00 | $0.00 | $0.00 |
|
| | $0.00 | $0.00 | $0.00 | $0.00 | $0.00 | $0.00 |
Values
| (+) Improvement Homesite Value: | + | N/A | |
| (+) Improvement Non-Homesite Value: | + | N/A | |
| (+) Land Homesite Value: | + | N/A | |
| (+) Land Non-Homesite Value: | + | N/A | Ag / Timber Use Value |
| (+) Curr Use (HS): | + | N/A | N/A |
| (+) Curr Use (NHS): | + | N/A | N/A |
| | | -------------------------- | |
| (=) Market Value: | = | N/A | |
| (–) Productivity Loss: | – | N/A | |
| | | -------------------------- | |
| (=) Subtotal: | = | N/A | |
| (+) Senior Appraised Value: | + | N/A | |
| (+) Non-Senior Appraised Value: | + | N/A | |
| | | -------------------------- | |
| (=) Total Appraised Value: | = | N/A | |
| (–) Senior Exemption Loss: | – | N/A | |
| (–) Exemption Loss: | – | N/A | |
| | | -------------------------- | |
| (=) Taxable Value: | = | N/A | |
Taxing Jurisdiction
| Owner: | MAXEY CHESTER ALAN & AMY SPARKS | | |
| % Ownership: | 100.0000000000% | | |
| Total Value: | N/A | | |
| Tax Area: | 311 - 250-4 |
| CERFD | CURRENT EXPENSE REFUND 010 | N/A | N/A | N/A | N/A | | |
| CURREXP | CURRENT EXPENSE 010 | N/A | N/A | N/A | N/A | | |
| HUMNSERV | HUMAN SERVICES 119 | N/A | N/A | N/A | N/A | | |
| SLDREL | SOLDIERS RELIEF 121 | N/A | N/A | N/A | N/A | | |
| EMERGSER | EMS 147 | N/A | N/A | N/A | N/A | | |
| EMSRFD | EMS REFUND 147 | N/A | N/A | N/A | N/A | | |
| FD4EXP | FD #4 EXPENSE 686 | N/A | N/A | N/A | N/A | | |
| RLBRFD | RURAL LIBRARY REFUND 623 | N/A | N/A | N/A | N/A | | |
| RURALLIB | RURAL LIBRARY 623 | N/A | N/A | N/A | N/A | | |
| PORTRFD | PORT REFUND 640 | N/A | N/A | N/A | N/A | | |
| PORTWWGEN | PORT OF WW 640 | N/A | N/A | N/A | N/A | | |
| SD250BOND | SD #250 BOND 773 | N/A | N/A | N/A | N/A | | |
| SD250GEN | SD #250 GENERAL 770 | N/A | N/A | N/A | N/A | | |
| ST2 | STATE SCHOOL PART 2 600 | N/A | N/A | N/A | N/A | | |
| STATESCHL | STATE SCHOOL 600 | N/A | N/A | N/A | N/A | | |
| STREFUND | STATE REFUND LEVY 603 | N/A | N/A | N/A | N/A | | |
| COROAD | COUNTY ROAD 115 | N/A | N/A | N/A | N/A | | |
| CRPRD | COUNTY ROAD REFUND 115 | N/A | N/A | N/A | N/A | | |
| | Total Tax Rate: | N/A | | | | | |
| | | | | Taxes w/Current Exemptions: | N/A | | |
| | | | | Taxes w/o Exemptions: | N/A | | |
Improvement / Building
| Improvement #1: | COMMERCIAL | State Code: | 81 | 2250.0 sqft | Value: | N/A |
| | Type | Description | Class CD | Sub Class CD | Year Built | Area |
| | MA | Main Area | 1 | 30 | 1970 | 2250.0 |
| | SI1 | SITE IMPROVEMENT | 1 | 30 | 1970 | 1.0 |
Sketch
Property Image
Land
| 1 | COM 1 | Converted: Commercial | 1.3900 | 0.00 | 0.00 | 0.00 | 1.00 | N/A | N/A |
Roll Value History
| 2026 | N/A | N/A | N/A | N/A | N/A |
| 2025 | $70,500 | $92,600 | $0 | $163,100 | $163,100 |
| 2024 | $70,500 | $92,600 | $0 | $163,100 | $163,100 |
| 2023 | $16,200 | $92,600 | $0 | $108,800 | $108,800 |
| 2022 | $16,200 | $92,600 | $0 | $108,800 | $108,800 |
| 2021 | $16,200 | $92,600 | $0 | $108,800 | $108,800 |
| 2020 | $24,800 | $63,900 | $0 | $88,700 | $88,700 |
| 2019 | $24,800 | $63,900 | $0 | $88,700 | $88,700 |
| 2018 | $24,800 | $63,900 | $0 | $88,700 | $88,700 |
| 2017 | $24,800 | $63,900 | $0 | $88,700 | $88,700 |
| 2016 | $24,800 | $63,900 | $0 | $88,700 | $88,700 |
| 2015 | $24,800 | $63,900 | $0 | $88,700 | $88,700 |
| 2014 | $24,800 | $63,900 | $0 | $88,700 | $88,700 |
| 2013 | $24,800 | $63,900 | $0 | $88,700 | $88,700 |
| 2012 | $24,800 | $63,900 | $0 | $0 | $0 |
| 2011 | $24,800 | $63,900 | $0 | $0 | $0 |
| 2010 | $24,800 | $63,900 | $0 | $0 | $0 |
| 2009 | $24,800 | $63,900 | $0 | $0 | $0 |
Deed and Sales History
| 1 | 05/31/2024 | SWD | STATUTORY WARRANTY DEED | NESTEBY CLIFFORD JR & JOHANNA M | MAXEY CHESTER ALAN & AMY SPARKS | | | $200,000.00 | 147630 | 2024-02875 |
| 2 | 07/10/2009 | QCD | QUIT CLAIM DEED | BNSF RAILWAY COMPANY | NESTEBY, CLIFFORD JR & JOHANNA | | | $2,500.00 | 116993 | 2009-06989 |
|   | |
Payout Agreement
| No payout information available.. |