| 1 | 03/09/2022 | SWD | STATUTORY WARRANTY DEED | MC CAW ELIZABETH | FENTON THOMAS | | | $88,998.00 | 143515 | 2022-02008 |
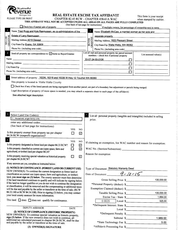
| 2 | 09/24/2015 | SWD | STATUTORY WARRANTY DEED | RASMUSSEN LARRY ESTATE OF | MC CAW ELIZABETH | | | $130,000.00 | 128876 | 2015-08386 |
| 3 | 09/16/2015 | QCD | QUIT CLAIM DEED | | RASMUSSEN LARRY ESTATE OF | | | | 128832 | 2015-08126 |
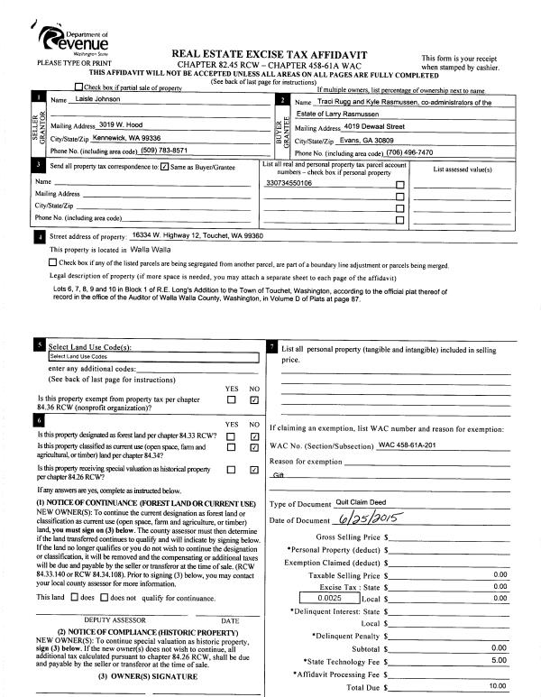
| 4 | 09/16/2015 | QCD | QUIT CLAIM DEED | | RASMUSSEN LARRY ESTATE OF | | | | 128831 | 2015-08125 |
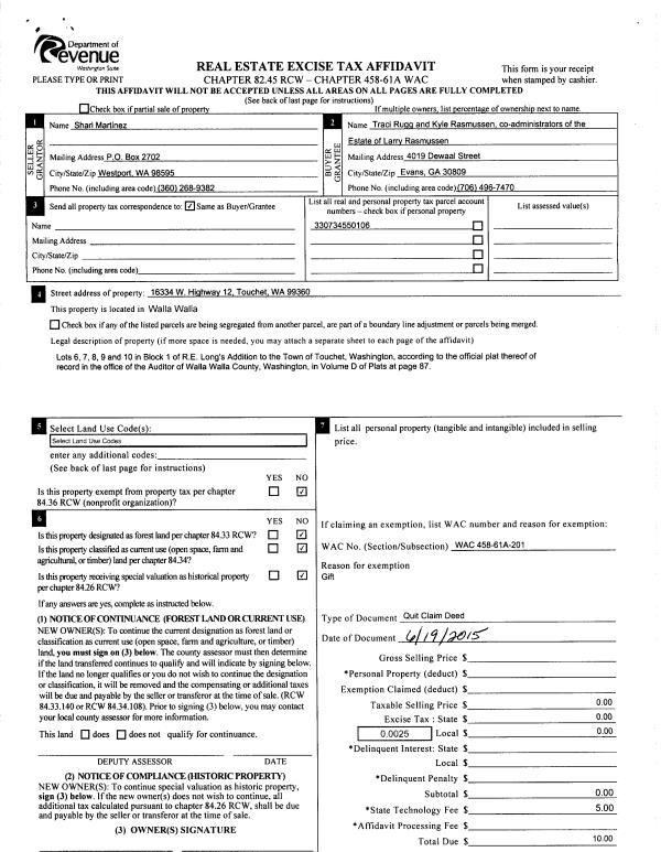
| 5 | 09/16/2015 | QCD | QUIT CLAIM DEED | | RASMUSSEN LARRY ESTATE OF | | | | 128830 | 2015-08124 |
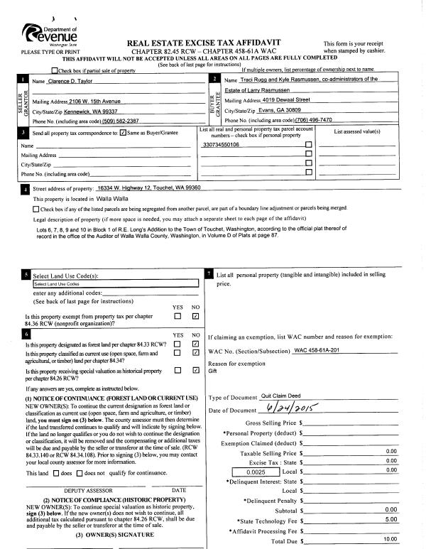
| 6 | 09/16/2015 | QCD | QUIT CLAIM DEED | | RASMUSSEN LARRY ESTATE OF | | | | 128829 | 2015-08123 |
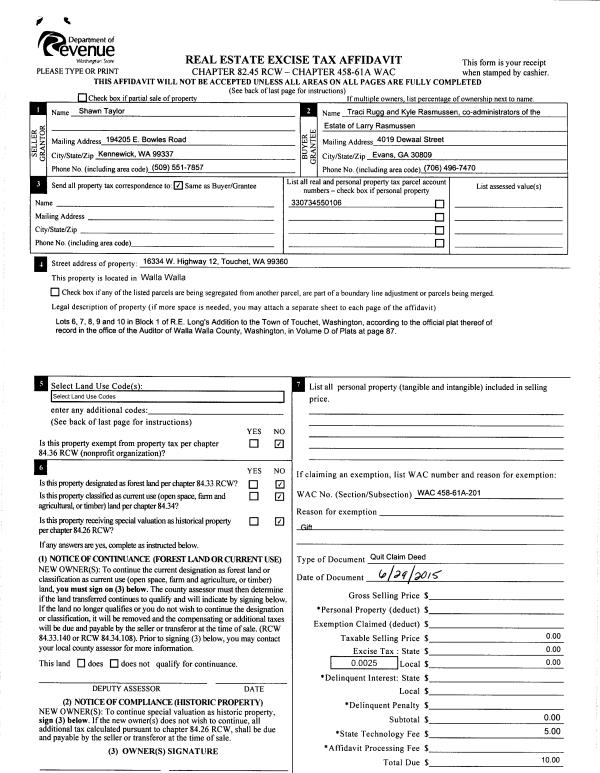
| 7 | 09/16/2015 | QCD | QUIT CLAIM DEED | | RASMUSSEN LARRY ESTATE OF | | | | 128828 | 2015-08122 |
| 8 | 09/16/2015 | LOPA | LACK OF PROBATE AFFIDAVIT | RASMUSSEN MYRTLE V LIFE EST | RASMUSSEN LARRY ESTATE OF | | | | 0 | 2015-08121 |
| 9 | 03/26/1984 | QCD | QUIT CLAIM DEED | | | | | $0.00 | 0 | 1428-402022 |