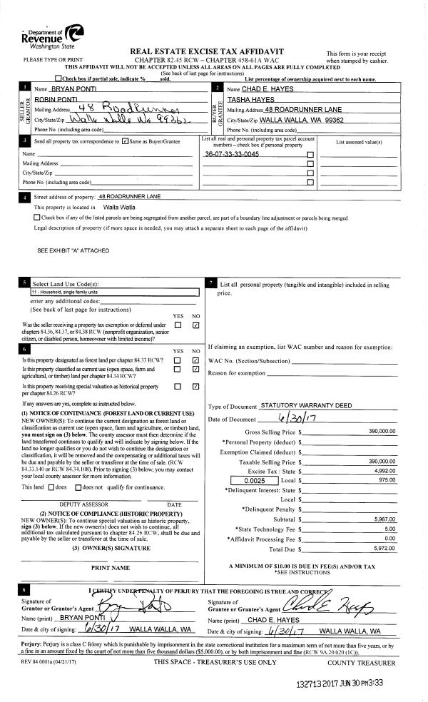
| 1 | 06/30/2017 | SWD | STATUTORY WARRANTY DEED | PONTI BRYAN & ROBIN | HAYES CHAD E & TASHA | | | $390,000.00 | 132713 | 2017-05045 |
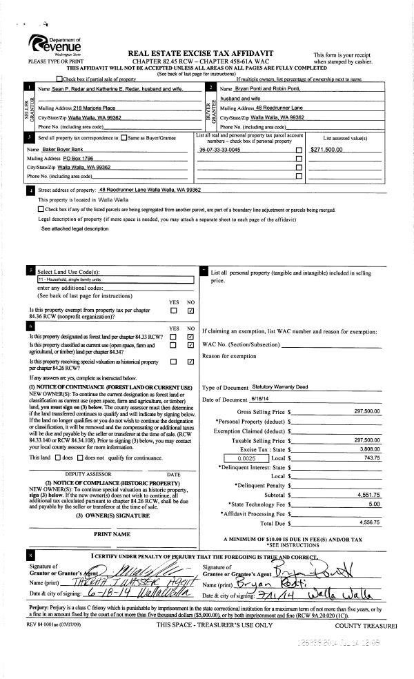
| 2 | 07/14/2014 | SWD | STATUTORY WARRANTY DEED | REDAR SEAN P & KATHERINE E | PONTI BRYAN & ROBIN | | | $297,500.00 | 126238 | 2014-04866 |
| 3 | 12/02/2008 | WARRANTY D | WARRANTY DEED | MAJERUS, DOUGLAS A & CHRISTINA | REDAR, SEAN P & KATHERINE E | | | $275,000.00 | 116036 | 2008-11920 |
| 4 | 12/01/2008 | QCD | QUIT CLAIM DEED | BLETH, JOHN H & NORA O | MAJERUS, DOUGLAS A & CHRISTINA | | | | 116021 | 2008-11836 |
| 5 | 05/15/2008 | WARRANTY D | WARRANTY DEED | MAJERUS, DOUGLAS & CHRISTINA | WALLA WALLA COUNTY | | | | 115027 | 2008-04947 |
| 6 | 12/23/2004 | WARRANTY D | WARRANTY DEED | BLETH, JOHN H & NORA O | MAJERUS, DOUGLAS A & CHRISTINA | | | $75,000.00 | 106494 | 2004-14777 |