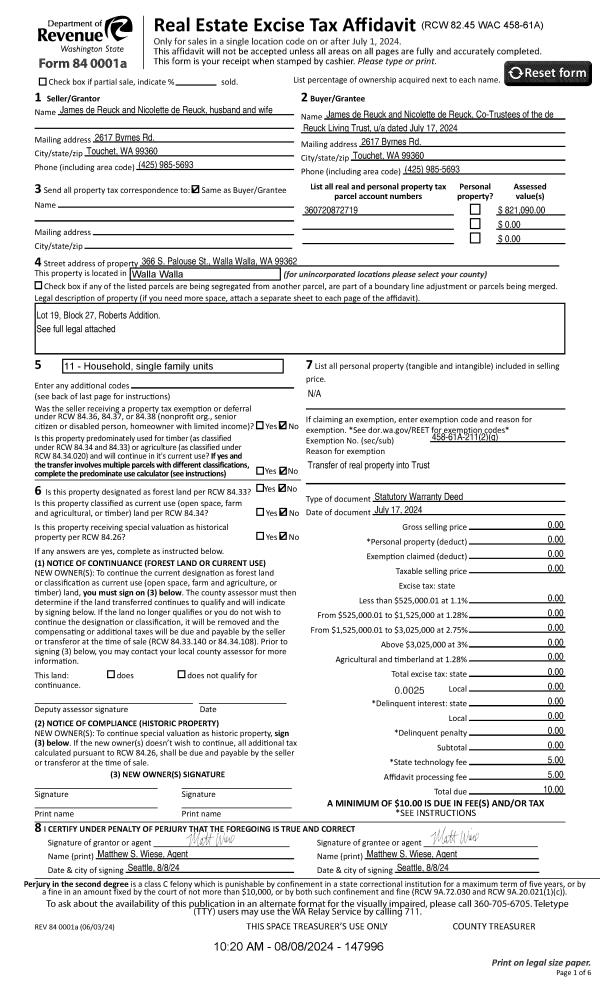
Property
Account |
| Property ID: | 26524 | Abbreviated Legal Description: | ROBERTS TAX 11 BLK 27 |
| Parcel Number: | 360720872719 | Agent Code: | |
| Type: | Real | | |
| Tax Area: | 1 - OL-140-F | Land Use Code | 11 |
| Open Space: | N | DFL | N |
| Historic Property: | N | Remodel Property: | N |
| Multi-Family Redevelopment: | N | | |
| Township: | 7 | Section: | 20 |
| Range: | 36 |
Location |
| Address: | 366 S PALOUSE ST WA 99362 | Mapsco: | |
| Neighborhood: | G-SFR | Map ID: | |
| Neighborhood CD: | 514011 |
Owner |
| Name: | DE REUCK NICOLETTE JANE & JAMES LILBURN | Owner ID: | 70914 |
| Mailing Address: | 2617 BYRNES RD TOUCHET, WA 99360 | % Ownership: | 100.0000000000% |
| | | Exemptions: | |
Taxes and Assessment Details
Property Tax Information as of
04/19/2026
Click on "Statement Details" to expand or collapse a tax statement.
* Please enter a valid date ** Please enter a valid date *
Statement Details |
| | TOTAL: | $0.00 | $0.00 | $0.00 | $0.00 | $0.00 | $0.00 |
|
| | $0.00 | $0.00 | $0.00 | $0.00 | $0.00 | $0.00 |
Values
| (+) Improvement Homesite Value: | + | $0 | |
| (+) Improvement Non-Homesite Value: | + | $748,050 | |
| (+) Land Homesite Value: | + | $0 | |
| (+) Land Non-Homesite Value: | + | $73,040 | |
| (+) Curr Use (HS): | + | $0 | $0 |
| (+) Curr Use (NHS): | + | $0 | $0 |
| | | -------------------------- | |
| (=) Market Value: | = | $821,090 | |
| (–) Productivity Loss: | – | $0 | |
| | | -------------------------- | |
| (=) Subtotal: | = | $821,090 | |
| (+) Senior Appraised Value: | + | $0 | |
| (+) Non-Senior Appraised Value: | + | $821,090 | |
| | | -------------------------- | |
| (=) Total Appraised Value: | = | $821,090 | |
| (–) Senior Exemption Loss: | – | $0 | |
| (–) Exemption Loss: | – | $0 | |
| | | -------------------------- | |
| (=) Taxable Value: | = | $821,090 | |
Taxing Jurisdiction
| Owner: | DE REUCK NICOLETTE JANE & JAMES LILBURN | | |
| % Ownership: | 100.0000000000% | | |
| Total Value: | $821,090 | | |
| Tax Area: | 1 - OL-140-F |
| CERFD | CURRENT EXPENSE REFUND 010 | 0.0000000000 | $821,090 | $821,090 | $0.00 | | |
| CURREXP | CURRENT EXPENSE 010 | 1.0175366760 | $821,090 | $821,090 | $835.49 | | |
| HUMNSERV | HUMAN SERVICES 119 | 0.0250000000 | $821,090 | $821,090 | $20.53 | | |
| SLDREL | SOLDIERS RELIEF 121 | 0.0155990005 | $821,090 | $821,090 | $12.81 | | |
| EMERGSER | EMS 147 | 0.3792580840 | $821,090 | $821,090 | $311.41 | | |
| EMSRFD | EMS REFUND 147 | 0.0000000000 | $821,090 | $821,090 | $0.00 | | |
| PORTRFD | PORT REFUND 640 | 0.0000000000 | $821,090 | $821,090 | $0.00 | | |
| PORTWWGEN | PORT OF WW 640 | 0.2460186015 | $821,090 | $821,090 | $202.00 | | |
| SD140BOND | SD #140 BOND 764 | 0.8342371393 | $821,090 | $821,090 | $684.98 | | |
| SD140GEN | SD #140 GENERAL 760 | 2.0646500647 | $821,090 | $821,090 | $1,695.26 | | |
| ST2 | STATE SCHOOL PART 2 600 | 0.8131451643 | $821,090 | $821,090 | $667.67 | | |
| STATESCHL | STATE SCHOOL 600 | 1.5158548041 | $821,090 | $821,090 | $1,244.65 | | |
| STREFUND | STATE REFUND LEVY 603 | 0.0000000000 | $821,090 | $821,090 | $0.00 | | |
| CWWBOND | C OF WW BOND 643 | 0.2760494372 | $821,090 | $821,090 | $226.66 | | |
| CWWGEN | CITY OF WW 631 | 1.6100204973 | $821,090 | $821,090 | $1,321.97 | | |
| CWWRFD | CITY OF WALLA WALLA REFUND 631 | 0.0000000000 | $821,090 | $821,090 | $0.00 | | |
| | Total Tax Rate: | 8.7973694689 | | | | | |
| | | | | Taxes w/Current Exemptions: | $7,223.43 | | |
| | | | | Taxes w/o Exemptions: | $7,223.43 | | |
Improvement / Building
| Improvement #1: | RESIDENTIAL | State Code: | 11 | 2328.0 sqft | Value: | $748,050 |
| Exterior Wall: | SIDING | Heating/Cooling: | HEAT PUMP | | Number of Bathrooms: | 2 | Number of Bedrooms: | 3 | | Plumbing: | 10 | Roof Covering: | COMP SHINGLE |
|
| | Type | Description | Class CD | Sub Class CD | Year Built | Area |
| | MA | Main Area | 4 | 50 | 1903 | 2328.0 |
| | UPFL | Upper Floor (included in main area) | 4 | 50 | 1903 | 940.0 |
| | SI1 | SITE IMPROVEMENT | 4 | 50 | 1903 | 4.0 |
| | BASE | BASEMENT | 4 | 50 | 1903 | 1280.0 |
| | BPF | BASEMENT -PARTITIONED FINISH | 4 | 50 | 1903 | 1280.0 |
| | S2F | Single 2S Fireplace | 4 | 50 | 1903 | 1.0 |
| | RCD | WOOD DECK W/ROOF, CEILED | 4 | 50 | 0 | 70.0 |
| | BLW | WOOD BALCONIES | 4 | 50 | 0 | 102.0 |
| | RCD | WOOD DECK W/ROOF, CEILED | 4 | 50 | 0 | 480.0 |
Sketch
Property Image
Land
| 1 | RES 1 | Converted: Residential | 0.2525 | 11000.00 | 0.00 | 0.00 | 1.00 | $73,040 | $0 |
Roll Value History
| 2026 | N/A | N/A | N/A | N/A | N/A |
| 2025 | $689,500 | $121,000 | $0 | $810,500 | $810,500 |
| 2024 | $689,500 | $121,000 | $0 | $810,500 | $810,500 |
| 2023 | $748,050 | $73,040 | $0 | $821,090 | $821,090 |
| 2022 | $650,480 | $73,040 | $0 | $723,520 | $723,520 |
| 2021 | $565,630 | $73,040 | $0 | $638,670 | $638,670 |
| 2020 | $435,100 | $73,040 | $0 | $508,140 | $508,140 |
| 2019 | $435,100 | $73,040 | $0 | $508,140 | $508,140 |
| 2018 | $334,300 | $73,040 | $0 | $407,340 | $407,340 |
| 2017 | $299,990 | $45,600 | $0 | $345,590 | $345,590 |
| 2016 | $285,700 | $45,600 | $0 | $331,300 | $331,300 |
| 2015 | $285,700 | $45,600 | $0 | $331,300 | $331,300 |
| 2014 | $285,700 | $45,600 | $0 | $331,300 | $331,300 |
| 2013 | $285,700 | $45,600 | $0 | $331,300 | $331,300 |
| 2012 | $266,500 | $45,600 | $0 | $0 | $0 |
| 2011 | $233,400 | $45,600 | $0 | $0 | $0 |
| 2010 | $217,600 | $45,600 | $0 | $0 | $0 |
| 2009 | $252,600 | $45,600 | $0 | $0 | $0 |
| 2008 | $100,700 | $45,600 | $0 | $0 | $0 |
| 2007 | $100,700 | $45,600 | $0 | $0 | $0 |
Deed and Sales History
| 1 | 08/08/2024 | WARRANTY D | WARRANTY DEED | DE REUCK NICOLETTE JANE & JAMES LILBURN | DE REUCK LIVING TRUST | | | | 147996 | 2024-04369 |
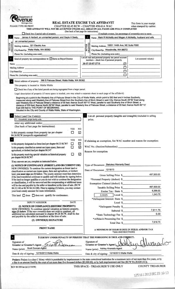
| 2 | 01/03/2022 | SWD | STATUTORY WARRANTY DEED | MC NEILLY MARK R & MEGAN A | DE REUCK NICOLETTE JANE & JAMES LILBURN | | | $899,000.00 | 143175 | 2022-00049 |
| 3 | 12/23/2013 | WARRANTY D | WARRANTY DEED | HERBERT JAMES A | MC NEILLY MARK R & MEGAN A | | | $497,500.00 | 125161 | 2013-12214 |
| 4 | 01/24/2005 | WARRANTY D | WARRANTY DEED | GROSS, LOIS B | HERBERT, JAMES A | | | $100,000.00 | 106652 | 2005-00902 |
| 5 | 09/21/1983 | WARRANTY D | WARRANTY DEED | | | | | $51,000.00 | 0 | 1859-006917 |
Payout Agreement
| No payout information available.. |