Property
Account |
| Property ID: | 26511 | Abbreviated Legal Description: | EAST SCHAFFERS SUB TAX 7 BLK 2 |
| Parcel Number: | 360728700219 | Agent Code: | |
| Type: | Real | | |
| Tax Area: | 1 - OL-140-F | Land Use Code | 11 |
| Open Space: | N | DFL | N |
| Historic Property: | N | Remodel Property: | N |
| Multi-Family Redevelopment: | N | | |
| Township: | 7 | Section: | 28 |
| Range: | 36 |
Location |
| Address: | 1319 GRANT ST WA 99362 | Mapsco: | |
| Neighborhood: | G Res | Map ID: | |
| Neighborhood CD: | 614011 |
Owner |
| Name: | JENNINGS JAY T | Owner ID: | 59272 |
| Mailing Address: | JOHN D BAILEY 2014 NW 16TH AVE PORTLAND, OR 97209-2562 | % Ownership: | 100.0000000000% |
| | | Exemptions: | |
Taxes and Assessment Details
Property Tax Information as of
04/19/2026
Click on "Statement Details" to expand or collapse a tax statement.
* Please enter a valid date ** Please enter a valid date *
Statement Details |
| | TOTAL: | $0.00 | $0.00 | $0.00 | $0.00 | $0.00 | $0.00 |
|
| | $0.00 | $0.00 | $0.00 | $0.00 | $0.00 | $0.00 |
Values
| (+) Improvement Homesite Value: | + | $0 | |
| (+) Improvement Non-Homesite Value: | + | $405,360 | |
| (+) Land Homesite Value: | + | $0 | |
| (+) Land Non-Homesite Value: | + | $78,390 | |
| (+) Curr Use (HS): | + | $0 | $0 |
| (+) Curr Use (NHS): | + | $0 | $0 |
| | | -------------------------- | |
| (=) Market Value: | = | $483,750 | |
| (–) Productivity Loss: | – | $0 | |
| | | -------------------------- | |
| (=) Subtotal: | = | $483,750 | |
| (+) Senior Appraised Value: | + | $0 | |
| (+) Non-Senior Appraised Value: | + | $483,750 | |
| | | -------------------------- | |
| (=) Total Appraised Value: | = | $483,750 | |
| (–) Senior Exemption Loss: | – | $0 | |
| (–) Exemption Loss: | – | $0 | |
| | | -------------------------- | |
| (=) Taxable Value: | = | $483,750 | |
Taxing Jurisdiction
| Owner: | JENNINGS JAY T | | |
| % Ownership: | 100.0000000000% | | |
| Total Value: | $483,750 | | |
| Tax Area: | 1 - OL-140-F |
| CERFD | CURRENT EXPENSE REFUND 010 | 0.0000000000 | $483,750 | $483,750 | $0.00 | | |
| CURREXP | CURRENT EXPENSE 010 | 1.0175366760 | $483,750 | $483,750 | $492.23 | | |
| HUMNSERV | HUMAN SERVICES 119 | 0.0250000000 | $483,750 | $483,750 | $12.09 | | |
| SLDREL | SOLDIERS RELIEF 121 | 0.0155990005 | $483,750 | $483,750 | $7.55 | | |
| EMERGSER | EMS 147 | 0.3792580840 | $483,750 | $483,750 | $183.47 | | |
| EMSRFD | EMS REFUND 147 | 0.0000000000 | $483,750 | $483,750 | $0.00 | | |
| PORTRFD | PORT REFUND 640 | 0.0000000000 | $483,750 | $483,750 | $0.00 | | |
| PORTWWGEN | PORT OF WW 640 | 0.2460186015 | $483,750 | $483,750 | $119.01 | | |
| SD140BOND | SD #140 BOND 764 | 0.8342371393 | $483,750 | $483,750 | $403.56 | | |
| SD140GEN | SD #140 GENERAL 760 | 2.0646500647 | $483,750 | $483,750 | $998.77 | | |
| ST2 | STATE SCHOOL PART 2 600 | 0.8131451643 | $483,750 | $483,750 | $393.36 | | |
| STATESCHL | STATE SCHOOL 600 | 1.5158548041 | $483,750 | $483,750 | $733.29 | | |
| STREFUND | STATE REFUND LEVY 603 | 0.0000000000 | $483,750 | $483,750 | $0.00 | | |
| CWWBOND | C OF WW BOND 643 | 0.2760494372 | $483,750 | $483,750 | $133.54 | | |
| CWWGEN | CITY OF WW 631 | 1.6100204973 | $483,750 | $483,750 | $778.85 | | |
| CWWRFD | CITY OF WALLA WALLA REFUND 631 | 0.0000000000 | $483,750 | $483,750 | $0.00 | | |
| | Total Tax Rate: | 8.7973694689 | | | | | |
| | | | | Taxes w/Current Exemptions: | $4,255.72 | | |
| | | | | Taxes w/o Exemptions: | $4,255.72 | | |
Improvement / Building
| Improvement #1: | RESIDENTIAL | State Code: | 11 | 1506.0 sqft | Value: | $405,360 |
| Exterior Wall: | COMMON BRICK | Heating/Cooling: | BASEBOARD HOT WATER | | Number of Bathrooms: | 2 | Number of Bedrooms: | 4 | | Plumbing: | 9 | Roof Covering: | COMP SHINGLE |
|
| | Type | Description | Class CD | Sub Class CD | Year Built | Area |
| | MA | Main Area | 1 | 40 | 1952 | 1506.0 |
| | SI1 | SITE IMPROVEMENT | 1 | 40 | 1952 | 2.0 |
| | BASE | BASEMENT | 1 | 40 | 1952 | 875.0 |
| | BPF | BASEMENT -PARTITIONED FINISH | 1 | 40 | 1952 | 810.0 |
| | S1F | Single One Story Fireplace | 1 | 40 | 1952 | 1.0 |
| | SMP | SWIMMING POOL | 1 | 40 | 1952 | 1.0 |
| | PRC | PORCH W STEPS, ROOF,CEILED | 1 | 40 | 1952 | 56.0 |
Sketch
Property Image
Land
| 1 | RES 1 | Converted: Residential | 0.1800 | 7839.00 | 0.00 | 0.00 | 1.00 | $78,390 | $0 |
Roll Value History
| 2026 | N/A | N/A | N/A | N/A | N/A |
| 2025 | $439,920 | $94,070 | $0 | $533,990 | $533,990 |
| 2024 | $445,900 | $78,390 | $0 | $524,290 | $524,290 |
| 2023 | $405,360 | $78,390 | $0 | $483,750 | $483,750 |
| 2022 | $405,360 | $64,670 | $0 | $470,030 | $470,030 |
| 2021 | $289,540 | $64,670 | $0 | $354,210 | $354,210 |
| 2020 | $263,220 | $64,670 | $0 | $327,890 | $327,890 |
| 2019 | $263,220 | $64,670 | $0 | $327,890 | $327,890 |
| 2018 | $215,730 | $45,300 | $0 | $261,030 | $261,030 |
| 2017 | $196,120 | $45,300 | $0 | $241,420 | $241,420 |
| 2016 | $178,290 | $45,300 | $0 | $223,590 | $223,590 |
| 2015 | $178,290 | $45,300 | $0 | $223,590 | $223,590 |
| 2014 | $169,800 | $45,300 | $0 | $215,100 | $215,100 |
| 2013 | $169,800 | $45,300 | $0 | $215,100 | $215,100 |
| 2012 | $180,900 | $45,300 | $0 | $0 | $0 |
| 2011 | $180,900 | $45,300 | $0 | $0 | $0 |
| 2010 | $151,400 | $45,300 | $0 | $0 | $0 |
| 2009 | $173,300 | $45,300 | $0 | $0 | $0 |
| 2008 | $173,300 | $45,300 | $0 | $0 | $0 |
| 2007 | $104,100 | $22,800 | $0 | $0 | $0 |
Deed and Sales History
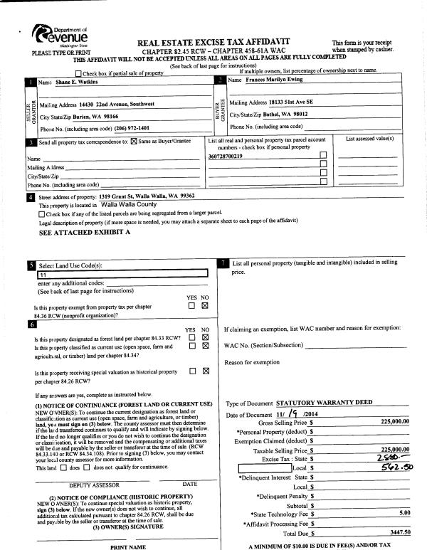
| 1 | 07/20/2016 | SWD | STATUTORY WARRANTY DEED | EWING FRANCES MARILYN | JENNINGS JAY T | | | $275,000.00 | 130673 | 2016-05685 |
| 2 | 11/21/2014 | SWD | STATUTORY WARRANTY DEED | WATKINS SHANE E | EWING FRANCES MARILYN | | | $225,000.00 | 126995 | 2014-08478 |
| 3 | 11/03/2008 | QCD | QUIT CLAIM DEED | WATKINS, SHANE | WATKINS, SHANE E | | | $99,000.00 | 115910 | 2008-11088 |
| 4 | 03/09/2007 | WARRANTY D | WARRANTY DEED | MC GILL, CHRIS A & MARGARET A | WATKINS, SHANE | | | $220,000.00 | 112371 | 2007-02666 |
| 5 | 11/30/2001 | WARRANTY D | WARRANTY DEED | | | | | $127,500.00 | 98456 | 3240-113105 |
Payout Agreement
| No payout information available.. |