Property
Account |
| Property ID: | 26469 | Abbreviated Legal Description: | CP #2 TAX 35 LOT 3 BLK 12 W 13' OF E 70' OF S 85' OF LOT 3 BLK 12 |
| Parcel Number: | 350736601205 | Agent Code: | |
| Type: | Real | | |
| Tax Area: | 75 - CP 250 | Land Use Code | 11 |
| Open Space: | N | DFL | N |
| Historic Property: | N | Remodel Property: | N |
| Multi-Family Redevelopment: | N | | |
| Township: | 7 | Section: | 36 |
| Range: | 35 |
Location |
| Address: | 47 SE 10TH ST WA 99324 | Mapsco: | |
| Neighborhood: | A SFR | Map ID: | |
| Neighborhood CD: | 113011 |
Owner |
| Name: | BAKER TIMOTHY | Owner ID: | 69821 |
| Mailing Address: | PO BOX 17 POMEROY, WA 99347 | % Ownership: | 100.0000000000% |
| | | Exemptions: | |
Taxes and Assessment Details
Property Tax Information as of
02/21/2026
Click on "Statement Details" to expand or collapse a tax statement.
* Please enter a valid date ** Please enter a valid date *
Statement Details |
| | TOTAL: | $0.00 | $0.00 | $0.00 | $0.00 | $0.00 | $0.00 |
|
| | $0.00 | $0.00 | $0.00 | $0.00 | $0.00 | $0.00 |
Values
| (+) Improvement Homesite Value: | + | $0 | |
| (+) Improvement Non-Homesite Value: | + | $241,880 | |
| (+) Land Homesite Value: | + | $0 | |
| (+) Land Non-Homesite Value: | + | $38,810 | |
| (+) Curr Use (HS): | + | $0 | $0 |
| (+) Curr Use (NHS): | + | $0 | $0 |
| | | -------------------------- | |
| (=) Market Value: | = | $280,690 | |
| (–) Productivity Loss: | – | $0 | |
| | | -------------------------- | |
| (=) Subtotal: | = | $280,690 | |
| (+) Senior Appraised Value: | + | $0 | |
| (+) Non-Senior Appraised Value: | + | $280,690 | |
| | | -------------------------- | |
| (=) Total Appraised Value: | = | $280,690 | |
| (–) Senior Exemption Loss: | – | $0 | |
| (–) Exemption Loss: | – | $0 | |
| | | -------------------------- | |
| (=) Taxable Value: | = | $280,690 | |
Taxing Jurisdiction
| Owner: | BAKER TIMOTHY | | |
| % Ownership: | 100.0000000000% | | |
| Total Value: | $280,690 | | |
| Tax Area: | 75 - CP 250 |
| CERFD | CURRENT EXPENSE REFUND 010 | 0.0000000000 | $280,690 | $280,690 | $0.00 | | |
| CURREXP | CURRENT EXPENSE 010 | 1.0175366760 | $280,690 | $280,690 | $285.61 | | |
| HUMNSERV | HUMAN SERVICES 119 | 0.0250000000 | $280,690 | $280,690 | $7.02 | | |
| SLDREL | SOLDIERS RELIEF 121 | 0.0155990005 | $280,690 | $280,690 | $4.38 | | |
| COLLPLBOND | C OF CP BOND 644 | 0.4374241808 | $280,690 | $280,690 | $122.78 | | |
| COLLPLGEN | CITY OF CP 632 | 1.4453819216 | $280,690 | $280,690 | $405.70 | | |
| EMERGSER | EMS 147 | 0.3792580840 | $280,690 | $280,690 | $106.45 | | |
| EMSRFD | EMS REFUND 147 | 0.0000000000 | $280,690 | $280,690 | $0.00 | | |
| RURALLIB | RURAL LIBRARY 623 | 0.3710609029 | $280,690 | $280,690 | $104.15 | | |
| PORTRFD | PORT REFUND 640 | 0.0000000000 | $280,690 | $280,690 | $0.00 | | |
| PORTWWGEN | PORT OF WW 640 | 0.2460186015 | $280,690 | $280,690 | $69.05 | | |
| SD250BOND | SD #250 BOND 773 | 1.4560608159 | $280,690 | $280,690 | $408.70 | | |
| SD250GEN | SD #250 GENERAL 770 | 2.3880724087 | $280,690 | $280,690 | $670.31 | | |
| ST2 | STATE SCHOOL PART 2 600 | 0.8131451643 | $280,690 | $280,690 | $228.24 | | |
| STATESCHL | STATE SCHOOL 600 | 1.5158548041 | $280,690 | $280,690 | $425.49 | | |
| STREFUND | STATE REFUND LEVY 603 | 0.0000000000 | $280,690 | $280,690 | $0.00 | | |
| | Total Tax Rate: | 10.1104125603 | | | | | |
| | | | | Taxes w/Current Exemptions: | $2,837.88 | | |
| | | | | Taxes w/o Exemptions: | $2,837.88 | | |
Improvement / Building
| Improvement #1: | RESIDENTIAL | State Code: | 11 | 1550.0 sqft | Value: | $241,880 |
| Exterior Wall: | SIDING | Heating/Cooling: | FORCED AIR | | Number of Bathrooms: | 2 | Number of Bedrooms: | 3 | | Plumbing: | 12 | Roof Covering: | BUILT-UP ROCK |
|
| | Type | Description | Class CD | Sub Class CD | Year Built | Area |
| | MA | Main Area | 4 | 20 | 1942 | 1550.0 |
| | UPFL | Upper Floor (included in main area) | 4 | 20 | 1942 | 525.0 |
| | SI1 | SITE IMPROVEMENT | 4 | 20 | 1942 | 1.5 |
| | SWP | Solid Wall Porch | 4 | 20 | 1942 | 25.0 |
| | ATG | Attached Garage | 4 | 20 | 1942 | 500.0 |
Sketch
Property Image
Land
| 1 | RES 1 | Converted: Residential | 0.1320 | 5750.00 | 0.00 | 0.00 | 1.00 | $38,810 | $0 |
Roll Value History
| 2026 | N/A | N/A | N/A | N/A | N/A |
| 2025 | $193,500 | $57,500 | $0 | $251,000 | $251,000 |
| 2024 | $241,880 | $38,810 | $0 | $280,690 | $280,690 |
| 2023 | $241,880 | $38,810 | $0 | $280,690 | $280,690 |
| 2022 | $230,360 | $38,810 | $0 | $269,170 | $269,170 |
| 2021 | $164,540 | $38,810 | $0 | $203,350 | $203,350 |
| 2020 | $137,120 | $38,810 | $0 | $175,930 | $175,930 |
| 2019 | $141,430 | $34,500 | $0 | $175,930 | $175,930 |
| 2018 | $122,980 | $34,500 | $0 | $157,480 | $157,480 |
| 2017 | $122,980 | $34,500 | $0 | $157,480 | $157,480 |
| 2016 | $111,800 | $34,500 | $0 | $146,300 | $146,300 |
| 2015 | $111,800 | $34,500 | $0 | $146,300 | $146,300 |
| 2014 | $111,800 | $34,500 | $0 | $146,300 | $146,300 |
| 2013 | $111,800 | $34,500 | $0 | $146,300 | $146,300 |
| 2012 | $111,800 | $34,500 | $0 | $0 | $0 |
| 2011 | $46,800 | $34,500 | $0 | $0 | $0 |
| 2010 | $17,400 | $34,500 | $0 | $0 | $0 |
| 2009 | $78,300 | $34,500 | $0 | $0 | $0 |
| 2008 | $56,700 | $17,300 | $0 | $0 | $0 |
| 2007 | $56,700 | $17,300 | $0 | $0 | $0 |
Deed and Sales History
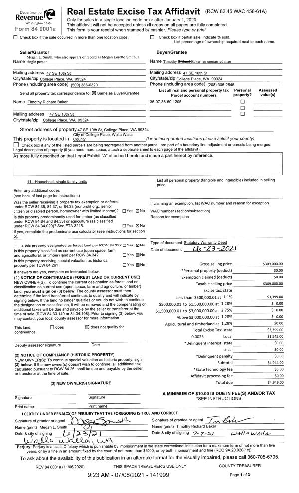
| 1 | 07/08/2021 | SWD | STATUTORY WARRANTY DEED | SMITH MEGAN L | BAKER TIMOTHY | | | $309,000.00 | 141999 | 2021-08251 |
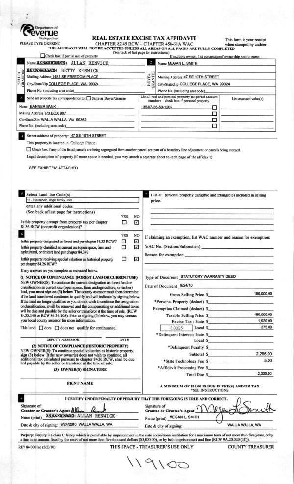
| 2 | 09/30/2010 | WARRANTY D | WARRANTY DEED | RENWICK, ALLAN & BETTY | SMITH, MEGAN L | | | $150,000.00 | 119100 | 2010-07774 |
| 3 | 04/27/2009 | WARRANTY D | WARRANTY DEED | FEDERAL NATIONAL MORTGAGE ASSO | RENWICK, ALLAN & BETTY | | | $52,010.00 | 116660 | 2009-04100 |
| 4 | 10/31/2008 | WARRANTY D | WARRANTY DEED | WASHINGTON MUTUAL BANK | FEDERAL NATIONAL MORTGAGE ASSO | | | $61,680.00 | 115903 | 2008-11035 |
| 5 | 08/20/2008 | WARRANTY D | WARRANTY DEED | QUALITY LOAN SERVICE CORP OF W | WASHINGTON MUTUAL BANK | | | $61,680.00 | 115513 | 2008-08596 |
| 6 | 09/12/2001 | WARRANTY D | WARRANTY DEED | | | | | $67,000.00 | 98011 | 3190-109936 |
Payout Agreement
| No payout information available.. |