Property
Account |
| Property ID: | 26463 | Abbreviated Legal Description: | TRIPLE CREEK MEADOWS PHASE 2 LOT 16 BLOCK 3 |
| Parcel Number: | 360733980308 | Agent Code: | |
| Type: | Real | | |
| Tax Area: | 5 - OL-140 | Land Use Code | 11 |
| Open Space: | N | DFL | N |
| Historic Property: | N | Remodel Property: | N |
| Multi-Family Redevelopment: | N | | |
| Township: | 7 | Section: | 33 |
| Range: | 36 |
Location |
| Address: | 24 BUTTONQUAIL LN WA 99362 | Mapsco: | |
| Neighborhood: | A Res | Map ID: | |
| Neighborhood CD: | 613011 |
Owner |
| Name: | BENZEL MICHAEL A | Owner ID: | 52459 |
| Mailing Address: | DENISE M MUSICK 24 BUTTONQUAIL LN WALLA WALLA, WA 99362 | % Ownership: | 100.0000000000% |
| | | Exemptions: | |
Taxes and Assessment Details
Property Tax Information as of
02/21/2026
Click on "Statement Details" to expand or collapse a tax statement.
* Please enter a valid date ** Please enter a valid date *
Statement Details |
| | TOTAL: | $0.00 | $0.00 | $0.00 | $0.00 | $0.00 | $0.00 |
|
| | $0.00 | $0.00 | $0.00 | $0.00 | $0.00 | $0.00 |
Values
| (+) Improvement Homesite Value: | + | $0 | |
| (+) Improvement Non-Homesite Value: | + | $411,880 | |
| (+) Land Homesite Value: | + | $0 | |
| (+) Land Non-Homesite Value: | + | $125,000 | |
| (+) Curr Use (HS): | + | $0 | $0 |
| (+) Curr Use (NHS): | + | $0 | $0 |
| | | -------------------------- | |
| (=) Market Value: | = | $536,880 | |
| (–) Productivity Loss: | – | $0 | |
| | | -------------------------- | |
| (=) Subtotal: | = | $536,880 | |
| (+) Senior Appraised Value: | + | $0 | |
| (+) Non-Senior Appraised Value: | + | $536,880 | |
| | | -------------------------- | |
| (=) Total Appraised Value: | = | $536,880 | |
| (–) Senior Exemption Loss: | – | $0 | |
| (–) Exemption Loss: | – | $0 | |
| | | -------------------------- | |
| (=) Taxable Value: | = | $536,880 | |
Taxing Jurisdiction
| Owner: | BENZEL MICHAEL A | | |
| % Ownership: | 100.0000000000% | | |
| Total Value: | $536,880 | | |
| Tax Area: | 5 - OL-140 |
| CERFD | CURRENT EXPENSE REFUND 010 | 0.0000000000 | $536,880 | $536,880 | $0.00 | | |
| CURREXP | CURRENT EXPENSE 010 | 0.9851088983 | $536,880 | $536,880 | $528.89 | | |
| HUMNSERV | HUMAN SERVICES 119 | 0.0250000000 | $536,880 | $536,880 | $13.42 | | |
| SLDREL | SOLDIERS RELIEF 121 | 0.0155990000 | $536,880 | $536,880 | $8.37 | | |
| EMERGSER | EMS 147 | 0.3676811629 | $536,880 | $536,880 | $197.40 | | |
| EMSRFD | EMS REFUND 147 | 0.0000000000 | $536,880 | $536,880 | $0.00 | | |
| PORTRFD | PORT REFUND 640 | 0.0000000000 | $536,880 | $536,880 | $0.00 | | |
| PORTWWGEN | PORT OF WW 640 | 0.2344301070 | $536,880 | $536,880 | $125.86 | | |
| SD140BOND | SD #140 BOND 764 | 0.8032434458 | $536,880 | $536,880 | $431.25 | | |
| SD140CAP | SD #140 CAP 762 | 0.3840034221 | $536,880 | $536,880 | $206.16 | | |
| SD140GEN | SD #140 GENERAL 760 | 2.4999999996 | $536,880 | $536,880 | $1,342.20 | | |
| ST2 | STATE SCHOOL PART 2 600 | 0.8853714103 | $536,880 | $536,880 | $475.34 | | |
| STATESCHL | STATE SCHOOL 600 | 1.6424571473 | $536,880 | $536,880 | $881.80 | | |
| STREFUND | STATE REFUND LEVY 603 | 0.0000000000 | $536,880 | $536,880 | $0.00 | | |
| CWWBOND | C OF WW BOND 643 | 0.2642134255 | $536,880 | $536,880 | $141.85 | | |
| CWWGEN | CITY OF WW 631 | 1.6110494978 | $536,880 | $536,880 | $864.94 | | |
| CWWRFD | CITY OF WALLA WALLA REFUND 631 | 0.0000000000 | $536,880 | $536,880 | $0.00 | | |
| | Total Tax Rate: | 9.7181575166 | | | | | |
| | | | | Taxes w/Current Exemptions: | $5,217.48 | | |
| | | | | Taxes w/o Exemptions: | $5,217.48 | | |
Improvement / Building
| Improvement #1: | RESIDENTIAL | State Code: | 11 | 1714.0 sqft | Value: | $411,880 |
| Exterior Wall: | PLYWOOD | Heating/Cooling: | MINI-SPLIT HP SYSTEM | | Number of Bathrooms: | 2 | Number of Bedrooms: | 3 | | Plumbing: | 11 | Roof Covering: | COMP SHINGLE |
|
| | Type | Description | Class CD | Sub Class CD | Year Built | Area |
| | MA | Main Area | 1 | 40 | 2012 | 1714.0 |
| | GFP | GAS FIREPLACE | 1 | 40 | 2012 | 1.0 |
| | RPC | OPEN PORCH W/ROOF , CEILED | 1 | 40 | 2012 | 24.0 |
| | RPC | OPEN PORCH W/ROOF , CEILED | 1 | 40 | 2012 | 138.0 |
| | SI1 | SITE IMPROVEMENT | 1 | 40 | 2012 | 3.5 |
| | ATG | Attached Garage | 1 | 40 | 2012 | 576.0 |
| | CPC | COVERED CARPORT/PATIO | 1 | 30 | 2012 | 168.0 |
Sketch
Property Image
Land
| 1 | RES 1 | Converted: Residential | 0.3282 | 14296.00 | 0.00 | 0.00 | 1.00 | $125,000 | $0 |
Roll Value History
| 2026 | N/A | N/A | N/A | N/A | N/A |
| 2025 | $411,880 | $125,000 | $0 | $536,880 | $536,880 |
| 2024 | $407,700 | $100,000 | $0 | $507,700 | $507,700 |
| 2023 | $370,630 | $100,000 | $0 | $470,630 | $470,630 |
| 2022 | $336,940 | $85,000 | $0 | $421,940 | $421,940 |
| 2021 | $249,590 | $85,000 | $0 | $334,590 | $334,590 |
| 2020 | $217,030 | $85,000 | $0 | $302,030 | $302,030 |
| 2019 | $217,030 | $85,000 | $0 | $302,030 | $302,030 |
| 2018 | $227,680 | $50,000 | $0 | $277,680 | $277,680 |
| 2017 | $216,840 | $50,000 | $0 | $266,840 | $266,840 |
| 2016 | $210,530 | $50,000 | $0 | $260,530 | $260,530 |
| 2015 | $210,530 | $50,000 | $0 | $260,530 | $260,530 |
| 2014 | $200,500 | $50,000 | $0 | $250,500 | $250,500 |
| 2013 | $200,500 | $50,000 | $0 | $250,500 | $250,500 |
| 2012 | $0 | $55,000 | $0 | $0 | $0 |
| 2011 | $0 | $55,000 | $0 | $0 | $0 |
| 2010 | $0 | $55,000 | $0 | $0 | $0 |
| 2009 | $0 | $65,000 | $0 | $0 | $0 |
| 2008 | $0 | $65,000 | $0 | $0 | $0 |
| 2007 | $200,500 | $50,000 | $0 | $0 | $0 |
Deed and Sales History
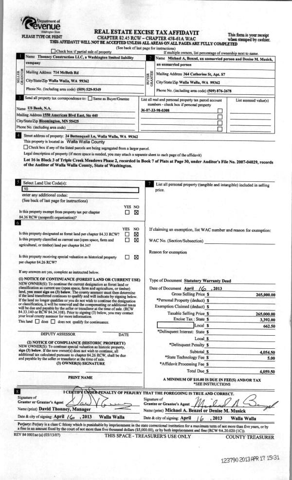
| 1 | 04/17/2013 | WARRANTY D | WARRANTY DEED | THONNEY CONSTRUCTION LLC | BENZEL, MICHAEL A | | | $265,000.00 | 123790 | 2013-03711 |
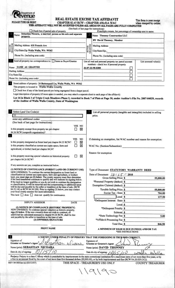
| 2 | 10/15/2010 | WARRANTY D | WARRANTY DEED | NICOARA, SEBASTIAN & SHELAH | THONNEY CONSTRUCTION LLC | | | $55,000.00 | 119190 | 2010-08311 |
| 3 | 12/09/2008 | QCD | QUIT CLAIM DEED | NICOARA, SEBASTIAN | NICOARA, SEBASTIAN & SHELAH | | | | 116067 | 2008-12171 |
| 4 | 11/24/2008 | WARRANTY D | WARRANTY DEED | MAJERUS, DOUGLAS | NICOARA, SEBASTIAN | | | $105,339.00 | 115997 | 2008-11645 |
|   | |
Payout Agreement
| No payout information available.. |