Property
Account |
| Property ID: | 26462 | Abbreviated Legal Description: | TRIPLE CREEK MEADOWS PHASE 2 LOT 10 BLOCK 3 |
| Parcel Number: | 360733980302 | Agent Code: | |
| Type: | Real | | |
| Tax Area: | 5 - OL-140 | Land Use Code | 11 |
| Open Space: | N | DFL | N |
| Historic Property: | N | Remodel Property: | N |
| Multi-Family Redevelopment: | N | | |
| Township: | 7 | Section: | 33 |
| Range: | 36 |
Location |
| Address: | 302 AUSTIN ST WA 99362 | Mapsco: | |
| Neighborhood: | G Res Rural/City Inf | Map ID: | |
| Neighborhood CD: | 614012 |
Owner |
| Name: | FRANKLIN NATHAN D & LISA C | Owner ID: | 56768 |
| Mailing Address: | 302 AUSTIN ST WALLA WALLA, WA 99362 | % Ownership: | 100.0000000000% |
| | | Exemptions: | |
Taxes and Assessment Details
Property Tax Information as of
02/21/2026
Click on "Statement Details" to expand or collapse a tax statement.
* Please enter a valid date ** Please enter a valid date *
Statement Details |
| | TOTAL: | $0.00 | $0.00 | $0.00 | $0.00 | $0.00 | $0.00 |
|
| | $0.00 | $0.00 | $0.00 | $0.00 | $0.00 | $0.00 |
Values
| (+) Improvement Homesite Value: | + | $0 | |
| (+) Improvement Non-Homesite Value: | + | $444,630 | |
| (+) Land Homesite Value: | + | $0 | |
| (+) Land Non-Homesite Value: | + | $100,000 | |
| (+) Curr Use (HS): | + | $0 | $0 |
| (+) Curr Use (NHS): | + | $0 | $0 |
| | | -------------------------- | |
| (=) Market Value: | = | $544,630 | |
| (–) Productivity Loss: | – | $0 | |
| | | -------------------------- | |
| (=) Subtotal: | = | $544,630 | |
| (+) Senior Appraised Value: | + | $0 | |
| (+) Non-Senior Appraised Value: | + | $544,630 | |
| | | -------------------------- | |
| (=) Total Appraised Value: | = | $544,630 | |
| (–) Senior Exemption Loss: | – | $0 | |
| (–) Exemption Loss: | – | $0 | |
| | | -------------------------- | |
| (=) Taxable Value: | = | $544,630 | |
Taxing Jurisdiction
| Owner: | FRANKLIN NATHAN D & LISA C | | |
| % Ownership: | 100.0000000000% | | |
| Total Value: | $544,630 | | |
| Tax Area: | 5 - OL-140 |
| CERFD | CURRENT EXPENSE REFUND 010 | 0.0000000000 | $544,630 | $544,630 | $0.00 | | |
| CURREXP | CURRENT EXPENSE 010 | 1.0175366760 | $544,630 | $544,630 | $554.18 | | |
| HUMNSERV | HUMAN SERVICES 119 | 0.0250000000 | $544,630 | $544,630 | $13.62 | | |
| SLDREL | SOLDIERS RELIEF 121 | 0.0155990005 | $544,630 | $544,630 | $8.50 | | |
| EMERGSER | EMS 147 | 0.3792580840 | $544,630 | $544,630 | $206.56 | | |
| EMSRFD | EMS REFUND 147 | 0.0000000000 | $544,630 | $544,630 | $0.00 | | |
| PORTRFD | PORT REFUND 640 | 0.0000000000 | $544,630 | $544,630 | $0.00 | | |
| PORTWWGEN | PORT OF WW 640 | 0.2460186015 | $544,630 | $544,630 | $133.99 | | |
| SD140BOND | SD #140 BOND 764 | 0.8342371393 | $544,630 | $544,630 | $454.35 | | |
| SD140GEN | SD #140 GENERAL 760 | 2.0646500647 | $544,630 | $544,630 | $1,124.47 | | |
| ST2 | STATE SCHOOL PART 2 600 | 0.8131451643 | $544,630 | $544,630 | $442.86 | | |
| STATESCHL | STATE SCHOOL 600 | 1.5158548041 | $544,630 | $544,630 | $825.58 | | |
| STREFUND | STATE REFUND LEVY 603 | 0.0000000000 | $544,630 | $544,630 | $0.00 | | |
| CWWBOND | C OF WW BOND 643 | 0.2760494372 | $544,630 | $544,630 | $150.34 | | |
| CWWGEN | CITY OF WW 631 | 1.6100204973 | $544,630 | $544,630 | $876.87 | | |
| CWWRFD | CITY OF WALLA WALLA REFUND 631 | 0.0000000000 | $544,630 | $544,630 | $0.00 | | |
| | Total Tax Rate: | 8.7973694689 | | | | | |
| | | | | Taxes w/Current Exemptions: | $4,791.32 | | |
| | | | | Taxes w/o Exemptions: | $4,791.32 | | |
Improvement / Building
| Improvement #1: | RESIDENTIAL | State Code: | 11 | 1947.0 sqft | Value: | $444,630 |
| Exterior Wall: | SIDING | Heating/Cooling: | WARM & COOLED AIR | | Number of Bathrooms: | 2 | Number of Bedrooms: | 4 | | Plumbing: | 12 | Roof Covering: | COMP SHINGLE |
|
| | Type | Description | Class CD | Sub Class CD | Year Built | Area |
| | MA | Main Area | 1 | 40 | 2010 | 1947.0 |
| | SI1 | SITE IMPROVEMENT | 1 | 40 | 2010 | 3.5 |
| | ATG | Attached Garage | 1 | 40 | 2010 | 506.0 |
| | RPO | OPEN PORCH W/ROOF | 1 | 40 | 2010 | 88.0 |
| | BONU | BONUS ROOM W/FINISH | 1 | 40 | 2010 | 280.0 |
| | GFP | GAS FIREPLACE | 1 | 40 | 2010 | 1.0 |
Sketch
Property Image
Land
| 1 | RES 1 | Converted: Residential | 0.3662 | 15951.00 | 0.00 | 0.00 | 1.00 | $100,000 | $0 |
Roll Value History
| 2026 | N/A | N/A | N/A | N/A | N/A |
| 2025 | $494,810 | $125,000 | $0 | $619,810 | $619,810 |
| 2024 | $515,670 | $100,000 | $0 | $615,670 | $615,670 |
| 2023 | $444,630 | $100,000 | $0 | $544,630 | $544,630 |
| 2022 | $404,210 | $85,000 | $0 | $489,210 | $489,210 |
| 2021 | $299,410 | $85,000 | $0 | $384,410 | $384,410 |
| 2020 | $249,510 | $85,000 | $0 | $334,510 | $334,510 |
| 2019 | $249,510 | $85,000 | $0 | $334,510 | $334,510 |
| 2018 | $277,110 | $50,000 | $0 | $327,110 | $327,110 |
| 2017 | $277,110 | $50,000 | $0 | $327,110 | $327,110 |
| 2016 | $269,040 | $50,000 | $0 | $319,040 | $319,040 |
| 2015 | $269,040 | $50,000 | $0 | $319,040 | $319,040 |
| 2014 | $224,200 | $50,000 | $0 | $274,200 | $274,200 |
| 2013 | $224,200 | $50,000 | $0 | $274,200 | $274,200 |
| 2012 | $219,200 | $55,000 | $0 | $0 | $0 |
| 2011 | $115,600 | $55,000 | $0 | $0 | $0 |
| 2010 | $0 | $55,000 | $0 | $0 | $0 |
| 2009 | $0 | $65,000 | $0 | $0 | $0 |
| 2008 | $0 | $65,000 | $0 | $0 | $0 |
| 2007 | $224,200 | $50,000 | $0 | $0 | $0 |
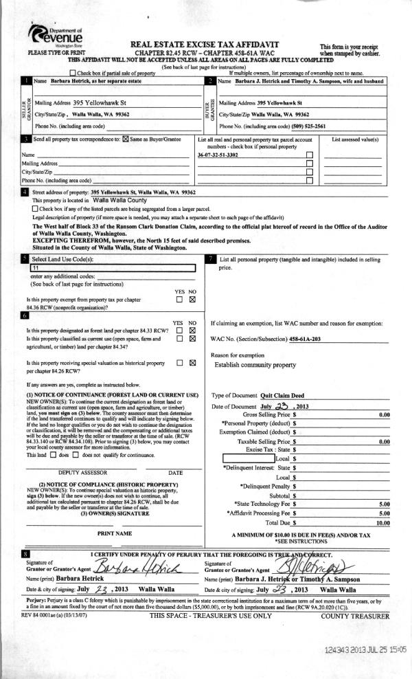
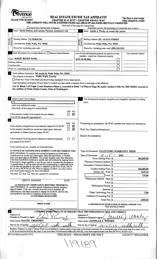
Deed and Sales History
| 1 | 06/10/2015 | SWD | STATUTORY WARRANTY DEED | WOODY JANELLE J | FRANKLIN NATHAN D & LISA C | | | $329,500.00 | 128134 | 2015-04871 |
| 2 | 10/15/2010 | WARRANTY D | WARRANTY DEED | THONNEY, DAVID A & LUCIANA | WOODY, JANELLE J | | | $284,000.00 | 119189 | 2010-08312 |
| 3 | 12/09/2008 | QCD | QUIT CLAIM DEED | NICOARA, SEBASTIAN | THONNEY, DAVID A & LUCIANA | | | | 116066 | 2008-12170 |
| 4 | 11/24/2008 | WARRANTY D | WARRANTY DEED | MAJERUS, DOUGLAS | NICOARA, SEBASTIAN | | | $105,339.00 | 115997 | 2008-11645 |
|   | |
Payout Agreement
| No payout information available.. |