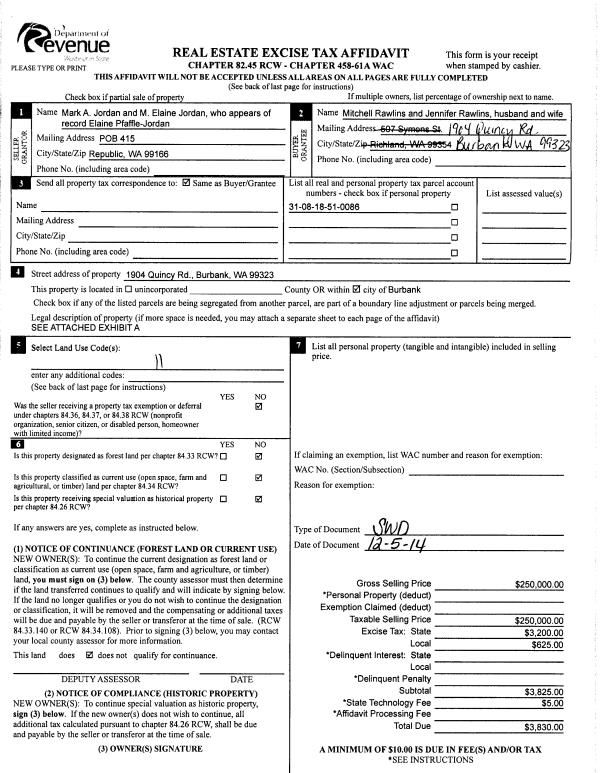
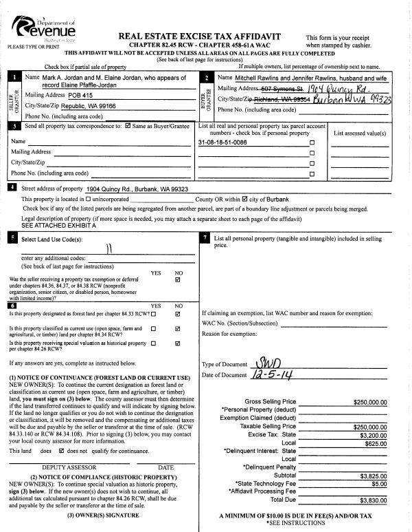
Property
Account |
| Property ID: | 26455 | Abbreviated Legal Description: | CPB #3 TH PTN FU 39 LY NELY OF THE NLY LINE OF CANAL, LESS PTN TOSTATE FOR RD PURPOSES |
| Parcel Number: | 310818510086 | Agent Code: | |
| Type: | Real | | |
| Tax Area: | 328 - 400-M-5 | Land Use Code | 81 |
| Open Space: | N | DFL | N |
| Historic Property: | N | Remodel Property: | N |
| Multi-Family Redevelopment: | N | | |
| Township: | 8 | Section: | 18 |
| Range: | 31 |
Location |
| Address: | 2210 QUINCY RD WA 99323 | Mapsco: | |
| Neighborhood: | 0 Farm | Map ID: | |
| Neighborhood CD: | 2220 |
Owner |
| Name: | BLUE MOUNTAIN FARMS LLC | Owner ID: | 58064 |
| Mailing Address: | 1024 LAKE RD BURBANK, WA 99323 | % Ownership: | 100.0000000000% |
| | | Exemptions: | |
Taxes and Assessment Details
Values
| (+) Improvement Homesite Value: | + | $0 | |
| (+) Improvement Non-Homesite Value: | + | $702,100 | |
| (+) Land Homesite Value: | + | $0 | |
| (+) Land Non-Homesite Value: | + | $547,880 | |
| (+) Curr Use (HS): | + | $0 | $0 |
| (+) Curr Use (NHS): | + | $0 | $0 |
| | | -------------------------- | |
| (=) Market Value: | = | $1,249,980 | |
| (–) Productivity Loss: | – | $0 | |
| | | -------------------------- | |
| (=) Subtotal: | = | $1,249,980 | |
| (+) Senior Appraised Value: | + | $0 | |
| (+) Non-Senior Appraised Value: | + | $1,249,980 | |
| | | -------------------------- | |
| (=) Total Appraised Value: | = | $1,249,980 | |
| (–) Senior Exemption Loss: | – | $0 | |
| (–) Exemption Loss: | – | $0 | |
| | | -------------------------- | |
| (=) Taxable Value: | = | $1,249,980 | |
Taxing Jurisdiction
| Owner: | BLUE MOUNTAIN FARMS LLC | | |
| % Ownership: | 100.0000000000% | | |
| Total Value: | $1,249,980 | | |
| Tax Area: | 328 - 400-M-5 |
| CERFD | CURRENT EXPENSE REFUND 010 | 0.0000000000 | $1,249,980 | $1,249,980 | $0.00 | | |
| CURREXP | CURRENT EXPENSE 010 | 1.0175366760 | $1,249,980 | $1,249,980 | $1,271.90 | | |
| HUMNSERV | HUMAN SERVICES 119 | 0.0250000000 | $1,249,980 | $1,249,980 | $31.25 | | |
| SLDREL | SOLDIERS RELIEF 121 | 0.0155990005 | $1,249,980 | $1,249,980 | $19.50 | | |
| EMERGSER | EMS 147 | 0.3792580840 | $1,249,980 | $1,249,980 | $474.07 | | |
| EMSRFD | EMS REFUND 147 | 0.0000000000 | $1,249,980 | $1,249,980 | $0.00 | | |
| FD5EXP | FD #5 EXPENSE 689 | 1.2045331840 | $1,249,980 | $1,249,980 | $1,505.64 | | |
| RLBRFD | RURAL LIBRARY REFUND 623 | 0.0000000000 | $1,249,980 | $1,249,980 | $0.00 | | |
| RURALLIB | RURAL LIBRARY 623 | 0.3710609029 | $1,249,980 | $1,249,980 | $463.82 | | |
| PORTRFD | PORT REFUND 640 | 0.0000000000 | $1,249,980 | $1,249,980 | $0.00 | | |
| PORTWWGEN | PORT OF WW 640 | 0.2460186015 | $1,249,980 | $1,249,980 | $307.52 | | |
| SD400BOND | SD #400 BOND 793 | 0.0000000000 | $1,249,980 | $1,249,980 | $0.00 | | |
| SD400CAP | SD #400 CP 792 | 0.3443722657 | $1,249,980 | $1,249,980 | $430.46 | | |
| SD400GEN | SD #400 GENERAL 790 | 1.9278469916 | $1,249,980 | $1,249,980 | $2,409.77 | | |
| ST2 | STATE SCHOOL PART 2 600 | 0.8131451643 | $1,249,980 | $1,249,980 | $1,016.42 | | |
| STATESCHL | STATE SCHOOL 600 | 1.5158548041 | $1,249,980 | $1,249,980 | $1,894.79 | | |
| STREFUND | STATE REFUND LEVY 603 | 0.0000000000 | $1,249,980 | $1,249,980 | $0.00 | | |
| COROAD | COUNTY ROAD 115 | 1.6549953990 | $1,249,980 | $1,249,980 | $2,068.71 | | |
| CRPRD | COUNTY ROAD REFUND 115 | 0.0000000000 | $1,249,980 | $1,249,980 | $0.00 | | |
| | Total Tax Rate: | 9.5152210736 | | | | | |
| | | | | Taxes w/Current Exemptions: | $11,893.85 | | |
| | | | | Taxes w/o Exemptions: | $11,893.85 | | |
Improvement / Building
| Improvement #1: | PERM CROP | State Code: | 81 | 0.0 sqft | Value: | $640,000 |
| Improvement #2: | COMMERCIAL | State Code: | 81 | 2160.0 sqft | Value: | $62,100 |
| | Type | Description | Class CD | Sub Class CD | Year Built | Area |
| | MA | Main Area | D | * | 2017 | 2160.0 |
| | SI1 | SITE IMPROVEMENT | D | 30 | 2017 | 2.0 |
Sketch
| No sketches available for this property. |
Property Image
Land
| 1 | C2-I | Class 2 Irrigated | 101.4600 | 0.00 | 0.00 | 0.00 | 1.00 | $547,880 | $0 |
Roll Value History
| 2026 | N/A | N/A | N/A | N/A | N/A |
| 2025 | $702,100 | $588,470 | $0 | $1,290,570 | $1,290,570 |
| 2024 | $702,100 | $568,180 | $0 | $1,270,280 | $1,270,280 |
| 2023 | $702,100 | $547,880 | $0 | $1,249,980 | $1,249,980 |
| 2022 | $702,100 | $507,300 | $0 | $1,209,400 | $1,209,400 |
| 2021 | $622,100 | $456,570 | $0 | $1,078,670 | $1,078,670 |
| 2020 | $568,100 | $365,260 | $0 | $933,360 | $933,360 |
| 2019 | $488,100 | $324,670 | $0 | $812,770 | $812,770 |
| 2018 | $488,100 | $314,530 | $0 | $802,630 | $802,630 |
| 2017 | $408,100 | $314,530 | $0 | $722,630 | $722,630 |
| 2016 | $320,000 | $314,530 | $0 | $634,530 | $634,530 |
| 2015 | $320,000 | $273,940 | $0 | $593,940 | $593,940 |
| 2014 | $320,000 | $273,940 | $0 | $593,940 | $593,940 |
| 2013 | $320,000 | $263,800 | $263,800 | $583,800 | $583,800 |
| 2012 | $0 | $233,400 | $0 | $0 | $0 |
| 2011 | $0 | $233,400 | $0 | $0 | $0 |
| 2010 | $0 | $233,400 | $0 | $0 | $0 |
| 2009 | $0 | $233,400 | $0 | $0 | $0 |
| 2008 | $0 | $182,600 | $0 | $0 | $0 |
| 2007 | $0 | $182,600 | $0 | $0 | $0 |
Deed and Sales History
| 1 | 12/31/2015 | BARGAIN & | BARGAIN & SALE DEED | GREAT COLUMBIA BERRY FARMS LLC | BLUE MOUNTAIN FARMS LLC | | | $0.00 | 129504 | 2016-00247 |
Payout Agreement
| No payout information available.. |