Property
Account |
| Property ID: | 26441 | Abbreviated Legal Description: | SINGLETONS LOT 5 BLK 1 |
| Parcel Number: | 360729780105 | Agent Code: | |
| Type: | Real | | |
| Tax Area: | 1 - OL-140-F | Land Use Code | 11 |
| Open Space: | N | DFL | N |
| Historic Property: | N | Remodel Property: | N |
| Multi-Family Redevelopment: | N | | |
| Township: | 7 | Section: | 29 |
| Range: | 36 |
Location |
| Address: | 23 E CHESTNUT ST WA 99362 | Mapsco: | |
| Neighborhood: | A-SFR | Map ID: | |
| Neighborhood CD: | 513011 |
Owner |
| Name: | COLIN MIGUEL | Owner ID: | 68002 |
| Mailing Address: | 18 SHANGRI LA CT WALLA WALLA, WA 99362 | % Ownership: | 100.0000000000% |
| | | Exemptions: | |
Taxes and Assessment Details
Values
| (+) Improvement Homesite Value: | + | $0 | |
| (+) Improvement Non-Homesite Value: | + | $205,810 | |
| (+) Land Homesite Value: | + | $0 | |
| (+) Land Non-Homesite Value: | + | $37,500 | |
| (+) Curr Use (HS): | + | $0 | $0 |
| (+) Curr Use (NHS): | + | $0 | $0 |
| | | -------------------------- | |
| (=) Market Value: | = | $243,310 | |
| (–) Productivity Loss: | – | $0 | |
| | | -------------------------- | |
| (=) Subtotal: | = | $243,310 | |
| (+) Senior Appraised Value: | + | $0 | |
| (+) Non-Senior Appraised Value: | + | $243,310 | |
| | | -------------------------- | |
| (=) Total Appraised Value: | = | $243,310 | |
| (–) Senior Exemption Loss: | – | $0 | |
| (–) Exemption Loss: | – | $0 | |
| | | -------------------------- | |
| (=) Taxable Value: | = | $243,310 | |
Taxing Jurisdiction
| Owner: | COLIN MIGUEL | | |
| % Ownership: | 100.0000000000% | | |
| Total Value: | $243,310 | | |
| Tax Area: | 1 - OL-140-F |
| CERFD | CURRENT EXPENSE REFUND 010 | 0.0000000000 | $243,310 | $243,310 | $0.00 | | |
| CURREXP | CURRENT EXPENSE 010 | 1.0175366760 | $243,310 | $243,310 | $247.58 | | |
| HUMNSERV | HUMAN SERVICES 119 | 0.0250000000 | $243,310 | $243,310 | $6.08 | | |
| SLDREL | SOLDIERS RELIEF 121 | 0.0155990005 | $243,310 | $243,310 | $3.80 | | |
| EMERGSER | EMS 147 | 0.3792580840 | $243,310 | $243,310 | $92.28 | | |
| EMSRFD | EMS REFUND 147 | 0.0000000000 | $243,310 | $243,310 | $0.00 | | |
| PORTRFD | PORT REFUND 640 | 0.0000000000 | $243,310 | $243,310 | $0.00 | | |
| PORTWWGEN | PORT OF WW 640 | 0.2460186015 | $243,310 | $243,310 | $59.86 | | |
| SD140BOND | SD #140 BOND 764 | 0.8342371393 | $243,310 | $243,310 | $202.98 | | |
| SD140GEN | SD #140 GENERAL 760 | 2.0646500647 | $243,310 | $243,310 | $502.35 | | |
| ST2 | STATE SCHOOL PART 2 600 | 0.8131451643 | $243,310 | $243,310 | $197.85 | | |
| STATESCHL | STATE SCHOOL 600 | 1.5158548041 | $243,310 | $243,310 | $368.82 | | |
| STREFUND | STATE REFUND LEVY 603 | 0.0000000000 | $243,310 | $243,310 | $0.00 | | |
| CWWBOND | C OF WW BOND 643 | 0.2760494372 | $243,310 | $243,310 | $67.17 | | |
| CWWGEN | CITY OF WW 631 | 1.6100204973 | $243,310 | $243,310 | $391.73 | | |
| CWWRFD | CITY OF WALLA WALLA REFUND 631 | 0.0000000000 | $243,310 | $243,310 | $0.00 | | |
| | Total Tax Rate: | 8.7973694689 | | | | | |
| | | | | Taxes w/Current Exemptions: | $2,140.50 | | |
| | | | | Taxes w/o Exemptions: | $2,140.50 | | |
Improvement / Building
| Improvement #1: | RESIDENTIAL | State Code: | 11 | 1356.0 sqft | Value: | $205,810 |
| Exterior Wall: | VINYL | Heating/Cooling: | BASEBOARD ELECTRIC | | Number of Bathrooms: | 1 | Number of Bedrooms: | 3 | | Plumbing: | 6 | Roof Covering: | COMP SHINGLE |
|
| | Type | Description | Class CD | Sub Class CD | Year Built | Area |
| | MA | Main Area | 1 | 20 | 1915 | 1356.0 |
| | SI1 | SITE IMPROVEMENT | 1 | 20 | 1915 | 1.0 |
| | BASE | BASEMENT | 1 | 20 | 1915 | 1356.0 |
| | BMF | BASEMENT - MIN FINISH | 1 | 20 | 1915 | 1020.0 |
| | WOD | Wood Deck | 1 | 20 | 1915 | 25.0 |
| | CPC | COVERED CARPORT/PATIO | 1 | 20 | 1915 | 160.0 |
| | DTG | Detached Garage | 1 | 20 | 1915 | 480.0 |
Sketch
Property Image
Land
| 1 | RES 1 | Converted: Residential | 0.1377 | 6000.00 | 0.00 | 0.00 | 1.00 | $37,500 | $0 |
Roll Value History
| 2026 | N/A | N/A | N/A | N/A | N/A |
| 2025 | $240,480 | $60,000 | $0 | $300,480 | $300,480 |
| 2024 | $200,400 | $60,000 | $0 | $260,400 | $260,400 |
| 2023 | $205,810 | $37,500 | $0 | $243,310 | $243,310 |
| 2022 | $205,810 | $37,500 | $0 | $243,310 | $243,310 |
| 2021 | $187,100 | $37,500 | $0 | $224,600 | $224,600 |
| 2020 | $143,920 | $37,500 | $0 | $181,420 | $181,420 |
| 2019 | $143,920 | $37,500 | $0 | $181,420 | $181,420 |
| 2018 | $102,800 | $37,500 | $0 | $140,300 | $140,300 |
| 2017 | $80,300 | $36,000 | $0 | $116,300 | $116,300 |
| 2016 | $73,000 | $36,000 | $0 | $109,000 | $109,000 |
| 2015 | $73,000 | $36,000 | $0 | $109,000 | $109,000 |
| 2014 | $73,000 | $36,000 | $0 | $109,000 | $109,000 |
| 2013 | $73,000 | $36,000 | $0 | $109,000 | $109,000 |
| 2012 | $73,000 | $36,000 | $0 | $0 | $0 |
| 2011 | $73,000 | $36,000 | $0 | $0 | $0 |
| 2010 | $92,200 | $36,000 | $0 | $0 | $0 |
| 2009 | $114,800 | $36,000 | $0 | $0 | $0 |
| 2008 | $114,800 | $36,000 | $0 | $0 | $0 |
| 2007 | $95,700 | $12,000 | $0 | $0 | $0 |
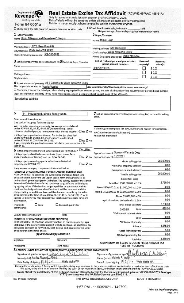
Deed and Sales History
| 1 | 11/03/2021 | SWD | STATUTORY WARRANTY DEED | NEGRON KEVIN N & GENEVIEVE C | COLIN MIGUEL | | | $250,000.00 | 142799 | 2021-13216 |
| 2 | 03/22/2019 | SWD | STATUTORY WARRANTY DEED | SCOTT VICTORIA A | NEGRON KEVIN N & GENEVIEVE C | | | $200,000.00 | 136555 | 2019-01809 |
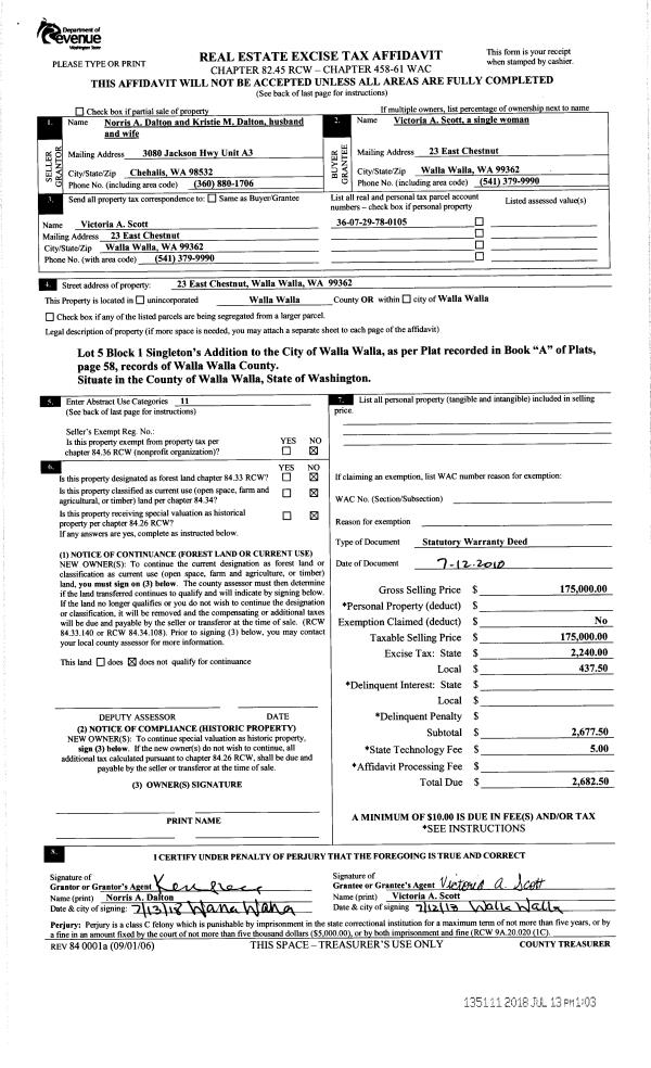
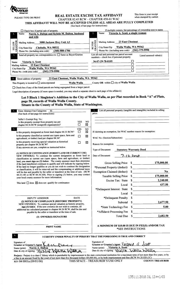
| 3 | 07/13/2018 | SWD | STATUTORY WARRANTY DEED | DALTON NORRIS A & KRISTIE M | SCOTT VICTORIA A | | | $175,000.00 | 135111 | 2018-05679 |
| 4 | 11/14/2008 | WARRANTY D | WARRANTY DEED | JONES, EARL R | DALTON, NORRIS A & KRISTIE M | | | $152,500.00 | 115970 | 2008-11421 |
| 5 | 01/01/1964 | QCD | QUIT CLAIM DEED | | | | | $0.00 | 0 | 3110-460178 |
Payout Agreement
| No payout information available.. |