Property
Account |
| Property ID: | 26426 | Abbreviated Legal Description: | RIDGEVIEW ACRES LOT 1 |
| Parcel Number: | 350602510001 | Agent Code: | |
| Type: | Real | | |
| Tax Area: | 311 - 250-4 | Land Use Code | 11 |
| Open Space: | N | DFL | N |
| Historic Property: | N | Remodel Property: | N |
| Multi-Family Redevelopment: | N | | |
| Township: | 6 | Section: | 2 |
| Range: | 35 |
Location |
| Address: | 900 MOJONNIER RD WA 99324 | Mapsco: | |
| Neighborhood: | G SFR Rural/City Inf | Map ID: | |
| Neighborhood CD: | 114012 |
Owner |
| Name: | LARGE E RAMONA ESTATE OF | Owner ID: | 64590 |
| Mailing Address: | 900 MOJONNIER RD WALLA WALLA, WA 99362 | % Ownership: | 100.0000000000% |
| | | Exemptions: | SNR/DSBL |
Taxes and Assessment Details
Property Tax Information as of
02/21/2026
Click on "Statement Details" to expand or collapse a tax statement.
* Please enter a valid date ** Please enter a valid date *
Statement Details |
| | TOTAL: | $0.00 | $0.00 | $0.00 | $0.00 | $0.00 | $0.00 |
|
| | $0.00 | $0.00 | $0.00 | $0.00 | $0.00 | $0.00 |
Values
| (+) Improvement Homesite Value: | + | $584,610 | |
| (+) Improvement Non-Homesite Value: | + | $0 | |
| (+) Land Homesite Value: | + | $115,650 | |
| (+) Land Non-Homesite Value: | + | $0 | |
| (+) Curr Use (HS): | + | $0 | $0 |
| (+) Curr Use (NHS): | + | $0 | $0 |
| | | -------------------------- | |
| (=) Market Value: | = | $700,260 | |
| (–) Productivity Loss: | – | $0 | |
| | | -------------------------- | |
| (=) Subtotal: | = | $700,260 | |
| (+) Senior Appraised Value: | + | $484,720 | |
| (+) Non-Senior Appraised Value: | + | $0 | |
| | | -------------------------- | |
| (=) Total Appraised Value: | = | $484,720 | |
| (–) Senior Exemption Loss: | – | $290,832 | |
| (–) Exemption Loss: | – | $0 | |
| | | -------------------------- | |
| (=) Taxable Value: | = | $193,888 | |
Taxing Jurisdiction
| Owner: | LARGE E RAMONA ESTATE OF | | |
| % Ownership: | 100.0000000000% | | |
| Total Value: | $700,260 | | |
| Tax Area: | 311 - 250-4 |
| CERFD | CURRENT EXPENSE REFUND 010 | 0.0000000000 | $700,260 | $193,888 | $0.00 | | |
| CURREXP | CURRENT EXPENSE 010 | 1.0175366760 | $700,260 | $193,888 | $580.21 | | |
| HUMNSERV | HUMAN SERVICES 119 | 0.0250000000 | $700,260 | $193,888 | $14.26 | | |
| SLDREL | SOLDIERS RELIEF 121 | 0.0155990005 | $700,260 | $193,888 | $8.89 | | |
| EMERGSER | EMS 147 | 0.3792580840 | $700,260 | $193,888 | $216.26 | | |
| EMSRFD | EMS REFUND 147 | 0.0000000000 | $700,260 | $193,888 | $0.00 | | |
| FD4EXP | FD #4 EXPENSE 686 | 0.8836993059 | $700,260 | $193,888 | $503.89 | | |
| RLBRFD | RURAL LIBRARY REFUND 623 | 0.0000000000 | $700,260 | $193,888 | $0.00 | | |
| RURALLIB | RURAL LIBRARY 623 | 0.3710609029 | $700,260 | $193,888 | $211.58 | | |
| PORTRFD | PORT REFUND 640 | 0.0000000000 | $700,260 | $193,888 | $0.00 | | |
| PORTWWGEN | PORT OF WW 640 | 0.2460186015 | $700,260 | $193,888 | $140.28 | | |
| SD250BOND | SD #250 BOND 773 | 0.0000000000 | $700,260 | $0 | $757.75 | | |
| SD250GEN | SD #250 GENERAL 770 | 0.0000000000 | $700,260 | $0 | $1,242.78 | | |
| ST2 | STATE SCHOOL PART 2 600 | 0.0000000000 | $700,260 | $0 | $423.17 | | |
| STATESCHL | STATE SCHOOL 600 | 1.5158548041 | $700,260 | $193,888 | $864.35 | | |
| STREFUND | STATE REFUND LEVY 603 | 0.0000000000 | $700,260 | $193,888 | $0.00 | | |
| COROAD | COUNTY ROAD 115 | 1.6549953990 | $700,260 | $193,888 | $943.69 | | |
| CRPRD | COUNTY ROAD REFUND 115 | 0.0000000000 | $700,260 | $193,888 | $0.00 | | |
| | Total Tax Rate: | 6.1090227739 | | | | | |
| | | | | Taxes w/Current Exemptions: | $5,907.11 | | |
| | | | | Taxes w/o Exemptions: | $7,539.21 | | |
Improvement / Building
| Improvement #1: | RESIDENTIAL | State Code: | 11 | 3286.0 sqft | Value: | $584,610 |
| Exterior Wall: | HARDBOARD | Heating/Cooling: | WARM & COOLED AIR | | Number of Bathrooms: | 2.5 | Number of Bedrooms: | 3 | | Plumbing: | 14 | Roof Covering: | COMP SHINGLE |
|
| | Type | Description | Class CD | Sub Class CD | Year Built | Area |
| | MA | Main Area | 1 | 40 | 2009 | 3286.0 |
| | SI1 | SITE IMPROVEMENT | 1 | 40 | 2009 | 4.0 |
| | ATG | Attached Garage | 1 | 40 | 2009 | 1473.0 |
| | RPO | OPEN PORCH W/ROOF | 1 | 40 | 2009 | 48.0 |
| | TOOL | TOOL SHED | 1 | 40 | 2009 | 320.0 |
Sketch
Property Image
Land
| 1 | RES 1 | Converted: Residential | 1.1300 | 0.00 | 0.00 | 0.00 | 1.00 | $115,650 | $0 |
Roll Value History
| 2026 | N/A | N/A | N/A | N/A | N/A |
| 2025 | $552,450 | $183,420 | $0 | $735,870 | $735,870 |
| 2024 | $613,840 | $115,650 | $0 | $729,490 | $729,490 |
| 2023 | $584,610 | $115,650 | $0 | $700,260 | $193,888 |
| 2022 | $487,170 | $115,650 | $0 | $602,820 | $193,888 |
| 2021 | $442,880 | $115,650 | $0 | $558,530 | $484,720 |
| 2020 | $369,070 | $115,650 | $0 | $484,720 | $484,720 |
| 2019 | $384,220 | $100,500 | $0 | $484,720 | $484,720 |
| 2018 | $365,930 | $100,500 | $0 | $466,430 | $466,430 |
| 2017 | $348,500 | $100,500 | $0 | $449,000 | $449,000 |
| 2016 | $331,910 | $100,500 | $0 | $432,410 | $432,410 |
| 2015 | $316,100 | $100,500 | $0 | $416,600 | $416,600 |
| 2014 | $316,100 | $100,500 | $0 | $416,600 | $416,600 |
| 2013 | $316,100 | $100,500 | $0 | $416,600 | $416,600 |
| 2012 | $326,100 | $90,500 | $0 | $0 | $0 |
| 2011 | $296,100 | $120,500 | $0 | $0 | $0 |
| 2010 | $113,600 | $120,500 | $0 | $0 | $0 |
| 2009 | $0 | $120,500 | $0 | $0 | $0 |
| 2008 | $0 | $45,500 | $0 | $0 | $0 |
| 2007 | $0 | $45,500 | $0 | $0 | $0 |
Deed and Sales History
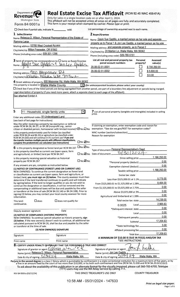
| 1 | 05/31/2024 | DPR | DEED OF PERSONAL REPRESENTATIVE | LARGE E RAMONA ESTATE OF | GADDIS GAYLE SUE | | | $1,186,250.00 | 147633 | 2024-02885 |
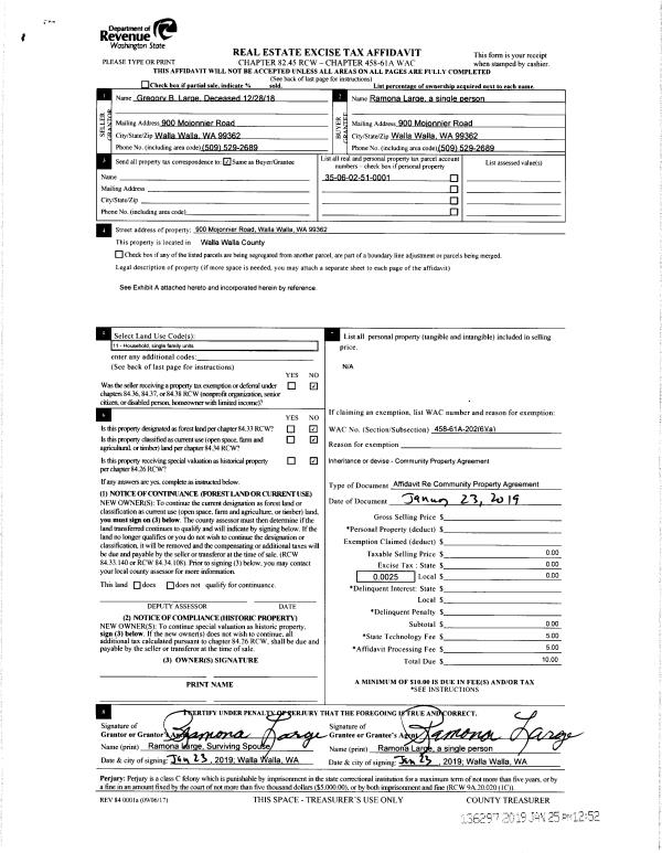
| 2 | 01/23/2019 | COMMUNITY | COMMUNITY PROPERTY AGREEMENT | LARGE GREGORY B & E RAMONA | LARGE E RAMONA ESTATE OF | | | $0.00 | 136297 | 2019-00528 |
| 3 | 07/16/1993 | WARRANTY D | WARRANTY DEED | | | | | $39,000.00 | 79542 | 2089-307202 |
Payout Agreement
| No payout information available.. |