Property
Account |
| Property ID: | 26419 | Abbreviated Legal Description: | HILLTOP ACRES PHASE 1 LOT 7 BLK 2 |
| Parcel Number: | 350614510207 | Agent Code: | |
| Type: | Real | | |
| Tax Area: | 311 - 250-4 | Land Use Code | 11 |
| Open Space: | N | DFL | N |
| Historic Property: | N | Remodel Property: | N |
| Multi-Family Redevelopment: | N | | |
| Township: | 6 | Section: | 14 |
| Range: | 35 |
Location |
| Address: | 440 SUMMERS CIRCLE WA 99324 | Mapsco: | |
| Neighborhood: | G SFR Rural | Map ID: | |
| Neighborhood CD: | 214013 |
Owner |
| Name: | IRVINE LANCE GREGORY & MELINDA DAWN | Owner ID: | 65355 |
| Mailing Address: | PO BOX 428 COLLEGE PLACE, WA 99324 | % Ownership: | 100.0000000000% |
| | | Exemptions: | |
Taxes and Assessment Details
Values
| (+) Improvement Homesite Value: | + | $0 | |
| (+) Improvement Non-Homesite Value: | + | $1,231,070 | |
| (+) Land Homesite Value: | + | $0 | |
| (+) Land Non-Homesite Value: | + | $127,500 | |
| (+) Curr Use (HS): | + | $0 | $0 |
| (+) Curr Use (NHS): | + | $0 | $0 |
| | | -------------------------- | |
| (=) Market Value: | = | $1,358,570 | |
| (–) Productivity Loss: | – | $0 | |
| | | -------------------------- | |
| (=) Subtotal: | = | $1,358,570 | |
| (+) Senior Appraised Value: | + | $0 | |
| (+) Non-Senior Appraised Value: | + | $1,358,570 | |
| | | -------------------------- | |
| (=) Total Appraised Value: | = | $1,358,570 | |
| (–) Senior Exemption Loss: | – | $0 | |
| (–) Exemption Loss: | – | $0 | |
| | | -------------------------- | |
| (=) Taxable Value: | = | $1,358,570 | |
Taxing Jurisdiction
| Owner: | IRVINE LANCE GREGORY & MELINDA DAWN | | |
| % Ownership: | 100.0000000000% | | |
| Total Value: | $1,358,570 | | |
| Tax Area: | 311 - 250-4 |
| CERFD | CURRENT EXPENSE REFUND 010 | 0.0000000000 | $1,358,570 | $1,358,570 | $0.00 | | |
| CURREXP | CURRENT EXPENSE 010 | 1.0175366760 | $1,358,570 | $1,358,570 | $1,382.39 | | |
| HUMNSERV | HUMAN SERVICES 119 | 0.0250000000 | $1,358,570 | $1,358,570 | $33.96 | | |
| SLDREL | SOLDIERS RELIEF 121 | 0.0155990005 | $1,358,570 | $1,358,570 | $21.19 | | |
| EMERGSER | EMS 147 | 0.3792580840 | $1,358,570 | $1,358,570 | $515.25 | | |
| EMSRFD | EMS REFUND 147 | 0.0000000000 | $1,358,570 | $1,358,570 | $0.00 | | |
| FD4EXP | FD #4 EXPENSE 686 | 0.8836993059 | $1,358,570 | $1,358,570 | $1,200.57 | | |
| RLBRFD | RURAL LIBRARY REFUND 623 | 0.0000000000 | $1,358,570 | $1,358,570 | $0.00 | | |
| RURALLIB | RURAL LIBRARY 623 | 0.3710609029 | $1,358,570 | $1,358,570 | $504.11 | | |
| PORTRFD | PORT REFUND 640 | 0.0000000000 | $1,358,570 | $1,358,570 | $0.00 | | |
| PORTWWGEN | PORT OF WW 640 | 0.2460186015 | $1,358,570 | $1,358,570 | $334.23 | | |
| SD250BOND | SD #250 BOND 773 | 1.4560608159 | $1,358,570 | $1,358,570 | $1,978.16 | | |
| SD250GEN | SD #250 GENERAL 770 | 2.3880724087 | $1,358,570 | $1,358,570 | $3,244.36 | | |
| ST2 | STATE SCHOOL PART 2 600 | 0.8131451643 | $1,358,570 | $1,358,570 | $1,104.71 | | |
| STATESCHL | STATE SCHOOL 600 | 1.5158548041 | $1,358,570 | $1,358,570 | $2,059.39 | | |
| STREFUND | STATE REFUND LEVY 603 | 0.0000000000 | $1,358,570 | $1,358,570 | $0.00 | | |
| COROAD | COUNTY ROAD 115 | 1.6549953990 | $1,358,570 | $1,358,570 | $2,248.43 | | |
| CRPRD | COUNTY ROAD REFUND 115 | 0.0000000000 | $1,358,570 | $1,358,570 | $0.00 | | |
| | Total Tax Rate: | 10.7663011628 | | | | | |
| | | | | Taxes w/Current Exemptions: | $14,626.75 | | |
| | | | | Taxes w/o Exemptions: | $14,626.75 | | |
Improvement / Building
| Improvement #1: | RESIDENTIAL | State Code: | 11 | 4474.0 sqft | Value: | $1,108,150 |
| Exterior Wall: | STUCCO | Heating/Cooling: | WARM & COOLED AIR | | Number of Bathrooms: | 5.5 | Number of Bedrooms: | 4 | | Plumbing: | 25 | Roof Covering: | COMP SHINGLE |
|
| | Type | Description | Class CD | Sub Class CD | Year Built | Area |
| | MA | Main Area | 1 | 60 | 2020 | 4474.0 |
| | BONU | BONUS ROOM W/FINISH | 1 | 60 | 2020 | 1430.0 |
| | SI1 | SITE IMPROVEMENT | 1 | 60 | 2020 | 16.0 |
| | SMP | SWIMMING POOL | 1 | 60 | 2020 | 1.0 |
| | ATG | Attached Garage | 1 | 60 | 2020 | 717.0 |
| | ATG | Attached Garage | 1 | 60 | 2020 | 1235.0 |
| | CPC | COVERED CARPORT/PATIO | 1 | 60 | 2020 | 262.0 |
| | CPC | COVERED CARPORT/PATIO | 1 | 60 | 2020 | 1164.0 |
| | GFP | GAS FIREPLACE | 1 | 60 | 2020 | 1.0 |
| Improvement #2: | RESIDENTIAL | State Code: | 11 | 600.0 sqft | Value: | $122,920 |
| Exterior Wall: | STUCCO | Heating/Cooling: | MINI-SPLIT HP SYSTEM | | Number of Bathrooms: | 1 | Number of Bedrooms: | 1 | | Plumbing: | 6 | Roof Covering: | COMP SHINGLE |
|
| | Type | Description | Class CD | Sub Class CD | Year Built | Area |
| | MA | Main Area | 1 | 60 | 2020 | 600.0 |
| | SI1 | SITE IMPROVEMENT | 1 | 60 | 2020 | 1.5 |
| | ATG | Attached Garage | 1 | 60 | 2020 | 504.0 |
Sketch
Property Image
Land
| 1 | RES 1 | Converted: Residential | 2.5000 | 108900.00 | 0.00 | 0.00 | 1.00 | $127,500 | $0 |
Roll Value History
| 2026 | N/A | N/A | N/A | N/A | N/A |
| 2025 | $1,231,070 | $127,500 | $0 | $1,358,570 | $1,358,570 |
| 2024 | $1,231,070 | $127,500 | $0 | $1,358,570 | $1,358,570 |
| 2023 | $1,231,070 | $127,500 | $0 | $1,358,570 | $1,358,570 |
| 2022 | $1,231,070 | $127,500 | $0 | $1,358,570 | $1,358,570 |
| 2021 | $664,550 | $127,500 | $0 | $792,050 | $792,050 |
| 2020 | $0 | $90,000 | $0 | $90,000 | $90,000 |
| 2019 | $0 | $90,000 | $0 | $90,000 | $90,000 |
| 2018 | $0 | $90,000 | $0 | $90,000 | $90,000 |
| 2017 | $0 | $90,000 | $0 | $90,000 | $90,000 |
| 2016 | $0 | $90,000 | $0 | $90,000 | $90,000 |
| 2015 | $0 | $90,000 | $0 | $90,000 | $90,000 |
| 2014 | $0 | $90,000 | $0 | $90,000 | $90,000 |
| 2013 | $0 | $90,000 | $0 | $90,000 | $90,000 |
| 2012 | $0 | $135,000 | $0 | $0 | $0 |
| 2011 | $0 | $135,000 | $0 | $0 | $0 |
| 2010 | $0 | $155,000 | $0 | $0 | $0 |
| 2009 | $0 | $155,000 | $0 | $0 | $0 |
| 2008 | $0 | $70,000 | $0 | $0 | $0 |
| 2007 | $0 | $70,000 | $0 | $0 | $0 |
Deed and Sales History
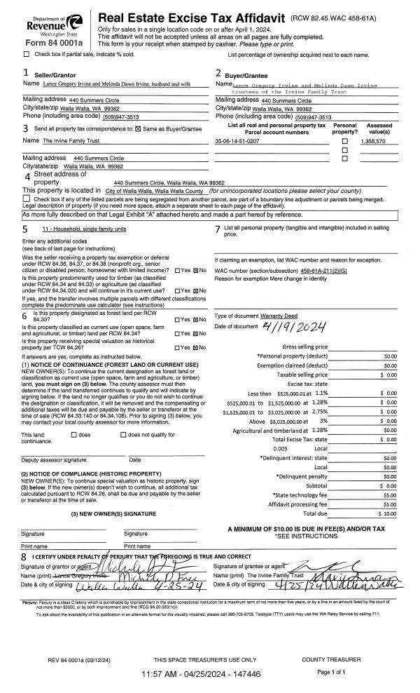
| 1 | 04/25/2024 | WARRANTY D | WARRANTY DEED | IRVINE LANCE GREGORY & MELINDA DAWN | IRVINE FAMILY TRUST | | | | 147446 | 2024-02088 |
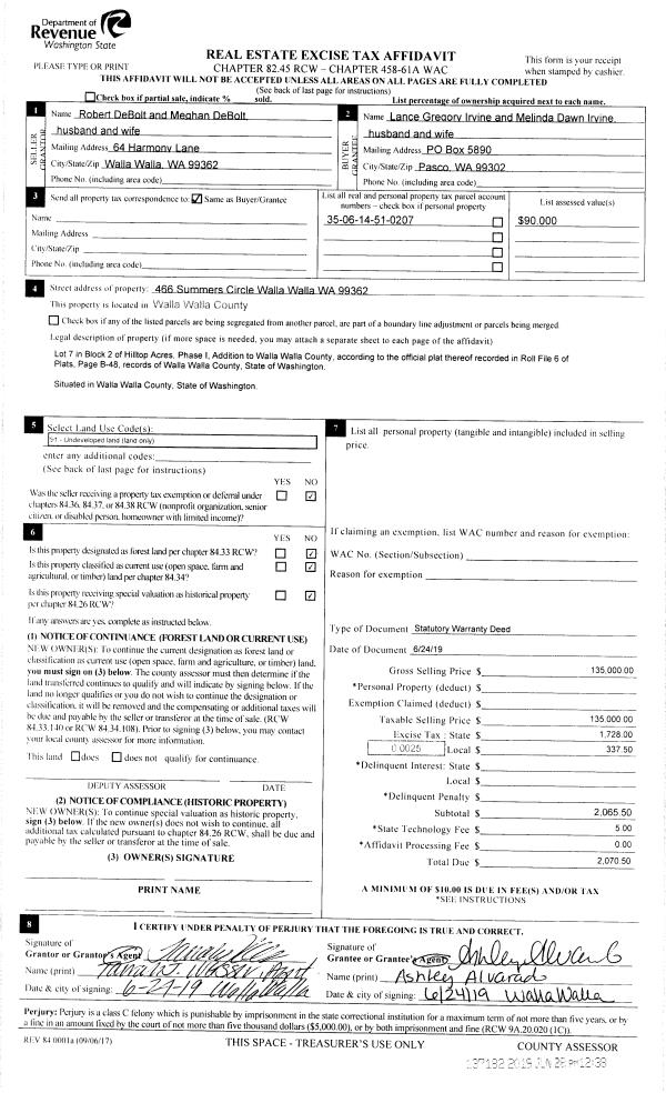
| 2 | 06/28/2019 | SWD | STATUTORY WARRANTY DEED | DEBOLT ROBERT & MEGHAN | IRVINE LANCE GREGORY & MELINDA DAWN | | | $135,000.00 | 137182 | 2019-04637 |
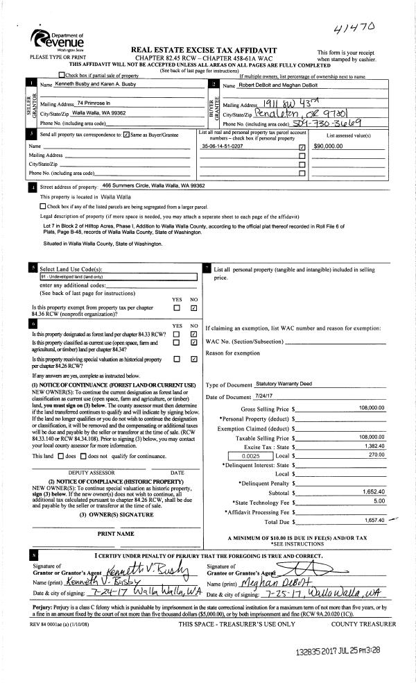
| 3 | 07/25/2017 | SWD | STATUTORY WARRANTY DEED | BUSBY KENNETH & KAREN A | DEBOLT ROBERT & MEGHAN | | | $108,000.00 | 132835 | 2017-05665 |
| 4 | 12/30/2005 | WARRANTY D | WARRANTY DEED | FIGUEROA, RAFAEL JR & HEIDI JO | BUSBY, KENNETH & KAREN A | | | $137,900.00 | 109380 | 2005-16359 |
| 5 | 08/26/2005 | WARRANTY D | WARRANTY DEED | "SUMMERS, JAY & JUNE" | | | | | 86447 | 2005--10601 |
| 6 | 06/16/2005 | WARRANTY D | WARRANTY DEED | HOUGHTON, DANIEL F | FIGUEROA, RAFAEL JR & HEIDI JO | | | $107,000.00 | 107732 | 2005-07206 |
| 7 | 06/16/2003 | WARRANTY D | WARRANTY DEED | TELLADO, LUIS A & BETTY | HOUGHTON, DANIEL F | | | $69,000.00 | 102348 | 2003-08937 |
| 8 | 02/23/2001 | WARRANTY D | WARRANTY DEED | | | | | $58,000.00 | 96657 | 3080-101703 |
Payout Agreement
| No payout information available.. |