Property
Account |
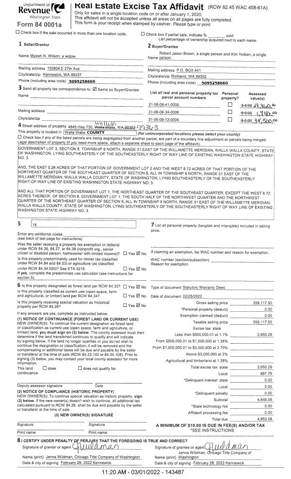
| Property ID: | 26285 | Abbreviated Legal Description: | SEC 9 TWP 6 RNG 31 NW1/4 S OF HWY NW1/4NE1/4 |
| Parcel Number: | 310609120004 | Agent Code: | |
| Type: | Real | | |
| Tax Area: | 325 - 400-6 | Land Use Code | 81 |
| Open Space: | N | DFL | N |
| Historic Property: | N | Remodel Property: | N |
| Multi-Family Redevelopment: | N | | |
| Township: | 6 | Section: | 9 |
| Range: | 31 |
Location |
| Address: | HIGHWAY 730 WA 99323 | Mapsco: | |
| Neighborhood: | 0 Farm | Map ID: | |
| Neighborhood CD: | 2220 |
Owner |
| Name: | BROWN ROBERT JASON | Owner ID: | 71225 |
| Mailing Address: | KIM HOLBEN PO BOX 441 RICHLAND, WA 99352 | % Ownership: | 100.0000000000% |
| | | Exemptions: | |
Taxes and Assessment Details
Property Tax Information as of
02/21/2026
Click on "Statement Details" to expand or collapse a tax statement.
* Please enter a valid date ** Please enter a valid date *
Statement Details |
| | TOTAL: | $0.00 | $0.00 | $0.00 | $0.00 | $0.00 | $0.00 |
|
| | $0.00 | $0.00 | $0.00 | $0.00 | $0.00 | $0.00 |
Values
| (+) Improvement Homesite Value: | + | $0 | |
| (+) Improvement Non-Homesite Value: | + | $0 | |
| (+) Land Homesite Value: | + | $0 | |
| (+) Land Non-Homesite Value: | + | $45,430 | |
| (+) Curr Use (HS): | + | $0 | $0 |
| (+) Curr Use (NHS): | + | $0 | $0 |
| | | -------------------------- | |
| (=) Market Value: | = | $45,430 | |
| (–) Productivity Loss: | – | $0 | |
| | | -------------------------- | |
| (=) Subtotal: | = | $45,430 | |
| (+) Senior Appraised Value: | + | $0 | |
| (+) Non-Senior Appraised Value: | + | $45,430 | |
| | | -------------------------- | |
| (=) Total Appraised Value: | = | $45,430 | |
| (–) Senior Exemption Loss: | – | $0 | |
| (–) Exemption Loss: | – | $0 | |
| | | -------------------------- | |
| (=) Taxable Value: | = | $45,430 | |
Taxing Jurisdiction
| Owner: | BROWN ROBERT JASON | | |
| % Ownership: | 100.0000000000% | | |
| Total Value: | $45,430 | | |
| Tax Area: | 325 - 400-6 |
| CERFD | CURRENT EXPENSE REFUND 010 | 0.0000000000 | $45,430 | $45,430 | $0.00 | | |
| CURREXP | CURRENT EXPENSE 010 | 1.0175366760 | $45,430 | $45,430 | $46.23 | | |
| HUMNSERV | HUMAN SERVICES 119 | 0.0250000000 | $45,430 | $45,430 | $1.14 | | |
| SLDREL | SOLDIERS RELIEF 121 | 0.0155990005 | $45,430 | $45,430 | $0.71 | | |
| EMERGSER | EMS 147 | 0.3792580840 | $45,430 | $45,430 | $17.23 | | |
| EMSRFD | EMS REFUND 147 | 0.0000000000 | $45,430 | $45,430 | $0.00 | | |
| FD6EXP | FD #6 EXPENSE 693 | 0.6692985746 | $45,430 | $45,430 | $30.41 | | |
| RLBRFD | RURAL LIBRARY REFUND 623 | 0.0000000000 | $45,430 | $45,430 | $0.00 | | |
| RURALLIB | RURAL LIBRARY 623 | 0.3710609029 | $45,430 | $45,430 | $16.86 | | |
| PORTRFD | PORT REFUND 640 | 0.0000000000 | $45,430 | $45,430 | $0.00 | | |
| PORTWWGEN | PORT OF WW 640 | 0.2460186015 | $45,430 | $45,430 | $11.18 | | |
| SD400BOND | SD #400 BOND 793 | 0.0000000000 | $45,430 | $45,430 | $0.00 | | |
| SD400CAP | SD #400 CP 792 | 0.3443722657 | $45,430 | $45,430 | $15.64 | | |
| SD400GEN | SD #400 GENERAL 790 | 1.9278469916 | $45,430 | $45,430 | $87.58 | | |
| ST2 | STATE SCHOOL PART 2 600 | 0.8131451643 | $45,430 | $45,430 | $36.94 | | |
| STATESCHL | STATE SCHOOL 600 | 1.5158548041 | $45,430 | $45,430 | $68.87 | | |
| STREFUND | STATE REFUND LEVY 603 | 0.0000000000 | $45,430 | $45,430 | $0.00 | | |
| COROAD | COUNTY ROAD 115 | 1.6549953990 | $45,430 | $45,430 | $75.19 | | |
| CRPRD | COUNTY ROAD REFUND 115 | 0.0000000000 | $45,430 | $45,430 | $0.00 | | |
| | Total Tax Rate: | 8.9799864642 | | | | | |
| | | | | Taxes w/Current Exemptions: | $407.98 | | |
| | | | | Taxes w/o Exemptions: | $407.98 | | |
Improvement / Building
Sketch
| No sketches available for this property. |
Property Image
Land
| 1 | DLP | Dry Land Pasture | 115.0000 | 0.00 | 0.00 | 0.00 | 1.00 | $45,430 | $0 |
Roll Value History
| 2026 | N/A | N/A | N/A | N/A | N/A |
| 2025 | $0 | $45,430 | $0 | $45,430 | $45,430 |
| 2024 | $0 | $45,430 | $0 | $45,430 | $45,430 |
| 2023 | $0 | $45,430 | $0 | $45,430 | $45,430 |
| 2022 | $0 | $40,250 | $0 | $40,250 | $40,250 |
| 2021 | $0 | $40,250 | $0 | $40,250 | $40,250 |
| 2020 | $0 | $34,500 | $0 | $34,500 | $34,500 |
| 2019 | $0 | $34,500 | $0 | $34,500 | $34,500 |
| 2018 | $0 | $34,500 | $0 | $34,500 | $34,500 |
| 2017 | $0 | $34,500 | $0 | $34,500 | $34,500 |
| 2016 | $0 | $11,500 | $0 | $11,500 | $11,500 |
| 2015 | $0 | $11,500 | $0 | $11,500 | $11,500 |
| 2014 | $0 | $11,500 | $0 | $11,500 | $11,500 |
| 2013 | $0 | $11,500 | $11,500 | $11,500 | $11,500 |
| 2012 | $0 | $11,500 | $0 | $0 | $0 |
| 2011 | $0 | $11,500 | $0 | $0 | $0 |
| 2010 | $0 | $11,500 | $0 | $0 | $0 |
| 2009 | $0 | $11,500 | $0 | $0 | $0 |
| 2008 | $0 | $11,500 | $0 | $0 | $0 |
| 2007 | $0 | $11,500 | $0 | $0 | $0 |
Deed and Sales History
| 1 | 02/25/2022 | SWD | STATUTORY WARRANTY DEED | WILSON MYOWN N | BROWN ROBERT JASON | | 3-PARCELS | $359,118.00 | 143487 | 2022-01798 |
|   | |
| 2 | 03/01/2022 | LOPA | LACK OF PROBATE AFFIDAVIT | WILSON JOSEPH B & MYOWN N | WILSON MYOWN N | | 3-PARCELS | $0.00 | 143486 | 2022-01797 |
| 3 | 09/25/1984 | WARRANTY D | WARRANTY DEED | | | | | | 55401 | 1468-406639 |
Payout Agreement
| No payout information available.. |