Property
Account |
| Property ID: | 26269 | Abbreviated Legal Description: | TAX DIST SEG...SEE 350731510035 WHITMAN MISSION DC ELY PTN PARCELB OF S/P (PTN WITHIN TAX 1) |
| Parcel Number: | 350732510016 | Agent Code: | |
| Type: | Real | | |
| Tax Area: | 311 - 250-4 | Land Use Code | 11 |
| Open Space: | N | DFL | N |
| Historic Property: | N | Remodel Property: | N |
| Multi-Family Redevelopment: | N | | |
| Township: | 7 | Section: | 32 |
| Range: | 35 |
Location |
| Address: | 566 SWEGLE RD WA 99324 | Mapsco: | |
| Neighborhood: | VG SFR RURAL | Map ID: | |
| Neighborhood CD: | 215013 |
Owner |
| Name: | RUSH JAMES & ELIZABETH | Owner ID: | 69889 |
| Mailing Address: | 566 SWEGLE RD WALLA WALLA, WA 99362 | % Ownership: | 100.0000000000% |
| | | Exemptions: | |
Taxes and Assessment Details
Values
| (+) Improvement Homesite Value: | + | $0 | |
| (+) Improvement Non-Homesite Value: | + | $421,840 | |
| (+) Land Homesite Value: | + | $0 | |
| (+) Land Non-Homesite Value: | + | $182,090 | |
| (+) Curr Use (HS): | + | $0 | $0 |
| (+) Curr Use (NHS): | + | $0 | $0 |
| | | -------------------------- | |
| (=) Market Value: | = | $603,930 | |
| (–) Productivity Loss: | – | $0 | |
| | | -------------------------- | |
| (=) Subtotal: | = | $603,930 | |
| (+) Senior Appraised Value: | + | $0 | |
| (+) Non-Senior Appraised Value: | + | $603,930 | |
| | | -------------------------- | |
| (=) Total Appraised Value: | = | $603,930 | |
| (–) Senior Exemption Loss: | – | $0 | |
| (–) Exemption Loss: | – | $0 | |
| | | -------------------------- | |
| (=) Taxable Value: | = | $603,930 | |
Taxing Jurisdiction
| Owner: | RUSH JAMES & ELIZABETH | | |
| % Ownership: | 100.0000000000% | | |
| Total Value: | $603,930 | | |
| Tax Area: | 311 - 250-4 |
| CERFD | CURRENT EXPENSE REFUND 010 | 0.0000000000 | $603,930 | $603,930 | $0.00 | | |
| CURREXP | CURRENT EXPENSE 010 | 1.0175366760 | $603,930 | $603,930 | $614.52 | | |
| HUMNSERV | HUMAN SERVICES 119 | 0.0250000000 | $603,930 | $603,930 | $15.10 | | |
| SLDREL | SOLDIERS RELIEF 121 | 0.0155990005 | $603,930 | $603,930 | $9.42 | | |
| EMERGSER | EMS 147 | 0.3792580840 | $603,930 | $603,930 | $229.05 | | |
| EMSRFD | EMS REFUND 147 | 0.0000000000 | $603,930 | $603,930 | $0.00 | | |
| FD4EXP | FD #4 EXPENSE 686 | 0.8836993059 | $603,930 | $603,930 | $533.69 | | |
| RLBRFD | RURAL LIBRARY REFUND 623 | 0.0000000000 | $603,930 | $603,930 | $0.00 | | |
| RURALLIB | RURAL LIBRARY 623 | 0.3710609029 | $603,930 | $603,930 | $224.09 | | |
| PORTRFD | PORT REFUND 640 | 0.0000000000 | $603,930 | $603,930 | $0.00 | | |
| PORTWWGEN | PORT OF WW 640 | 0.2460186015 | $603,930 | $603,930 | $148.58 | | |
| SD250BOND | SD #250 BOND 773 | 1.4560608159 | $603,930 | $603,930 | $879.36 | | |
| SD250GEN | SD #250 GENERAL 770 | 2.3880724087 | $603,930 | $603,930 | $1,442.23 | | |
| ST2 | STATE SCHOOL PART 2 600 | 0.8131451643 | $603,930 | $603,930 | $491.08 | | |
| STATESCHL | STATE SCHOOL 600 | 1.5158548041 | $603,930 | $603,930 | $915.47 | | |
| STREFUND | STATE REFUND LEVY 603 | 0.0000000000 | $603,930 | $603,930 | $0.00 | | |
| COROAD | COUNTY ROAD 115 | 1.6549953990 | $603,930 | $603,930 | $999.50 | | |
| CRPRD | COUNTY ROAD REFUND 115 | 0.0000000000 | $603,930 | $603,930 | $0.00 | | |
| | Total Tax Rate: | 10.7663011628 | | | | | |
| | | | | Taxes w/Current Exemptions: | $6,502.09 | | |
| | | | | Taxes w/o Exemptions: | $6,502.09 | | |
Improvement / Building
| Improvement #1: | RESIDENTIAL | State Code: | 11 | 2277.0 sqft | Value: | $421,840 |
| Exterior Wall: | HARDBOARD | Foundation: | SLAB FOUNDATION | | Heating/Cooling: | BASEBOARD ELECTRIC | Number of Bathrooms: | 3 | | Number of Bedrooms: | 3 | Plumbing: | 12 | | Roof Covering: | COMP SHINGLE |   |   |
|
| | Type | Description | Class CD | Sub Class CD | Year Built | Area |
| | MA | Main Area | 1 | 30 | 1928 | 2277.0 |
| | SI1 | SITE IMPROVEMENT | 1 | 30 | 1928 | 2.0 |
| | RPS | PORCH W/STEPS,ROOF | 1 | 30 | 1928 | 24.0 |
| | ATIC | ATTIC ROOM | 1 | 30 | 1928 | 100.0 |
| | RPS | PORCH W/STEPS,ROOF | 1 | 30 | 1928 | 119.0 |
| | WOD | Wood Deck | 1 | 30 | 1928 | 482.0 |
| | POL2 | POLE BUILDING-CONCRETE | 1 | 30 | 1928 | 1200.0 |
| | POLE | POLE UTILITY BUILDING | 1 | 30 | 2016 | 576.0 |
| | UTILITY | UTILITY BUILDING | 1 | 30 | 1928 | 270.0 |
| | LNTD | LEAN TO DIRT FLOOR | 1 | 30 | 1928 | 224.0 |
Sketch
Property Image
Land
| 1 | RES 1 | Converted: Residential | 5.0100 | 0.00 | 0.00 | 0.00 | 1.00 | $182,090 | $0 |
Roll Value History
| 2026 | N/A | N/A | N/A | N/A | N/A |
| 2025 | $421,840 | $182,090 | $0 | $603,930 | $603,930 |
| 2024 | $421,840 | $182,090 | $0 | $603,930 | $603,930 |
| 2023 | $421,840 | $182,090 | $0 | $603,930 | $603,930 |
| 2022 | $366,820 | $182,090 | $0 | $548,910 | $548,910 |
| 2021 | $229,260 | $182,090 | $0 | $411,350 | $411,350 |
| 2020 | $293,500 | $95,100 | $0 | $388,600 | $388,600 |
| 2019 | $293,500 | $95,100 | $0 | $388,600 | $388,600 |
| 2018 | $266,820 | $95,100 | $0 | $361,920 | $361,920 |
| 2017 | $254,110 | $95,100 | $0 | $349,210 | $349,210 |
| 2016 | $231,010 | $95,100 | $0 | $326,110 | $326,110 |
| 2015 | $213,900 | $95,100 | $0 | $309,000 | $309,000 |
| 2014 | $142,600 | $95,100 | $0 | $237,700 | $237,700 |
| 2013 | $142,600 | $95,100 | $0 | $237,700 | $237,700 |
| 2012 | $142,600 | $95,100 | $0 | $0 | $0 |
| 2011 | $142,600 | $95,100 | $0 | $0 | $0 |
| 2010 | $142,600 | $95,100 | $0 | $0 | $0 |
| 2009 | $208,500 | $61,000 | $0 | $0 | $0 |
| 2008 | $163,600 | $61,000 | $0 | $0 | $0 |
| 2007 | $163,600 | $61,000 | $0 | $0 | $0 |
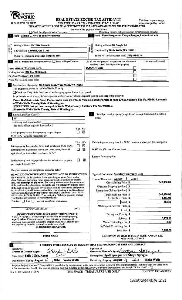
Deed and Sales History
| 1 | 07/02/2021 | SWD | STATUTORY WARRANTY DEED | SPRAGUE HYATT & CATELYN | RUSH JAMES & ELIZABETH | | 2-PARCELS | $616,000.00 | 141981 | 2021-08184 |
|   | |
| 2 | 08/04/2014 | SWD | STATUTORY WARRANTY DEED | NEVE TAMMIE C | SPRAGUE HYATT & CATELYN | | 2-PARCELS | $345,000.00 | 126390 | 2014-05586 |
|   | |
| 3 | 04/03/2013 | WARRANTY D | WARRANTY DEED | NEVE WILLIAM L & TAMMIE C | NEVE TAMMIE C | | | | 0 | CC #12-3-00094-2 |
| 4 | 07/30/2002 | WARRANTY D | WARRANTY DEED | | | | | $245,400.00 | 54 | 2002-0008580 |
|   | |
Payout Agreement
| No payout information available.. |