Property
Account |
| Property ID: | 26232 | Abbreviated Legal Description: | TAYLORS ADDITION LOT 7 OF SHORT PLAT (WLY PTN LOT 3 BLK 1 PLUSTRACTS LY TO THE W) |
| Parcel Number: | 360728750106 | Agent Code: | |
| Type: | Real | | |
| Tax Area: | 1 - OL-140-F | Land Use Code | 11 |
| Open Space: | N | DFL | N |
| Historic Property: | N | Remodel Property: | N |
| Multi-Family Redevelopment: | N | | |
| Township: | 7 | Section: | 28 |
| Range: | 36 |
Location |
| Address: | 525 TAYLOR ST WA 99362 | Mapsco: | |
| Neighborhood: | G Res Land Only | Map ID: | |
| Neighborhood CD: | 614091 |
Owner |
| Name: | GATCHEL WILLIAM & GAYLE WEATHERSON | Owner ID: | 65101 |
| Mailing Address: | PO BOX 3446 WALLA WALLA, WA 99362 | % Ownership: | 100.0000000000% |
| | | Exemptions: | |
Taxes and Assessment Details
Values
| (+) Improvement Homesite Value: | + | $0 | |
| (+) Improvement Non-Homesite Value: | + | $479,770 | |
| (+) Land Homesite Value: | + | $0 | |
| (+) Land Non-Homesite Value: | + | $120,000 | |
| (+) Curr Use (HS): | + | $0 | $0 |
| (+) Curr Use (NHS): | + | $0 | $0 |
| | | -------------------------- | |
| (=) Market Value: | = | $599,770 | |
| (–) Productivity Loss: | – | $0 | |
| | | -------------------------- | |
| (=) Subtotal: | = | $599,770 | |
| (+) Senior Appraised Value: | + | $0 | |
| (+) Non-Senior Appraised Value: | + | $599,770 | |
| | | -------------------------- | |
| (=) Total Appraised Value: | = | $599,770 | |
| (–) Senior Exemption Loss: | – | $0 | |
| (–) Exemption Loss: | – | $0 | |
| | | -------------------------- | |
| (=) Taxable Value: | = | $599,770 | |
Taxing Jurisdiction
| Owner: | GATCHEL WILLIAM & GAYLE WEATHERSON | | |
| % Ownership: | 100.0000000000% | | |
| Total Value: | $599,770 | | |
| Tax Area: | 1 - OL-140-F |
| CERFD | CURRENT EXPENSE REFUND 010 | 0.0000000000 | $599,770 | $599,770 | $0.00 | | |
| CURREXP | CURRENT EXPENSE 010 | 1.0175366760 | $599,770 | $599,770 | $610.29 | | |
| HUMNSERV | HUMAN SERVICES 119 | 0.0250000000 | $599,770 | $599,770 | $14.99 | | |
| SLDREL | SOLDIERS RELIEF 121 | 0.0155990005 | $599,770 | $599,770 | $9.36 | | |
| EMERGSER | EMS 147 | 0.3792580840 | $599,770 | $599,770 | $227.47 | | |
| EMSRFD | EMS REFUND 147 | 0.0000000000 | $599,770 | $599,770 | $0.00 | | |
| PORTRFD | PORT REFUND 640 | 0.0000000000 | $599,770 | $599,770 | $0.00 | | |
| PORTWWGEN | PORT OF WW 640 | 0.2460186015 | $599,770 | $599,770 | $147.55 | | |
| SD140BOND | SD #140 BOND 764 | 0.8342371393 | $599,770 | $599,770 | $500.35 | | |
| SD140GEN | SD #140 GENERAL 760 | 2.0646500647 | $599,770 | $599,770 | $1,238.32 | | |
| ST2 | STATE SCHOOL PART 2 600 | 0.8131451643 | $599,770 | $599,770 | $487.70 | | |
| STATESCHL | STATE SCHOOL 600 | 1.5158548041 | $599,770 | $599,770 | $909.16 | | |
| STREFUND | STATE REFUND LEVY 603 | 0.0000000000 | $599,770 | $599,770 | $0.00 | | |
| CWWBOND | C OF WW BOND 643 | 0.2760494372 | $599,770 | $599,770 | $165.57 | | |
| CWWGEN | CITY OF WW 631 | 1.6100204973 | $599,770 | $599,770 | $965.64 | | |
| CWWRFD | CITY OF WALLA WALLA REFUND 631 | 0.0000000000 | $599,770 | $599,770 | $0.00 | | |
| | Total Tax Rate: | 8.7973694689 | | | | | |
| | | | | Taxes w/Current Exemptions: | $5,276.40 | | |
| | | | | Taxes w/o Exemptions: | $5,276.40 | | |
Improvement / Building
| Improvement #1: | RESIDENTIAL | State Code: | 11 | 2096.0 sqft | Value: | $479,770 |
| Exterior Wall: | HARDBOARD | Heating/Cooling: | WARM & COOLED AIR | | Number of Bathrooms: | 2 | Number of Bedrooms: | 2 | | Plumbing: | 12 | Roof Covering: | COMP SHINGLE |
|
| | Type | Description | Class CD | Sub Class CD | Year Built | Area |
| | MA | Main Area | 1 | 35 | 2020 | 2096.0 |
| | SI1 | SITE IMPROVEMENT | 1 | 35 | 2020 | 4.0 |
| | ATG | Attached Garage | 1 | 35 | 2020 | 703.0 |
| | RPO | OPEN PORCH W/ROOF | 1 | 35 | 2020 | 48.0 |
| | RESUTST | RESIDENTIAL UTILITY STORAGE | 1 | 35 | 2020 | 88.0 |
| | GFP | GAS FIREPLACE | 1 | 35 | 2020 | 1.0 |
Sketch
Property Image
Land
| 1 | RES 1 | Converted: Residential | 0.2393 | 10423.00 | 0.00 | 0.00 | 1.00 | $120,000 | $0 |
Roll Value History
| 2026 | N/A | N/A | N/A | N/A | N/A |
| 2025 | $426,500 | $150,000 | $0 | $576,500 | $576,500 |
| 2024 | $479,770 | $120,000 | $0 | $599,770 | $599,770 |
| 2023 | $479,770 | $120,000 | $0 | $599,770 | $599,770 |
| 2022 | $479,770 | $85,000 | $0 | $564,770 | $564,770 |
| 2021 | $342,690 | $85,000 | $0 | $427,690 | $427,690 |
| 2020 | $148,110 | $85,000 | $0 | $233,110 | $233,110 |
| 2019 | $0 | $85,000 | $0 | $85,000 | $85,000 |
| 2018 | $0 | $67,500 | $0 | $67,500 | $67,500 |
| 2017 | $0 | $67,500 | $0 | $67,500 | $67,500 |
| 2016 | $0 | $67,500 | $0 | $67,500 | $67,500 |
| 2015 | $0 | $67,500 | $0 | $67,500 | $67,500 |
| 2014 | $0 | $47,500 | $0 | $47,500 | $47,500 |
| 2013 | $0 | $47,500 | $0 | $47,500 | $47,500 |
| 2012 | $0 | $47,500 | $0 | $0 | $0 |
| 2011 | $0 | $47,500 | $0 | $0 | $0 |
| 2010 | $0 | $47,500 | $0 | $0 | $0 |
| 2009 | $0 | $9,700 | $0 | $0 | $0 |
| 2008 | $0 | $47,500 | $0 | $0 | $0 |
Deed and Sales History
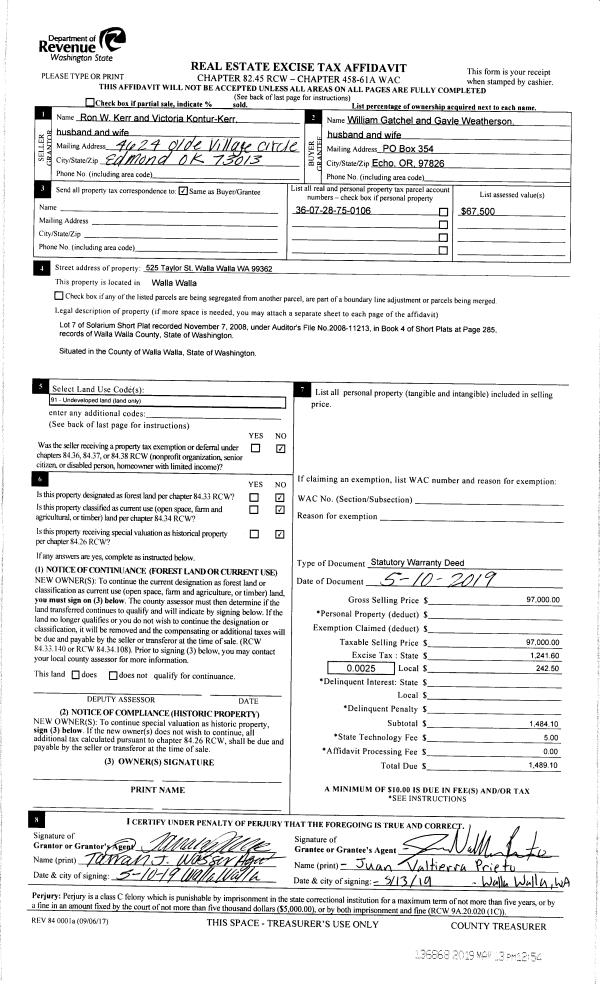
| 1 | 05/13/2019 | SWD | STATUTORY WARRANTY DEED | KERR RON W | GATCHEL WILLIAM & GAYLE WEATHERSON | | | $97,000.00 | 136868 | 2019-03173 |
| 2 | 12/13/2017 | SWD | STATUTORY WARRANTY DEED | TOMEK RONALD & REBECCA | KERR RON W | | | $87,000.00 | 133791 | 2017-10047 |
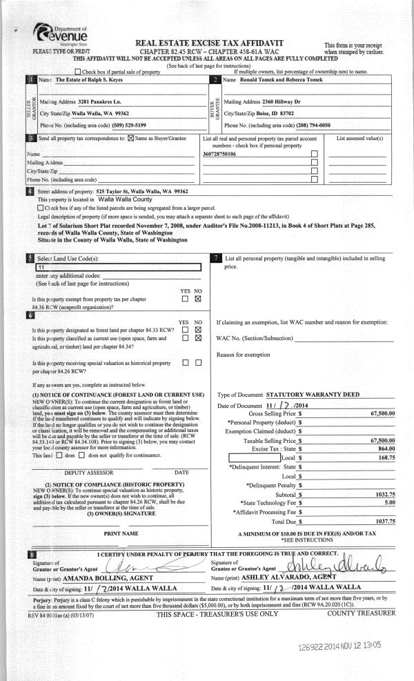
| 3 | 11/12/2014 | SWD | STATUTORY WARRANTY DEED | KEYES RALPH S ESTATE OF | TOMEK RONALD & REBECCA | | | $67,500.00 | 126922 | 2014-08215 |
| 4 | 11/17/2010 | WARRANTY D | WARRANTY DEED | "KEYES, MARY ANNE ESTATE~OF" | | | | | 119341 | 2010-09410 |
Payout Agreement
| No payout information available.. |