Property
Account |
| Property ID: | 26227 | Abbreviated Legal Description: | TAYLORS ADDITION LOT 1 OF SHORT PLAT 2008-11213 (SLY PTN LOT 4 BLOCK 2 PLUS TRACTS TO THE S) |
| Parcel Number: | 360728750205 | Agent Code: | |
| Type: | Real | | |
| Tax Area: | 1 - OL-140-F | Land Use Code | 11 |
| Open Space: | N | DFL | N |
| Historic Property: | N | Remodel Property: | N |
| Multi-Family Redevelopment: | N | | |
| Township: | 7 | Section: | 28 |
| Range: | 36 |
Location |
| Address: | 530 TAYLOR ST WA 99362 | Mapsco: | |
| Neighborhood: | G Res | Map ID: | |
| Neighborhood CD: | 614011 |
Owner |
| Name: | MUDUNURU MARUTI K | Owner ID: | 70163 |
| Mailing Address: | SAI MADHURIKA MAMUNURU 530 TAYLOR ST WALLA WALLA, WA 99362 | % Ownership: | 100.0000000000% |
| | | Exemptions: | |
Taxes and Assessment Details
Values
| (+) Improvement Homesite Value: | + | $0 | |
| (+) Improvement Non-Homesite Value: | + | $439,610 | |
| (+) Land Homesite Value: | + | $0 | |
| (+) Land Non-Homesite Value: | + | $120,000 | |
| (+) Curr Use (HS): | + | $0 | $0 |
| (+) Curr Use (NHS): | + | $0 | $0 |
| | | -------------------------- | |
| (=) Market Value: | = | $559,610 | |
| (–) Productivity Loss: | – | $0 | |
| | | -------------------------- | |
| (=) Subtotal: | = | $559,610 | |
| (+) Senior Appraised Value: | + | $0 | |
| (+) Non-Senior Appraised Value: | + | $559,610 | |
| | | -------------------------- | |
| (=) Total Appraised Value: | = | $559,610 | |
| (–) Senior Exemption Loss: | – | $0 | |
| (–) Exemption Loss: | – | $0 | |
| | | -------------------------- | |
| (=) Taxable Value: | = | $559,610 | |
Taxing Jurisdiction
| Owner: | MUDUNURU MARUTI K | | |
| % Ownership: | 100.0000000000% | | |
| Total Value: | $559,610 | | |
| Tax Area: | 1 - OL-140-F |
| CERFD | CURRENT EXPENSE REFUND 010 | 0.0000000000 | $559,610 | $559,610 | $0.00 | | |
| CURREXP | CURRENT EXPENSE 010 | 1.0175366760 | $559,610 | $559,610 | $569.42 | | |
| HUMNSERV | HUMAN SERVICES 119 | 0.0250000000 | $559,610 | $559,610 | $13.99 | | |
| SLDREL | SOLDIERS RELIEF 121 | 0.0155990005 | $559,610 | $559,610 | $8.73 | | |
| EMERGSER | EMS 147 | 0.3792580840 | $559,610 | $559,610 | $212.24 | | |
| EMSRFD | EMS REFUND 147 | 0.0000000000 | $559,610 | $559,610 | $0.00 | | |
| PORTRFD | PORT REFUND 640 | 0.0000000000 | $559,610 | $559,610 | $0.00 | | |
| PORTWWGEN | PORT OF WW 640 | 0.2460186015 | $559,610 | $559,610 | $137.67 | | |
| SD140BOND | SD #140 BOND 764 | 0.8342371393 | $559,610 | $559,610 | $466.85 | | |
| SD140GEN | SD #140 GENERAL 760 | 2.0646500647 | $559,610 | $559,610 | $1,155.40 | | |
| ST2 | STATE SCHOOL PART 2 600 | 0.8131451643 | $559,610 | $559,610 | $455.04 | | |
| STATESCHL | STATE SCHOOL 600 | 1.5158548041 | $559,610 | $559,610 | $848.29 | | |
| STREFUND | STATE REFUND LEVY 603 | 0.0000000000 | $559,610 | $559,610 | $0.00 | | |
| CWWBOND | C OF WW BOND 643 | 0.2760494372 | $559,610 | $559,610 | $154.48 | | |
| CWWGEN | CITY OF WW 631 | 1.6100204973 | $559,610 | $559,610 | $900.98 | | |
| CWWRFD | CITY OF WALLA WALLA REFUND 631 | 0.0000000000 | $559,610 | $559,610 | $0.00 | | |
| | Total Tax Rate: | 8.7973694689 | | | | | |
| | | | | Taxes w/Current Exemptions: | $4,923.09 | | |
| | | | | Taxes w/o Exemptions: | $4,923.09 | | |
Improvement / Building
| Improvement #1: | RESIDENTIAL | State Code: | 11 | 2286.0 sqft | Value: | $439,610 |
| Exterior Wall: | HARDBOARD | Heating/Cooling: | WARM & COOLED AIR | | Number of Bathrooms: | 2.5 | Number of Bedrooms: | 4 | | Plumbing: | 14 | Roof Covering: | COMP SHINGLE |
|
| | Type | Description | Class CD | Sub Class CD | Year Built | Area |
| | MA | Main Area | 4 | 35 | 2014 | 2286.0 |
| | UPFL | Upper Floor (included in main area) | 4 | 35 | 2014 | 1053.0 |
| | SI1 | SITE IMPROVEMENT | 4 | 35 | 2014 | 3.0 |
| | RPO | OPEN PORCH W/ROOF | 4 | 35 | 2014 | 138.0 |
| | RPC | OPEN PORCH W/ROOF , CEILED | 4 | 35 | 2014 | 230.0 |
| | ATG | Attached Garage | 4 | 35 | 2014 | 1055.0 |
Sketch
Property Image
Land
| 1 | RES 1 | Converted: Residential | 0.2563 | 11166.00 | 0.00 | 0.00 | 1.00 | $120,000 | $0 |
Roll Value History
| 2026 | N/A | N/A | N/A | N/A | N/A |
| 2025 | $416,150 | $150,000 | $0 | $566,150 | $566,150 |
| 2024 | $439,610 | $120,000 | $0 | $559,610 | $559,610 |
| 2023 | $439,610 | $120,000 | $0 | $559,610 | $559,610 |
| 2022 | $439,610 | $85,000 | $0 | $524,610 | $524,610 |
| 2021 | $244,230 | $85,000 | $0 | $329,230 | $329,230 |
| 2020 | $244,230 | $85,000 | $0 | $329,230 | $329,230 |
| 2019 | $244,230 | $85,000 | $0 | $329,230 | $329,230 |
| 2018 | $244,700 | $68,100 | $0 | $312,800 | $312,800 |
| 2017 | $244,700 | $68,100 | $0 | $312,800 | $312,800 |
| 2016 | $244,700 | $68,100 | $0 | $312,800 | $312,800 |
| 2015 | $244,700 | $68,100 | $0 | $312,800 | $312,800 |
| 2014 | $244,700 | $48,100 | $0 | $292,800 | $292,800 |
| 2013 | $0 | $48,100 | $0 | $48,100 | $48,100 |
| 2012 | $0 | $48,100 | $0 | $0 | $0 |
| 2011 | $0 | $48,100 | $0 | $0 | $0 |
| 2010 | $0 | $48,100 | $0 | $0 | $0 |
| 2009 | $0 | $10,500 | $0 | $0 | $0 |
| 2008 | $0 | $48,100 | $0 | $0 | $0 |
Deed and Sales History
| 1 | 08/24/2021 | SWD | STATUTORY WARRANTY DEED | PARMLEY NICHOLAS & ANN | MUDUNURU MARUTI K | | | $527,200.00 | 142344 | 2021-10356 |
| 2 | 05/15/2014 | SWD | STATUTORY WARRANTY DEED | SR HOMES LLC | PARMLEY NICHOLAS & ANN | | | $315,000.00 | 125887 | 2014-03298 |
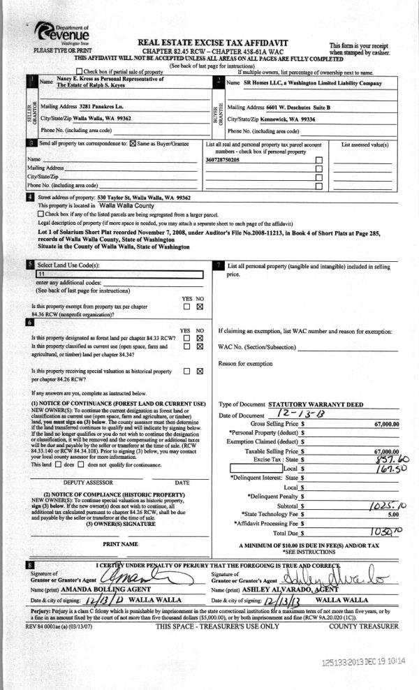
| 3 | 12/19/2013 | SWD | STATUTORY WARRANTY DEED | KEYES RALPH S ESTATE OF | SR HOMES LLC | | | $67,000.00 | 125133 | 2013-12090 |
| 4 | 11/17/2010 | WARRANTY D | WARRANTY DEED | "KEYES, MARY ANNE ESTATE~OF" | | | | | 119341 | 2010-09410 |
Payout Agreement
| No payout information available.. |