Property
Account |
| Property ID: | 25758 | Abbreviated Legal Description: | HOMESTEAD VILLAGE P.U.D. PHASE 1A TRACT B, OPEN SPACE AREA |
| Parcel Number: | 350735719902 | Agent Code: | |
| Type: | Real | | |
| Tax Area: | 74 - CP-250-FB | Land Use Code | 99 |
| Open Space: | N | DFL | N |
| Historic Property: | N | Remodel Property: | N |
| Multi-Family Redevelopment: | N | | |
| Township: | 7 | Section: | 35 |
| Range: | 35 |
Location |
| Address: | WA 99324 | Mapsco: | |
| Neighborhood: | A SFR Contig | Map ID: | |
| Neighborhood CD: | 113097 |
Owner |
| Name: | HOMESTEAD VILLAGE HOMEOWNERS ASSOCIATION | Owner ID: | 66278 |
| Mailing Address: | PO BOX 23099 TIGARD, OR 97281 | % Ownership: | 100.0000000000% |
| | | Exemptions: | |
Taxes and Assessment Details
Values
| (+) Improvement Homesite Value: | + | $0 | |
| (+) Improvement Non-Homesite Value: | + | $0 | |
| (+) Land Homesite Value: | + | $0 | |
| (+) Land Non-Homesite Value: | + | $0 | |
| (+) Curr Use (HS): | + | $0 | $0 |
| (+) Curr Use (NHS): | + | $0 | $0 |
| | | -------------------------- | |
| (=) Market Value: | = | $0 | |
| (–) Productivity Loss: | – | $0 | |
| | | -------------------------- | |
| (=) Subtotal: | = | $0 | |
| (+) Senior Appraised Value: | + | $0 | |
| (+) Non-Senior Appraised Value: | + | $0 | |
| | | -------------------------- | |
| (=) Total Appraised Value: | = | $0 | |
| (–) Senior Exemption Loss: | – | $0 | |
| (–) Exemption Loss: | – | $0 | |
| | | -------------------------- | |
| (=) Taxable Value: | = | $0 | |
Taxing Jurisdiction
| Owner: | HOMESTEAD VILLAGE HOMEOWNERS ASSOCIATION | | |
| % Ownership: | 100.0000000000% | | |
| Total Value: | $0 | | |
| Tax Area: | 74 - CP-250-FB |
| CERFD | CURRENT EXPENSE REFUND 010 | 0.0000000000 | $0 | $0 | $0.00 | | |
| CURREXP | CURRENT EXPENSE 010 | 1.0175366760 | $0 | $0 | $0.00 | | |
| HUMNSERV | HUMAN SERVICES 119 | 0.0250000000 | $0 | $0 | $0.00 | | |
| SLDREL | SOLDIERS RELIEF 121 | 0.0155990005 | $0 | $0 | $0.00 | | |
| COLLPLBOND | C OF CP BOND 644 | 0.4374241808 | $0 | $0 | $0.00 | | |
| COLLPLGEN | CITY OF CP 632 | 1.4453819216 | $0 | $0 | $0.00 | | |
| EMERGSER | EMS 147 | 0.3792580840 | $0 | $0 | $0.00 | | |
| EMSRFD | EMS REFUND 147 | 0.0000000000 | $0 | $0 | $0.00 | | |
| RURALLIB | RURAL LIBRARY 623 | 0.3710609029 | $0 | $0 | $0.00 | | |
| PORTRFD | PORT REFUND 640 | 0.0000000000 | $0 | $0 | $0.00 | | |
| PORTWWGEN | PORT OF WW 640 | 0.2460186015 | $0 | $0 | $0.00 | | |
| SD250BOND | SD #250 BOND 773 | 1.4560608159 | $0 | $0 | $0.00 | | |
| SD250GEN | SD #250 GENERAL 770 | 2.3880724087 | $0 | $0 | $0.00 | | |
| ST2 | STATE SCHOOL PART 2 600 | 0.8131451643 | $0 | $0 | $0.00 | | |
| STATESCHL | STATE SCHOOL 600 | 1.5158548041 | $0 | $0 | $0.00 | | |
| STREFUND | STATE REFUND LEVY 603 | 0.0000000000 | $0 | $0 | $0.00 | | |
| | Total Tax Rate: | 10.1104125603 | | | | | |
| | | | | Taxes w/Current Exemptions: | $0.00 | | |
| | | | | Taxes w/o Exemptions: | $0.00 | | |
Improvement / Building
Sketch
| No sketches available for this property. |
Property Image
Land
| 1 | RES 1 | Converted: Residential | 3.4300 | 149410.80 | 0.00 | 0.00 | 1.00 | $0 | $0 |
Roll Value History
| 2026 | N/A | N/A | N/A | N/A | N/A |
| 2025 | $0 | $100 | $0 | $100 | $0 |
| 2024 | $0 | $0 | $0 | $0 | $0 |
| 2023 | $0 | $0 | $0 | $0 | $0 |
| 2022 | $0 | $0 | $0 | $0 | $0 |
| 2021 | $0 | $0 | $0 | $0 | $0 |
| 2020 | $0 | $0 | $0 | $0 | $0 |
| 2019 | $0 | $0 | $0 | $0 | $0 |
| 2018 | $0 | $13,700 | $0 | $13,700 | $13,700 |
| 2017 | $0 | $13,700 | $0 | $13,700 | $13,700 |
| 2016 | $0 | $13,700 | $0 | $13,700 | $13,700 |
| 2015 | $0 | $13,700 | $0 | $13,700 | $13,700 |
| 2014 | $0 | $13,700 | $0 | $13,700 | $13,700 |
| 2013 | $0 | $13,700 | $0 | $13,700 | $13,700 |
| 2012 | $0 | $13,700 | $0 | $0 | $0 |
| 2011 | $0 | $13,700 | $0 | $0 | $0 |
| 2010 | $0 | $13,700 | $0 | $0 | $0 |
| 2009 | $0 | $100 | $0 | $0 | $0 |
| 2008 | $0 | $13,700 | $0 | $0 | $0 |
Deed and Sales History
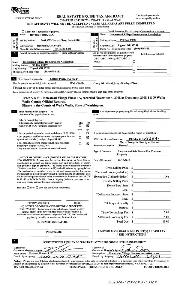
| 1 | 11/22/2019 | BARGAIN & | BARGAIN & SALE DEED | HAYDEN HOMES LLC | HOMESTEAD VILLAGE HOMEOWNERS ASSOCIATION | | | $0.00 | 138201 | 2019-10055 |
| 2 | 11/11/2019 | BARGAIN & | BARGAIN & SALE DEED | HAYDEN HOMES LLC | HOMESTEAD VILLAGE HOMEOWNERS ASSOCIATION | | | $0.00 | 138124 | 2019-09622 |
| 3 | 11/14/2008 | QCD | QUIT CLAIM DEED | HAYDEN ENTERPRISES INC | HAYDEN HOMES LLC | | | | 115964 | 2008-11380 |
Payout Agreement
| No payout information available.. |